Se Connecter/S’inscrire
Votre courriel a été envoyé.
Certaines informations ont été traduites automatiquement.
Faits saillants de l'investissement
- Corner pad site with dual road frontage and strong visibility.
- Surrounded by schools, parks, and community amenities.
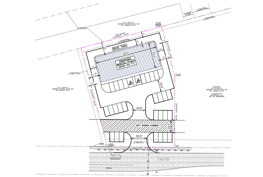
- Concept plan supports medical or retail development.
- Located in a high-growth corridor near I-20 and major arterials.
- Favorable demographics with high household income levels.
Résumé de l'annonce
This ±0.771-acre pad site at the northwest corner of W Polo Road and S Robinson Road offers a rare opportunity to secure a prime development parcel in one of Grand Prairie’s most dynamic growth corridors. Positioned for maximum visibility with frontage along two well-traveled roads, the site benefits from traffic counts exceeding 9,000 VPD combined and seamless access to I-20, a major east-west artery connecting the Dallas-Fort Worth metroplex. Surrounding amenities include schools, parks, and community hubs such as the Grand Prairie Family YMCA and Truman Middle School, ensuring strong consumer traffic and neighborhood engagement. The area’s demographics underscore its investment potential, with a five-mile population of nearly 229,000 and average household incomes above $100,000. Utilities are readily accessible, and the concept plan envisions a medical plaza, making this site ideal for healthcare, retail, or service-oriented development. Grand Prairie’s strategic location between Dallas and Fort Worth, coupled with its pro-business environment and robust residential growth, positions this property as a high-value acquisition for developers seeking long-term upside in a thriving submarket.
Faits sur la propriété
1 Lot disponible
Lot
| Taille du lot | 0,77 AC |
| Taille du lot | 0,77 AC |
±0.771-acre pad site at the northwest corner of W Polo Road and S Robinson Road.
1 1
Assez praticable à pied
40/100
Exceptionnellement facile d’accès en voiture
100/100
Plutôt praticable en vélo
50/100
Impôts fonciers
| Numéro de lot | 28003700050120000 | Évaluation des bâtiments | 0 $ CAD |
| Évaluation du terrain | 160 208 $ CAD | Évaluation totale | 160 208 $ CAD |
Impôts fonciers
Numéro de lot
28003700050120000
Évaluation du terrain
160 208 $ CAD
Évaluation des bâtiments
0 $ CAD
Évaluation totale
160 208 $ CAD
1 de 4
Vidéos
Visite extérieure 3D Matterport
Visite 3D Matterport
Photos
Vue depuis la rue
Rue
Carte
1 de 1
Présenté par
920 Polo Rd
Vous êtes déjà membre? Connectez-vous
Hmm, il semble y avoir eu une erreur lors de l’envoi de votre message. Veuillez réessayer.
Merci! Votre message a été envoyé.



