Se Connecter/S’inscrire
Votre courriel a été envoyé.
921 Orange St
Wilmington, DE 19801
Bureau Propriété À vendre


Certaines informations ont été traduites automatiquement.
Faits saillants de l'investissement
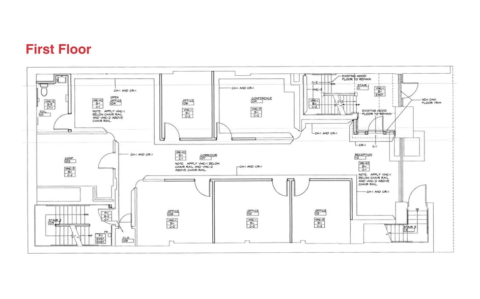
- 5,760 SF, two-story office building with partially finished lower level
- Zoned C-4 (Central Office) - flexible professional office use
- Convenient access to I-95, I-495, and regional transit
- Interior includes 9 private offices, 3 conference rooms, law library, file storage, server room, and admin/workspace
- Proximity to courthouses, banks, restaurants, and retail in Wilmington's CBD
- Street and nearby garage parking options
Résumé de l'annonce
Situated on North Orange Street in Wilmington, this 5,760 SF office building offers a professional environment in a prime location just steps from the Central Business District. This property benefits from its walkable setting near government offices, financial institutions, restaurants, and public transit, making it highly convenient for employees and clients alike. With zoning that supports a wide range of office uses, the building provides an excellent opportunity for firms seeking a prominent address in Wilmington's thriving downtown core.
Faits sur la propriété
Type de vente
Propriétaire utilisateur
Type de propriété
Bureau
Taille du bâtiment
5 760 pi²
Classe d’immeuble
C
Année de construction
1964
Location
Multiples
Hauteur du bâtiment
2 étages
Superficie de plancher typique
2 880 pi²
Coefficient d’occupation des sols de l’immeuble
1,89
Taille du lot
0,07 AC
Zone de développement économique
Oui
Zonage
26C-4
Commodités
- Banque
- Affichage
Impôts fonciers
| Numéro de lot | 26-035.20-027 | Évaluation des bâtiments | 233 041 $ CAD |
| Évaluation du terrain | 318 188 $ CAD | Évaluation totale | 551 229 $ CAD |
Impôts fonciers
Numéro de lot
26-035.20-027
Évaluation du terrain
318 188 $ CAD
Évaluation des bâtiments
233 041 $ CAD
Évaluation totale
551 229 $ CAD
1 de 16
Vidéos
Visite extérieure 3D Matterport
Visite 3D Matterport
Photos
Vue depuis la rue
Rue
Carte
