Se Connecter/S’inscrire
Votre courriel a été envoyé.
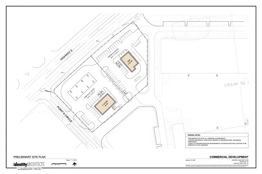
9210 Highway 6 North
Houston, TX 77095
Highway 6 North @ Point 6 Circle · Terrain À louer


Certaines informations ont été traduites automatiquement.
Aperçu de la propriété
2.1 AC disponible pour bail foncier à l'angle de la route 6 N et du cercle Point 6. Il s'agit du dernier virage avant la liaison directe entre la route 6 et US 290 (autoroute du Nord-Ouest) et le pont de la route 6 au-dessus de la US 290. Le site sera livré à l'état brut avec tous les services publics jusqu'au site, et la détention sera assurée pour la totalité des CA 2.1 hors site. Veuillez communiquer avec nous pour obtenir des renseignements sur les prix. Le site peut être divisé.
Faits sur la propriété
| Superficie totale disponible | 2,10 AC | Sous-type de propriété | Terrain commercial |
| Min. divisible | 1,00 AC | Utilisation proposée | |
| Type de propriété | Terrain | Rues transversales | Point 6 Circle |
| Superficie totale disponible | 2,10 AC |
| Min. divisible | 1,00 AC |
| Type de propriété | Terrain |
| Sous-type de propriété | Terrain commercial |
| Utilisation proposée | |
| Rues transversales | Point 6 Circle |
1 de 4
Vidéos
Visite extérieure 3D Matterport
Visite 3D Matterport
Photos
Vue depuis la rue
Rue
Carte
