Votre courriel a été envoyé.
Tom Lee Building 929 Granville St 11 356–67 902 pi² d'espace disponible • Bureau • Vancouver, BC V6Z 1L3



Certaines informations ont été traduites automatiquement.
Faits saillants
- 70 961 pi² d'espace de bureau de classe A dans un bâtiment emblématique.
- Récemment rénové, le hall de classe supérieure, les espaces de conférence et les plafonds allant jusqu'à 14 pieds captivent le travailleur moderne.
- Le zonage flexible peut accueillir une variété d'utilisateurs
- À quelques pas des meilleurs restaurants, commerces et divertissements
- Situé à distance de marche du centre-ville de Vancouver et de la station de SkyTrain de la rue Granville
- Casiers de rangement, installations de douche de fin de trajet et rangement pour vélos
Tous les espaces disponibles(5)
Afficher les taux de location en
- Espace
- Taille
- Terme
- Taux de location
- Utilisation de l’espace
- Aménagement
- Disponible
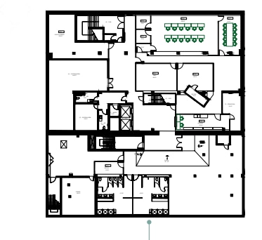
Espace de bureau de 11 356 pieds carrés disponible à la location immédiatement. Contactez les agents de la liste pour les tarifs.
- Le taux de location ne comprend pas les services publics, les services de bâtiment ou les dépenses immobilières.
- Convient pour 29 à 91 personnes
- Entreposage sécurisé
- Douches de fin de trajet.
- Douze et Dix
- Disposition du plan d’étage ouverte
- 2 salles de conférence
- Entreposage de vélo
- Casiers de stockage.
929 Granville offre une occasion exceptionnelle de louer un espace de bureau haut de gamme dans un bâtiment de caractère de classe A entièrement rénové, stratégiquement situé dans le dynamique quartier de divertissement de Granville à Vancouver. Cette propriété de 70 961 pieds carrés sur 5 étages allie magistralement le charme historique à la sophistication moderne, avec des améliorations haut de gamme, des meubles élégants et un éclairage à la fine pointe de la technologie. L'atrium à concept ouvert à l'entrée crée une première impression saisissante.
- Le taux de location ne comprend pas les services publics, les services de bâtiment ou les dépenses immobilières.
- Disposition du plan d’étage ouverte en général
- 2 salles de conférence
- Peut être associé à un ou plusieurs espaces supplémentaires pour obtenir jusqu’à 56 546 pi² d’espace adjacent.
- Salle de bains privée
- 5 salles de discussion pour quatre personnes
- Entièrement construit comme Bureau standard
- Convient pour 34 à 108 personnes
- 44 postes de travail
- Salle d’impression/Photocopie
- Salle de photocopie
- 2 cabines téléphoniques
929 Granville offre une occasion exceptionnelle de louer un espace de bureau haut de gamme dans un bâtiment de caractère de classe A entièrement rénové, stratégiquement situé dans le dynamique quartier de divertissement de Granville à Vancouver. Cette propriété de 70 961 pieds carrés sur 5 étages allie magistralement le charme historique à la sophistication moderne, avec des améliorations haut de gamme, des meubles élégants et un éclairage à la fine pointe de la technologie. L'atrium à concept ouvert à l'entrée crée une première impression saisissante.
- Le taux de location ne comprend pas les services publics, les services de bâtiment ou les dépenses immobilières.
- Disposition du plan d’étage ouverte en général
- 2 salles de conférence
- Peut être associé à un ou plusieurs espaces supplémentaires pour obtenir jusqu’à 56 546 pi² d’espace adjacent.
- Salle de bains privée
- 10 salles d'équipe pour quatre personnes
- Toilettes privées (hommes et femmes)
- Entièrement construit comme Bureau standard
- Convient pour 36 à 113 personnes
- 65 postes de travail
- Salle d’impression/Photocopie
- Salle d'équipe pour six personnes
- Petite kitchenette et espace détente
929 Granville offre une opportunité exceptionnelle de louer un espace de bureau haut de gamme dans un immeuble de caractère de classe A entièrement rénové, stratégiquement situé dans le dynamique quartier de divertissement de Granville à Vancouver. Cette propriété de 70 961 pieds carrés sur 5 étages allie habilement charme historique et sophistication moderne, avec des améliorations haut de gamme, un mobilier élégant et un éclairage à la fine pointe de la technologie. L'atrium à concept ouvert à l'entrée crée une première impression saisissante.
- Le taux de location ne comprend pas les services publics, les services de bâtiment ou les dépenses immobilières.
- Disposition du plan d’étage ouverte en général
- 1 salle de conférence
- Peut être associé à un ou plusieurs espaces supplémentaires pour obtenir jusqu’à 56 546 pi² d’espace adjacent.
- Salle de bains privée
- 2 salles d'équipe pour six personnes
- Salles de bain privées (hommes et femmes)
- Salle de bien-être
- Entièrement construit comme Bureau standard
- Convient pour 37 à 117 personnes
- 70 postes de travail
- Salle d’impression/Photocopie
- 10 salles d'équipe pour quatre personnes
- 8 salles téléphoniques
- Petite kitchenette et espace détente
929 Granville offre une occasion exceptionnelle de louer un espace de bureau haut de gamme dans un bâtiment de caractère de classe A entièrement rénové, stratégiquement situé dans le dynamique quartier de divertissement de Granville à Vancouver. Cette propriété de 70 961 pieds carrés sur 5 étages allie magistralement le charme historique à la sophistication moderne, avec des améliorations haut de gamme, des meubles élégants et un éclairage à la fine pointe de la technologie. L'atrium à concept ouvert à l'entrée crée une première impression saisissante.
- Le taux de location ne comprend pas les services publics, les services de bâtiment ou les dépenses immobilières.
- Disposition du plan d’étage ouverte en général
- 3 salles de conférence
- Peut être associé à un ou plusieurs espaces supplémentaires pour obtenir jusqu’à 56 546 pi² d’espace adjacent.
- 3 salles de conférence pour six personnes
- Toilettes privées (hommes et femmes)
- 11 salles d'équipe pour quatre personnes
- Entièrement construit comme Bureau standard
- Convient pour 37 à 117 personnes
- 71 postes de travail
- 71 postes de travail
- Salon et kitchenette
- Petite kitchenette et espace détente
| Espace | Taille | Terme | Taux de location | Utilisation de l’espace | Aménagement | Disponible |
| Sous-sol | 11 356 pi² | Négociable | Sur demande Sur demande Sur demande Sur demande | Bureau | selon spécifications | Maintenant |
| 2e étage | 13 400 pi² | Négociable | Sur demande Sur demande Sur demande Sur demande | Bureau | construction complète | Maintenant |
| 3e étage | 14 042 pi² | Négociable | Sur demande Sur demande Sur demande Sur demande | Bureau | construction complète | Maintenant |
| 4e étage | 14 557 pi² | Négociable | Sur demande Sur demande Sur demande Sur demande | Bureau | construction complète | Maintenant |
| 5e étage | 14 547 pi² | Négociable | Sur demande Sur demande Sur demande Sur demande | Bureau | construction complète | Maintenant |
Sous-sol
| Taille |
| 11 356 pi² |
| Terme |
| Négociable |
| Taux de location |
| Sur demande Sur demande Sur demande Sur demande |
| Utilisation de l’espace |
| Bureau |
| Aménagement |
| selon spécifications |
| Disponible |
| Maintenant |
2e étage
| Taille |
| 13 400 pi² |
| Terme |
| Négociable |
| Taux de location |
| Sur demande Sur demande Sur demande Sur demande |
| Utilisation de l’espace |
| Bureau |
| Aménagement |
| construction complète |
| Disponible |
| Maintenant |
3e étage
| Taille |
| 14 042 pi² |
| Terme |
| Négociable |
| Taux de location |
| Sur demande Sur demande Sur demande Sur demande |
| Utilisation de l’espace |
| Bureau |
| Aménagement |
| construction complète |
| Disponible |
| Maintenant |
4e étage
| Taille |
| 14 557 pi² |
| Terme |
| Négociable |
| Taux de location |
| Sur demande Sur demande Sur demande Sur demande |
| Utilisation de l’espace |
| Bureau |
| Aménagement |
| construction complète |
| Disponible |
| Maintenant |
5e étage
| Taille |
| 14 547 pi² |
| Terme |
| Négociable |
| Taux de location |
| Sur demande Sur demande Sur demande Sur demande |
| Utilisation de l’espace |
| Bureau |
| Aménagement |
| construction complète |
| Disponible |
| Maintenant |
Sous-sol
| Taille | 11 356 pi² |
| Terme | Négociable |
| Taux de location | Sur demande |
| Utilisation de l’espace | Bureau |
| Aménagement | selon spécifications |
| Disponible | Maintenant |
Espace de bureau de 11 356 pieds carrés disponible à la location immédiatement. Contactez les agents de la liste pour les tarifs.
- Le taux de location ne comprend pas les services publics, les services de bâtiment ou les dépenses immobilières.
- Disposition du plan d’étage ouverte
- Convient pour 29 à 91 personnes
- 2 salles de conférence
- Entreposage sécurisé
- Entreposage de vélo
- Douches de fin de trajet.
- Casiers de stockage.
- Douze et Dix
2e étage
| Taille | 13 400 pi² |
| Terme | Négociable |
| Taux de location | Sur demande |
| Utilisation de l’espace | Bureau |
| Aménagement | construction complète |
| Disponible | Maintenant |
929 Granville offre une occasion exceptionnelle de louer un espace de bureau haut de gamme dans un bâtiment de caractère de classe A entièrement rénové, stratégiquement situé dans le dynamique quartier de divertissement de Granville à Vancouver. Cette propriété de 70 961 pieds carrés sur 5 étages allie magistralement le charme historique à la sophistication moderne, avec des améliorations haut de gamme, des meubles élégants et un éclairage à la fine pointe de la technologie. L'atrium à concept ouvert à l'entrée crée une première impression saisissante.
- Le taux de location ne comprend pas les services publics, les services de bâtiment ou les dépenses immobilières.
- Entièrement construit comme Bureau standard
- Disposition du plan d’étage ouverte en général
- Convient pour 34 à 108 personnes
- 2 salles de conférence
- 44 postes de travail
- Peut être associé à un ou plusieurs espaces supplémentaires pour obtenir jusqu’à 56 546 pi² d’espace adjacent.
- Salle d’impression/Photocopie
- Salle de bains privée
- Salle de photocopie
- 5 salles de discussion pour quatre personnes
- 2 cabines téléphoniques
3e étage
| Taille | 14 042 pi² |
| Terme | Négociable |
| Taux de location | Sur demande |
| Utilisation de l’espace | Bureau |
| Aménagement | construction complète |
| Disponible | Maintenant |
929 Granville offre une occasion exceptionnelle de louer un espace de bureau haut de gamme dans un bâtiment de caractère de classe A entièrement rénové, stratégiquement situé dans le dynamique quartier de divertissement de Granville à Vancouver. Cette propriété de 70 961 pieds carrés sur 5 étages allie magistralement le charme historique à la sophistication moderne, avec des améliorations haut de gamme, des meubles élégants et un éclairage à la fine pointe de la technologie. L'atrium à concept ouvert à l'entrée crée une première impression saisissante.
- Le taux de location ne comprend pas les services publics, les services de bâtiment ou les dépenses immobilières.
- Entièrement construit comme Bureau standard
- Disposition du plan d’étage ouverte en général
- Convient pour 36 à 113 personnes
- 2 salles de conférence
- 65 postes de travail
- Peut être associé à un ou plusieurs espaces supplémentaires pour obtenir jusqu’à 56 546 pi² d’espace adjacent.
- Salle d’impression/Photocopie
- Salle de bains privée
- Salle d'équipe pour six personnes
- 10 salles d'équipe pour quatre personnes
- Petite kitchenette et espace détente
- Toilettes privées (hommes et femmes)
4e étage
| Taille | 14 557 pi² |
| Terme | Négociable |
| Taux de location | Sur demande |
| Utilisation de l’espace | Bureau |
| Aménagement | construction complète |
| Disponible | Maintenant |
929 Granville offre une opportunité exceptionnelle de louer un espace de bureau haut de gamme dans un immeuble de caractère de classe A entièrement rénové, stratégiquement situé dans le dynamique quartier de divertissement de Granville à Vancouver. Cette propriété de 70 961 pieds carrés sur 5 étages allie habilement charme historique et sophistication moderne, avec des améliorations haut de gamme, un mobilier élégant et un éclairage à la fine pointe de la technologie. L'atrium à concept ouvert à l'entrée crée une première impression saisissante.
- Le taux de location ne comprend pas les services publics, les services de bâtiment ou les dépenses immobilières.
- Entièrement construit comme Bureau standard
- Disposition du plan d’étage ouverte en général
- Convient pour 37 à 117 personnes
- 1 salle de conférence
- 70 postes de travail
- Peut être associé à un ou plusieurs espaces supplémentaires pour obtenir jusqu’à 56 546 pi² d’espace adjacent.
- Salle d’impression/Photocopie
- Salle de bains privée
- 10 salles d'équipe pour quatre personnes
- 2 salles d'équipe pour six personnes
- 8 salles téléphoniques
- Salles de bain privées (hommes et femmes)
- Petite kitchenette et espace détente
- Salle de bien-être
5e étage
| Taille | 14 547 pi² |
| Terme | Négociable |
| Taux de location | Sur demande |
| Utilisation de l’espace | Bureau |
| Aménagement | construction complète |
| Disponible | Maintenant |
929 Granville offre une occasion exceptionnelle de louer un espace de bureau haut de gamme dans un bâtiment de caractère de classe A entièrement rénové, stratégiquement situé dans le dynamique quartier de divertissement de Granville à Vancouver. Cette propriété de 70 961 pieds carrés sur 5 étages allie magistralement le charme historique à la sophistication moderne, avec des améliorations haut de gamme, des meubles élégants et un éclairage à la fine pointe de la technologie. L'atrium à concept ouvert à l'entrée crée une première impression saisissante.
- Le taux de location ne comprend pas les services publics, les services de bâtiment ou les dépenses immobilières.
- Entièrement construit comme Bureau standard
- Disposition du plan d’étage ouverte en général
- Convient pour 37 à 117 personnes
- 3 salles de conférence
- 71 postes de travail
- Peut être associé à un ou plusieurs espaces supplémentaires pour obtenir jusqu’à 56 546 pi² d’espace adjacent.
- 71 postes de travail
- 3 salles de conférence pour six personnes
- Salon et kitchenette
- Toilettes privées (hommes et femmes)
- Petite kitchenette et espace détente
- 11 salles d'équipe pour quatre personnes
Aperçu de la propriété
Situé dans le dynamique quartier Granville Entertainment District au centre-ville de Vancouver, le 929 Granville est un immeuble de bureaux créatif de classe A sur 5 étages, offrant une expérience haut de gamme dans un emplacement très recherché. Cet immeuble de bureaux de 70 961 pi² a fait l’objet d’une revalorisation complète mettant en valeur son architecture en briques et poutres apparentes.
- Ligne d'autobus
Faits sur la propriété
Sélectionner des locataires
- Étage
- Nom du locataire
- Secteur
- 1ᵉʳ
- Ardene
- Détaillant
- 1ᵉʳ
- Chit Chat Burger Bar
- Hébergement et services alimentaires
- Multiple
- Microsoft Corporation
- Information
- Multiple
- Spaces.
- Immobilier
Durabilité
Durabilité
Certification LEED Dirigé par le Conseil du bâtiment durable du Canada (CBDCA), le Leadership in Energy and Environmental Design (LEED) est un programme de certification des bâtiments écologiques axé sur la conception, la construction, l'exploitation et l'entretien de bâtiments, de maisons et de quartiers écologiques. Il vise à aider les propriétaires et les exploitants d'immeubles à être respectueux de l'environnement et à utiliser efficacement les ressources. La certification LEED est un symbole mondialement reconnu de réussite et de leadership en matière de développement durable. Pour obtenir la certification LEED, un projet gagne des points en respectant les conditions préalables et les crédits qui traitent du carbone, de l'énergie, de l'eau, des déchets, du transport, des matériaux, de la santé et de la qualité de l'environnement intérieur. Les projets passent par un processus de vérification et d'examen et se voient attribuer des points correspondant à un niveau de certification LEED: Platine (80+ points) Or (60-79 points) Argent (50-59 points) Certifié (40-49 points)
Présenté par
Tom Lee Building | 929 Granville St
Hmm, il semble y avoir eu une erreur lors de l’envoi de votre message. Veuillez réessayer.
Merci! Votre message a été envoyé.











