Votre courriel a été envoyé.
93 Stroud Green Rd Transfert de propriété disponible de 997 pi² • Londres N4 3PX



Certaines informations ont été traduites automatiquement.
FAITS SAILLANTS DE LA MISSION
- The unit is located on Stroud Green Road (A1 201) 0.7 miles from Finsbury Park Underground station.
- The premises also benefit from an excellent fit-out throughout and an external seating area to the front.
- By road, the premises are easily accessible to the A503 Seven Sisters Road and the A406 at Finchley.
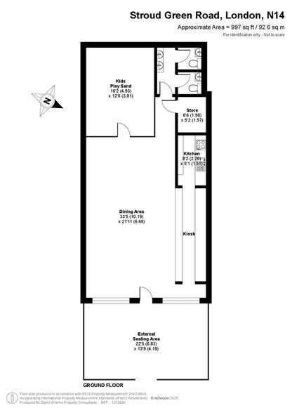
DISPONIBILITÉ DE L’ESPACE (1)
Afficher les taux de location en
- ESPACE
- TAILLE
- TERME
- TAUX DE LOCATION
- TYPE
| Espace | Taille | Terme | Taux de location | Type de loyer | ||
| RDC | 997 pi² | Sept. 2038 | 88,82 $ CAD/pi²/an 7,40 $ CAD/pi²/mois 88 555 $ CAD/an 7 380 $ CAD/mois | À déterminer |
RDC
The space compromises 997 sf of ground floor retail accommodation. The premises are available through a lease assignment from our client, who holds them under a lease for a term of 15 years from 28 September 2023 to 27 September 2038. Thus, there are approximately 13 years unexpired. The current passing rent is £48,000.00 per annum exclusive. The next rent review within the lease is on 28 September 2027.
- Classe d’utilisation : E
- Espace d'affectation disponible du locataire actuel
- Entièrement construit comme Espace pour un restaurant ou un café
- Situé en ligne avec d’autres commerces de détail
- Entreposage sécurisé
- Installations WC abandonnées
- Display frontage
- Open plan
- Good finish
Types de services
Le type de service et le montant du loyer que le locataire (preneur) est tenu de payer au propriétaire (bailleur) sur la durée du bail sont négociés avant la signature du bail par les deux parties. Le type de service varie selon les services fournis. Contactez le courtier inscripteur pour tout connaître sur les frais connexes et additionnels associés à chaque type de service.
1. Réparations et assurances complètes: Toutes les obligations de réparer et d’assurer la propriété (ou de sa part de la propriété) à l’interne comme à l’externe.
2. Réparations internes seulement: Le locataire est responsable des réparations internes seulement. Le propriétaire est responsable des réparations structurelles et externes.
3. Réparations et assurances internes: Le locataire est responsable des réparations internes et des assurances pour les parties internes de la propriété seulement. Le propriétaire est responsable des réparations structurelles et externes.
4. Négociable ou à déterminer: Cette option est utilisée lorsque le contact de location ne fournit pas le type de service.
SÉLECTIONNER DES LOCATAIRES À 93 STROUD GREEN RD, LONDRES, LND N4 3PX
- LOCATAIRE
- DESCRIPTION
- EMPLACEMENTS GB
- PORTÉE
- Finsbury Park Locksmiths
- Fabrication
- 1
- -
- Sun Flower Gallery
- Détaillant
- 1
- -
| LOCATAIRE | DESCRIPTION | EMPLACEMENTS GB | PORTÉE |
| Finsbury Park Locksmiths | Fabrication | 1 | - |
| Sun Flower Gallery | Détaillant | 1 | - |
FAITS SUR LA PROPRIÉTÉ
| Superficie totale disponible | 997 pi² | Superficie commerciale brute | 997 pi² |
| Type de propriété | Commerce de détail | Année de construction | 1930 |
| Sous-type de propriété | Commerce pied immeuble |
| Superficie totale disponible | 997 pi² |
| Type de propriété | Commerce de détail |
| Sous-type de propriété | Commerce pied immeuble |
| Superficie commerciale brute | 997 pi² |
| Année de construction | 1930 |
À PROPOS DE LA PROPRIÉTÉ
La propriété se compose d'un bâtiment mitoyen à usage mixte, de construction en maçonnerie, abritant un espace commercial au rez-de-chaussée et des logements résidentiels aux étages supérieurs. La propriété est située à proximité de l'A1 Archway Road, offrant un bon accès à la jonction 1 de l'autoroute M1, et se trouve à distance de marche de la station de métro Crouch Hill.
- Stores automatiques
- Espace d'entreposage
Présenté par
93 Stroud Green Rd
Hmm, il semble y avoir eu une erreur lors de l’envoi de votre message. Veuillez réessayer.
Merci! Votre message a été envoyé.



