Votre courriel a été envoyé.
Center for Novel Therapeutics 9310 Athena Cir 6 025–63 337 pi² d'espace disponible • Flex • 5 étoiles • La Jolla, CA 92037



Certaines informations ont été traduites automatiquement.
Caractéristiques
Tous les espaces disponibles(5)
Afficher les taux de location en
- Espace
- Taille
- Terme
- Taux de location
- Utilisation de l’espace
- Aménagement
- Disponible
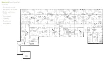
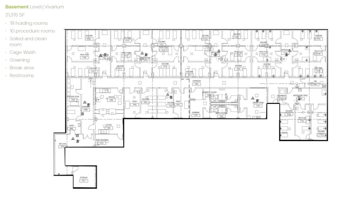
The facility includes 18 holding rooms, 10 procedure rooms, as well as a soiled and clean room. It also features a cage wash area, gowning area, break area, and restrooms. CNT is a fully amenitized lab building located on the UCSD campus. Amenities within the building include multiple common conference rooms to accommodate small meetings up to large all-hands meeting functions, fitness center with shower and locker facilities and a 1st floor restaurant. https://cntsandiego.com/about/
- Espace en excellent état
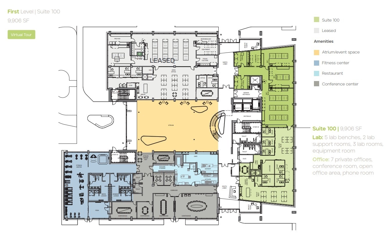
Suite 100 | 9,906 SF Lab: 5 lab benches, 2 lab support rooms, 3 lab rooms, equipment room Office: 7 private offices, 1 conference room, open office area, phone room CNT is a fully amenitized lab building located on the UCSD campus. Amenities within the building include multiple common conference rooms to accommodate small meetings up to large all-hands meeting functions, fitness center with shower and locker facilities and a 1st floor restaurant. https://cntsandiego.com/about/
- Espace en excellent état
- Laboratoire
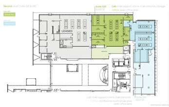
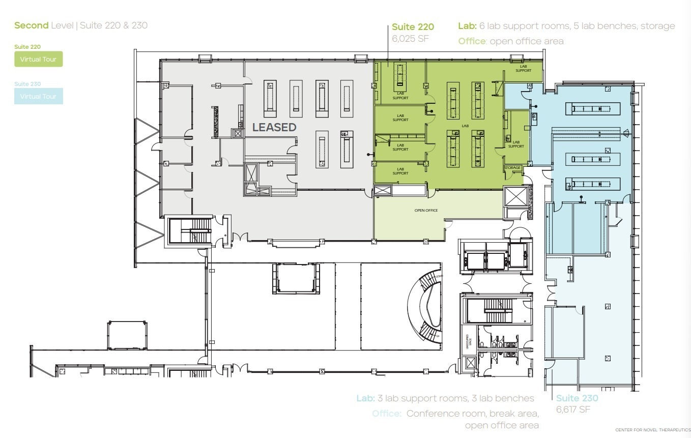
Lab: 6 lab support rooms, 5 lab benches, storage Office: open office area CNT is a fully amenitized lab building located on the UCSD campus. Amenities within the building include multiple common conference rooms to accommodate small meetings up to large all-hands meeting functions, fitness center with shower and locker facilities and a 1st floor restaurant. https://cntsandiego.com/about/
- Espace en excellent état
- Laboratoire
- Peut être associé à un ou plusieurs espaces supplémentaires pour obtenir jusqu’à 12 642 pi² d’espace adjacent.
Lab: 3 lab support rooms, 3 lab benches Office: 1 conference room, break area, open office area CNT is a fully amenitized lab building located on the UCSD campus. Amenities within the building include multiple common conference rooms to accommodate small meetings up to large all-hands meeting functions, fitness center with shower and locker facilities and a 1st floor restaurant. https://cntsandiego.com/about/
- Peut être associé à un ou plusieurs espaces supplémentaires pour obtenir jusqu’à 12 642 pi² d’espace adjacent.
- Laboratoire
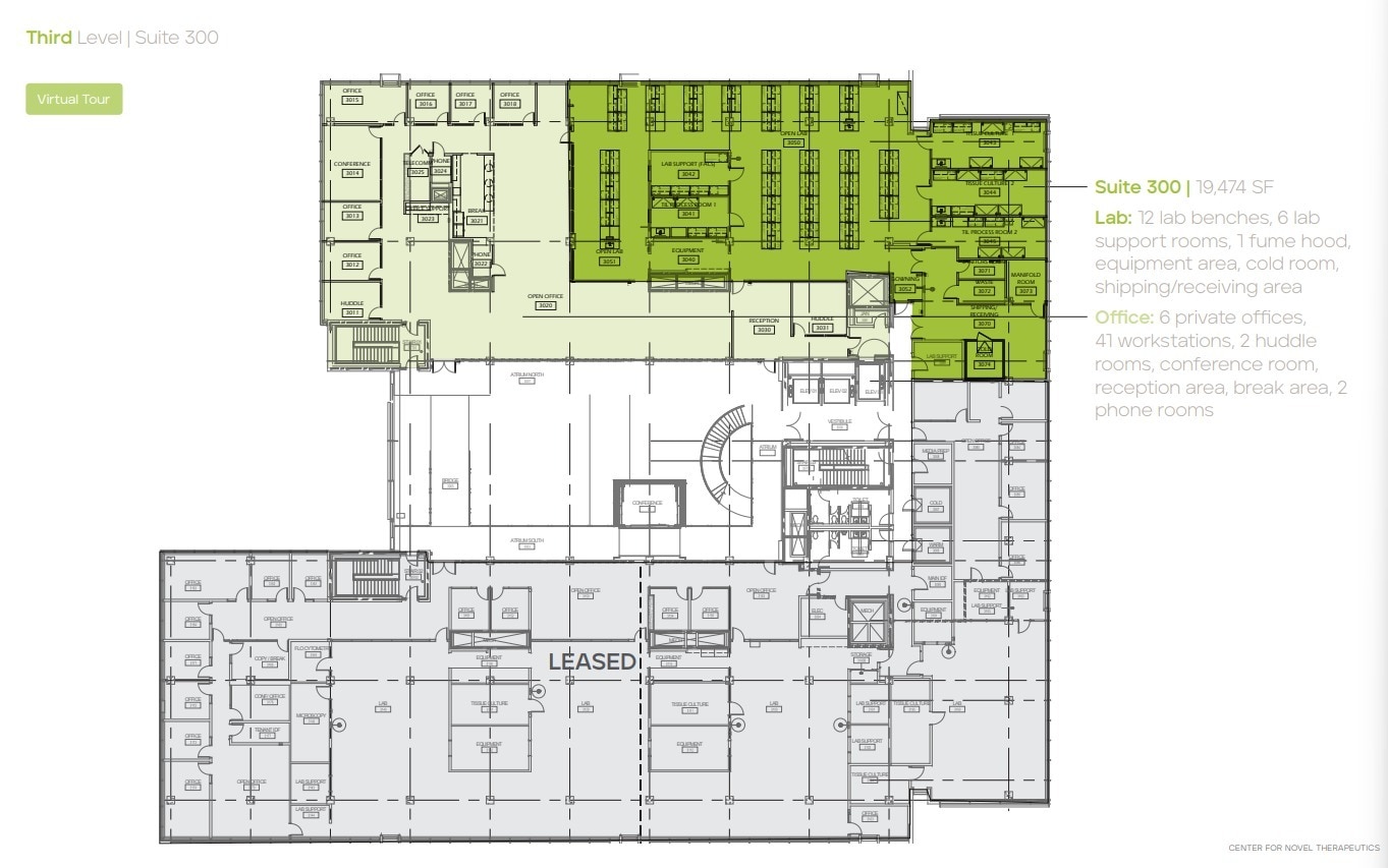
12 lab benches, 6 lab support rooms, equipment area, cold room, shipping/ receiving area CNT is a fully amenitized lab building located on the UCSD campus. Amenities within the building include multiple common conference rooms to accommodate small meetings up to large all-hands meeting functions, fitness center with shower and locker facilities and a 1st floor restaurant. https://cntsandiego.com/about/
- Espace en excellent état
- Laboratoire
- 6 bureaux privés
- 1 salle de conférence
| Espace | Taille | Terme | Taux de location | Utilisation de l’espace | Aménagement | Disponible |
| Sous-sol | 21 315 pi² | Négociable | Sur demande Sur demande Sur demande Sur demande | Flex | construction complète | Maintenant |
| 1er étage - 100 | 9 906 pi² | Négociable | Sur demande Sur demande Sur demande Sur demande | Flex | construction complète | Maintenant |
| 2e étage - 220 | 6 025 pi² | Négociable | Sur demande Sur demande Sur demande Sur demande | Flex | construction complète | Maintenant |
| 2e étage - 230 | 6 617 pi² | Négociable | Sur demande Sur demande Sur demande Sur demande | Flex | construction complète | Maintenant |
| 3e étage - 300 | 19 474 pi² | Négociable | Sur demande Sur demande Sur demande Sur demande | Flex | construction complète | Maintenant |
Sous-sol
| Taille |
| 21 315 pi² |
| Terme |
| Négociable |
| Taux de location |
| Sur demande Sur demande Sur demande Sur demande |
| Utilisation de l’espace |
| Flex |
| Aménagement |
| construction complète |
| Disponible |
| Maintenant |
1er étage - 100
| Taille |
| 9 906 pi² |
| Terme |
| Négociable |
| Taux de location |
| Sur demande Sur demande Sur demande Sur demande |
| Utilisation de l’espace |
| Flex |
| Aménagement |
| construction complète |
| Disponible |
| Maintenant |
2e étage - 220
| Taille |
| 6 025 pi² |
| Terme |
| Négociable |
| Taux de location |
| Sur demande Sur demande Sur demande Sur demande |
| Utilisation de l’espace |
| Flex |
| Aménagement |
| construction complète |
| Disponible |
| Maintenant |
2e étage - 230
| Taille |
| 6 617 pi² |
| Terme |
| Négociable |
| Taux de location |
| Sur demande Sur demande Sur demande Sur demande |
| Utilisation de l’espace |
| Flex |
| Aménagement |
| construction complète |
| Disponible |
| Maintenant |
3e étage - 300
| Taille |
| 19 474 pi² |
| Terme |
| Négociable |
| Taux de location |
| Sur demande Sur demande Sur demande Sur demande |
| Utilisation de l’espace |
| Flex |
| Aménagement |
| construction complète |
| Disponible |
| Maintenant |
Sous-sol
| Taille | 21 315 pi² |
| Terme | Négociable |
| Taux de location | Sur demande |
| Utilisation de l’espace | Flex |
| Aménagement | construction complète |
| Disponible | Maintenant |
The facility includes 18 holding rooms, 10 procedure rooms, as well as a soiled and clean room. It also features a cage wash area, gowning area, break area, and restrooms. CNT is a fully amenitized lab building located on the UCSD campus. Amenities within the building include multiple common conference rooms to accommodate small meetings up to large all-hands meeting functions, fitness center with shower and locker facilities and a 1st floor restaurant. https://cntsandiego.com/about/
- Espace en excellent état
1er étage - 100
| Taille | 9 906 pi² |
| Terme | Négociable |
| Taux de location | Sur demande |
| Utilisation de l’espace | Flex |
| Aménagement | construction complète |
| Disponible | Maintenant |
Suite 100 | 9,906 SF Lab: 5 lab benches, 2 lab support rooms, 3 lab rooms, equipment room Office: 7 private offices, 1 conference room, open office area, phone room CNT is a fully amenitized lab building located on the UCSD campus. Amenities within the building include multiple common conference rooms to accommodate small meetings up to large all-hands meeting functions, fitness center with shower and locker facilities and a 1st floor restaurant. https://cntsandiego.com/about/
- Espace en excellent état
- Laboratoire
2e étage - 220
| Taille | 6 025 pi² |
| Terme | Négociable |
| Taux de location | Sur demande |
| Utilisation de l’espace | Flex |
| Aménagement | construction complète |
| Disponible | Maintenant |
Lab: 6 lab support rooms, 5 lab benches, storage Office: open office area CNT is a fully amenitized lab building located on the UCSD campus. Amenities within the building include multiple common conference rooms to accommodate small meetings up to large all-hands meeting functions, fitness center with shower and locker facilities and a 1st floor restaurant. https://cntsandiego.com/about/
- Espace en excellent état
- Peut être associé à un ou plusieurs espaces supplémentaires pour obtenir jusqu’à 12 642 pi² d’espace adjacent.
- Laboratoire
2e étage - 230
| Taille | 6 617 pi² |
| Terme | Négociable |
| Taux de location | Sur demande |
| Utilisation de l’espace | Flex |
| Aménagement | construction complète |
| Disponible | Maintenant |
Lab: 3 lab support rooms, 3 lab benches Office: 1 conference room, break area, open office area CNT is a fully amenitized lab building located on the UCSD campus. Amenities within the building include multiple common conference rooms to accommodate small meetings up to large all-hands meeting functions, fitness center with shower and locker facilities and a 1st floor restaurant. https://cntsandiego.com/about/
- Peut être associé à un ou plusieurs espaces supplémentaires pour obtenir jusqu’à 12 642 pi² d’espace adjacent.
- Laboratoire
3e étage - 300
| Taille | 19 474 pi² |
| Terme | Négociable |
| Taux de location | Sur demande |
| Utilisation de l’espace | Flex |
| Aménagement | construction complète |
| Disponible | Maintenant |
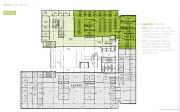
12 lab benches, 6 lab support rooms, equipment area, cold room, shipping/ receiving area CNT is a fully amenitized lab building located on the UCSD campus. Amenities within the building include multiple common conference rooms to accommodate small meetings up to large all-hands meeting functions, fitness center with shower and locker facilities and a 1st floor restaurant. https://cntsandiego.com/about/
- Espace en excellent état
- 6 bureaux privés
- Laboratoire
- 1 salle de conférence
Faits sur la propriété
Présenté par
Center for Novel Therapeutics | 9310 Athena Cir
Hmm, il semble y avoir eu une erreur lors de l’envoi de votre message. Veuillez réessayer.
Merci! Votre message a été envoyé.









