Se Connecter/S’inscrire
Votre courriel a été envoyé.
936 42nd Ave SE 2 326–25 426 pi² d'espace disponible • Industriel • Calgary, AB T2G 1Z2

Certaines informations ont été traduites automatiquement.
Caractéristiques
Hauteur libre
18’
Baies d’entrée
1
Portes de quai de chargement extérieures
5
Places de stationnement standard
42
Tous les espaces disponibles(1)
Afficher les taux de location en
- Espace
- Taille
- Terme
- Taux de location
- Utilisation de l’espace
- État
- Disponible
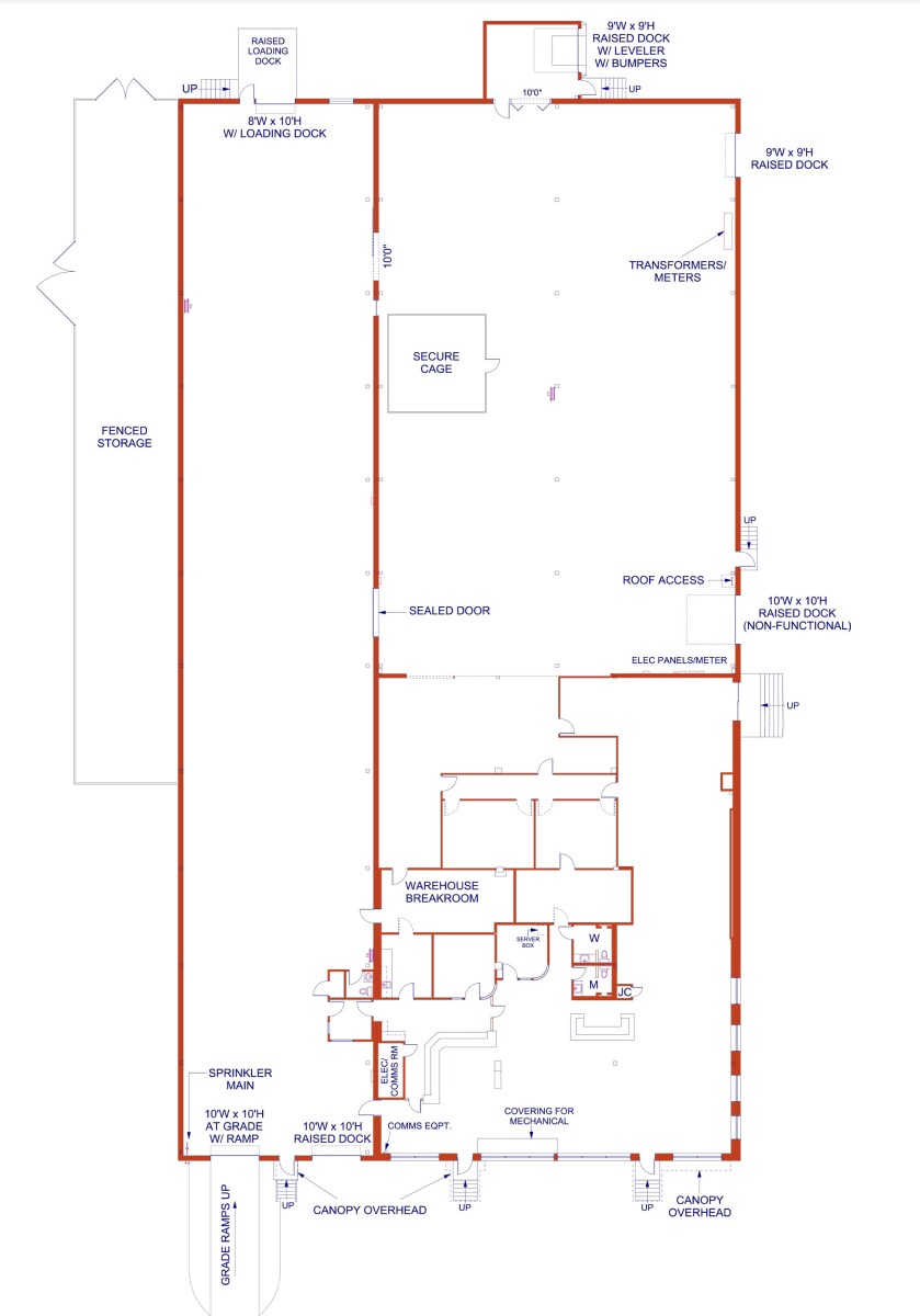
Emplacement central excellent avec exposition directe sur l'avenue 42 SE. Accès pour remorques de 53 pieds. Lumière naturelle dans l'entrepôt. Portes de chargement sur trois côtés du bâtiment.
- Le taux de location ne comprend pas les services publics, les services de bâtiment ou les dépenses immobilières.
- Espace en excellent état
- Cinq points d'accès au site
- Comprend 6 326 pi² d’espace de bureau dédié
- Salle de bains privée
- Toiture remplacée en 2023
| Espace | Taille | Terme | Taux de location | Utilisation de l’espace | État | Disponible |
| 1er étage | 2 326 à 25 426 pi² | Négociable | 9,95 $ CAD/pi²/an 0,83 $ CAD/pi²/mois 252 989 $ CAD/an 21 082 $ CAD/mois | Industriel | construction complète | Maintenant |
1er étage
| Taille |
| 2 326 à 25 426 pi² |
| Terme |
| Négociable |
| Taux de location |
| 9,95 $ CAD/pi²/an 0,83 $ CAD/pi²/mois 252 989 $ CAD/an 21 082 $ CAD/mois |
| Utilisation de l’espace |
| Industriel |
| État |
| construction complète |
| Disponible |
| Maintenant |
1 de 10
Vidéos
Visite extérieure 3D Matterport
Visite 3D Matterport
Photos
Vue depuis la rue
Rue
Carte
1er étage
| Taille | 2 326 à 25 426 pi² |
| Terme | Négociable |
| Taux de location | 9,95 $ CAD/pi²/an |
| Utilisation de l’espace | Industriel |
| État | construction complète |
| Disponible | Maintenant |
Emplacement central excellent avec exposition directe sur l'avenue 42 SE. Accès pour remorques de 53 pieds. Lumière naturelle dans l'entrepôt. Portes de chargement sur trois côtés du bâtiment.
- Le taux de location ne comprend pas les services publics, les services de bâtiment ou les dépenses immobilières.
- Comprend 6 326 pi² d’espace de bureau dédié
- Espace en excellent état
- Salle de bains privée
- Cinq points d'accès au site
- Toiture remplacée en 2023
Aperçu de la propriété
Immeuble de 25 426 Pi2 sur 1,24 acre dans le marché central
Faits sur l’installation entrepôt
Taille du bâtiment
25 426 pi²
Taille du lot
1,42 AC
Année de construction
1962
Construction
Maçonnerie
Système de gicleur
Humide
Alimentation électrique
Ampères: 400 Volts: 347-600
Zonage
I-G - Industrielle générale
1 1
1 de 2
Vidéos
Visite extérieure 3D Matterport
Visite 3D Matterport
Photos
Vue depuis la rue
Rue
Carte
1 de 1
Présenté par
936 42nd Ave SE
Vous êtes déjà membre? Connectez-vous
Hmm, il semble y avoir eu une erreur lors de l’envoi de votre message. Veuillez réessayer.
Merci! Votre message a été envoyé.
Votre message a été envoyé !
Activez votre compte LoopNet dès maintenant pour suivre les propriétés, recevoir des alertes en temps réel, gagner du temps sur vos demandes futures et bien plus encore.



