Votre courriel a été envoyé.
9361 Rue Wanklyn 4 500 pi² d'espace disponible • Industriel • Montréal, QC H8R 1Z2



Certaines informations ont été traduites automatiquement.
FAITS SAILLANTS
- Situé dans la banlieue de Lasalle
- Près de l'aéroport de Dorval
- Proximité des deux centres du centre-ville
CARACTÉRISTIQUES
TOUS LES ESPACES DISPONIBLES(1)
Afficher les taux de location en
- ESPACE
- TAILLE
- TERME
- TAUX DE LOCATION
- UTILISATION DE L’ESPACE
- ÉTAT
- DISPONIBLE
Un complexe industriel multi-locataires de 120 000 pieds carrés comprenant quatre (4) bâtiments. Situé dans la banlieue de Lasalle, à proximité du centre-ville ainsi que de l'aéroport de Dorval. Les bâtiments bénéficient de plafonds d'une hauteur de vingt (20) pieds et d'un stationnement abondant. Les superficies varient afin de répondre à une grande variété de besoins des locataires.
- Le taux inscrit peut ne pas comprendre certains services publics, les services de bâtiment et les dépenses immobilières.
- Stationnement disponible
- Situé dans la banlieue de Lasalle
- À proximité de l'aéroport de Dorval
| Espace | Taille | Terme | Taux de location | Utilisation de l’espace | État | Disponible |
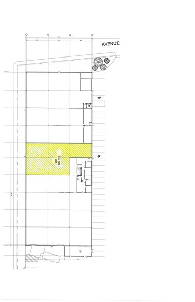
| 1er étage | 4 500 pi² | 1-10 ans | 14,50 $ CAD/pi²/an 1,21 $ CAD/pi²/mois 65 250 $ CAD/an 5 438 $ CAD/mois | Industriel | construction complète | Maintenant |
1er étage
| Taille |
| 4 500 pi² |
| Terme |
| 1-10 ans |
| Taux de location |
| 14,50 $ CAD/pi²/an 1,21 $ CAD/pi²/mois 65 250 $ CAD/an 5 438 $ CAD/mois |
| Utilisation de l’espace |
| Industriel |
| État |
| construction complète |
| Disponible |
| Maintenant |
1er étage
| Taille | 4 500 pi² |
| Terme | 1-10 ans |
| Taux de location | 14,50 $ CAD/pi²/an |
| Utilisation de l’espace | Industriel |
| État | construction complète |
| Disponible | Maintenant |
Un complexe industriel multi-locataires de 120 000 pieds carrés comprenant quatre (4) bâtiments. Situé dans la banlieue de Lasalle, à proximité du centre-ville ainsi que de l'aéroport de Dorval. Les bâtiments bénéficient de plafonds d'une hauteur de vingt (20) pieds et d'un stationnement abondant. Les superficies varient afin de répondre à une grande variété de besoins des locataires.
- Le taux inscrit peut ne pas comprendre certains services publics, les services de bâtiment et les dépenses immobilières.
- Situé dans la banlieue de Lasalle
- Stationnement disponible
- À proximité de l'aéroport de Dorval
APERÇU DE LA PROPRIÉTÉ
Complexe industriel de 120 000 locataires multiples comprenant quatre (4) immeubles. Situé dans la banlieue de Lasalle à proximité du centre-ville et de l'aéroport de Dorval. Les immeubles bénéficient d'une hauteur de plafond de vingt (20) pieds et d'un parc de stationnement abondant. Les tailles varient afin de répondre à une grande variété d'exigences des locataires.
FAITS SUR L’INSTALLATION ENTREPÔT
Présenté par
9361 Rue Wanklyn
Hmm, il semble y avoir eu une erreur lors de l’envoi de votre message. Veuillez réessayer.
Merci! Votre message a été envoyé.



