Votre courriel a été envoyé.
9436 Baltimore National Pike 1 300–5 015 pi² d'espace disponible • Commerce de détail • Ellicott City, MD 21042


Certaines informations ont été traduites automatiquement.
Faits saillants
- Utilisations proposées : QSR national, service de détail (physiothérapie, salon de manucure, salon de coiffure, etc.)
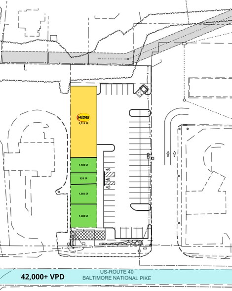
- 1 300-5 015 pieds carrés disponibles
- 42 000 VPJ
- Nouvelle construction
- Peut être désemparé en 3 espaces
- Corridor de vente au détail prospère, très accessible à partir des points 40 et 29
Disponibilité de l’espace (1)
Afficher les taux de location en
- Espace
- Taille
- Terme
- Taux de location
- Type de loyer
| Espace | Taille | Terme | Taux de location | Type de loyer | ||
| 1er étage | 1 300 à 5 015 pi² | Négociable | Sur demande Sur demande Sur demande Sur demande | Négociable |
1er étage
A great opportunity on the sought after Ellicott City Route 40 corridor. This New Retail Center will allow up to 5,015 Sq Ft Available. High income families in the area with available disposable income. Ellicott City Route 40 has extremely strong daytime traffic of over 42,000 VPD along with the high available and disposable income provides a robust and stable customer base for any retail environment. Modern building with high ceilings will provide an appealing and energy efficient space which will be available and customizable to the needs of any particular tenant. This site offer easy on/off access to Route 40 and provides great frontage and visibility off this heavily trafficked corridor. Any retailer's customer base will appreciate the easy access to Route 40 from Interstate 70 or Route 29.
- Espace en excellent état
- Prime Route 40 Location
- Strong Traffic Counts
- Affluent trade area
- Flexible retail space
- Modern, efficient design
Types de loyers
Le type et le montant du loyer que le locataire (preneur) est tenu de payer au propriétaire (bailleur) sur la durée du bail sont négociés avant la signature du bail par les deux parties. Le type de loyer varie selon les services fournis. Par exemple, le prix d’un loyer hypernet est habituellement inférieur à celui d’un bail à service complet puisque le locataire est tenu d’assumer des dépenses additionnelles par rapport au loyer de base. Contactez le courtier inscripteur pour tout connaître sur les frais connexes et additionnels associés à chaque type de loyer.
1. Service complet: Un taux de location qui comprend des services standards liés à l’immeuble fournis par le propriétaire dans le cadre d’une location annuelle de base.
2. Loyer supernet: Le locataire paie seulement deux des frais de l’immeuble. Le propriétaire et le locataire déterminent ces frais spécifiques avant la signature du bail.
3. Loyer hypernet: Un bail en vertu duquel le locataire est responsable de tous les frais liés à sa part proportionnelle d’occupation de l’immeuble.
4. Brut modifié: Le loyer brut modifié désigne un type général de taux de location dans lequel le locataire est habituellement responsable de sa part proportionnelle d’un ou de plusieurs frais. C’est le propriétaire qui paie les frais restants. Considérez les structures tarifaires courantes suivantes applicables aux loyers bruts modifiés: 4. Plus les services: Un type de bail brut modifié suivant lequel le locataire est responsable de sa part proportionnelle des coûts des services publics, en plus du loyer. 4. Plus le nettoyage: Un type de bail brut modifié suivant lequel le locataire est responsable de sa part proportionnelle des coûts de nettoyage, en plus du loyer. 4. Plus l'électricité: Un type de bail brut modifié suivant lequel le locataire est responsable de sa part proportionnelle des coûts d’électricité, en plus du loyer. 4. Plus l’électricité et le nettoyage: Un type de bail brut modifié dans lequel le locataire est responsable de sa part proportionnelle des coûts d’électricité et de nettoyage, en plus du loyer. 4. Plus les services publics et le nettoyage: Un type de bail brut modifié dans lequel le locataire est responsable de sa part proportionnelle des coûts des services publics et de nettoyage, en plus du loyer. 4. Bail industriel brut: Un type de bail brut modifié dans lequel le locataire paie un ou plusieurs des frais, en plus du loyer. Le propriétaire et le locataire déterminent ces frais spécifiques avant la signature du bail.
5. L’électricité est à la charge du locataire: Le propriétaire paie pour tous les services et le locataire est responsable de sa propre utilisation de l’éclairage et des prises électriques dans l’espace qu’il occupe.
6. Négociable ou sur demande: Cette option est utilisée lorsque le contact de location ne précise pas le type de loyer ou de service.
7. À déterminer: À déterminer ; utilisé pour les immeubles dont le type de services ou de loyer n’est pas connu, souvent quand l’immeuble n’est pas encore construit.
Faits sur la propriété
| Superficie totale disponible | 5 015 pi² | Année de construction | 2027 |
| Min. divisible | 1 300 pi² | Ratio de stationnement | 5,68/1 000 pi² |
| Type de propriété | Commerce de détail | État de la construction | En construction |
| Superficie commerciale brute | 10 030 pi² |
| Superficie totale disponible | 5 015 pi² |
| Min. divisible | 1 300 pi² |
| Type de propriété | Commerce de détail |
| Superficie commerciale brute | 10 030 pi² |
| Année de construction | 2027 |
| Ratio de stationnement | 5,68/1 000 pi² |
| État de la construction | En construction |
À propos de la propriété
Une belle occasion dans le corridor recherché de la route 40 d'Ellicott City. Ce nouveau centre de vente au détail offrira jusqu'à 5 015 pieds carrés disponibles. Familles à revenu élevé dans la région ayant un revenu disponible disponible. La route 40 d'Ellicott City offre un trafic diurne extrêmement important de plus de 42 000 VPD, et le revenu disponible et disponible élevé offre une clientèle solide et stable pour tout environnement de détail. L'édifice moderne avec de hauts plafonds offrira un espace attrayant et éconergétique qui sera disponible et personnalisable selon les besoins de tout particulier locataire. Ce site offre un accès facile à la route 40 et offre une grande visibilité et une grande visibilité à l'extérieur de ce corridor très achalandé. La clientèle de tout détaillant : appréciez l'accès facile à la route 40 à partir de l'Interstate 70 ou de la Route 29.
- Affichage
- Climatisation
Principaux détaillants à proximité
Présenté par
9436 Baltimore National Pike
Hmm, il semble y avoir eu une erreur lors de l’envoi de votre message. Veuillez réessayer.
Merci! Votre message a été envoyé.



