Se Connecter/S’inscrire
Votre courriel a été envoyé.
Riverview Professional Offices Fresno, CA 93730 1 352–7 172 pi² d'espace disponible • Bureau



Certaines informations ont été traduites automatiquement.
Faits saillants du parc
- Propriété cachée loin des routes principales.
- Beau parc à bureaux.
- Beau mélange locataire dans la région.
- Forte circulation diurne.
- Situé sur N Fort Washington Rd.
- Forte circulation diurne
Faits sur le parc
| Superficie totale disponible | 7 172 pi² | Type de parc | Parc de bureaux |
| Superficie totale disponible | 7 172 pi² |
| Type de parc | Parc de bureaux |
Tous les espaces disponibles(3)
Afficher les taux de location en
Riverview Professional Offices
9477 N Fort Washington Rd
2 318 pi²
|
Sur demande
Sur demande
Sur demande
Sur demande
Sur demande
Sur demande
Type/classe de bâtiment
Bureau/B
Année de construction
2006
Taille du bâtiment
9 117 pi²
Hauteur du bâtiment
1 étage
Superficie de plancher typique
9 117 pi²
Stationnement
15 places
- Espace
- Taille
- Terme
- Taux de location
- Utilisation de l’espace
- Aménagement
- Disponible
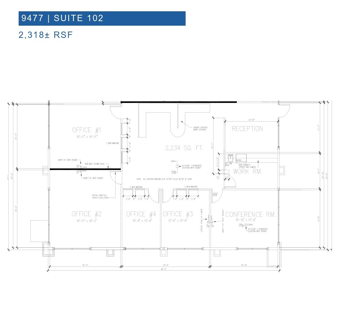
- Entièrement construit comme Bureau standard
- 1 salle de conférence
- 4 bureaux privés
- Aire de réception
| Espace | Taille | Terme | Taux de location | Utilisation de l’espace | Aménagement | Disponible |
| 1er étage, ste 102 | 2 318 pi² | Négociable | Sur demande Sur demande Sur demande Sur demande | Bureau | construction complète | Maintenant |
Riverview Professional Offices
9477 N Fort Washington Rd
2 318 pi²
|
Sur demande
Sur demande
Sur demande
Sur demande
Sur demande
Sur demande
Type/classe de bâtiment
Bureau/B
Année de construction
2006
Taille du bâtiment
9 117 pi²
Hauteur du bâtiment
1 étage
Superficie de plancher typique
9 117 pi²
Stationnement
15 places
9477 N Fort Washington Rd - 1er étage - ste 102
Taille
2 318 pi²
Terme
Négociable
Taux de location
Sur demande
Sur demande
Sur demande
Sur demande
Utilisation de l’espace
Bureau
Aménagement
construction complète
Disponible
Maintenant
Riverview Professional Offices
9499 N Fort Washington Rd
1 352 pi²
|
Sur demande
Sur demande
Sur demande
Sur demande
Sur demande
Sur demande
Type/classe de bâtiment
Bureau/B
Année de construction
2004
Taille du bâtiment
6 760 pi²
Hauteur du bâtiment
1 étage
Superficie de plancher typique
6 760 pi²
Stationnement
10 places
- Espace
- Taille
- Terme
- Taux de location
- Utilisation de l’espace
- Aménagement
- Disponible
- Entièrement construit comme Bureau standard
- Aire de réception
- 5 bureaux privés
- Salle de bains privée
| Espace | Taille | Terme | Taux de location | Utilisation de l’espace | Aménagement | Disponible |
| 1er étage, ste 102 | 1 352 pi² | Négociable | Sur demande Sur demande Sur demande Sur demande | Bureau | construction complète | Maintenant |
Riverview Professional Offices
9499 N Fort Washington Rd
1 352 pi²
|
Sur demande
Sur demande
Sur demande
Sur demande
Sur demande
Sur demande
Type/classe de bâtiment
Bureau/B
Année de construction
2004
Taille du bâtiment
6 760 pi²
Hauteur du bâtiment
1 étage
Superficie de plancher typique
6 760 pi²
Stationnement
10 places
9499 N Fort Washington Rd - 1er étage - ste 102
Taille
1 352 pi²
Terme
Négociable
Taux de location
Sur demande
Sur demande
Sur demande
Sur demande
Utilisation de l’espace
Bureau
Aménagement
construction complète
Disponible
Maintenant
Riverview Professional Offices
9495 N Fort Washington Rd
3 502 pi²
|
Sur demande
Sur demande
Sur demande
Sur demande
Sur demande
Sur demande
Type/classe de bâtiment
Bureau/B
Année de construction
2006
Taille du bâtiment
10 388 pi²
Hauteur du bâtiment
1 étage
Superficie de plancher typique
10 388 pi²
Stationnement
10 places
- Espace
- Taille
- Terme
- Taux de location
- Utilisation de l’espace
- Aménagement
- Disponible
3,502 square feet of office space is available for lease.
- Entièrement construit comme Bureau standard
- 2 bureaux privés
- 15 postes de travail
- Disposition du plan d’étage ouverte
- 2 salles de conférence
- Climatisation centrale
| Espace | Taille | Terme | Taux de location | Utilisation de l’espace | Aménagement | Disponible |
| 1er étage, ste 104 | 3 502 pi² | 1-20 ans | Sur demande Sur demande Sur demande Sur demande | Bureau | construction complète | Maintenant |
Riverview Professional Offices
9495 N Fort Washington Rd
3 502 pi²
|
Sur demande
Sur demande
Sur demande
Sur demande
Sur demande
Sur demande
Type/classe de bâtiment
Bureau/B
Année de construction
2006
Taille du bâtiment
10 388 pi²
Hauteur du bâtiment
1 étage
Superficie de plancher typique
10 388 pi²
Stationnement
10 places
9495 N Fort Washington Rd - 1er étage - ste 104
Taille
3 502 pi²
Terme
1-20 ans
Taux de location
Sur demande
Sur demande
Sur demande
Sur demande
Utilisation de l’espace
Bureau
Aménagement
construction complète
Disponible
Maintenant
1 de 1
Vidéos
Visite extérieure 3D Matterport
Visite 3D Matterport
Photos
Vue depuis la rue
Rue
Carte
9477 N Fort Washington Rd - 1er étage - ste 102
| Taille | 2 318 pi² |
| Terme | Négociable |
| Taux de location | Sur demande |
| Utilisation de l’espace | Bureau |
| Aménagement | construction complète |
| Disponible | Maintenant |
- Entièrement construit comme Bureau standard
- 4 bureaux privés
- 1 salle de conférence
- Aire de réception
1 de 1
Vidéos
Visite extérieure 3D Matterport
Visite 3D Matterport
Photos
Vue depuis la rue
Rue
Carte
9499 N Fort Washington Rd - 1er étage - ste 102
| Taille | 1 352 pi² |
| Terme | Négociable |
| Taux de location | Sur demande |
| Utilisation de l’espace | Bureau |
| Aménagement | construction complète |
| Disponible | Maintenant |
- Entièrement construit comme Bureau standard
- 5 bureaux privés
- Aire de réception
- Salle de bains privée
9495 N Fort Washington Rd - 1er étage - ste 104
| Taille | 3 502 pi² |
| Terme | 1-20 ans |
| Taux de location | Sur demande |
| Utilisation de l’espace | Bureau |
| Aménagement | construction complète |
| Disponible | Maintenant |
3,502 square feet of office space is available for lease.
- Entièrement construit comme Bureau standard
- Disposition du plan d’étage ouverte
- 2 bureaux privés
- 2 salles de conférence
- 15 postes de travail
- Climatisation centrale
Sélectionner des locataires à cette propriété
- Étage
- Nom du locataire
- Secteur
- 1ᵉʳ
- All Star Lending
- Immobilier
- 1ᵉʳ
- Calpine Containers Inc
- Fabrication
- 1ᵉʳ
- Chad J Anderson Inc
- Soins de santé et assistance sociale
- 1ᵉʳ
- Got Sleep
- -
- 1ᵉʳ
- Justin Mostes
- Administration publique
- 1ᵉʳ
- State Farm
- Finance et assurances
Aperçu du parc
Ce complexe de bureaux d'un étage de style toscan offre un emplacement idéal au nord-est de Fresno, offrant une flexibilité aux utilisateurs et un environnement de travail professionnel silencieux.
Assez praticable à pied
50/100
Exceptionnellement facile d’accès en voiture
100/100
Transports en commun très limités
10/100
Exceptionnellement praticable à vélo
90/100
1 de 24
Vidéos
Visite extérieure 3D Matterport
Visite 3D Matterport
Photos
Vue depuis la rue
Rue
Carte
Présenté par
Riverview Professional Offices | Fresno, CA 93730
Vous êtes déjà membre? Connectez-vous
Hmm, il semble y avoir eu une erreur lors de l’envoi de votre message. Veuillez réessayer.
Merci! Votre message a été envoyé.





