Se Connecter/S’inscrire
Votre courriel a été envoyé.
957 Turnpike st
Canton, MA 02021
Rear Lot, 957 Turnpike · Terrain À louer


Certaines informations ont été traduites automatiquement.
Aperçu de la propriété
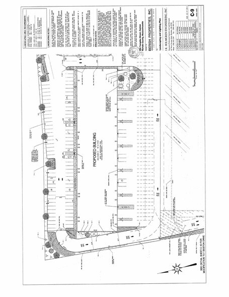
Ce site a été conçu pour un entrepôt à locataires multiples de 40 000 SF. Le locateur construira en fonction d'un besoin précis ou louera le lot pour entreposage ou cour de pose
Faits sur la propriété
| Superficie totale disponible | 3,50 AC | Utilisation proposée | Entrepôt |
| Type de propriété | Terrain | Rues transversales | New Boston |
| Sous-type de propriété | Terrain commercial |
| Superficie totale disponible | 3,50 AC |
| Type de propriété | Terrain |
| Sous-type de propriété | Terrain commercial |
| Utilisation proposée | Entrepôt |
| Rues transversales | New Boston |
1 de 3
Vidéos
Visite extérieure 3D Matterport
Visite 3D Matterport
Photos
Vue depuis la rue
Rue
Carte
