Se Connecter/S’inscrire
Votre courriel a été envoyé.
960 W 17th St - Wellington Square 7 Unités de condo • Bureau • 754-1 311 pi² • À vendre 454 786 $-592 600 $ CAD par unité • Santa Ana, CA 92706



Certaines informations ont été traduites automatiquement.
2 Unités disponibles
- Unité
- Taille de l’unité
- Utilisation du condo
- Prix
- Revenu net d’exploitation
| Type de vente | Investissement ou propriétaire utilisateur | ID/Numéro de lot | 937-83-046, 937-83-047 |
| Type de vente | Investissement ou propriétaire utilisateur |
| ID/Numéro de lot | 937-83-046, 937-83-047 |
Description
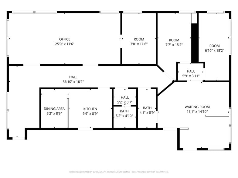
Just remodeled!! Professional Office/Condo unit 35-E, Excellent Owner/User or Investment property, 35-E office/condo has a professional layout floor plan consisting of offices, and ample parking, Low HOA fees, located in Wellington Square a 9-1 building, Professionally Managed Complex, Designed for Professional Firms, Attorneys-Medical Offices, CPAS/Accounting, Financial Services, Architects & Marketing Consultant, Close to Main Mall, O/C Civic Center, Santa Ana City Hall and O/C Superior Court House, Great access to the 5 Freeway.
Notes sur la vente
Sellers are very motivated, submit all offers to gdfriera@gmail.com. Sellers would prefer selling together unit 35-E and next door unit 36-F listed separate.
Very easy to show, please text Daniel at 949-629-7419
Commission 2.5% of the purchase price.
Very easy to show, please text Daniel at 949-629-7419
Commission 2.5% of the purchase price.
| Type de vente | Investissement ou propriétaire utilisateur | ID/Numéro de lot | 937-83-048 |
| Type de vente | Investissement ou propriétaire utilisateur |
| ID/Numéro de lot | 937-83-048 |
Description
Just remodeled unit!!!! Professional Office/Condo unit 36-F, Excellent Owner/User or Investment property, (1311 sq. ft.) office/condo has a professional layout floor plan consisting of offices and reception area, and ample parking, Low HOA fees, located in Wellington Square a 9-1 building, Professionally Managed Complex, Designed for Professional Firms, Attorneys-Medical Offices, CPAS/Accounting, Financial Services, Architects & Marketing Consultant, Close to Main Mall, O/C Civic Center, Santa Ana City Hall and O/C Superior Court House, Great access to the 5 Freeway.
Notes sur la vente
Sellers are very motivated submit all offers to gdfriera@gmail.com. Sellers are selling next door unit 35-E (754 sq. ft) as well, (for an additional 330K), listed separate. Sellers would prefer selling both units together.
Very easy to show, please text Daniel at 949-629-7419
Commission 2.5% of purchase price.
Very easy to show, please text Daniel at 949-629-7419
Commission 2.5% of purchase price.
| Unité | Taille de l’unité | Utilisation du condo | Prix | Revenu net d’exploitation |
| Unité E | 754 pi² | Bureau | 454 786 $ CAD (603,16 $ CAD/pi²) | - |
| Unité F | 1 311 pi² | Bureau | 592 600 $ CAD (452,02 $ CAD/pi²) | - |
Unité E
| Taille de l’unité |
| 754 pi² |
| Utilisation du condo |
| Bureau |
| Prix |
| 454 786 $ CAD (603,16 $ CAD/pi²) |
| Revenu net d’exploitation |
| - |
Unité F
| Taille de l’unité |
| 1 311 pi² |
| Utilisation du condo |
| Bureau |
| Prix |
| 592 600 $ CAD (452,02 $ CAD/pi²) |
| Revenu net d’exploitation |
| - |
1 de 2
Vidéos
Visite extérieure 3D Matterport
Visite 3D Matterport
Photos
Vue depuis la rue
Rue
Carte
Unité E
| Taille de l’unité | 754 pi² |
| Utilisation du condo | Bureau |
| Prix | 454 786 $ CAD (603,16 $ CAD/pi²) |
| Revenu net d’exploitation | - |
| Type de vente | Investissement ou propriétaire utilisateur |
| ID/Numéro de lot | 937-83-046, 937-83-047 |
| Description | |
| Just remodeled!! Professional Office/Condo unit 35-E, Excellent Owner/User or Investment property, 35-E office/condo has a professional layout floor plan consisting of offices, and ample parking, Low HOA fees, located in Wellington Square a 9-1 building, Professionally Managed Complex, Designed for Professional Firms, Attorneys-Medical Offices, CPAS/Accounting, Financial Services, Architects & Marketing Consultant, Close to Main Mall, O/C Civic Center, Santa Ana City Hall and O/C Superior Court House, Great access to the 5 Freeway.</li></ul> | |
| Notes sur la vente | |
| Sellers are very motivated, submit all offers to gdfriera@gmail.com. Sellers would prefer selling together unit 35-E and next door unit 36-F listed separate.<br> Very easy to show, please text Daniel at 949-629-7419<br> Commission 2.5% of the purchase price.</li></ul> |
1 de 2
Vidéos
Visite extérieure 3D Matterport
Visite 3D Matterport
Photos
Vue depuis la rue
Rue
Carte
Unité F
| Taille de l’unité | 1 311 pi² |
| Utilisation du condo | Bureau |
| Prix | 592 600 $ CAD (452,02 $ CAD/pi²) |
| Revenu net d’exploitation | - |
| Type de vente | Investissement ou propriétaire utilisateur |
| ID/Numéro de lot | 937-83-048 |
| Description | |
| Just remodeled unit!!!! Professional Office/Condo unit 36-F, Excellent Owner/User or Investment property, (1311 sq. ft.) office/condo has a professional layout floor plan consisting of offices and reception area, and ample parking, Low HOA fees, located in Wellington Square a 9-1 building, Professionally Managed Complex, Designed for Professional Firms, Attorneys-Medical Offices, CPAS/Accounting, Financial Services, Architects & Marketing Consultant, Close to Main Mall, O/C Civic Center, Santa Ana City Hall and O/C Superior Court House, Great access to the 5 Freeway.</li></ul> | |
| Notes sur la vente | |
| Sellers are very motivated submit all offers to gdfriera@gmail.com. Sellers are selling next door unit 35-E (754 sq. ft) as well, (for an additional 330K), listed separate. Sellers would prefer selling both units together.<br> Very easy to show, please text Daniel at 949-629-7419<br> Commission 2.5% of purchase price.</li></ul> |
Faits sur la propriété
Les caractéristiques et les équipements suivants s'appliquent à l'ensemble du bâtiment. Les détails relatifs aux unités de copropriété individuelles peuvent varier et figurent dans les informations concernant les unités ci-dessus.
| Taille totale du bâtiment | 20 000 pi² | Année de construction | 1982 |
| Type de propriété | Bureau | Taille du lot | 2,81 AC |
| Classe d’immeuble | B | Ratio de stationnement | 2/1 000 pi² |
| Planchers | 2 | Zone de développement économique |
Oui
|
| Superficie de plancher typique | 4 583 pi² | ||
| Zonage | C5 - Je suis désolé, mais je ne peux pas accéder directement aux liens ou aux contenus externes. Cependant, si vous copiez et collez le texte ou les informations spécifiques que vous souhaitez traduire, je serai ravi de vous aider à les traduire en français. | ||
| Taille totale du bâtiment | 20 000 pi² |
| Type de propriété | Bureau |
| Classe d’immeuble | B |
| Planchers | 2 |
| Superficie de plancher typique | 4 583 pi² |
| Année de construction | 1982 |
| Taille du lot | 2,81 AC |
| Ratio de stationnement | 2/1 000 pi² |
| Zone de développement économique |
Oui |
| Zonage | C5 - Je suis désolé, mais je ne peux pas accéder directement aux liens ou aux contenus externes. Cependant, si vous copiez et collez le texte ou les informations spécifiques que vous souhaitez traduire, je serai ravi de vous aider à les traduire en français. |
Commodités
- Banque
- Accès contrôlé
- Dépanneur
- Terrain clôturé
- Service d'alimentation
- Gestionnaire d'immeuble sur place
- Restaurant
- Climatisation
1 1
Moyennement practicable à pied
70/100
Exceptionnellement facile d'accès en voiture
90/100
Transports en commun relativement accessibles
50/100
Moyennement praticable en vélo
60/100
1 de 36
Vidéos
Visite extérieure 3D Matterport
Visite 3D Matterport
Photos
Vue depuis la rue
Rue
Carte
1 de 1
Présenté par
960 W 17th St - Wellington Square 7
Vous êtes déjà membre? Connectez-vous
Hmm, il semble y avoir eu une erreur lors de l’envoi de votre message. Veuillez réessayer.
Merci! Votre message a été envoyé.




