Se Connecter/S’inscrire
Votre courriel a été envoyé.
Lyell Business Center 961-1029 Lyell Ave 32 678 pi² d'espace disponible • Flex • Rochester, NY 14606



Certaines informations ont été traduites automatiquement.
Caractéristiques
Hauteur libre
30’
Baies d’entrée
10
Portes de quai de chargement extérieures
4
Tous les espaces disponibles(1)
Afficher les taux de location en
- Espace
- Taille
- Terme
- Taux de location
- Utilisation de l’espace
- État
- Disponible
- Le taux de location ne comprend pas les services publics, les services de bâtiment ou les dépenses immobilières.
- 4 quais de chargement
- 10 accès plain-pied
| Espace | Taille | Terme | Taux de location | Utilisation de l’espace | État | Disponible |
| RDC | 32 678 pi² | Négociable | 7,47 $ CAD/pi²/an 0,62 $ CAD/pi²/mois 244 252 $ CAD/an 20 354 $ CAD/mois | Flex | - | Maintenant |
RDC
| Taille |
| 32 678 pi² |
| Terme |
| Négociable |
| Taux de location |
| 7,47 $ CAD/pi²/an 0,62 $ CAD/pi²/mois 244 252 $ CAD/an 20 354 $ CAD/mois |
| Utilisation de l’espace |
| Flex |
| État |
| - |
| Disponible |
| Maintenant |
1 de 1
Vidéos
Visite extérieure 3D Matterport
Visite 3D Matterport
Photos
Vue depuis la rue
Rue
Carte
RDC
| Taille | 32 678 pi² |
| Terme | Négociable |
| Taux de location | 7,47 $ CAD/pi²/an |
| Utilisation de l’espace | Flex |
| État | - |
| Disponible | Maintenant |
- Le taux de location ne comprend pas les services publics, les services de bâtiment ou les dépenses immobilières.
- 10 accès plain-pied
- 4 quais de chargement
Aperçu de la propriété
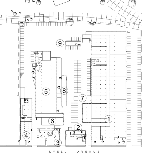
961 Lyell Ave in Rochester offers 32,678 SF of flex space on 9.93 acres, ideal for light industrial or distribution use. The property features 14'-30’ clear height, 10 drive-ins, and 4 exterior docks. Located in the Lyell Business Center, it provides excellent access to I-390, I-490, and Route 31, just minutes from Downtown Rochester and the airport—perfect for businesses seeking visibility and convenience.
Faits sur la propriété
Taille du bâtiment
270 193 pi²
Taille du lot
9,93 AC
Année de construction
1900
Zonage
M1
1 de 23
Vidéos
Visite extérieure 3D Matterport
Visite 3D Matterport
Photos
Vue depuis la rue
Rue
Carte
Présenté par
Lyell Business Center | 961-1029 Lyell Ave
Vous êtes déjà membre? Connectez-vous
Hmm, il semble y avoir eu une erreur lors de l’envoi de votre message. Veuillez réessayer.
Merci! Votre message a été envoyé.



