Se Connecter/S’inscrire
Votre courriel a été envoyé.
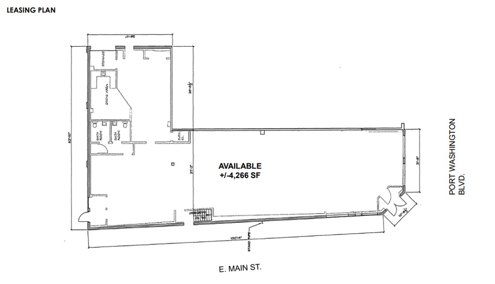
961-1029 Port Washington Blvd
Port Washington, NY 11050
Port Commons Shopping Center · Commerce de détail Propriété À louer
·
4 266 pi²


Certaines informations ont été traduites automatiquement.
FAITS SAILLANTS
- Restaurant/Retail with Parking Available
FAITS SUR LA PROPRIÉTÉ
| Superficie totale disponible | 4 266 pi² | Superficie totale du terrain | 3,04 AC |
| Type de propriété | Commerce de détail | Année de construction/rénovation | 1947/2011 |
| Superficie commerciale brute | 35 000 pi² | Ratio de stationnement | 4,29/1 000 pi² |
| Superficie totale disponible | 4 266 pi² |
| Type de propriété | Commerce de détail |
| Superficie commerciale brute | 35 000 pi² |
| Superficie totale du terrain | 3,04 AC |
| Année de construction/rénovation | 1947/2011 |
| Ratio de stationnement | 4,29/1 000 pi² |
À PROPOS DE LA PROPRIÉTÉ
HIGH BARRIER-TO-ENTRY MARKET
1 de 20
VIDÉOS
VISITE EXTÉRIEURE 3D MATTERPORT
VISITE 3D MATTERPORT
PHOTOS
VUE DEPUIS LA RUE
RUE
CARTE
