Votre courriel a été envoyé.
Certaines informations ont été traduites automatiquement.
Tous les espaces disponibles(4)
Afficher les taux de location en
- Espace
- Taille
- Terme
- Taux de location
- Utilisation de l’espace
- État
- Disponible
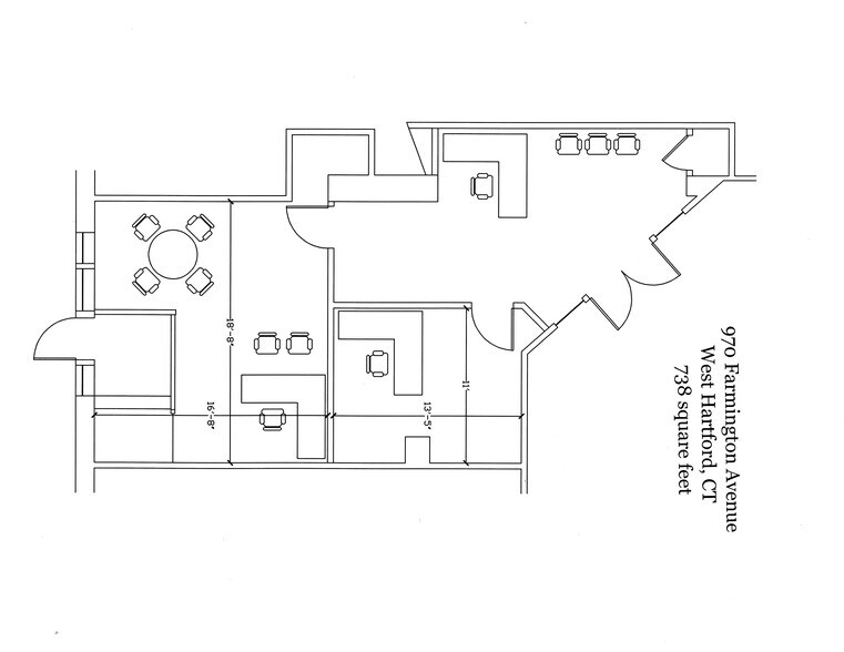
Prime West Hartford Center location. Open front area for reception with two private offices along the window line. Owner will paint and carpet for a five year lease at the asking rent. Additional build out money may be available for an increased rent assuming excellent credit and financials.
- Le taux comprend les services publics, les services de bâtiment et les dépenses immobilières.
- Disposition du plan d’étage ouverte en général
- 2 bureaux privés
- Aire de réception
- Plafond suspendu
- Entièrement construit comme Bureau de services professionnels
- Convient pour 4 à 6 personnes
- Climatisation centrale
- Complètement tapissé
Prime West Hartford Center location. Open area, storage/utility room and two private offices. Owner will paint and carpet for a five year lease at the asking rent. Additional build out money may be available for an increased rent assuming excellent credit and financials.
- Le taux comprend les services publics, les services de bâtiment et les dépenses immobilières.
- Disposition du plan d’étage ouverte en général
- 2 bureaux privés
- Air central et chauffage
- Lumière naturelle
- Entièrement construit comme Bureau de services professionnels
- Convient pour 4 à 6 personnes
- Espace en excellent état
- Plafond suspendu
- Plan ouvert
Third floor office space with a small reception area, one internal office, two windowed private offices and an in-suite restroom. Owner will paint and carpet for a five year lease at the asking rent. Additional build out money may be available for an increased rent assuming excellent credit and financials.
- Le taux comprend les services publics, les services de bâtiment et les dépenses immobilières.
- Convient pour 3 à 5 personnes
- 1 salle de conférence
- Peut être associé à un ou plusieurs espaces supplémentaires pour obtenir jusqu’à 1 868 pi² d’espace adjacent.
- Entièrement construit comme Bureau de services professionnels
- 2 bureaux privés
- Espace en excellent état
- Climatisation centrale
Great third floor office overlooking Farmington Avenue in the heart of West Hartford Center's retail and entertainment district. tons of windows. Great natural light. Reception area, private restroom and two large private offices. Owner will paint and carpet for a five year lease at the asking rent. Additional build out money may be available for an increased rent assuming excellent credit and financials.
- Le taux comprend les services publics, les services de bâtiment et les dépenses immobilières.
- Convient pour 3 à 8 personnes
- 2 postes de travail
- Air central et chauffage
- Plafond suspendu
- Entièrement construit comme Bureau standard
- 2 bureaux privés
- Peut être associé à un ou plusieurs espaces supplémentaires pour obtenir jusqu’à 1 868 pi² d’espace adjacent.
- Complètement tapissé
- Lumière naturelle
| Espace | Taille | Terme | Taux de location | Utilisation de l’espace | État | Disponible |
| 2e étage, ste 205A | 778 pi² | 5 ans | 43,76 $ CAD/pi²/an 3,65 $ CAD/pi²/mois 34 046 $ CAD/an 2 837 $ CAD/mois | Bureau | construction complète | Maintenant |
| 2e étage, ste 207 | 943 pi² | 5 ans | 43,76 $ CAD/pi²/an 3,65 $ CAD/pi²/mois 41 267 $ CAD/an 3 439 $ CAD/mois | Bureau | construction complète | 2026-06-01 |
| 3e étage, ste 304 | 988 pi² | 5 ans | 43,76 $ CAD/pi²/an 3,65 $ CAD/pi²/mois 43 236 $ CAD/an 3 603 $ CAD/mois | Bureau | construction complète | Maintenant |
| 3e étage, ste 305 | 880 pi² | 5 ans | 41,03 $ CAD/pi²/an 3,42 $ CAD/pi²/mois 36 103 $ CAD/an 3 009 $ CAD/mois | Bureau | construction complète | Maintenant |
2e étage, ste 205A
| Taille |
| 778 pi² |
| Terme |
| 5 ans |
| Taux de location |
| 43,76 $ CAD/pi²/an 3,65 $ CAD/pi²/mois 34 046 $ CAD/an 2 837 $ CAD/mois |
| Utilisation de l’espace |
| Bureau |
| État |
| construction complète |
| Disponible |
| Maintenant |
2e étage, ste 207
| Taille |
| 943 pi² |
| Terme |
| 5 ans |
| Taux de location |
| 43,76 $ CAD/pi²/an 3,65 $ CAD/pi²/mois 41 267 $ CAD/an 3 439 $ CAD/mois |
| Utilisation de l’espace |
| Bureau |
| État |
| construction complète |
| Disponible |
| 2026-06-01 |
3e étage, ste 304
| Taille |
| 988 pi² |
| Terme |
| 5 ans |
| Taux de location |
| 43,76 $ CAD/pi²/an 3,65 $ CAD/pi²/mois 43 236 $ CAD/an 3 603 $ CAD/mois |
| Utilisation de l’espace |
| Bureau |
| État |
| construction complète |
| Disponible |
| Maintenant |
3e étage, ste 305
| Taille |
| 880 pi² |
| Terme |
| 5 ans |
| Taux de location |
| 41,03 $ CAD/pi²/an 3,42 $ CAD/pi²/mois 36 103 $ CAD/an 3 009 $ CAD/mois |
| Utilisation de l’espace |
| Bureau |
| État |
| construction complète |
| Disponible |
| Maintenant |
2e étage, ste 205A
| Taille | 778 pi² |
| Terme | 5 ans |
| Taux de location | 43,76 $ CAD/pi²/an |
| Utilisation de l’espace | Bureau |
| État | construction complète |
| Disponible | Maintenant |
Prime West Hartford Center location. Open front area for reception with two private offices along the window line. Owner will paint and carpet for a five year lease at the asking rent. Additional build out money may be available for an increased rent assuming excellent credit and financials.
- Le taux comprend les services publics, les services de bâtiment et les dépenses immobilières.
- Entièrement construit comme Bureau de services professionnels
- Disposition du plan d’étage ouverte en général
- Convient pour 4 à 6 personnes
- 2 bureaux privés
- Climatisation centrale
- Aire de réception
- Complètement tapissé
- Plafond suspendu
2e étage, ste 207
| Taille | 943 pi² |
| Terme | 5 ans |
| Taux de location | 43,76 $ CAD/pi²/an |
| Utilisation de l’espace | Bureau |
| État | construction complète |
| Disponible | 2026-06-01 |
Prime West Hartford Center location. Open area, storage/utility room and two private offices. Owner will paint and carpet for a five year lease at the asking rent. Additional build out money may be available for an increased rent assuming excellent credit and financials.
- Le taux comprend les services publics, les services de bâtiment et les dépenses immobilières.
- Entièrement construit comme Bureau de services professionnels
- Disposition du plan d’étage ouverte en général
- Convient pour 4 à 6 personnes
- 2 bureaux privés
- Espace en excellent état
- Air central et chauffage
- Plafond suspendu
- Lumière naturelle
- Plan ouvert
3e étage, ste 304
| Taille | 988 pi² |
| Terme | 5 ans |
| Taux de location | 43,76 $ CAD/pi²/an |
| Utilisation de l’espace | Bureau |
| État | construction complète |
| Disponible | Maintenant |
Third floor office space with a small reception area, one internal office, two windowed private offices and an in-suite restroom. Owner will paint and carpet for a five year lease at the asking rent. Additional build out money may be available for an increased rent assuming excellent credit and financials.
- Le taux comprend les services publics, les services de bâtiment et les dépenses immobilières.
- Entièrement construit comme Bureau de services professionnels
- Convient pour 3 à 5 personnes
- 2 bureaux privés
- 1 salle de conférence
- Espace en excellent état
- Peut être associé à un ou plusieurs espaces supplémentaires pour obtenir jusqu’à 1 868 pi² d’espace adjacent.
- Climatisation centrale
3e étage, ste 305
| Taille | 880 pi² |
| Terme | 5 ans |
| Taux de location | 41,03 $ CAD/pi²/an |
| Utilisation de l’espace | Bureau |
| État | construction complète |
| Disponible | Maintenant |
Great third floor office overlooking Farmington Avenue in the heart of West Hartford Center's retail and entertainment district. tons of windows. Great natural light. Reception area, private restroom and two large private offices. Owner will paint and carpet for a five year lease at the asking rent. Additional build out money may be available for an increased rent assuming excellent credit and financials.
- Le taux comprend les services publics, les services de bâtiment et les dépenses immobilières.
- Entièrement construit comme Bureau standard
- Convient pour 3 à 8 personnes
- 2 bureaux privés
- 2 postes de travail
- Peut être associé à un ou plusieurs espaces supplémentaires pour obtenir jusqu’à 1 868 pi² d’espace adjacent.
- Air central et chauffage
- Complètement tapissé
- Plafond suspendu
- Lumière naturelle
Aperçu de la propriété
100 % emplacement dans West Hartford Center. Salon établi depuis longtemps. Possibilité de prêt à l'emploi.
Faits sur la propriété
Sélectionner des locataires
- Étage
- Nom du locataire
- Secteur
- Multiple
- Berkshire Hathaway HomeServices New England Proper
- Immobilier
- Multiple
- Gary E Russolillo PC
- Soins de santé et assistance sociale
- 1ᵉʳ
- Grafton Salon
- Services
- 1ᵉʳ
- Liberty Bank
- Finance et assurances
- 1ᵉʳ
- Pokemoto
- -
- 2ᵉ
- Ryan Marketing
- Services professionnels, scientifiques et techniques
- 2ᵉ
- Steier & McCormick LLC
- Services professionnels, scientifiques et techniques
- 1ᵉʳ
- Temkin Bruce LLC
- Services professionnels, scientifiques et techniques
Présenté par
The Central | 970 Farmington Ave
Hmm, il semble y avoir eu une erreur lors de l’envoi de votre message. Veuillez réessayer.
Merci! Votre message a été envoyé.







