Votre courriel a été envoyé.
Vista65 9712 65th Rd 1 000–60 500 pi² d'espace disponible • 4 étoiles • Rego Park, NY 11374



Certaines informations ont été traduites automatiquement.
Faits saillants
- Over 40,000 passing vehicles per day
- Open plan, flexible space.
- Loading Dock Available
- Highly Visibility retail corridor with 400 feet of frontage along Queens Boulevard
- Ground Floor Ceiling Height of 15' Lower Level ceiling heights of 13' 4th Floor Office ceiling heights 14' 5th floor ceiling heights 11'
- 15-Year ICAP secured
Tous les espaces disponibles(4)
Afficher les taux de location en
- Espace
- Taille
- Terme
- Taux de location
- Utilisation de l’espace
- Aménagement
- Disponible
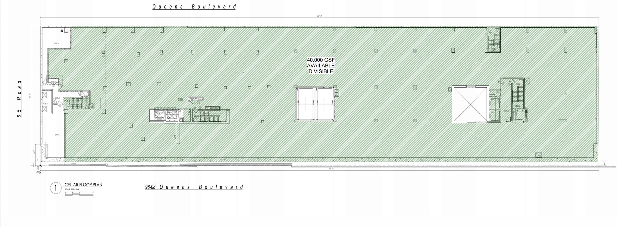
Approximately 40,000 square feet of divisible cellar space available beneath a prominent Queens Boulevard property. The space offers an expansive, open floor plate with clear column spacing, making it well-suited for a wide range of uses including storage, fitness, entertainment, institutional, production, or specialty commercial operations, subject to approvals. The cellar benefits from multiple elevator and stair access points, allowing for efficient circulation and operational flexibility. The layout supports subdivision into smaller footprints, accommodating both single large users and multiple tenants. Ceiling heights and structural configuration provide excellent adaptability for build-out, while the property’s location along Queens Boulevard offers convenient access to major thoroughfares and public transportation. This is a rare opportunity to secure a large-scale, flexible lower-level space in a dense, high-demand Queens corridor. Rare built to suit opportunity for tenants!
- Taux de location inscrit plus part proportionnelle des services publics
- Espace en excellent état
- Espace pour locataire majeur
- Hauts plafonds
- Éclairage d’urgence
- Cote de rendement énergétique - A
- Baie vitrée
- Situé en ligne avec d’autres commerces de détail
- Peut être associé à un ou plusieurs espaces supplémentaires pour obtenir jusqu’à 54 300 pi² d’espace adjacent.
- Vidéosurveillance
- Plafond exposé
- Plafonds finis: 13’2” - 16’10”
- Sous-sol
- Emplacement privilégié sur Queens Boulevard
Office space comprising of 1200 SF
- Convient pour 3 à 10 personnes
- Système de sécurité
- Entreposage de vélo
- Toilettes communes
- Climatisation centrale
- CVCA disponible après les heures de travail
- Éclairage accentué
- Plan ouvert
Flexible Retail space that can be divided or expanded with access to the cellar. The Landlord provides the build-out for the space.
- Taux de location inscrit plus part proportionnelle des services publics
- Espace en excellent état
- Espace pour locataire majeur
- Éclairage d’urgence
- Cote de rendement énergétique - A
- Détecteur de fumée
- Situé en ligne avec d’autres commerces de détail
- Peut être associé à un ou plusieurs espaces supplémentaires pour obtenir jusqu’à 54 300 pi² d’espace adjacent.
- Hauts plafonds
- Plafonds finis: 13’ - 17’
- Baie vitrée
- Sur la rue principale du boulevard Queens
The space is accessed with a dedicated commercial entrance. The finished ceiling height ranges from 13 to 14 feet 8 inches. The space also includes floor-to-ceiling windows. The landlord is willing to provide the full buildout. We have attached a rendering of the space for a Vanilla box build-out.
- Taux de location inscrit plus part proportionnelle des services publics
- Accès aux ascenseurs
- Cote de rendement énergétique - A
- Détecteur de fumée
- Flexible space. Easily to scale up.
- Plafonds finis: 13’ - 14’8”
- Système de sécurité
- Plan ouvert
- On a major thoroughfare - Queens Boulevard
- Abundance of natural light
| Espace | Taille | Terme | Taux de location | Utilisation de l’espace | Aménagement | Disponible |
| Niveau inférieur | 1 150 à 37 300 pi² | 5-20 ans | Sur demande Sur demande Sur demande Sur demande | Commerce de détail | espace cloisonné | Maintenant |
| Niveau inférieur, ste LL01 | 1 200 pi² | Négociable | Sur demande Sur demande Sur demande Sur demande | Bureau/Médical | - | Maintenant |
| RDC | 1 000 à 17 000 pi² | 5-20 ans | Sur demande Sur demande Sur demande Sur demande | Commerce de détail | espace cloisonné | Maintenant |
| 4e étage | 1 800 à 5 000 pi² | 5-20 ans | Sur demande Sur demande Sur demande Sur demande | Bureau/Médical | espace cloisonné | Maintenant |
Niveau inférieur
| Taille |
| 1 150 à 37 300 pi² |
| Terme |
| 5-20 ans |
| Taux de location |
| Sur demande Sur demande Sur demande Sur demande |
| Utilisation de l’espace |
| Commerce de détail |
| Aménagement |
| espace cloisonné |
| Disponible |
| Maintenant |
Niveau inférieur, ste LL01
| Taille |
| 1 200 pi² |
| Terme |
| Négociable |
| Taux de location |
| Sur demande Sur demande Sur demande Sur demande |
| Utilisation de l’espace |
| Bureau/Médical |
| Aménagement |
| - |
| Disponible |
| Maintenant |
RDC
| Taille |
| 1 000 à 17 000 pi² |
| Terme |
| 5-20 ans |
| Taux de location |
| Sur demande Sur demande Sur demande Sur demande |
| Utilisation de l’espace |
| Commerce de détail |
| Aménagement |
| espace cloisonné |
| Disponible |
| Maintenant |
4e étage
| Taille |
| 1 800 à 5 000 pi² |
| Terme |
| 5-20 ans |
| Taux de location |
| Sur demande Sur demande Sur demande Sur demande |
| Utilisation de l’espace |
| Bureau/Médical |
| Aménagement |
| espace cloisonné |
| Disponible |
| Maintenant |
Niveau inférieur
| Taille | 1 150 à 37 300 pi² |
| Terme | 5-20 ans |
| Taux de location | Sur demande |
| Utilisation de l’espace | Commerce de détail |
| Aménagement | espace cloisonné |
| Disponible | Maintenant |
Approximately 40,000 square feet of divisible cellar space available beneath a prominent Queens Boulevard property. The space offers an expansive, open floor plate with clear column spacing, making it well-suited for a wide range of uses including storage, fitness, entertainment, institutional, production, or specialty commercial operations, subject to approvals. The cellar benefits from multiple elevator and stair access points, allowing for efficient circulation and operational flexibility. The layout supports subdivision into smaller footprints, accommodating both single large users and multiple tenants. Ceiling heights and structural configuration provide excellent adaptability for build-out, while the property’s location along Queens Boulevard offers convenient access to major thoroughfares and public transportation. This is a rare opportunity to secure a large-scale, flexible lower-level space in a dense, high-demand Queens corridor. Rare built to suit opportunity for tenants!
- Taux de location inscrit plus part proportionnelle des services publics
- Situé en ligne avec d’autres commerces de détail
- Espace en excellent état
- Peut être associé à un ou plusieurs espaces supplémentaires pour obtenir jusqu’à 54 300 pi² d’espace adjacent.
- Espace pour locataire majeur
- Vidéosurveillance
- Hauts plafonds
- Plafond exposé
- Éclairage d’urgence
- Plafonds finis: 13’2” - 16’10”
- Cote de rendement énergétique - A
- Sous-sol
- Baie vitrée
- Emplacement privilégié sur Queens Boulevard
Niveau inférieur, ste LL01
| Taille | 1 200 pi² |
| Terme | Négociable |
| Taux de location | Sur demande |
| Utilisation de l’espace | Bureau/Médical |
| Aménagement | - |
| Disponible | Maintenant |
Office space comprising of 1200 SF
- Convient pour 3 à 10 personnes
- Climatisation centrale
- Système de sécurité
- CVCA disponible après les heures de travail
- Entreposage de vélo
- Éclairage accentué
- Toilettes communes
- Plan ouvert
RDC
| Taille | 1 000 à 17 000 pi² |
| Terme | 5-20 ans |
| Taux de location | Sur demande |
| Utilisation de l’espace | Commerce de détail |
| Aménagement | espace cloisonné |
| Disponible | Maintenant |
Flexible Retail space that can be divided or expanded with access to the cellar. The Landlord provides the build-out for the space.
- Taux de location inscrit plus part proportionnelle des services publics
- Situé en ligne avec d’autres commerces de détail
- Espace en excellent état
- Peut être associé à un ou plusieurs espaces supplémentaires pour obtenir jusqu’à 54 300 pi² d’espace adjacent.
- Espace pour locataire majeur
- Hauts plafonds
- Éclairage d’urgence
- Plafonds finis: 13’ - 17’
- Cote de rendement énergétique - A
- Baie vitrée
- Détecteur de fumée
- Sur la rue principale du boulevard Queens
4e étage
| Taille | 1 800 à 5 000 pi² |
| Terme | 5-20 ans |
| Taux de location | Sur demande |
| Utilisation de l’espace | Bureau/Médical |
| Aménagement | espace cloisonné |
| Disponible | Maintenant |
The space is accessed with a dedicated commercial entrance. The finished ceiling height ranges from 13 to 14 feet 8 inches. The space also includes floor-to-ceiling windows. The landlord is willing to provide the full buildout. We have attached a rendering of the space for a Vanilla box build-out.
- Taux de location inscrit plus part proportionnelle des services publics
- Plafonds finis: 13’ - 14’8”
- Accès aux ascenseurs
- Système de sécurité
- Cote de rendement énergétique - A
- Plan ouvert
- Détecteur de fumée
- On a major thoroughfare - Queens Boulevard
- Flexible space. Easily to scale up.
- Abundance of natural light
À propos de la propriété
9808 Queens Boulevard, entre 65th Road et 66th Avenue, Rego Park, Queens. Corridor commercial très visible avec 400 pieds de façade le long de Queens Boulevard Plus de 40 000 véhicules passent chaque jour Nouveau développement comprenant 186 unités de luxe Le projet inclut plus de 95 000 pieds carrés d'espace pour des installations médicales et communautaires Espaces commerciaux disponibles au rez-de-chaussée et au sous-sol pour location Espaces médicaux et de bureaux disponibles au 4e et 5e étage pour location. Toutes les divisions sont considérées.
Faits sur la propriété
| Superficie totale disponible | 60 500 pi² | Sous-type de propriété | Appartement |
| Nombre d’unités | 1 | Style d’appartement | De hauteur moyenne |
| Min. divisible | 1 000 pi² | Taille du bâtiment | 261 832 pi² |
| Max. contigu | 54 300 pi² | Année de construction | 2024 |
| Type de propriété | Immeuble residentiel |
| Superficie totale disponible | 60 500 pi² |
| Nombre d’unités | 1 |
| Min. divisible | 1 000 pi² |
| Max. contigu | 54 300 pi² |
| Type de propriété | Immeuble residentiel |
| Sous-type de propriété | Appartement |
| Style d’appartement | De hauteur moyenne |
| Taille du bâtiment | 261 832 pi² |
| Année de construction | 2024 |
Présenté par
Vista65 | 9712 65th Rd
Hmm, il semble y avoir eu une erreur lors de l’envoi de votre message. Veuillez réessayer.
Merci! Votre message a été envoyé.










