Votre courriel a été envoyé.
The Park - Huntersville 9725 Julian Clark Ave Terrain à louer de 1,81 acres • Terrain commercial • Huntersville, NC 28078



Certaines informations ont été traduites automatiquement.
Faits saillants
- Zoning: Suitable for Medical Outpatient development
- Ownership Position: Owner seeks to partner with a developer or tenant(s) for a build-to-suit project
- Accessibility: Immediate access to I-77 via Gilead Rd interchange
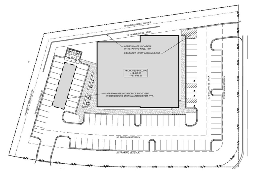
- Development Concept: ~14,000 SF Medical Outpatient Building (MOB)
- Proximity to Healthcare: Less than 1 mile from Novant Health Huntersville Medical Center
- Amenities: Surrounded by retail, dining, and multiple hotels for out-of-town clients, patients, and visiting staff
LOT Disponible
Afficher les taux de location en
| Taux de location |
|
Taille du lot | 1,81 AC |
| Durée du bail | 5 - 10 ans |
| Taux de location | |
| Durée du bail | 5 - 10 ans |
| Taille du lot | 1,81 AC |
The owner seeks to partner with a developer or tenant(s) through a build-to-suit arrangement. The site provides an opportunity to deliver a modern medical outpatient facility in a well-established medical corridor.
Aperçu de la propriété
Ce terrain d'angle de 1,81 acre (±78 844 pi²) situé dans The Park – Huntersville offre une opportunité exceptionnelle pour la construction d'un bâtiment médical (MOB) d'environ 14 000 pi². Le propriétaire du terrain cherche à collaborer avec un promoteur ou des locataires dans le cadre d'un projet sur mesure, ce qui en fait une option attrayante tant pour les utilisateurs-propriétaires que pour les investisseurs. Situé à moins d'un kilomètre du Novant Health Huntersville Medical Center et avec un accès direct à l'I-77 via Gilead Rd, le site garantit une excellente connectivité pour les patients et les prestataires de soins à travers Charlotte, Lake Norman et la région environnante. Implanté au cœur de l'un des principaux parcs d'affaires du nord de Mecklenburg, la propriété bénéficie d'un environnement professionnel entouré de bureaux d'entreprises, de prestataires de soins de santé, de restaurants, de commerces et de plusieurs hôtels qui accueillent patients et visiteurs. Grâce à sa position stratégique sur un coin très visible, son accessibilité remarquable et la demande croissante en soins de santé dans le corridor Huntersville/Lake Norman, ce site représente une opportunité d'investissement très intéressante pour un bâtiment médical.
Faits sur la propriété
| Superficie totale disponible | 1,81 AC | Utilisation proposée | |
| Type de propriété | Terrain | Rues transversales | Reese Blvd. West |
| Sous-type de propriété | Terrain commercial |
| Superficie totale disponible | 1,81 AC |
| Type de propriété | Terrain |
| Sous-type de propriété | Terrain commercial |
| Utilisation proposée | |
| Rues transversales | Reese Blvd. West |
Présenté par
The Park - Huntersville | 9725 Julian Clark Ave
Hmm, il semble y avoir eu une erreur lors de l’envoi de votre message. Veuillez réessayer.
Merci! Votre message a été envoyé.
