Votre courriel a été envoyé.
99 M St SE 99 M St SE 3 022–58 936 pi² d'espace disponible • Bureau • 4 étoiles • Washington, DC 20003



Certaines informations ont été traduites automatiquement.
Faits saillants
- Four levels of below-grade parking
- 4,750 SF rooftop terrace equipped with event lobby, restrooms and collaborative meeting spaces
- Close proximity to five parks and the Riverwalk Trail
- Circa, Wells Fargo & El Bebe restaurants on the ground floor
- 4,300 SF club-like fitness facility
- Immediate access to the Navy Yard & Ballpark
Tous les espaces disponibles(7)
Afficher les taux de location en
- Espace
- Taille
- Terme
- Taux de location
- Utilisation de l’espace
- Aménagement
- Disponible
Built out, second generation spec suite in great condition on the front corner of the building! Tons of glass for suite of this suite on the corner overlooking M Street.
- Le taux comprend les services publics, les services de bâtiment et les dépenses immobilières.
- Disposition du plan d’étage ouverte
- Entièrement construit comme Bureau standard
- Espace en excellent état
Brand new FURNISHED (or not - up to you!) high end spec suite available! Views along M Street https://my.matterport.com/show/?m=45gEA3yvSFy& - 4 offices - plenty of open collaboration space -8-10 person conference -large open pantry
- Le taux comprend les services publics, les services de bâtiment et les dépenses immobilières.
- 2 salles de conférence
- Espace en excellent état
- 4 bureaux privés
- 12 postes de travail
Available March 2027
Full floor opportunity. High end, existing co-working space. Full market concessions available for long term leases. Please see matterport here: https://my.matterport.com/show/?m=i2sDoJrU1en
- Le taux comprend les services publics, les services de bâtiment et les dépenses immobilières.
- 6 bureaux privés
- Peut être associé à un ou plusieurs espaces supplémentaires pour obtenir jusqu’à 47 097 pi² d’espace adjacent.
- Entièrement construit comme Bureau standard
- 7 salles de conférence
Suite is in Shell condition with windowline overlooking Cushing Pl, and can be combined with suite 950 for a contiguous block of 9,608 SF!
- Entièrement construit comme Bureau standard
- Peut être associé à un ou plusieurs espaces supplémentaires pour obtenir jusqu’à 47 097 pi² d’espace adjacent.
- Disposition du plan d’étage ouverte en général
Suite is in Shell condition overlooking First St, and can be combined with suite 925 for a contiguous block of 9,608 SF!
- Peut être associé à un ou plusieurs espaces supplémentaires pour obtenir jusqu’à 47 097 pi² d’espace adjacent.
Shell Condition. Please see the matterport here: https://my.matterport.com/models/EJcWk7DPV6L
- Le taux comprend les services publics, les services de bâtiment et les dépenses immobilières.
- Peut être associé à un ou plusieurs espaces supplémentaires pour obtenir jusqu’à 47 097 pi² d’espace adjacent.
- Disposition du plan d’étage ouverte
| Espace | Taille | Terme | Taux de location | Utilisation de l’espace | Aménagement | Disponible |
| 2e étage, ste 225 | 3 022 pi² | Négociable | 89,54 $ CAD/pi²/an 7,46 $ CAD/pi²/mois 270 582 $ CAD/an 22 549 $ CAD/mois | Bureau | construction complète | Maintenant |
| 4e étage, ste 425 | 3 549 pi² | Négociable | 90,92 $ CAD/pi²/an 7,58 $ CAD/pi²/mois 322 657 $ CAD/an 26 888 $ CAD/mois | Bureau | selon spécifications | 30 jours |
| 7e étage, ste 750 | 5 268 pi² | Négociable | Sur demande Sur demande Sur demande Sur demande | Bureau | - | 2027-03-01 |
| 8e étage, ste 800 | 22 094 pi² | Négociable | 93,67 $ CAD/pi²/an 7,81 $ CAD/pi²/mois 2 069 545 $ CAD/an 172 462 $ CAD/mois | Bureau | construction complète | 30 jours |
| 9e étage, ste 925 | 5 180 à 9 608 pi² | Négociable | Sur demande Sur demande Sur demande Sur demande | Bureau | construction complète | Maintenant |
| 9e étage, ste 950 | 4 428 à 9 608 pi² | Négociable | Sur demande Sur demande Sur demande Sur demande | Bureau | - | Maintenant |
| 10e étage, ste 1000 | 5 787 pi² | Négociable | 93,67 $ CAD/pi²/an 7,81 $ CAD/pi²/mois 542 068 $ CAD/an 45 172 $ CAD/mois | Bureau | espace cloisonné | Maintenant |
2e étage, ste 225
| Taille |
| 3 022 pi² |
| Terme |
| Négociable |
| Taux de location |
| 89,54 $ CAD/pi²/an 7,46 $ CAD/pi²/mois 270 582 $ CAD/an 22 549 $ CAD/mois |
| Utilisation de l’espace |
| Bureau |
| Aménagement |
| construction complète |
| Disponible |
| Maintenant |
4e étage, ste 425
| Taille |
| 3 549 pi² |
| Terme |
| Négociable |
| Taux de location |
| 90,92 $ CAD/pi²/an 7,58 $ CAD/pi²/mois 322 657 $ CAD/an 26 888 $ CAD/mois |
| Utilisation de l’espace |
| Bureau |
| Aménagement |
| selon spécifications |
| Disponible |
| 30 jours |
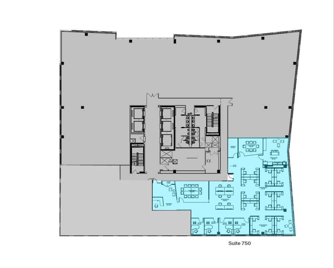
7e étage, ste 750
| Taille |
| 5 268 pi² |
| Terme |
| Négociable |
| Taux de location |
| Sur demande Sur demande Sur demande Sur demande |
| Utilisation de l’espace |
| Bureau |
| Aménagement |
| - |
| Disponible |
| 2027-03-01 |
8e étage, ste 800
| Taille |
| 22 094 pi² |
| Terme |
| Négociable |
| Taux de location |
| 93,67 $ CAD/pi²/an 7,81 $ CAD/pi²/mois 2 069 545 $ CAD/an 172 462 $ CAD/mois |
| Utilisation de l’espace |
| Bureau |
| Aménagement |
| construction complète |
| Disponible |
| 30 jours |
9e étage, ste 925
| Taille |
| 5 180 à 9 608 pi² |
| Terme |
| Négociable |
| Taux de location |
| Sur demande Sur demande Sur demande Sur demande |
| Utilisation de l’espace |
| Bureau |
| Aménagement |
| construction complète |
| Disponible |
| Maintenant |
9e étage, ste 950
| Taille |
| 4 428 à 9 608 pi² |
| Terme |
| Négociable |
| Taux de location |
| Sur demande Sur demande Sur demande Sur demande |
| Utilisation de l’espace |
| Bureau |
| Aménagement |
| - |
| Disponible |
| Maintenant |
10e étage, ste 1000
| Taille |
| 5 787 pi² |
| Terme |
| Négociable |
| Taux de location |
| 93,67 $ CAD/pi²/an 7,81 $ CAD/pi²/mois 542 068 $ CAD/an 45 172 $ CAD/mois |
| Utilisation de l’espace |
| Bureau |
| Aménagement |
| espace cloisonné |
| Disponible |
| Maintenant |
2e étage, ste 225
| Taille | 3 022 pi² |
| Terme | Négociable |
| Taux de location | 89,54 $ CAD/pi²/an |
| Utilisation de l’espace | Bureau |
| Aménagement | construction complète |
| Disponible | Maintenant |
Built out, second generation spec suite in great condition on the front corner of the building! Tons of glass for suite of this suite on the corner overlooking M Street.
- Le taux comprend les services publics, les services de bâtiment et les dépenses immobilières.
- Entièrement construit comme Bureau standard
- Disposition du plan d’étage ouverte
- Espace en excellent état
4e étage, ste 425
| Taille | 3 549 pi² |
| Terme | Négociable |
| Taux de location | 90,92 $ CAD/pi²/an |
| Utilisation de l’espace | Bureau |
| Aménagement | selon spécifications |
| Disponible | 30 jours |
Brand new FURNISHED (or not - up to you!) high end spec suite available! Views along M Street https://my.matterport.com/show/?m=45gEA3yvSFy& - 4 offices - plenty of open collaboration space -8-10 person conference -large open pantry
- Le taux comprend les services publics, les services de bâtiment et les dépenses immobilières.
- 4 bureaux privés
- 2 salles de conférence
- 12 postes de travail
- Espace en excellent état
7e étage, ste 750
| Taille | 5 268 pi² |
| Terme | Négociable |
| Taux de location | Sur demande |
| Utilisation de l’espace | Bureau |
| Aménagement | - |
| Disponible | 2027-03-01 |
Available March 2027
8e étage, ste 800
| Taille | 22 094 pi² |
| Terme | Négociable |
| Taux de location | 93,67 $ CAD/pi²/an |
| Utilisation de l’espace | Bureau |
| Aménagement | construction complète |
| Disponible | 30 jours |
Full floor opportunity. High end, existing co-working space. Full market concessions available for long term leases. Please see matterport here: https://my.matterport.com/show/?m=i2sDoJrU1en
- Le taux comprend les services publics, les services de bâtiment et les dépenses immobilières.
- Entièrement construit comme Bureau standard
- 6 bureaux privés
- 7 salles de conférence
- Peut être associé à un ou plusieurs espaces supplémentaires pour obtenir jusqu’à 47 097 pi² d’espace adjacent.
9e étage, ste 925
| Taille | 5 180 à 9 608 pi² |
| Terme | Négociable |
| Taux de location | Sur demande |
| Utilisation de l’espace | Bureau |
| Aménagement | construction complète |
| Disponible | Maintenant |
Suite is in Shell condition with windowline overlooking Cushing Pl, and can be combined with suite 950 for a contiguous block of 9,608 SF!
- Entièrement construit comme Bureau standard
- Disposition du plan d’étage ouverte en général
- Peut être associé à un ou plusieurs espaces supplémentaires pour obtenir jusqu’à 47 097 pi² d’espace adjacent.
9e étage, ste 950
| Taille | 4 428 à 9 608 pi² |
| Terme | Négociable |
| Taux de location | Sur demande |
| Utilisation de l’espace | Bureau |
| Aménagement | - |
| Disponible | Maintenant |
Suite is in Shell condition overlooking First St, and can be combined with suite 925 for a contiguous block of 9,608 SF!
- Peut être associé à un ou plusieurs espaces supplémentaires pour obtenir jusqu’à 47 097 pi² d’espace adjacent.
10e étage, ste 1000
| Taille | 5 787 pi² |
| Terme | Négociable |
| Taux de location | 93,67 $ CAD/pi²/an |
| Utilisation de l’espace | Bureau |
| Aménagement | espace cloisonné |
| Disponible | Maintenant |
Shell Condition. Please see the matterport here: https://my.matterport.com/models/EJcWk7DPV6L
- Le taux comprend les services publics, les services de bâtiment et les dépenses immobilières.
- Disposition du plan d’étage ouverte
- Peut être associé à un ou plusieurs espaces supplémentaires pour obtenir jusqu’à 47 097 pi² d’espace adjacent.
Aperçu de la propriété
Une propriété de premier ordre offrant une expérience client de classe mondiale et un engagement envers les normes de durabilité les plus élevées de l'industrie.L'immeuble : 220 000 SF/11 étages d'espace de bureau avec trophées 11 000+ SF d'espace de vente au détail de premier choix Plaque de plancher typique : 22 143 RSF 811 Hauteur du plafond fini : 30 x 45 baies de colonnes 4 niveaux de stationnement inférieur à 1/1 500 PSFLes commodités : Restaurant Circa au rez-de-chaussée 4 750 SF Terrasse sur le toit équipée d'un hall d'entrée, de toilettes et d'espaces de réunion collaborative 4 300 salles de conditionnement physique de type club SF Vestiaires et serviettes service Entreposage sécurisé pour vélos Proximité de 5 parcs et du sentier Riverwalk Accès : Accès immédiat à la cour navale - Station de métro Ballpark à 5 pâtés de maisons de Capitol Hill Accès facile aux I-395 et I-295 2 milles de l'aéroport National Reagan 1 pâté de maisons du Washington Nationals Stadium Matterport Hall d'entrée : https://my.matterport.com/show/?m=FetDBZeqZyB Toit : https://my.matterport.com/models/NRPJcr7nbQA Aptitude physique : https://my.matterport.com/models/52qtWfjku77
- Accès 24 heures
- Banque
- Installations de conférences
- Centre de conditionnement physique
- Service d'alimentation
- Métro
- Gestionnaire d'immeuble sur place
- Restaurant
- Bord de l’eau
- Certifié Energy Star
- Terrasse sur le toit
- Espace d'entreposage
- Station de recharge de voiture
- Hauts plafonds
- Clef en main
- Douches
- Sièges extérieurs
Faits sur la propriété
Durabilité
Durabilité
Certification LEED Établi par le U.S. Green Building Council (USGBC, Conseil américain du bâtiment durable), le programme de certification LEED (Leadership in Energy and Environmental Design) est axé sur la conception, la construction, l’exploitation et l’entretien de bâtiments, de maisons et de quartiers écologiques. Sa vocation est d’aider les propriétaires et les exploitants à adopter des pratiques écoresponsables et à utiliser les ressources de façon efficace. La certification LEED est un symbole mondialement reconnu de réussite et de leadership en matière de développement durable. Pour obtenir la certification LEED, un projet doit obtenir des points en respectant des conditions préalables et un barème de crédits qui tiennent compte des émissions de carbone, de l’énergie, de l’eau, des déchets, du transport, des matériaux, de la santé et de la qualité de l’environnement intérieur. Les projets passent par un processus de vérification et d’évaluation et reçoivent un pointage correspondant à un niveau de certification LEED: Platine (80 points et plus) Or (60 à 79 points) Silver (50-59 points) Certifié (40 à 49 points)
Présenté par
99 M St SE | 99 M St SE
Hmm, il semble y avoir eu une erreur lors de l’envoi de votre message. Veuillez réessayer.
Merci! Votre message a été envoyé.















