Votre courriel a été envoyé.
991 Elliston Way 2 800 pi² d'espace disponible • Bureau/Médical • Thompson's Station, TN 37179



Certaines informations ont été traduites automatiquement.
Tous les espaces disponibles(1)
Afficher les taux de location en
- Espace
- Taille
- Terme
- Taux de location
- Utilisation de l’espace
- Aménagement
- Disponible
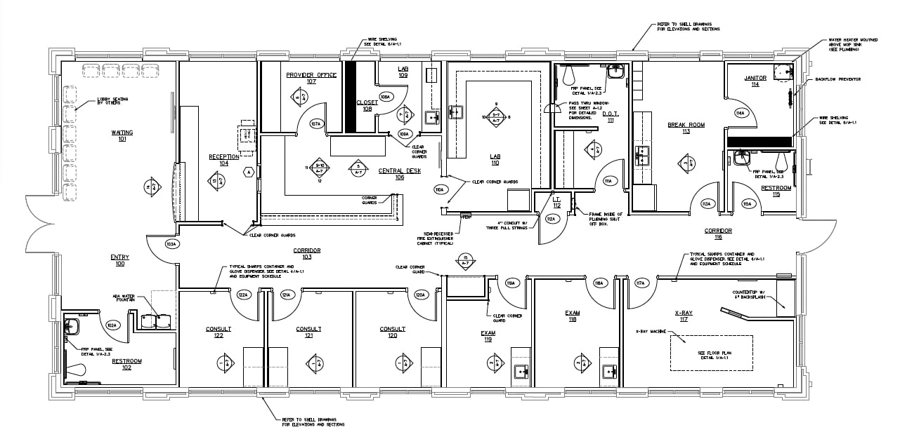
Strategically located at the "front door" of the Tollgate Village community, this second-generation medical building offers a high-visibility, "plug-and-play" opportunity for a new provider. The interior is in excellent condition following a recent high-quality remodel, featuring a layout that includes an X-ray room, lab, and dedicated exam areas. Its prime position directly off Columbia Pike (Hwy 31) captures the energy of the rapidly growing Thompson’s Station market—where the population has surged 30% since 2020—making it ideal for an urgent care, primary care practice, or a high-end veterinary clinic. With 25 dedicated parking spaces and a walkable patient base of over 1,200 households within the neighborhood, this site is perfectly positioned to fill a significant void in local healthcare services.
- Le taux de location ne comprend pas les services publics, les services de bâtiment ou les dépenses immobilières.
- Convient pour 7 à 23 personnes
- Disposition intensive du bureau
- Espace en excellent état
| Espace | Taille | Terme | Taux de location | Utilisation de l’espace | Aménagement | Disponible |
| 1er étage | 2 800 pi² | Négociable | 69,86 $ CAD/pi²/an 5,82 $ CAD/pi²/mois 195 595 $ CAD/an 16 300 $ CAD/mois | Bureau/Médical | - | 2026-05-01 |
1er étage
| Taille |
| 2 800 pi² |
| Terme |
| Négociable |
| Taux de location |
| 69,86 $ CAD/pi²/an 5,82 $ CAD/pi²/mois 195 595 $ CAD/an 16 300 $ CAD/mois |
| Utilisation de l’espace |
| Bureau/Médical |
| Aménagement |
| - |
| Disponible |
| 2026-05-01 |
1er étage
| Taille | 2 800 pi² |
| Terme | Négociable |
| Taux de location | 69,86 $ CAD/pi²/an |
| Utilisation de l’espace | Bureau/Médical |
| Aménagement | - |
| Disponible | 2026-05-01 |
Strategically located at the "front door" of the Tollgate Village community, this second-generation medical building offers a high-visibility, "plug-and-play" opportunity for a new provider. The interior is in excellent condition following a recent high-quality remodel, featuring a layout that includes an X-ray room, lab, and dedicated exam areas. Its prime position directly off Columbia Pike (Hwy 31) captures the energy of the rapidly growing Thompson’s Station market—where the population has surged 30% since 2020—making it ideal for an urgent care, primary care practice, or a high-end veterinary clinic. With 25 dedicated parking spaces and a walkable patient base of over 1,200 households within the neighborhood, this site is perfectly positioned to fill a significant void in local healthcare services.
- Le taux de location ne comprend pas les services publics, les services de bâtiment ou les dépenses immobilières.
- Disposition intensive du bureau
- Convient pour 7 à 23 personnes
- Espace en excellent état
Caractéristiques et commodités
- Climatisation
Faits sur la propriété
Présenté par
991 Elliston Way
Hmm, il semble y avoir eu une erreur lors de l’envoi de votre message. Veuillez réessayer.
Merci! Votre message a été envoyé.


