Votre courriel a été envoyé.
991 Platte River Blvd 4 570 pi² Vacant Commerce de détail Immeuble Brighton, CO 80601 1 504 624 $ CAD (329,24 $ CAD/pi²)



Certaines informations ont été traduites automatiquement.
Faits saillants de l'investissement
- 25 Dedicated Parking Spaces
- All 3 rooftop HVAC units replaced in 2024
- Divisible into three units
- Standing seam metal roof replaced in 2024
Résumé de l'annonce
Prime Commercial Space for Lease
________________________________________
Location Highlights
• Excellent street frontage at the gateway to Brighton
• High-traffic visibility near Highway 85 & Bromley
• Surrounded by thriving local businesses, restaurants, and hotels
• Easy access to major roadways and public transportation
________________________________________
Property Features
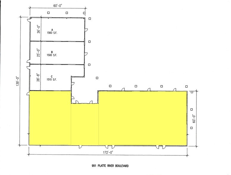
• ±4,570 sq. ft. (buyer to verify)
• Single-story building with 24-hour access
• Individually controlled HVAC
• 25 dedicated parking spaces plus additional rear parking
• Three storefront entrances and private back entrances
• Flexible layout with potential for three separate units under one lease
• Currently operating as gym/fitness center
• Ideal for owner-occupants or investors seeking income potential
________________________________________
Usage Potential
This versatile space supports a wide range of commercial uses, including:
• General Retail
• Professional Office
• Pet Services
• Restaurant
• Studio
• Medical & Personal Services
(Contact agent for full Use Categories list.)
________________________________________
Initial Rental Information
• Lease Type: Triple Net (NNN)
• Base Price: $16.00 per sq. ft.
• Annual Rent: $73,120
• Monthly Rent: $6093/33
• Monthly NNN Est: $6.85 per sq. ft.
• Lease Term: Minimum 2 years, maximum 5 years. Other terms to be determined.
• Perfect for small businesses seeking room to grow
________________________________________
Availability
• Property is owner-occupied
• Current owner occupant (gym) will vacate by early March 2026
• Please do not enter or disturb owner/clients without a scheduled appointment
________________________________________
Why Brighton?
Brighton is a thriving, business-friendly community with a rich cultural heritage and strong local economy. The historic downtown area draws consistent customer traffic, making this location ideal for launching a new venture or expanding an established brand.
________________________________________
Brighton Business Center offers the perfect blend of visibility, accessibility, and flexibility—positioning your business for long-term success.
Property Highlights – 991 S Platte River Blvd, Brighton, CO
Modernized Building Systems
Standing seam metal roof replaced in 2024
All 3 rooftop HVAC units replaced in 2024
50-gallon gas water heater installed in 2024
Robust Infrastructure
400 amp electrical panel – ready to support diverse tenant needs
Reliable utilities with recent upgrades for peace of mind
Ample Parking: 25 dedicated parking spaces for staff and customers
Financial & Maintenance Details
Property taxes: $20,163 (2024, due 2025)
Monthly COA fees: $680 (includes insurance, landscaping, snow removal, water)
Low-Maintenance Operations
COA covers common area insurance, landscaping, snow removal, and water
Prime Brighton Location
High visibility and accessibility in a growing commercial corridor
Award-winning local presence: Best of Brighton 2024
Faits sur la propriété
Commodités
- Lot de coin
- Cour
- Visibilité de l'autoroute
- Affichage
- CVCA contrôlé par le locataire
- Accessible aux fauteuils roulants
- Climatisation
- Détecteur de fumée
Disponibilité des espaces
- Espace
- Taille
- Utilisation de l’espace
- Poste
- Disponible
Centre d'affaires de Brighton Espace commercial de premier choix à louer ________________________________________ Points forts de l'emplacement • Excellente visibilité sur rue à l'entrée de Brighton • Visibilité élevée près de l'autoroute 85 et Bromley • Entouré d'entreprises locales prospères, de restaurants et d'hôtels • Accès facile aux grandes routes et aux transports en commun ________________________________________ Caractéristiques de la propriété • ±4 570 pi² (à vérifier par l'acheteur) • Bâtiment de plain-pied avec accès 24 heures sur 24 • Climatisation contrôlée individuellement • 25 places de stationnement dédiées plus stationnement supplémentaire à l'arrière • Trois entrées de façade et entrées privées à l'arrière • Disposition flexible avec potentiel pour trois unités distinctes sous un seul bail • Actuellement exploité comme centre de gym/fitness • Idéal pour les propriétaires-occupants ou les investisseurs cherchant un potentiel de revenu ________________________________________ Potentiel d'utilisation Cet espace polyvalent soutient une large gamme d'utilisations commerciales, y compris : • Détail général • Bureau professionnel • Services pour animaux de compagnie • Restaurant • Studio • Services médicaux et personnels (Contactez l'agent pour la liste complète des catégories d'utilisation.) ________________________________________ Informations initiales sur la location • Type de bail : Triple Net (NNN) • Prix de base : 16,00 $ par pi² • Loyer annuel : 73 120 $ • Loyer mensuel : 6 093,33 $ • Estimation mensuelle NNN : 6,85 $ par pi² • Durée du bail : Minimum 2 ans, maximum 5 ans. Autres conditions à déterminer. • Parfait pour les petites entreprises cherchant à se développer ________________________________________ Disponibilité • Propriété occupée par le propriétaire • L'occupant actuel (gym) quittera les lieux début mars 2026 • Veuillez ne pas entrer ou déranger le propriétaire/les clients sans rendez-vous ________________________________________ Pourquoi Brighton ? Brighton est une communauté dynamique et favorable aux affaires avec un riche patrimoine culturel et une économie locale solide. Le centre-ville historique attire un trafic client constant, ce qui rend cet emplacement idéal pour lancer une nouvelle entreprise ou développer une marque établie. ________________________________________ Le Centre d'affaires de Brighton offre le parfait mélange de visibilité, d'accessibilité et de flexibilité, positionnant votre entreprise pour un succès à long terme. Points forts de la propriété – 991 S Platte River Blvd, Brighton, CO Systèmes de bâtiment modernisés Toit en métal à joint debout remplacé en 2024 Les 3 unités de climatisation sur le toit remplacées en 2024 Chauffe-eau à gaz de 50 gallons installé en 2024 Infrastructure robuste Panneau électrique de 400 ampères – prêt à répondre aux besoins divers des locataires Services publics fiables avec des mises à jour récentes pour une tranquillité d'esprit Stationnement ample : 25 places de stationnement dédiées pour le personnel et les clients Détails financiers et d'entretien Taxes foncières : 20 163 $ (2024, dues en 2025) Frais mensuels de l'ACO : 680 $ (comprend assurance, aménagement paysager, déneigement, eau) Opérations à faible entretien L'ACO couvre l'assurance des espaces communs, l'aménagement paysager, le déneigement et l'eau Emplacement de choix à Brighton Haute visibilité et accessibilité dans un corridor commercial en croissance Présence locale primée : Best of Brighton 2024
| Espace | Taille | Utilisation de l’espace | Poste | Disponible |
| A, B, C | 4 570 pi² | Commerce de détail | Embout | Maintenant |
A, B, C
| Taille |
| 4 570 pi² |
| Utilisation de l’espace |
| Commerce de détail |
| Poste |
| Embout |
| Disponible |
| Maintenant |
A, B, C
| Taille | 4 570 pi² |
| Utilisation de l’espace | Commerce de détail |
| Poste | Embout |
| Disponible | Maintenant |
Centre d'affaires de Brighton Espace commercial de premier choix à louer ________________________________________ Points forts de l'emplacement • Excellente visibilité sur rue à l'entrée de Brighton • Visibilité élevée près de l'autoroute 85 et Bromley • Entouré d'entreprises locales prospères, de restaurants et d'hôtels • Accès facile aux grandes routes et aux transports en commun ________________________________________ Caractéristiques de la propriété • ±4 570 pi² (à vérifier par l'acheteur) • Bâtiment de plain-pied avec accès 24 heures sur 24 • Climatisation contrôlée individuellement • 25 places de stationnement dédiées plus stationnement supplémentaire à l'arrière • Trois entrées de façade et entrées privées à l'arrière • Disposition flexible avec potentiel pour trois unités distinctes sous un seul bail • Actuellement exploité comme centre de gym/fitness • Idéal pour les propriétaires-occupants ou les investisseurs cherchant un potentiel de revenu ________________________________________ Potentiel d'utilisation Cet espace polyvalent soutient une large gamme d'utilisations commerciales, y compris : • Détail général • Bureau professionnel • Services pour animaux de compagnie • Restaurant • Studio • Services médicaux et personnels (Contactez l'agent pour la liste complète des catégories d'utilisation.) ________________________________________ Informations initiales sur la location • Type de bail : Triple Net (NNN) • Prix de base : 16,00 $ par pi² • Loyer annuel : 73 120 $ • Loyer mensuel : 6 093,33 $ • Estimation mensuelle NNN : 6,85 $ par pi² • Durée du bail : Minimum 2 ans, maximum 5 ans. Autres conditions à déterminer. • Parfait pour les petites entreprises cherchant à se développer ________________________________________ Disponibilité • Propriété occupée par le propriétaire • L'occupant actuel (gym) quittera les lieux début mars 2026 • Veuillez ne pas entrer ou déranger le propriétaire/les clients sans rendez-vous ________________________________________ Pourquoi Brighton ? Brighton est une communauté dynamique et favorable aux affaires avec un riche patrimoine culturel et une économie locale solide. Le centre-ville historique attire un trafic client constant, ce qui rend cet emplacement idéal pour lancer une nouvelle entreprise ou développer une marque établie. ________________________________________ Le Centre d'affaires de Brighton offre le parfait mélange de visibilité, d'accessibilité et de flexibilité, positionnant votre entreprise pour un succès à long terme. Points forts de la propriété – 991 S Platte River Blvd, Brighton, CO Systèmes de bâtiment modernisés Toit en métal à joint debout remplacé en 2024 Les 3 unités de climatisation sur le toit remplacées en 2024 Chauffe-eau à gaz de 50 gallons installé en 2024 Infrastructure robuste Panneau électrique de 400 ampères – prêt à répondre aux besoins divers des locataires Services publics fiables avec des mises à jour récentes pour une tranquillité d'esprit Stationnement ample : 25 places de stationnement dédiées pour le personnel et les clients Détails financiers et d'entretien Taxes foncières : 20 163 $ (2024, dues en 2025) Frais mensuels de l'ACO : 680 $ (comprend assurance, aménagement paysager, déneigement, eau) Opérations à faible entretien L'ACO couvre l'assurance des espaces communs, l'aménagement paysager, le déneigement et l'eau Emplacement de choix à Brighton Haute visibilité et accessibilité dans un corridor commercial en croissance Présence locale primée : Best of Brighton 2024
Principaux détaillants à proximité
Impôts fonciers
| Numéro de lot | 1571-13-1-01-060 | Évaluation des bâtiments | 65 205 $ CAD |
| Évaluation du terrain | 0 $ CAD | Évaluation totale | 98 174 $ CAD |
Impôts fonciers
Présenté par
991 Platte River Blvd
Hmm, il semble y avoir eu une erreur lors de l’envoi de votre message. Veuillez réessayer.
Merci! Votre message a été envoyé.

