Se Connecter/S’inscrire
Votre courriel a été envoyé.
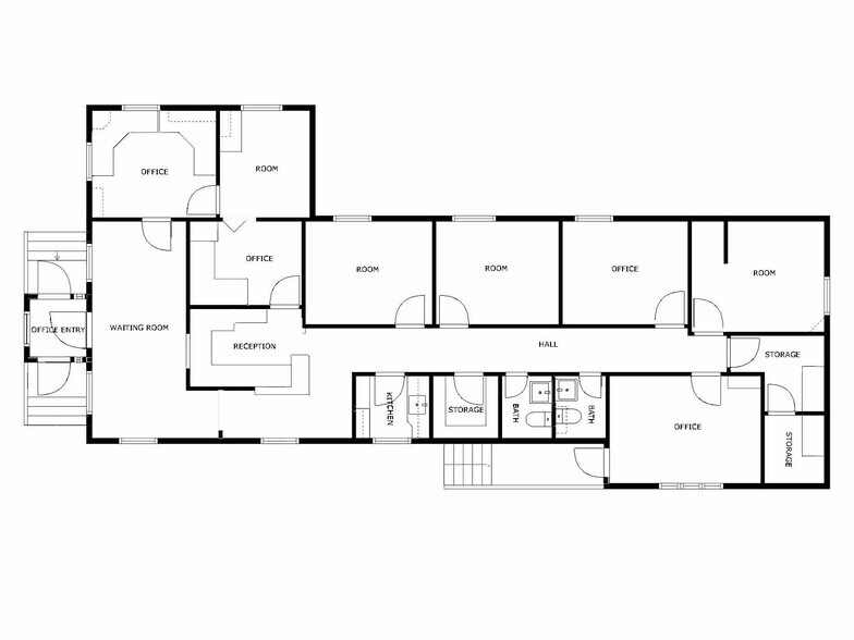
Office/Retail Exposure 995 Washington St 1 580 pi² Bureau Immeuble Weymouth, MA 02189 819 749 $ CAD (518,83 $ CAD/pi²)



Certaines informations ont été traduites automatiquement.
FAITS SAILLANTS DE L'INVESTISSEMENT
- Route 53 Exposure
- Fully basement
- Central A/C
- Oversized parking field
- Vinyl sided
- Annual taxes: $7,779
RÉSUMÉ DE L'ANNONCE
The property is an outstanding candidate for a conversion to a personal services/retail use and will be delivered vacant.
TAXES ET DÉPENSES D’EXPLOITATION (RÉEL - 2025) Cliquez ici pour accéder à |
ANNUEL (CAD) | ANNUEL PAR pi² (CAD) |
|---|---|---|
| Taxes |
-
|
-
|
| Dépenses d’exploitation |
-
|
-
|
| Total des dépenses |
$99,999
|
$9.99
|
TAXES ET DÉPENSES D’EXPLOITATION (RÉEL - 2025) Cliquez ici pour accéder à
| Taxes (CAD) | |
|---|---|
| Annuel | - |
| Annuel par pi² | - |
| Dépenses d’exploitation (CAD) | |
|---|---|
| Annuel | - |
| Annuel par pi² | - |
| Total des dépenses (CAD) | |
|---|---|
| Annuel | $99,999 |
| Annuel par pi² | $9.99 |
FAITS SUR LA PROPRIÉTÉ Sous contrat
Type de vente
Propriétaire utilisateur
Type de propriété
Bureau
Sous-type de propriété
Médical
Taille du bâtiment
1 580 pi²
Classe d’immeuble
C
Année de construction
1945
Prix
819 749 $ CAD
Prix par pi²
518,83 $ CAD
Location
Unique
Hauteur du bâtiment
1 étage
Superficie de plancher typique
1 580 pi²
Coefficient d’occupation des sols de l’immeuble
0,15
Taille du lot
0,25 AC
Zonage
HT - Transition autoroutière
Stationnement
14 places (8,86 places par 1 000 pi² loué)
1 1
Impôts fonciers
| Numéro de lot | WEYM-000030-000400-000004 | Évaluation des bâtiments | 320 995 $ CAD |
| Évaluation du terrain | 365 382 $ CAD | Évaluation totale | 686 377 $ CAD |
Impôts fonciers
Numéro de lot
WEYM-000030-000400-000004
Évaluation du terrain
365 382 $ CAD
Évaluation des bâtiments
320 995 $ CAD
Évaluation totale
686 377 $ CAD
1 de 4
VIDÉOS
VISITE EXTÉRIEURE 3D MATTERPORT
VISITE 3D MATTERPORT
PHOTOS
VUE DEPUIS LA RUE
RUE
CARTE
1 de 1
Présenté par
Office/Retail Exposure | 995 Washington St
Vous êtes déjà membre? Connectez-vous
Hmm, il semble y avoir eu une erreur lors de l’envoi de votre message. Veuillez réessayer.
Merci! Votre message a été envoyé.
