Votre courriel a été envoyé.
13290 Aix-en-Provence 1 916–13 390 pi² d'espace disponible • Bureau
Certaines informations ont été traduites automatiquement.
Tous les espaces disponibles(6)
Afficher les taux de location en
- Espace
- Taille
- Terme
-
Taux de location
- Utilisation de l’espace
- État
- Disponible
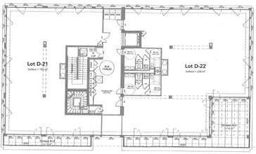
Ce plateau de bureaux d’une surface de 220 m² est situé au rez-de-chaussée du bâtiment D. Disponible au quatrième trimestre 2025, il bénéficie de prestations techniques modernes : dalles moquette, éclairage LED, chauffage et rafraîchissement d’air par ventilo-convecteurs. L’immeuble est certifié HQE et BREEAM Very Good. Le loyer s’élève à 185 €/m²/an HT/HC, avec des charges estimées à 16 €/m²/an HT. Bail commercial 3/6/9, TVA applicable, paiement trimestriel d’avance, dépôt de garantie équivalent à un trimestre de loyer HT.
- Honoraires preneur: 15,00% du taux de location annuel
- Dépôt de garantie: 3 mois de taux de location
- Climatisation centrale
- Hauts plafonds
- Plan ouvert
- Ventilo-convecteurs
- éclairage LED
-
Charges locatives: 2,36 $ CAD/pi²/an 0,20 $ CAD/pi²/mois 5 585 $ CAD/an 465,43 $ CAD/mois
- Convient pour 6 à 19 personnes
- Système de sécurité
- Lumière naturelle
- Détecteur de fumée
- Certifié HQE et BREEAM Very Good
Ce plateau de bureaux d’une surface de 185 m² est situé au rez-de-chaussée du bâtiment D. Disponible au quatrième trimestre 2025, il bénéficie de prestations techniques modernes : dalles moquette, éclairage LED, chauffage et rafraîchissement d’air par ventilo-convecteurs. L’immeuble est certifié HQE et BREEAM Very Good. Le loyer s’élève à 185 €/m²/an HT/HC, avec des charges estimées à 16 €/m²/an HT. Bail commercial 3/6/9, TVA applicable, paiement trimestriel d’avance, dépôt de garantie équivalent à un trimestre de loyer HT.
- Honoraires preneur: 15,00% du taux de location annuel
- Dépôt de garantie: 3 mois de taux de location
- Climatisation centrale
- Hauts plafonds
- Plan ouvert
- Ventilo-convecteurs
- éclairage LED
-
Charges locatives: 2,36 $ CAD/pi²/an 0,20 $ CAD/pi²/mois 4 697 $ CAD/an 391,39 $ CAD/mois
- Convient pour 5 à 16 personnes
- Système de sécurité
- Lumière naturelle
- Détecteur de fumée
- Certifié HQE et BREEAM Very Good
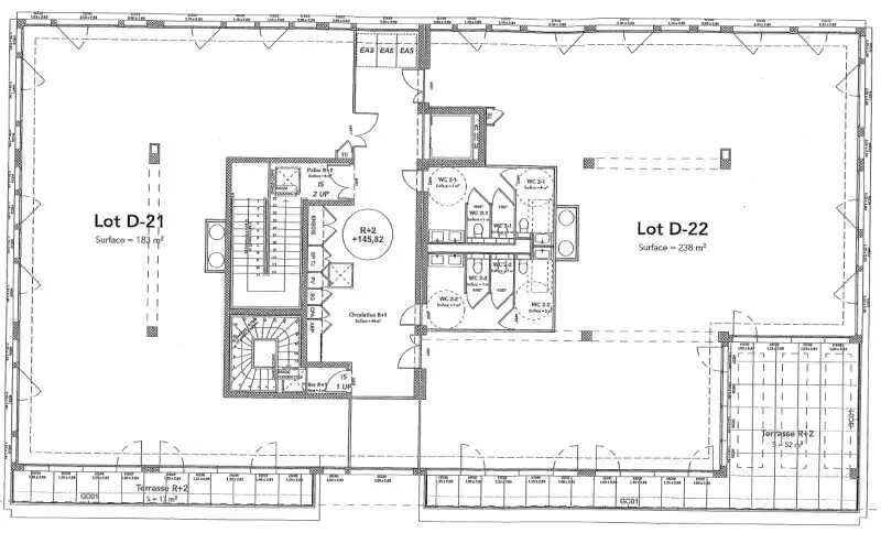
Ce plateau de bureaux d’une surface de 237 m² est situé au premier étage du bâtiment D. Disponible au quatrième trimestre 2025, il bénéficie de prestations techniques modernes : dalles moquette, éclairage LED, chauffage et rafraîchissement d’air par ventilo-convecteurs. L’immeuble est certifié HQE et BREEAM Very Good. Le loyer s’élève à 185 €/m²/an HT/HC, avec des charges estimées à 16 €/m²/an HT. Bail commercial 3/6/9, TVA applicable, paiement trimestriel d’avance, dépôt de garantie équivalent à un trimestre de loyer HT.
- Honoraires preneur: 15,00% du taux de location annuel
- Dépôt de garantie: 3 mois de taux de location
- Climatisation centrale
- Hauts plafonds
- Plan ouvert
- Ventilo-convecteurs
- éclairage LED
-
Charges locatives: 2,36 $ CAD/pi²/an 0,20 $ CAD/pi²/mois 6 017 $ CAD/an 501,40 $ CAD/mois
- Convient pour 7 à 20 personnes
- Système de sécurité
- Lumière naturelle
- Détecteur de fumée
- Certifié HQE et BREEAM Very Good
Ce plateau de bureaux d’une surface de 178 m² est situé au premier étage du bâtiment D. Disponible au quatrième trimestre 2025, il bénéficie de prestations techniques modernes : dalles moquette, éclairage LED, chauffage et rafraîchissement d’air par ventilo-convecteurs. L’immeuble est certifié HQE et BREEAM Very Good. Le loyer s’élève à 185 €/m²/an HT/HC, avec des charges estimées à 16 €/m²/an HT. Bail commercial 3/6/9, TVA applicable, paiement trimestriel d’avance, dépôt de garantie équivalent à un trimestre de loyer HT.
- Honoraires preneur: 15,00% du taux de location annuel
- Dépôt de garantie: 3 mois de taux de location
- Climatisation centrale
- Hauts plafonds
- Plan ouvert
- Ventilo-convecteurs
- éclairage LED
-
Charges locatives: 2,36 $ CAD/pi²/an 0,20 $ CAD/pi²/mois 4 519 $ CAD/an 376,58 $ CAD/mois
- Convient pour 5 à 15 personnes
- Système de sécurité
- Lumière naturelle
- Détecteur de fumée
- Certifié HQE et BREEAM Very Good
Ce plateau de bureaux d’une surface de 220 m² est situé au deuxième étage du bâtiment D. Disponible au quatrième trimestre 2025, il bénéficie de prestations techniques modernes : dalles moquette, éclairage LED, chauffage et rafraîchissement d’air par ventilo-convecteurs. L’immeuble est certifié HQE et BREEAM Very Good. Le loyer s’élève à 185 €/m²/an HT/HC, avec des charges estimées à 16 €/m²/an HT. Bail commercial 3/6/9, TVA applicable, paiement trimestriel d’avance, dépôt de garantie équivalent à un trimestre de loyer HT.
- Honoraires preneur: 15,00% du taux de location annuel
- Dépôt de garantie: 3 mois de taux de location
- Climatisation centrale
- Hauts plafonds
- Plan ouvert
- Ventilo-convecteurs
- éclairage LED
-
Charges locatives: 2,36 $ CAD/pi²/an 0,20 $ CAD/pi²/mois 5 585 $ CAD/an 465,43 $ CAD/mois
- Convient pour 6 à 19 personnes
- Système de sécurité
- Lumière naturelle
- Détecteur de fumée
- Certifié HQE et BREEAM Very Good
Ce plateau de bureaux d’une surface de 204 m² est situé au deuxième étage du bâtiment D. Disponible au quatrième trimestre 2025, il bénéficie de prestations techniques modernes : dalles moquette, éclairage LED, chauffage et rafraîchissement d’air par ventilo-convecteurs. L’immeuble est certifié HQE et BREEAM Very Good. Le loyer s’élève à 185 €/m²/an HT/HC, avec des charges estimées à 16 €/m²/an HT. Bail commercial 3/6/9, TVA applicable, paiement trimestriel d’avance, dépôt de garantie équivalent à un trimestre de loyer HT.
- Honoraires preneur: 15,00% du taux de location annuel
- Dépôt de garantie: 3 mois de taux de location
- Climatisation centrale
- Hauts plafonds
- Plan ouvert
- Ventilo-convecteurs
- éclairage LED
-
Charges locatives: 2,36 $ CAD/pi²/an 0,20 $ CAD/pi²/mois 5 179 $ CAD/an 431,58 $ CAD/mois
- Convient pour 6 à 17 personnes
- Système de sécurité
- Lumière naturelle
- Détecteur de fumée
- Certifié HQE et BREEAM Very Good
| Espace | Taille | Terme | Taux de location | Utilisation de l’espace | État | Disponible |
| RDC | 2 368 pi² | 3/6/9 | 27,27 $ CAD/HT-HC/pi²/an 2,27 $ CAD/HT-HC/pi²/mois 64 581 $ CAD/HT-HC/an 5 382 $ CAD/HT-HC/mois | Bureau | - | Maintenant |
| RDC | 1 991 pi² | 3/6/9 | 27,27 $ CAD/HT-HC/pi²/an 2,27 $ CAD/HT-HC/pi²/mois 54 307 $ CAD/HT-HC/an 4 526 $ CAD/HT-HC/mois | Bureau | - | Maintenant |
| 1er étage | 2 551 pi² | 3/6/9 | 27,27 $ CAD/HT-HC/pi²/an 2,27 $ CAD/HT-HC/pi²/mois 69 571 $ CAD/HT-HC/an 5 798 $ CAD/HT-HC/mois | Bureau | - | Maintenant |
| 1er étage | 1 916 pi² | 3/6/9 | 27,27 $ CAD/HT-HC/pi²/an 2,27 $ CAD/HT-HC/pi²/mois 52 252 $ CAD/HT-HC/an 4 354 $ CAD/HT-HC/mois | Bureau | - | Maintenant |
| 2e étage | 2 368 pi² | 3/6/9 | 27,27 $ CAD/HT-HC/pi²/an 2,27 $ CAD/HT-HC/pi²/mois 64 581 $ CAD/HT-HC/an 5 382 $ CAD/HT-HC/mois | Bureau | - | Maintenant |
| 2e étage | 2 196 pi² | 3/6/9 | 27,27 $ CAD/HT-HC/pi²/an 2,27 $ CAD/HT-HC/pi²/mois 59 884 $ CAD/HT-HC/an 4 990 $ CAD/HT-HC/mois | Bureau | - | Maintenant |
RDC
| Taille |
| 2 368 pi² |
| Terme |
| 3/6/9 |
|
Taux de location
|
| 27,27 $ CAD/HT-HC/pi²/an 2,27 $ CAD/HT-HC/pi²/mois 64 581 $ CAD/HT-HC/an 5 382 $ CAD/HT-HC/mois |
| Utilisation de l’espace |
| Bureau |
| État |
| - |
| Disponible |
| Maintenant |
RDC
| Taille |
| 1 991 pi² |
| Terme |
| 3/6/9 |
|
Taux de location
|
| 27,27 $ CAD/HT-HC/pi²/an 2,27 $ CAD/HT-HC/pi²/mois 54 307 $ CAD/HT-HC/an 4 526 $ CAD/HT-HC/mois |
| Utilisation de l’espace |
| Bureau |
| État |
| - |
| Disponible |
| Maintenant |
1er étage
| Taille |
| 2 551 pi² |
| Terme |
| 3/6/9 |
|
Taux de location
|
| 27,27 $ CAD/HT-HC/pi²/an 2,27 $ CAD/HT-HC/pi²/mois 69 571 $ CAD/HT-HC/an 5 798 $ CAD/HT-HC/mois |
| Utilisation de l’espace |
| Bureau |
| État |
| - |
| Disponible |
| Maintenant |
1er étage
| Taille |
| 1 916 pi² |
| Terme |
| 3/6/9 |
|
Taux de location
|
| 27,27 $ CAD/HT-HC/pi²/an 2,27 $ CAD/HT-HC/pi²/mois 52 252 $ CAD/HT-HC/an 4 354 $ CAD/HT-HC/mois |
| Utilisation de l’espace |
| Bureau |
| État |
| - |
| Disponible |
| Maintenant |
2e étage
| Taille |
| 2 368 pi² |
| Terme |
| 3/6/9 |
|
Taux de location
|
| 27,27 $ CAD/HT-HC/pi²/an 2,27 $ CAD/HT-HC/pi²/mois 64 581 $ CAD/HT-HC/an 5 382 $ CAD/HT-HC/mois |
| Utilisation de l’espace |
| Bureau |
| État |
| - |
| Disponible |
| Maintenant |
2e étage
| Taille |
| 2 196 pi² |
| Terme |
| 3/6/9 |
|
Taux de location
|
| 27,27 $ CAD/HT-HC/pi²/an 2,27 $ CAD/HT-HC/pi²/mois 59 884 $ CAD/HT-HC/an 4 990 $ CAD/HT-HC/mois |
| Utilisation de l’espace |
| Bureau |
| État |
| - |
| Disponible |
| Maintenant |
RDC
| Taille | 2 368 pi² |
| Terme | 3/6/9 |
|
Taux de location
|
27,27 $ CAD/HT-HC/pi²/an |
| Utilisation de l’espace | Bureau |
| État | - |
| Disponible | Maintenant |
Ce plateau de bureaux d’une surface de 220 m² est situé au rez-de-chaussée du bâtiment D. Disponible au quatrième trimestre 2025, il bénéficie de prestations techniques modernes : dalles moquette, éclairage LED, chauffage et rafraîchissement d’air par ventilo-convecteurs. L’immeuble est certifié HQE et BREEAM Very Good. Le loyer s’élève à 185 €/m²/an HT/HC, avec des charges estimées à 16 €/m²/an HT. Bail commercial 3/6/9, TVA applicable, paiement trimestriel d’avance, dépôt de garantie équivalent à un trimestre de loyer HT.
- Honoraires preneur: 15,00% du taux de location annuel
-
Charges locatives: 2,36 $ CAD/pi²/an 0,20 $ CAD/pi²/mois 5 585 $ CAD/an 465,43 $ CAD/mois
- Dépôt de garantie: 3 mois de taux de location
- Convient pour 6 à 19 personnes
- Climatisation centrale
- Système de sécurité
- Hauts plafonds
- Lumière naturelle
- Plan ouvert
- Détecteur de fumée
- Ventilo-convecteurs
- Certifié HQE et BREEAM Very Good
- éclairage LED
RDC
| Taille | 1 991 pi² |
| Terme | 3/6/9 |
|
Taux de location
|
27,27 $ CAD/HT-HC/pi²/an |
| Utilisation de l’espace | Bureau |
| État | - |
| Disponible | Maintenant |
Ce plateau de bureaux d’une surface de 185 m² est situé au rez-de-chaussée du bâtiment D. Disponible au quatrième trimestre 2025, il bénéficie de prestations techniques modernes : dalles moquette, éclairage LED, chauffage et rafraîchissement d’air par ventilo-convecteurs. L’immeuble est certifié HQE et BREEAM Very Good. Le loyer s’élève à 185 €/m²/an HT/HC, avec des charges estimées à 16 €/m²/an HT. Bail commercial 3/6/9, TVA applicable, paiement trimestriel d’avance, dépôt de garantie équivalent à un trimestre de loyer HT.
- Honoraires preneur: 15,00% du taux de location annuel
-
Charges locatives: 2,36 $ CAD/pi²/an 0,20 $ CAD/pi²/mois 4 697 $ CAD/an 391,39 $ CAD/mois
- Dépôt de garantie: 3 mois de taux de location
- Convient pour 5 à 16 personnes
- Climatisation centrale
- Système de sécurité
- Hauts plafonds
- Lumière naturelle
- Plan ouvert
- Détecteur de fumée
- Ventilo-convecteurs
- Certifié HQE et BREEAM Very Good
- éclairage LED
1er étage
| Taille | 2 551 pi² |
| Terme | 3/6/9 |
|
Taux de location
|
27,27 $ CAD/HT-HC/pi²/an |
| Utilisation de l’espace | Bureau |
| État | - |
| Disponible | Maintenant |
Ce plateau de bureaux d’une surface de 237 m² est situé au premier étage du bâtiment D. Disponible au quatrième trimestre 2025, il bénéficie de prestations techniques modernes : dalles moquette, éclairage LED, chauffage et rafraîchissement d’air par ventilo-convecteurs. L’immeuble est certifié HQE et BREEAM Very Good. Le loyer s’élève à 185 €/m²/an HT/HC, avec des charges estimées à 16 €/m²/an HT. Bail commercial 3/6/9, TVA applicable, paiement trimestriel d’avance, dépôt de garantie équivalent à un trimestre de loyer HT.
- Honoraires preneur: 15,00% du taux de location annuel
-
Charges locatives: 2,36 $ CAD/pi²/an 0,20 $ CAD/pi²/mois 6 017 $ CAD/an 501,40 $ CAD/mois
- Dépôt de garantie: 3 mois de taux de location
- Convient pour 7 à 20 personnes
- Climatisation centrale
- Système de sécurité
- Hauts plafonds
- Lumière naturelle
- Plan ouvert
- Détecteur de fumée
- Ventilo-convecteurs
- Certifié HQE et BREEAM Very Good
- éclairage LED
1er étage
| Taille | 1 916 pi² |
| Terme | 3/6/9 |
|
Taux de location
|
27,27 $ CAD/HT-HC/pi²/an |
| Utilisation de l’espace | Bureau |
| État | - |
| Disponible | Maintenant |
Ce plateau de bureaux d’une surface de 178 m² est situé au premier étage du bâtiment D. Disponible au quatrième trimestre 2025, il bénéficie de prestations techniques modernes : dalles moquette, éclairage LED, chauffage et rafraîchissement d’air par ventilo-convecteurs. L’immeuble est certifié HQE et BREEAM Very Good. Le loyer s’élève à 185 €/m²/an HT/HC, avec des charges estimées à 16 €/m²/an HT. Bail commercial 3/6/9, TVA applicable, paiement trimestriel d’avance, dépôt de garantie équivalent à un trimestre de loyer HT.
- Honoraires preneur: 15,00% du taux de location annuel
-
Charges locatives: 2,36 $ CAD/pi²/an 0,20 $ CAD/pi²/mois 4 519 $ CAD/an 376,58 $ CAD/mois
- Dépôt de garantie: 3 mois de taux de location
- Convient pour 5 à 15 personnes
- Climatisation centrale
- Système de sécurité
- Hauts plafonds
- Lumière naturelle
- Plan ouvert
- Détecteur de fumée
- Ventilo-convecteurs
- Certifié HQE et BREEAM Very Good
- éclairage LED
2e étage
| Taille | 2 368 pi² |
| Terme | 3/6/9 |
|
Taux de location
|
27,27 $ CAD/HT-HC/pi²/an |
| Utilisation de l’espace | Bureau |
| État | - |
| Disponible | Maintenant |
Ce plateau de bureaux d’une surface de 220 m² est situé au deuxième étage du bâtiment D. Disponible au quatrième trimestre 2025, il bénéficie de prestations techniques modernes : dalles moquette, éclairage LED, chauffage et rafraîchissement d’air par ventilo-convecteurs. L’immeuble est certifié HQE et BREEAM Very Good. Le loyer s’élève à 185 €/m²/an HT/HC, avec des charges estimées à 16 €/m²/an HT. Bail commercial 3/6/9, TVA applicable, paiement trimestriel d’avance, dépôt de garantie équivalent à un trimestre de loyer HT.
- Honoraires preneur: 15,00% du taux de location annuel
-
Charges locatives: 2,36 $ CAD/pi²/an 0,20 $ CAD/pi²/mois 5 585 $ CAD/an 465,43 $ CAD/mois
- Dépôt de garantie: 3 mois de taux de location
- Convient pour 6 à 19 personnes
- Climatisation centrale
- Système de sécurité
- Hauts plafonds
- Lumière naturelle
- Plan ouvert
- Détecteur de fumée
- Ventilo-convecteurs
- Certifié HQE et BREEAM Very Good
- éclairage LED
2e étage
| Taille | 2 196 pi² |
| Terme | 3/6/9 |
|
Taux de location
|
27,27 $ CAD/HT-HC/pi²/an |
| Utilisation de l’espace | Bureau |
| État | - |
| Disponible | Maintenant |
Ce plateau de bureaux d’une surface de 204 m² est situé au deuxième étage du bâtiment D. Disponible au quatrième trimestre 2025, il bénéficie de prestations techniques modernes : dalles moquette, éclairage LED, chauffage et rafraîchissement d’air par ventilo-convecteurs. L’immeuble est certifié HQE et BREEAM Very Good. Le loyer s’élève à 185 €/m²/an HT/HC, avec des charges estimées à 16 €/m²/an HT. Bail commercial 3/6/9, TVA applicable, paiement trimestriel d’avance, dépôt de garantie équivalent à un trimestre de loyer HT.
- Honoraires preneur: 15,00% du taux de location annuel
-
Charges locatives: 2,36 $ CAD/pi²/an 0,20 $ CAD/pi²/mois 5 179 $ CAD/an 431,58 $ CAD/mois
- Dépôt de garantie: 3 mois de taux de location
- Convient pour 6 à 17 personnes
- Climatisation centrale
- Système de sécurité
- Hauts plafonds
- Lumière naturelle
- Plan ouvert
- Détecteur de fumée
- Ventilo-convecteurs
- Certifié HQE et BREEAM Very Good
- éclairage LED
Aperçu de la propriété
Parc des Lumières est un immeuble de bureaux R+3 situé Rue Émilien Gautier, 13290 Aix-en-Provence. Moderne et bien positionné, il bénéficie d’une excellente accessibilité et s’intègre dans un environnement tertiaire dynamique. L’immeuble bénéficie des certifications environnementales HQE et BREEAM Very Good, gages d’un haut niveau de performance énergétique et de confort. L’ensemble est complété par 60 emplacements de parking (sous-sol et extérieur), ainsi que des terrasses et balcons qui agrémentent les différents niveaux. Parfaitement desservi, ce site se trouve à moins de 10 minutes de la gare TGV Aix-en-Provence, à proximité immédiate des autoroutes A8 et A51, et à 20 minutes de l’aéroport Marseille Provence. Plusieurs lignes de bus desservent également la zone.
- Accès contrôlé
- Cour
- Système de sécurité
- Cuisine
- Hauts plafonds
- Lumière naturelle
- Plan ouvert
- Climatisation
- Détecteur de fumée
Faits sur la propriété
Présenté par
Hvs Real Estate
"13290 Aix-en-Provence"
Hmm, il semble y avoir eu une erreur lors de l’envoi de votre message. Veuillez réessayer.
Merci! Votre message a été envoyé.


