Votre courriel a été envoyé.
Calle San Sebastian Unité de condo • Commerce de détail • 3 541 pi² • À vendre 780 677 $ CAD • Alhaurín de la Torre, Málaga 29120
Certaines informations ont été traduites automatiquement.
Faits saillants de l'investissement
- Edificio residencial con locales comerciales en planta baja, ubicado en una zona consolidada de Alhaurín el Grande.
- Construcción de 1955, de dos plantas, con buenas comunicaciones mediante transporte público.
Résumé de l'annonce
Edificio residencial con locales comerciales en planta baja, ubicado en Alhaurín el Grande (Málaga), en la calle San Sebastián. Construido en 1955, consta de dos plantas y dispone de buenas comunicaciones mediante transporte público.
1 Unité disponible
Unité -
| Taille de l’unité | 3 541 pi² | Utilisation du condo | Commerce de détail |
| Prix | 780 677 $ CAD | Type de vente | Investissement ou propriétaire utilisateur |
| Prix par pi² | 220,47 $ CAD |
| Taille de l’unité | 3 541 pi² |
| Prix | 780 677 $ CAD |
| Prix par pi² | 220,47 $ CAD |
| Utilisation du condo | Commerce de détail |
| Type de vente | Investissement ou propriétaire utilisateur |
Description
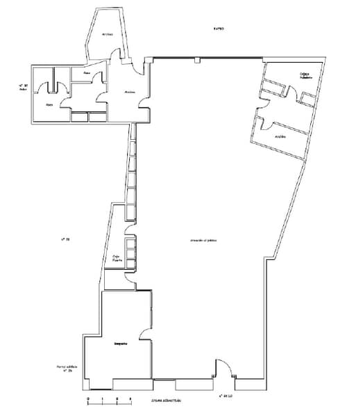
Local en Alhaurín el Grande (Málaga), calle San Sebastián, con una superficie de 329 m2 y amplias posibilidades de implantación.
Notes sur la vente
Ref: 0102XX
Local situado en la provincia de Málaga, en el municipio de Alhaurín el Grande, en la calle San Sebastián. Dispone de una amplia superficie de 329 m2, ofreciendo múltiples posibilidades de implantación y adaptación a distintos usos. Buena visibilidad comercial.
Foto interior
Foto interior
Foto interior
Foto interior
Foto interior
Plano Alquilujo Internacional
Faits sur la propriété
Commodités
Commodités du site
- Transport en commun
Présenté par
Calle San Sebastian
Hmm, il semble y avoir eu une erreur lors de l’envoi de votre message. Veuillez réessayer.
Merci! Votre message a été envoyé.
