Votre courriel a été envoyé.
13400 Aubagne 19 386 pi² Bureau Immeuble 638 694 $ CAD (32,95 $ CAD/pi²)



Certaines informations ont été traduites automatiquement.
RÉSUMÉ DE L'ANNONCE
Liste des aménagements effectués lors de la livraison : sol, faux plafond, murs peints, sanitaire, placo posé, pompe à chaleur et également les 3 fluides en attente.
Le local se trouve au pied d'un bâtiment professionnel et commercial neuf ERP 5ième catégorie.
Hauteur : 3.00 m
Honoraires : 3% HT du prix de vente, en sus à la charge de l'acquéreur
TAXES ET DÉPENSES D’EXPLOITATION (RÉEL - 2025) |
ANNUEL (CAD) | ANNUEL PAR pi² (CAD) |
|---|---|---|
| Taxe foncière |
1 973 $
|
0,10 $
|
| Taxe sur les bureaux |
-
|
-
|
| Dépenses d’exploitation |
-
|
-
|
| Total des dépenses |
1 973 $
|
0,10 $
|
TAXES ET DÉPENSES D’EXPLOITATION (RÉEL - 2025)
| Taxe foncière (CAD) | |
|---|---|
| Annuel | 1 973 $ |
| Annuel par pi² | 0,10 $ |
| Taxe sur les bureaux (CAD) | |
|---|---|
| Annuel | - |
| Annuel par pi² | - |
| Dépenses d’exploitation (CAD) | |
|---|---|
| Annuel | - |
| Annuel par pi² | - |
| Total des dépenses (CAD) | |
|---|---|
| Annuel | 1 973 $ |
| Annuel par pi² | 0,10 $ |
FAITS SUR LA PROPRIÉTÉ
COMMODITÉS
- Accès contrôlé
- Cour
- Terrain clôturé
- Bureaux partitionnés
- Plafond suspendu
À PROPOS DE AUBAGNE, BDR 13400
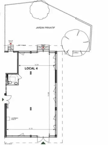
Le Cabinet IPM vous propose à la vente, à l'entrée de la Zone d'Activités de Napollon, au sein d'un programme neuf, en bordure de la Départementale 96, un bureau d'une superficie totale de 122 m² de plain-pied avec un jardin privatif d'environ 117 m². Liste des aménagements effectués lors de la livraison : sol, faux plafond, murs peints, sanitaire, placo posé, pompe à chaleur et également les 3 fluides en attente. Le local se trouve au pied d'un bâtiment professionnel et commercial neuf ERP 5e catégorie. Hauteur : 3,00 m. Honoraires : 3 % HT du prix de vente, en sus à la charge de l'acquéreur.
Présenté par
"13400 Aubagne"
Hmm, il semble y avoir eu une erreur lors de l’envoi de votre message. Veuillez réessayer.
Merci! Votre message a été envoyé.
