Votre courriel a été envoyé.
63170 Aubière Unités de condo • Bureau • 1 829-1 872 pi² • À vendre 786 055 $-919 652 $ CAD par unité



Certaines informations ont été traduites automatiquement.
DESCRIPTION
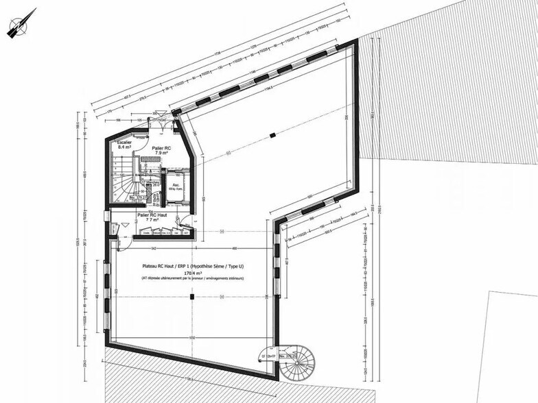
À l'acquisition en état futur d'achèvement, trois plateaux de bureaux neufs seront disponibles début 2027 à Aubière centre-ville, proposés par l'agence CIDERA² Clermont, experte en immobilier d'entreprise. Le plateau en RDC, 170m², est livré brut, fluides en attente et peut accueillir du public. Les menuiseries seront posées. Chaque plateau de 173 ou 174 m² sera livré en plateau fini : sols réalisés, murs périphériques doublés et peints, courant fort installé, climatisation réversible, menuiseries posées. Deux places de parking par plateau sont incluses dans le prix. Profitez d'un emplacement central, vivant et à proximité immédiate de tous commerces et parkings. L'équipe CIDERA² Clermont accompagne chaque acquéreur pour personnaliser l'aménagement de ses espaces selon ses besoins et ambitions professionnelles. Frais de rédaction d'actes à prévoir. Honoraires payables à la signature de l'acte. Régime fiscal : TVA. Rédaction de l'acte à la charge de l'acquéreur
FAITS SUR LA PROPRIÉTÉ
| Prix | 786 055 $ à 919 652 $ CAD | Nombre d’unités | 3 |
| Taille de l’unité | 1 829 - 1 872 pi² | Type de propriété | Bureau |
| Prix | 786 055 $ à 919 652 $ CAD |
| Taille de l’unité | 1 829 - 1 872 pi² |
| Nombre d’unités | 3 |
| Type de propriété | Bureau |
3 UNITÉS DISPONIBLES
| Taille de l’unité | 1 829 pi² | Utilisation du condo | Bureau |
| Prix | 786 055 $ CAD | Type de vente | Investissement |
| Prix par pi² | 429,77 $ CAD | Honoraires preneur | 5,50% du prix de vente |
| Taille de l’unité | 1 829 pi² |
| Prix | 786 055 $ CAD |
| Prix par pi² | 429,77 $ CAD |
| Utilisation du condo | Bureau |
| Type de vente | Investissement |
| Honoraires preneur | 5,50% du prix de vente |
| Taille de l’unité | 1 862 pi² | Utilisation du condo | Bureau |
| Prix | 919 652 $ CAD | Type de vente | Investissement |
| Prix par pi² | 493,91 $ CAD | Honoraires preneur | 5,50% du prix de vente |
| Taille de l’unité | 1 862 pi² |
| Prix | 919 652 $ CAD |
| Prix par pi² | 493,91 $ CAD |
| Utilisation du condo | Bureau |
| Type de vente | Investissement |
| Honoraires preneur | 5,50% du prix de vente |
| Taille de l’unité | 1 872 pi² | Utilisation du condo | Bureau |
| Prix | 860 455 $ CAD | Type de vente | Propriétaire utilisateur |
| Prix par pi² | 459,64 $ CAD | Honoraires preneur | 5,50% du prix de vente |
| Taille de l’unité | 1 872 pi² |
| Prix | 860 455 $ CAD |
| Prix par pi² | 459,64 $ CAD |
| Utilisation du condo | Bureau |
| Type de vente | Propriétaire utilisateur |
| Honoraires preneur | 5,50% du prix de vente |
Présenté par
"63170 Aubière"
Hmm, il semble y avoir eu une erreur lors de l’envoi de votre message. Veuillez réessayer.
Merci! Votre message a été envoyé.
