Votre courriel a été envoyé.
63170 Aubière Unités de condo • Bureau • À vendre 836 856 $ CAD par unité



Certaines informations ont été traduites automatiquement.
Description
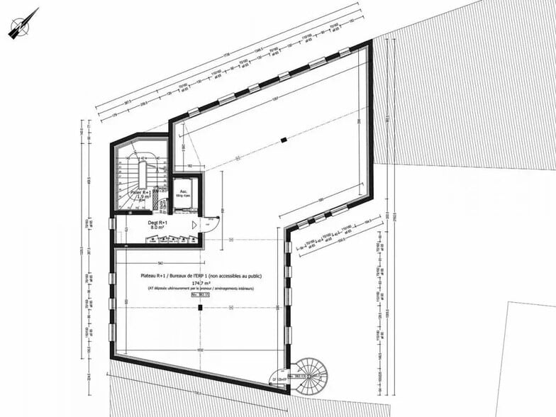
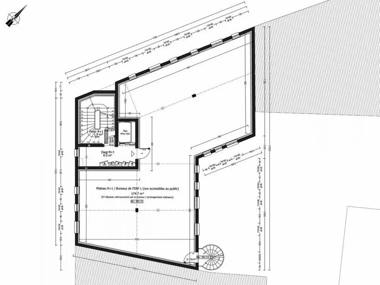
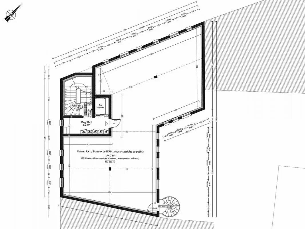
CIDERA² propose en VEFA 3 plateaux bureaux neufs Aubière centre-ville (début 2027) : 170 m² RDC brut fluides prêts (accueil public), 173/174 m² R+1/R+2 finis (climatisation, sols, murs, électricité). 2 parkings/ plateau inclus, proximité commerces. Idéal pour structurer votre siège en centre-ville animé. Accompagnement projet global. Dossier commercial sur demande. Frais de rédaction d'actes à prévoir. Honoraires payables à la signature de l'acte. Régime fiscal : TVA. Rédaction de l'acte à la charge de l'acquéreur - Accès PMR - Ascenseur - Brut de décoffrage - Climatisation réversible - Double vitrage - Faux plafond - Gaz de Ville - Issue de secours - Luminaires type LED faux-plafond - Menuiseries posées - Nbre Parkings extérieurs privatifs : 6 - Open Space - RE 2020 - Vidéophone
Faits sur la propriété
| Prix | 836 856 $ CAD | Taille totale du bâtiment | 5 565 pi² |
| Taille de l’unité | 1 829 - 1 872 pi² | Type de propriété | Bureau |
| Nombre d’unités | 3 |
| Prix | 836 856 $ CAD |
| Taille de l’unité | 1 829 - 1 872 pi² |
| Nombre d’unités | 3 |
| Taille totale du bâtiment | 5 565 pi² |
| Type de propriété | Bureau |
3 Unités disponibles
| Taille de l’unité | 1 829 pi² | Utilisation du condo | Bureau |
| Prix | 779 580 $ CAD | Type de vente | Propriétaire utilisateur |
| Prix par pi² | 426,23 $ CAD | Honoraires preneur | 5,50% du prix de vente |
| Taille de l’unité | 1 829 pi² |
| Prix | 779 580 $ CAD |
| Prix par pi² | 426,23 $ CAD |
| Utilisation du condo | Bureau |
| Type de vente | Propriétaire utilisateur |
| Honoraires preneur | 5,50% du prix de vente |
| Taille de l’unité | 1 862 pi² | Utilisation du condo | Bureau |
| Prix | 912 076 $ CAD | Type de vente | Propriétaire utilisateur |
| Prix par pi² | 489,84 $ CAD | Honoraires preneur | 5,50% du prix de vente |
| Taille de l’unité | 1 862 pi² |
| Prix | 912 076 $ CAD |
| Prix par pi² | 489,84 $ CAD |
| Utilisation du condo | Bureau |
| Type de vente | Propriétaire utilisateur |
| Honoraires preneur | 5,50% du prix de vente |
| Taille de l’unité | 1 872 pi² | Utilisation du condo | Bureau |
| Prix | 853 367 $ CAD | Type de vente | Propriétaire utilisateur |
| Prix par pi² | 455,86 $ CAD | Honoraires preneur | 5,50% du prix de vente |
| Taille de l’unité | 1 872 pi² |
| Prix | 853 367 $ CAD |
| Prix par pi² | 455,86 $ CAD |
| Utilisation du condo | Bureau |
| Type de vente | Propriétaire utilisateur |
| Honoraires preneur | 5,50% du prix de vente |
Présenté par
"63170 Aubière"
Hmm, il semble y avoir eu une erreur lors de l’envoi de votre message. Veuillez réessayer.
Merci! Votre message a été envoyé.
