Votre courriel a été envoyé.
Avenida del Partenón, 8-10 Unité de condo • Bureau • 4 122 pi² • À vendre 3 200 743 $ CAD • Barajas, Madrid 28042



Certaines informations ont été traduites automatiquement.
Faits saillants de l'investissement
- Localizado en una esquina, lo que expone la propiedad a un alto tráfico peatonal, generando visibilidad para el negocio.
- Cercano a la autopista E-5, a la carretera M-11 y bien comunicado mediante transporte público.
Résumé de l'annonce
Bâtiment de bureaux de 21 192 m², construit en 1993 le long de l'Avenida del Partenón, à Madrid. Situé au cœur de Campo de las Naciones, il s'agit d'un immeuble moderne et représentatif, idéal pour les entreprises. De plus, il bénéficie d'excellentes connexions, face à l'IFEMA et à proximité de la station de métro, dans une zone d'affaires bien établie.
1 Unité disponible
| Taille de l’unité | 4 122 pi² | Utilisation du condo | Bureau |
| Prix | 3 200 743 $ CAD | Type de vente | Investissement ou propriétaire utilisateur |
| Prix par pi² | 776,50 $ CAD |
| Taille de l’unité | 4 122 pi² |
| Prix | 3 200 743 $ CAD |
| Prix par pi² | 776,50 $ CAD |
| Utilisation du condo | Bureau |
| Type de vente | Investissement ou propriétaire utilisateur |
Description
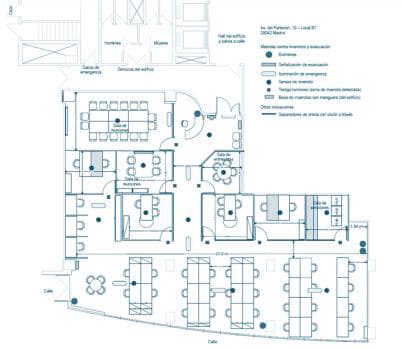
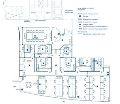
Oficina exterior de 383 m² distribuida en despachos y una zona diáfana.
Notes sur la vente
Gran oportunidad de adquirir una oficina exterior de 383?m², distribuida en despachos y una zona diáfana que permite una configuración flexible del espacio. El inmueble dispone de suelo técnico y falso techo metálico con luminarias LED empotradas, lo que garantiza funcionalidad y eficiencia energética. Su localización en el corazón de Campo de las Naciones lo convierte en un activo moderno y representativo, ideal para empresas que buscan visibilidad y prestigio.
Plano de la oficina
Interior
Interior
Interior
Interior
Interior
Faits sur la propriété
| Taille totale du bâtiment | 228 109 pi² | Superficie de plancher typique | 38 007 pi² |
| Type de propriété | Bureau (Condo) | Année de construction | 1993 |
| Classe d’immeuble | B | Taille du lot | 1,30 AC |
| Planchers | 6 | Ratio de stationnement | 1,4/1 000 pi² |
| Taille totale du bâtiment | 228 109 pi² |
| Type de propriété | Bureau (Condo) |
| Classe d’immeuble | B |
| Planchers | 6 |
| Superficie de plancher typique | 38 007 pi² |
| Année de construction | 1993 |
| Taille du lot | 1,30 AC |
| Ratio de stationnement | 1,4/1 000 pi² |
Commodités
- Système de sécurité
- Climatisation
Présenté par
Avenida del Partenón, 8-10
Hmm, il semble y avoir eu une erreur lors de l’envoi de votre message. Veuillez réessayer.
Merci! Votre message a été envoyé.

