Se Connecter/S’inscrire
Votre courriel a été envoyé.
Zona de El Raval Immeuble d’appartements 5 144 315 $ CAD Ciutat Vella, Barcelone 08001



Certaines informations ont été traduites automatiquement.
Faits saillants de l'investissement
- Magnífico edificio residencial totalmente rehabilitado integralmente.
- Acabados de alta gama, eficiencia energética y domótica.
- Fachadas restauradas con criterios patrimoniales aprobados.
- Once unidades residenciales con terrazas y patio privado.
- Rentabilidad estimada del 5,75% en zona de alta demanda.
- Ideal para coliving, alquiler temporal o residencial tradicional.
Résumé de l'annonce
Ref.: BCN-INV-011239
Disponible en venta magnífico edificio residencial rehabilitado integralmente ubicado en El Raval.
Una oportunidad única para inversores que buscan activos con alta rentabilidad y acabados de calidad.
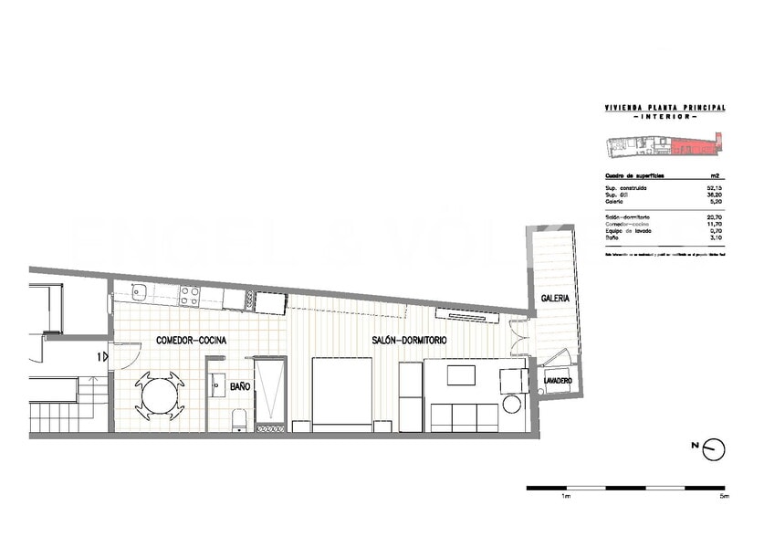
Cuenta con una superficie construida de 624 m2 y está distribuido en seis plantas sobre rasante con un total de 11 unidades residenciales de los cuales ocho pisos cuenta con 51 m2, dos áticos de 42 m2 con terrazas privativas y un amplio loft de 101 m2 en planta baja con patio posterior.
La rehabilitación integral ha respetado la estructura original del edificio, incluyendo muros de ladrillo macizo, vigas de madera y bóvedas cerámicas, combinando tradición arquitectónica con acabados contemporáneos.
El interior de las viviendas ofrecen pavimentos de parquet de roble natural, cocinas equipadas con electrodomésticos de alta gama, climatización por aerotermia, placas solares para agua caliente y preinstalación para domótica.
El edificio ofrece un vestíbulo accesible, ascensor de última generación, iluminación decorativa y terrazas rehabilitadas.
Ideal para utilizarlo como coliving, alquileres de temporada o residencial tradicional.
Hay una previsión de rentabilidad mínima del 5,75%.
Disponible en venta magnífico edificio residencial rehabilitado integralmente ubicado en El Raval.
Una oportunidad única para inversores que buscan activos con alta rentabilidad y acabados de calidad.
Cuenta con una superficie construida de 624 m2 y está distribuido en seis plantas sobre rasante con un total de 11 unidades residenciales de los cuales ocho pisos cuenta con 51 m2, dos áticos de 42 m2 con terrazas privativas y un amplio loft de 101 m2 en planta baja con patio posterior.
La rehabilitación integral ha respetado la estructura original del edificio, incluyendo muros de ladrillo macizo, vigas de madera y bóvedas cerámicas, combinando tradición arquitectónica con acabados contemporáneos.
El interior de las viviendas ofrecen pavimentos de parquet de roble natural, cocinas equipadas con electrodomésticos de alta gama, climatización por aerotermia, placas solares para agua caliente y preinstalación para domótica.
El edificio ofrece un vestíbulo accesible, ascensor de última generación, iluminación decorativa y terrazas rehabilitadas.
Ideal para utilizarlo como coliving, alquileres de temporada o residencial tradicional.
Hay una previsión de rentabilidad mínima del 5,75%.
Faits sur la propriété
| Prix | 5 144 315 $ CAD | Style d’appartement | De hauteur moyenne |
| Type de vente | Investissement | Classe d’immeuble | C |
| Type de propriété | Immeuble residentiel | Taille du bâtiment | < 15 000 pi² |
| Sous-type de propriété | Appartement | Année de construction/rénovation | 1870 - 1879/2020 - 2029 |
| Prix | 5 144 315 $ CAD |
| Type de vente | Investissement |
| Type de propriété | Immeuble residentiel |
| Sous-type de propriété | Appartement |
| Style d’appartement | De hauteur moyenne |
| Classe d’immeuble | C |
| Taille du bâtiment | < 15 000 pi² |
| Année de construction/rénovation | 1870 - 1879/2020 - 2029 |
1 1
1 de 6
Vidéos
Visite extérieure 3D Matterport
Visite 3D Matterport
Photos
Vue depuis la rue
Rue
Carte
1 de 1
Présenté par
Zona de El Raval
Vous êtes déjà membre? Connectez-vous
Hmm, il semble y avoir eu une erreur lors de l’envoi de votre message. Veuillez réessayer.
Merci! Votre message a été envoyé.
