Se Connecter/S’inscrire
Votre courriel a été envoyé.
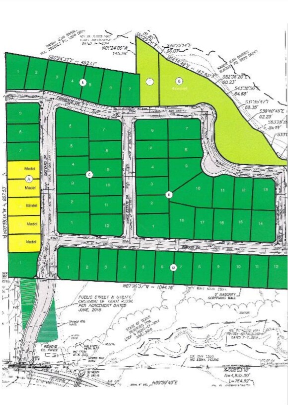
Bear Creek Rd - Vineyards at Bear Creek Lot • Résidentiel • 18,06 Acres • 4 453 120 $ CAD • Cedar Hill, TX 75104


Certaines informations ont été traduites automatiquement.
FAITS SUR LA PROPRIÉTÉ
1 LOT DISPONIBLE
Lot 1-60
| Prix | 4 453 120 $ CAD | Taille du lot | 18,06 AC |
| Prix par AC | 246 573,65 $ CAD |
| Prix | 4 453 120 $ CAD |
| Prix par AC | 246 573,65 $ CAD |
| Taille du lot | 18,06 AC |
Plans approuvés et enregistrés avec plans techniques complets pour 60 lots SFR. Eau, égout, électricité et gaz naturel disponibles.
1 1
Impôts fonciers
| Numéro de lot | 168550000A0070000 | Évaluation des bâtiments | 0 $ CAD |
| Évaluation du terrain | 13 675 $ CAD | Évaluation totale | 13 675 $ CAD |
Impôts fonciers
Numéro de lot
168550000A0070000
Évaluation du terrain
13 675 $ CAD
Évaluation des bâtiments
0 $ CAD
Évaluation totale
13 675 $ CAD
1 de 3
VIDÉOS
VISITE EXTÉRIEURE 3D MATTERPORT
VISITE 3D MATTERPORT
PHOTOS
VUE DEPUIS LA RUE
RUE
CARTE
1 de 1
Présenté par
Surani Asset Management
Bear Creek Rd - Vineyards at Bear Creek
Vous êtes déjà membre? Connectez-vous
Hmm, il semble y avoir eu une erreur lors de l’envoi de votre message. Veuillez réessayer.
Merci! Votre message a été envoyé.
