Se Connecter/S’inscrire
Votre courriel a été envoyé.
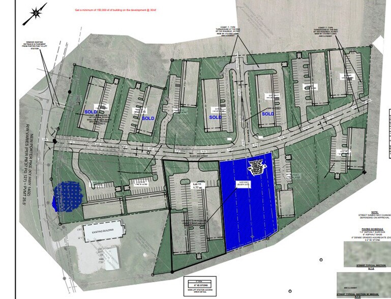
Black Oak St-Lot 13 St
Bowling Green, KY 42103
Black Oak Development-Lot 13 · Terrain À vendre
·
1,47 AC


Certaines informations ont été traduites automatiquement.
Faits saillants de l'investissement
- New Development
- Pad-ready, water retention is off-site
- Light Industrial Park
Résumé de l'annonce
Position your business for growth in Black Oak Industrial Park. These Light Industrial lots are ideal for small warehouses, contractor facilities, flex space, and service-based industrial users seeking a strategic and accessible location. Situated just 1.3 miles from Exit 28 on I65, the park is designed to support owner-users and investors alike, with flexible lot sizes suitable for custom-built warehouses and light manufacturing operations. There are seven lots available with the option of combining lots.
Faits sur la propriété
1 Lot disponible
Lot 13
| Prix | 683 615 $ CAD | Taille du lot | 1,47 AC |
| Prix par AC | 465 044,24 $ CAD |
| Prix | 683 615 $ CAD |
| Prix par AC | 465 044,24 $ CAD |
| Taille du lot | 1,47 AC |
These Light Industrial lots are ideal for small warehouses, contractor facilities, flex space, and service-based industrial users seeking a strategic and accessible location.
Impôts fonciers
| Numéro de lot | 051A-06-024 | Évaluation des bâtiments | 0 $ CAD |
| Évaluation du terrain | 0 $ CAD | Évaluation totale | 950 110 $ CAD |
Impôts fonciers
Numéro de lot
051A-06-024
Évaluation du terrain
0 $ CAD
Évaluation des bâtiments
0 $ CAD
Évaluation totale
950 110 $ CAD
1 de 5
Vidéos
Visite extérieure 3D Matterport
Visite 3D Matterport
Photos
Vue depuis la rue
Rue
Carte
