Votre courriel a été envoyé.
93000 Bobigny 775–103 947 pi² d'espace disponible



Certaines informations ont été traduites automatiquement.
FAITS SAILLANTS
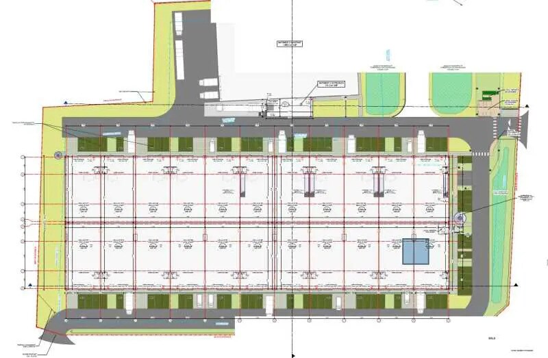
- À 3 km du périphérique parisien, dans une zone industrielle active
- Site clos et sécurisé avec livraison prévue mi-2025
- Accès multimodal : bus, tram, métro, autoroutes
TOUS LES ESPACES DISPONIBLES(56)
Afficher les taux de location en
- ESPACE
- TAILLE
- TERME
-
TAUX DE LOCATION
- UTILISATION DE L’ESPACE
- ÉTAT
- DISPONIBLE
L’espace à louer est un programme neuf conçu pour accueillir des activités variées dans un cadre moderne et fonctionnel. Chaque cellule dispose d’un accès par rampe ou porte à quai, avec une porte sectionnelle de 3,5 x 3,5 m et une résistance au sol allant jusqu’à 3 T/m². Les plateaux en R+1 offrent une hauteur maximale de 6,9 m, avec une charge admissible de 2 T/m², permettant une exploitation optimale des volumes. Les prestations incluent une climatisation réversible, un chauffage par aérothermes électriques, ainsi qu’un balcon privatif de 4 m² par lot.
- Dépôt de garantie: 3 mois de taux de location
- Espace en excellent état
- Programme neuf avec accès quai et plain-pied
- Climatisation réversible et balcon privatif
- 1 accès plain-pied
- Climatisation centrale
- Hauteur et résistance au sol adaptées
L’espace à louer est un programme neuf conçu pour accueillir des activités variées dans un cadre moderne et fonctionnel. Chaque cellule dispose d’un accès par rampe ou porte à quai, avec une porte sectionnelle de 3,5 x 3,5 m et une résistance au sol allant jusqu’à 3 T/m². Les plateaux en R+1 offrent une hauteur maximale de 6,9 m, avec une charge admissible de 2 T/m², permettant une exploitation optimale des volumes. Les prestations incluent une climatisation réversible, un chauffage par aérothermes électriques, ainsi qu’un balcon privatif de 4 m² par lot.
- Dépôt de garantie: 3 mois de taux de location
- Espace en excellent état
- Programme neuf avec accès quai et plain-pied
- Climatisation réversible et balcon privatif
- 1 accès plain-pied
- Climatisation centrale
- Hauteur et résistance au sol
L’espace à louer est un programme neuf conçu pour accueillir des activités variées dans un cadre moderne et fonctionnel. Chaque cellule dispose d’un accès par rampe ou porte à quai, avec une porte sectionnelle de 3,5 x 3,5 m et une résistance au sol allant jusqu’à 3 T/m². Les plateaux en R+1 offrent une hauteur maximale de 6,9 m, avec une charge admissible de 2 T/m², permettant une exploitation optimale des volumes. Les prestations incluent une climatisation réversible, un chauffage par aérothermes électriques, ainsi qu’un balcon privatif de 4 m² par lot.
- Dépôt de garantie: 3 mois de taux de location
- Espace en excellent état
- Programme neuf avec accès quai et plain-pied
- Climatisation réversible et balcon privatif
- 1 accès plain-pied
- Climatisation centrale
- Hauteur et résistance au sol
L’espace à louer est un programme neuf conçu pour accueillir des activités variées dans un cadre moderne et fonctionnel. Chaque cellule dispose d’un accès par rampe ou porte à quai, avec une porte sectionnelle de 3,5 x 3,5 m et une résistance au sol allant jusqu’à 3 T/m². Les plateaux en R+1 offrent une hauteur maximale de 6,9 m, avec une charge admissible de 2 T/m², permettant une exploitation optimale des volumes. Les prestations incluent une climatisation réversible, un chauffage par aérothermes électriques, ainsi qu’un balcon privatif de 4 m² par lot.
- Dépôt de garantie: 3 mois de taux de location
- Espace en excellent état
- Programme neuf avec accès quai et plain-pied
- Climatisation réversible et balcon privatif
- 1 accès plain-pied
- Climatisation centrale
- Hauteur et résistance au sol
L’espace à louer est un programme neuf conçu pour accueillir des activités variées dans un cadre moderne et fonctionnel. Chaque cellule dispose d’un accès par rampe ou porte à quai, avec une porte sectionnelle de 3,5 x 3,5 m et une résistance au sol allant jusqu’à 3 T/m². Les plateaux en R+1 offrent une hauteur maximale de 6,9 m, avec une charge admissible de 2 T/m², permettant une exploitation optimale des volumes. Les prestations incluent une climatisation réversible, un chauffage par aérothermes électriques, ainsi qu’un balcon privatif de 4 m² par lot.
- Dépôt de garantie: 3 mois de taux de location
- Espace en excellent état
- Programme neuf avec accès quai et plain-pied
- Climatisation réversible et balcon privatif
- 1 accès plain-pied
- Climatisation centrale
- Hauteur et résistance au sol
L’espace à louer est un programme neuf conçu pour accueillir des activités variées dans un cadre moderne et fonctionnel. Chaque cellule dispose d’un accès par rampe ou porte à quai, avec une porte sectionnelle de 3,5 x 3,5 m et une résistance au sol allant jusqu’à 3 T/m². Les plateaux en R+1 offrent une hauteur maximale de 6,9 m, avec une charge admissible de 2 T/m², permettant une exploitation optimale des volumes. Les prestations incluent une climatisation réversible, un chauffage par aérothermes électriques, ainsi qu’un balcon privatif de 4 m² par lot.
- Dépôt de garantie: 3 mois de taux de location
- Espace en excellent état
- Programme neuf avec accès quai et plain-pied
- Climatisation réversible et balcon privatif
- 1 accès plain-pied
- Climatisation centrale
- Hauteur et résistance au sol
L’espace à louer est un programme neuf conçu pour accueillir des activités variées dans un cadre moderne et fonctionnel. Chaque cellule dispose d’un accès par rampe ou porte à quai, avec une porte sectionnelle de 3,5 x 3,5 m et une résistance au sol allant jusqu’à 3 T/m². Les plateaux en R+1 offrent une hauteur maximale de 6,9 m, avec une charge admissible de 2 T/m², permettant une exploitation optimale des volumes. Les prestations incluent une climatisation réversible, un chauffage par aérothermes électriques, ainsi qu’un balcon privatif de 4 m² par lot.
- Dépôt de garantie: 3 mois de taux de location
- Espace en excellent état
- Programme neuf avec accès quai et plain-pied
- Climatisation réversible et balcon privatif
- 1 accès plain-pied
- Climatisation centrale
- Hauteur et résistance au sol
L’espace à louer est un programme neuf conçu pour accueillir des activités variées dans un cadre moderne et fonctionnel. Chaque cellule dispose d’un accès par rampe ou porte à quai, avec une porte sectionnelle de 3,5 x 3,5 m et une résistance au sol allant jusqu’à 3 T/m². Les plateaux en R+1 offrent une hauteur maximale de 6,9 m, avec une charge admissible de 2 T/m², permettant une exploitation optimale des volumes. Les prestations incluent une climatisation réversible, un chauffage par aérothermes électriques, ainsi qu’un balcon privatif de 4 m² par lot.
- Dépôt de garantie: 3 mois de taux de location
- Espace en excellent état
- Programme neuf avec accès quai et plain-pied
- Climatisation réversible et balcon privatif
- 1 accès plain-pied
- Climatisation centrale
- Hauteur et résistance au sol
L’espace à louer est un programme neuf conçu pour accueillir des activités variées dans un cadre moderne et fonctionnel. Chaque cellule dispose d’un accès par rampe ou porte à quai, avec une porte sectionnelle de 3,5 x 3,5 m et une résistance au sol allant jusqu’à 3 T/m². Les plateaux en R+1 offrent une hauteur maximale de 6,9 m, avec une charge admissible de 2 T/m², permettant une exploitation optimale des volumes. Les prestations incluent une climatisation réversible, un chauffage par aérothermes électriques, ainsi qu’un balcon privatif de 4 m² par lot.
- Dépôt de garantie: 3 mois de taux de location
- Espace en excellent état
- Programme neuf avec accès quai et plain-pied
- Climatisation réversible et balcon privatif
- 1 accès plain-pied
- Climatisation centrale
- Hauteur et résistance au sol
L’espace à louer est un programme neuf conçu pour accueillir des activités variées dans un cadre moderne et fonctionnel. Chaque cellule dispose d’un accès par rampe ou porte à quai, avec une porte sectionnelle de 3,5 x 3,5 m et une résistance au sol allant jusqu’à 3 T/m². Les plateaux en R+1 offrent une hauteur maximale de 6,9 m, avec une charge admissible de 2 T/m², permettant une exploitation optimale des volumes. Les prestations incluent une climatisation réversible, un chauffage par aérothermes électriques, ainsi qu’un balcon privatif de 4 m² par lot.
- Dépôt de garantie: 3 mois de taux de location
- Espace en excellent état
- Programme neuf avec accès quai et plain-pied
- Climatisation réversible et balcon privatif
- 1 accès plain-pied
- Climatisation centrale
- Hauteur et résistance au sol
L’espace à louer est un programme neuf conçu pour accueillir des activités variées dans un cadre moderne et fonctionnel. Chaque cellule dispose d’un accès par rampe ou porte à quai, avec une porte sectionnelle de 3,5 x 3,5 m et une résistance au sol allant jusqu’à 3 T/m². Les plateaux en R+1 offrent une hauteur maximale de 6,9 m, avec une charge admissible de 2 T/m², permettant une exploitation optimale des volumes. Les prestations incluent une climatisation réversible, un chauffage par aérothermes électriques, ainsi qu’un balcon privatif de 4 m² par lot.
- Dépôt de garantie: 3 mois de taux de location
- Espace en excellent état
- Programme neuf avec accès quai et plain-pied
- Climatisation réversible et balcon privatif
- 1 accès plain-pied
- Climatisation centrale
- Hauteur et résistance au sol
L’espace à louer est un programme neuf conçu pour accueillir des activités variées dans un cadre moderne et fonctionnel. Chaque cellule dispose d’un accès par rampe ou porte à quai, avec une porte sectionnelle de 3,5 x 3,5 m et une résistance au sol allant jusqu’à 3 T/m². Les plateaux en R+1 offrent une hauteur maximale de 6,9 m, avec une charge admissible de 2 T/m², permettant une exploitation optimale des volumes. Les prestations incluent une climatisation réversible, un chauffage par aérothermes électriques, ainsi qu’un balcon privatif de 4 m² par lot.
- Dépôt de garantie: 3 mois de taux de location
- Espace en excellent état
- Programme neuf avec accès quai et plain-pied
- Climatisation réversible et balcon privatif
- 1 accès plain-pied
- Climatisation centrale
- Hauteur et résistance au sol
L’espace à louer est un programme neuf conçu pour accueillir des activités variées dans un cadre moderne et fonctionnel. Chaque cellule dispose d’un accès par rampe ou porte à quai, avec une porte sectionnelle de 3,5 x 3,5 m et une résistance au sol allant jusqu’à 3 T/m². Les plateaux en R+1 offrent une hauteur maximale de 6,9 m, avec une charge admissible de 2 T/m², permettant une exploitation optimale des volumes. Les prestations incluent une climatisation réversible, un chauffage par aérothermes électriques, ainsi qu’un balcon privatif de 4 m² par lot.
- Dépôt de garantie: 3 mois de taux de location
- Espace en excellent état
- Programme neuf avec accès quai et plain-pied
- Climatisation réversible et balcon privatif
- 1 accès plain-pied
- Climatisation centrale
- Hauteur et résistance au sol
L’espace à louer est un programme neuf conçu pour accueillir des activités variées dans un cadre moderne et fonctionnel. Chaque cellule dispose d’un accès par rampe ou porte à quai, avec une porte sectionnelle de 3,5 x 3,5 m et une résistance au sol allant jusqu’à 3 T/m². Les plateaux en R+1 offrent une hauteur maximale de 6,9 m, avec une charge admissible de 2 T/m², permettant une exploitation optimale des volumes. Les prestations incluent une climatisation réversible, un chauffage par aérothermes électriques, ainsi qu’un balcon privatif de 4 m² par lot.
- Dépôt de garantie: 3 mois de taux de location
- Espace en excellent état
- Programme neuf avec accès quai et plain-pied
- Climatisation réversible et balcon privatif
- 1 accès plain-pied
- Climatisation centrale
- Hauteur et résistance au sol
L’espace à louer est un programme neuf conçu pour accueillir des activités variées dans un cadre moderne et fonctionnel. Chaque cellule dispose d’un accès par rampe ou porte à quai, avec une porte sectionnelle de 3,5 x 3,5 m et une résistance au sol allant jusqu’à 3 T/m². Les plateaux en R+1 offrent une hauteur maximale de 6,9 m, avec une charge admissible de 2 T/m², permettant une exploitation optimale des volumes. Les prestations incluent une climatisation réversible, un chauffage par aérothermes électriques, ainsi qu’un balcon privatif de 4 m² par lot.
- Dépôt de garantie: 3 mois de taux de location
- Espace en excellent état
- Programme neuf avec accès quai et plain-pied
- Climatisation réversible et balcon privatif
- 1 accès plain-pied
- Climatisation centrale
- Hauteur et résistance au sol
L’espace à louer est un programme neuf conçu pour accueillir des activités variées dans un cadre moderne et fonctionnel. Chaque cellule dispose d’un accès par rampe ou porte à quai, avec une porte sectionnelle de 3,5 x 3,5 m et une résistance au sol allant jusqu’à 3 T/m². Les plateaux en R+1 offrent une hauteur maximale de 6,9 m, avec une charge admissible de 2 T/m², permettant une exploitation optimale des volumes. Les prestations incluent une climatisation réversible, un chauffage par aérothermes électriques, ainsi qu’un balcon privatif de 4 m² par lot.
- Dépôt de garantie: 3 mois de taux de location
- Espace en excellent état
- Programme neuf avec accès quai et plain-pied
- Climatisation réversible et balcon privatif
- 1 accès plain-pied
- Climatisation centrale
- Hauteur et résistance au sol
L’espace à louer est un programme neuf conçu pour accueillir des activités variées dans un cadre moderne et fonctionnel. Chaque cellule dispose d’un accès par rampe ou porte à quai, avec une porte sectionnelle de 3,5 x 3,5 m et une résistance au sol allant jusqu’à 3 T/m². Les plateaux en R+1 offrent une hauteur maximale de 6,9 m, avec une charge admissible de 2 T/m², permettant une exploitation optimale des volumes. Les prestations incluent une climatisation réversible, un chauffage par aérothermes électriques, ainsi qu’un balcon privatif de 4 m² par lot.
- Dépôt de garantie: 3 mois de taux de location
- Espace en excellent état
- Programme neuf avec accès quai et plain-pied
- Climatisation réversible et balcon privatif
- 1 accès plain-pied
- Climatisation centrale
- Hauteur et résistance au sol
L’espace à louer est un programme neuf conçu pour accueillir des activités variées dans un cadre moderne et fonctionnel. Chaque cellule dispose d’un accès par rampe ou porte à quai, avec une porte sectionnelle de 3,5 x 3,5 m et une résistance au sol allant jusqu’à 3 T/m². Les plateaux en R+1 offrent une hauteur maximale de 6,9 m, avec une charge admissible de 2 T/m², permettant une exploitation optimale des volumes. Les prestations incluent une climatisation réversible, un chauffage par aérothermes électriques, ainsi qu’un balcon privatif de 4 m² par lot.
- Dépôt de garantie: 3 mois de taux de location
- Espace en excellent état
- Programme neuf avec accès quai et plain-pied
- Climatisation réversible et balcon privatif
- 1 accès plain-pied
- Climatisation centrale
- Hauteur et résistance au sol
L’espace à louer est un programme neuf conçu pour accueillir des activités variées dans un cadre moderne et fonctionnel. Chaque cellule dispose d’un accès par rampe ou porte à quai, avec une porte sectionnelle de 3,5 x 3,5 m et une résistance au sol allant jusqu’à 3 T/m². Les plateaux en R+1 offrent une hauteur maximale de 6,9 m, avec une charge admissible de 2 T/m², permettant une exploitation optimale des volumes. Les prestations incluent une climatisation réversible, un chauffage par aérothermes électriques, ainsi qu’un balcon privatif de 4 m² par lot.
- Dépôt de garantie: 3 mois de taux de location
- Espace en excellent état
- Programme neuf avec accès quai et plain-pied
- Climatisation réversible et balcon privatif
- 1 accès plain-pied
- Climatisation centrale
- Hauteur et résistance au sol
L’espace à louer est un programme neuf conçu pour accueillir des activités variées dans un cadre moderne et fonctionnel. Chaque cellule dispose d’un accès par rampe ou porte à quai, avec une porte sectionnelle de 3,5 x 3,5 m et une résistance au sol allant jusqu’à 3 T/m². Les plateaux en R+1 offrent une hauteur maximale de 6,9 m, avec une charge admissible de 2 T/m², permettant une exploitation optimale des volumes. Les prestations incluent une climatisation réversible, un chauffage par aérothermes électriques, ainsi qu’un balcon privatif de 4 m² par lot.
- Dépôt de garantie: 3 mois de taux de location
- Espace en excellent état
- Programme neuf avec accès quai et plain-pied
- Climatisation réversible et balcon privatif
- 1 accès plain-pied
- Climatisation centrale
- Hauteur et résistance au sol
L’espace à louer est un programme neuf conçu pour accueillir des activités variées dans un cadre moderne et fonctionnel. Chaque cellule dispose d’un accès par rampe ou porte à quai, avec une porte sectionnelle de 3,5 x 3,5 m et une résistance au sol allant jusqu’à 3 T/m². Les plateaux en R+1 offrent une hauteur maximale de 6,9 m, avec une charge admissible de 2 T/m², permettant une exploitation optimale des volumes. Les prestations incluent une climatisation réversible, un chauffage par aérothermes électriques, ainsi qu’un balcon privatif de 4 m² par lot.
- Dépôt de garantie: 3 mois de taux de location
- Espace en excellent état
- Programme neuf avec accès quai et plain-pied
- Climatisation réversible et balcon privatif
- 1 accès plain-pied
- Climatisation centrale
- Hauteur et résistance au sol
L’espace à louer est un programme neuf conçu pour accueillir des activités variées dans un cadre moderne et fonctionnel. Chaque cellule dispose d’un accès par rampe ou porte à quai, avec une porte sectionnelle de 3,5 x 3,5 m et une résistance au sol allant jusqu’à 3 T/m². Les plateaux en R+1 offrent une hauteur maximale de 6,9 m, avec une charge admissible de 2 T/m², permettant une exploitation optimale des volumes. Les prestations incluent une climatisation réversible, un chauffage par aérothermes électriques, ainsi qu’un balcon privatif de 4 m² par lot.
- Dépôt de garantie: 3 mois de taux de location
- Espace en excellent état
- Programme neuf avec accès quai et plain-pied
- Climatisation réversible et balcon privatif
- 1 accès plain-pied
- Climatisation centrale
- Hauteur et résistance au sol
L’espace à louer est un programme neuf conçu pour accueillir des activités variées dans un cadre moderne et fonctionnel. Chaque cellule dispose d’un accès par rampe ou porte à quai, avec une porte sectionnelle de 3,5 x 3,5 m et une résistance au sol allant jusqu’à 3 T/m². Les plateaux en R+1 offrent une hauteur maximale de 6,9 m, avec une charge admissible de 2 T/m², permettant une exploitation optimale des volumes. Les prestations incluent une climatisation réversible, un chauffage par aérothermes électriques, ainsi qu’un balcon privatif de 4 m² par lot.
- Dépôt de garantie: 3 mois de taux de location
- Espace en excellent état
- Programme neuf avec accès quai et plain-pied
- Climatisation réversible et balcon privatif
- 1 accès plain-pied
- Climatisation centrale
- Hauteur et résistance au sol
L’espace à louer est un programme neuf conçu pour accueillir des activités variées dans un cadre moderne et fonctionnel. Chaque cellule dispose d’un accès par rampe ou porte à quai, avec une porte sectionnelle de 3,5 x 3,5 m et une résistance au sol allant jusqu’à 3 T/m². Les plateaux en R+1 offrent une hauteur maximale de 6,9 m, avec une charge admissible de 2 T/m², permettant une exploitation optimale des volumes. Les prestations incluent une climatisation réversible, un chauffage par aérothermes électriques, ainsi qu’un balcon privatif de 4 m² par lot.
- Dépôt de garantie: 3 mois de taux de location
- Espace en excellent état
- Programme neuf avec accès quai et plain-pied
- Climatisation réversible et balcon privatif
- 1 accès plain-pied
- Climatisation centrale
- Hauteur et résistance au sol
L’espace à louer est un programme neuf conçu pour accueillir des activités variées dans un cadre moderne et fonctionnel. Chaque cellule dispose d’un accès par rampe ou porte à quai, avec une porte sectionnelle de 3,5 x 3,5 m et une résistance au sol allant jusqu’à 3 T/m². Les plateaux en R+1 offrent une hauteur maximale de 6,9 m, avec une charge admissible de 2 T/m², permettant une exploitation optimale des volumes. Les prestations incluent une climatisation réversible, un chauffage par aérothermes électriques, ainsi qu’un balcon privatif de 4 m² par lot.
- Dépôt de garantie: 3 mois de taux de location
- Espace en excellent état
- Programme neuf avec accès quai et plain-pied
- Climatisation réversible et balcon privatif
- 1 accès plain-pied
- Climatisation centrale
- Hauteur et résistance au sol
L’espace à louer est un programme neuf conçu pour accueillir des activités variées dans un cadre moderne et fonctionnel. Chaque cellule dispose d’un accès par rampe ou porte à quai, avec une porte sectionnelle de 3,5 x 3,5 m et une résistance au sol allant jusqu’à 3 T/m². Les plateaux en R+1 offrent une hauteur maximale de 6,9 m, avec une charge admissible de 2 T/m², permettant une exploitation optimale des volumes. Les prestations incluent une climatisation réversible, un chauffage par aérothermes électriques, ainsi qu’un balcon privatif de 4 m² par lot.
- Dépôt de garantie: 3 mois de taux de location
- Espace en excellent état
- Programme neuf avec accès quai et plain-pied
- Climatisation réversible et balcon privatif
- 1 accès plain-pied
- Climatisation centrale
- Hauteur et résistance au sol
L’espace à louer est un programme neuf conçu pour accueillir des activités variées dans un cadre moderne et fonctionnel. Chaque cellule dispose d’un accès par rampe ou porte à quai, avec une porte sectionnelle de 3,5 x 3,5 m et une résistance au sol allant jusqu’à 3 T/m². Les plateaux en R+1 offrent une hauteur maximale de 6,9 m, avec une charge admissible de 2 T/m², permettant une exploitation optimale des volumes. Les prestations incluent une climatisation réversible, un chauffage par aérothermes électriques, ainsi qu’un balcon privatif de 4 m² par lot.
- Dépôt de garantie: 3 mois de taux de location
- Espace en excellent état
- Programme neuf avec accès quai et plain-pied
- Climatisation réversible et balcon privatif
- 1 accès plain-pied
- Climatisation centrale
- Hauteur et résistance au sol
L’espace à louer est un programme neuf conçu pour accueillir des activités variées dans un cadre moderne et fonctionnel. Chaque cellule dispose d’un accès par rampe ou porte à quai, avec une porte sectionnelle de 3,5 x 3,5 m et une résistance au sol allant jusqu’à 3 T/m². Les plateaux en R+1 offrent une hauteur maximale de 6,9 m, avec une charge admissible de 2 T/m², permettant une exploitation optimale des volumes. Les prestations incluent une climatisation réversible, un chauffage par aérothermes électriques, ainsi qu’un balcon privatif de 4 m² par lot.
- Dépôt de garantie: 3 mois de taux de location
- Espace en excellent état
- Programme neuf avec accès quai et plain-pied
- Climatisation réversible et balcon privatif
- 1 accès plain-pied
- Climatisation centrale
- Hauteur et résistance au sol
L’espace à louer est un programme neuf conçu pour accueillir des activités variées dans un cadre moderne et fonctionnel. Chaque cellule dispose d’un accès par rampe ou porte à quai, avec une porte sectionnelle de 3,5 x 3,5 m et une résistance au sol allant jusqu’à 3 T/m². Les plateaux en R+1 offrent une hauteur maximale de 6,9 m, avec une charge admissible de 2 T/m², permettant une exploitation optimale des volumes. Les prestations incluent une climatisation réversible, un chauffage par aérothermes électriques, ainsi qu’un balcon privatif de 4 m² par lot.
- Dépôt de garantie: 3 mois de taux de location
- Espace en excellent état
- Programme neuf avec accès quai et plain-pied
- Climatisation réversible et balcon privatif
- 1 accès plain-pied
- Climatisation centrale
- Hauteur et résistance au sol
L’espace à louer est un programme neuf conçu pour accueillir des activités variées dans un cadre moderne et fonctionnel. Chaque cellule dispose d’un accès par rampe ou porte à quai, avec une porte sectionnelle de 3,5 x 3,5 m et une résistance au sol allant jusqu’à 3 T/m². Les plateaux en R+1 offrent une hauteur maximale de 6,9 m, avec une charge admissible de 2 T/m², permettant une exploitation optimale des volumes. Les prestations incluent une climatisation réversible, un chauffage par aérothermes électriques, ainsi qu’un balcon privatif de 4 m² par lot.
- Dépôt de garantie: 3 mois de taux de location
- Espace en excellent état
- Programme neuf avec accès quai et plain-pied
- Climatisation réversible et balcon privatif
- 1 accès plain-pied
- Climatisation centrale
- Hauteur et résistance au sol
L’espace à louer est un programme neuf conçu pour accueillir des activités variées dans un cadre moderne et fonctionnel. Chaque cellule dispose d’un accès par rampe ou porte à quai, avec une porte sectionnelle de 3,5 x 3,5 m et une résistance au sol allant jusqu’à 3 T/m². Les plateaux en R+1 offrent une hauteur maximale de 6,9 m, avec une charge admissible de 2 T/m², permettant une exploitation optimale des volumes. Les prestations incluent une climatisation réversible, un chauffage par aérothermes électriques, ainsi qu’un balcon privatif de 4 m² par lot.
- Dépôt de garantie: 3 mois de taux de location
- Espace en excellent état
- Programme neuf avec accès quai et plain-pied
- Climatisation réversible et balcon privatif
- 1 accès plain-pied
- Climatisation centrale
- Hauteur et résistance au sol
L’espace à louer est un programme neuf conçu pour accueillir des activités variées dans un cadre moderne et fonctionnel. Chaque cellule dispose d’un accès par rampe ou porte à quai, avec une porte sectionnelle de 3,5 x 3,5 m et une résistance au sol allant jusqu’à 3 T/m². Les plateaux en R+1 offrent une hauteur maximale de 6,9 m, avec une charge admissible de 2 T/m², permettant une exploitation optimale des volumes. Les prestations incluent une climatisation réversible, un chauffage par aérothermes électriques, ainsi qu’un balcon privatif de 4 m² par lot.
- Dépôt de garantie: 3 mois de taux de location
- Espace en excellent état
- Convient pour 2 à 7 personnes
- Hauteur et résistance au sol
- 1 accès plain-pied
- Climatisation centrale
- Programme neuf avec accès quai et plain-pied
- Climatisation réversible et balcon privatif
L’espace à louer est un programme neuf conçu pour accueillir des activités variées dans un cadre moderne et fonctionnel. Chaque cellule dispose d’un accès par rampe ou porte à quai, avec une porte sectionnelle de 3,5 x 3,5 m et une résistance au sol allant jusqu’à 3 T/m². Les plateaux en R+1 offrent une hauteur maximale de 6,9 m, avec une charge admissible de 2 T/m², permettant une exploitation optimale des volumes. Les prestations incluent une climatisation réversible, un chauffage par aérothermes électriques, ainsi qu’un balcon privatif de 4 m² par lot.
- Dépôt de garantie: 3 mois de taux de location
- Espace en excellent état
- Convient pour 2 à 7 personnes
- Hauteur et résistance au sol
- 1 accès plain-pied
- Climatisation centrale
- Programme neuf avec accès quai et plain-pied
- Climatisation réversible et balcon privatif
L’espace à louer est un programme neuf conçu pour accueillir des activités variées dans un cadre moderne et fonctionnel. Chaque cellule dispose d’un accès par rampe ou porte à quai, avec une porte sectionnelle de 3,5 x 3,5 m et une résistance au sol allant jusqu’à 3 T/m². Les plateaux en R+1 offrent une hauteur maximale de 6,9 m, avec une charge admissible de 2 T/m², permettant une exploitation optimale des volumes. Les prestations incluent une climatisation réversible, un chauffage par aérothermes électriques, ainsi qu’un balcon privatif de 4 m² par lot.
- Dépôt de garantie: 3 mois de taux de location
- Climatisation centrale
- Hauteur et résistance au sol
- Espace en excellent état
- Programme neuf avec accès quai et plain-pied
- Climatisation réversible et balcon privatif
L’espace à louer est un programme neuf conçu pour accueillir des activités variées dans un cadre moderne et fonctionnel. Chaque cellule dispose d’un accès par rampe ou porte à quai, avec une porte sectionnelle de 3,5 x 3,5 m et une résistance au sol allant jusqu’à 3 T/m². Les plateaux en R+1 offrent une hauteur maximale de 6,9 m, avec une charge admissible de 2 T/m², permettant une exploitation optimale des volumes. Les prestations incluent une climatisation réversible, un chauffage par aérothermes électriques, ainsi qu’un balcon privatif de 4 m² par lot.
- Dépôt de garantie: 3 mois de taux de location
- Espace en excellent état
- Programme neuf avec accès quai et plain-pied
- Climatisation réversible et balcon privatif
- 1 accès plain-pied
- Climatisation centrale
- Hauteur et résistance au sol
L’espace à louer est un programme neuf conçu pour accueillir des activités variées dans un cadre moderne et fonctionnel. Chaque cellule dispose d’un accès par rampe ou porte à quai, avec une porte sectionnelle de 3,5 x 3,5 m et une résistance au sol allant jusqu’à 3 T/m². Les plateaux en R+1 offrent une hauteur maximale de 6,9 m, avec une charge admissible de 2 T/m², permettant une exploitation optimale des volumes. Les prestations incluent une climatisation réversible, un chauffage par aérothermes électriques, ainsi qu’un balcon privatif de 4 m² par lot.
- Dépôt de garantie: 3 mois de taux de location
- Espace en excellent état
- Programme neuf avec accès quai et plain-pied
- Climatisation réversible et balcon privatif
- 1 accès plain-pied
- Climatisation centrale
- Hauteur et résistance au sol
L’espace à louer est un programme neuf conçu pour accueillir des activités variées dans un cadre moderne et fonctionnel. Chaque cellule dispose d’un accès par rampe ou porte à quai, avec une porte sectionnelle de 3,5 x 3,5 m et une résistance au sol allant jusqu’à 3 T/m². Les plateaux en R+1 offrent une hauteur maximale de 6,9 m, avec une charge admissible de 2 T/m², permettant une exploitation optimale des volumes. Les prestations incluent une climatisation réversible, un chauffage par aérothermes électriques, ainsi qu’un balcon privatif de 4 m² par lot.
- Dépôt de garantie: 3 mois de taux de location
- 1 accès plain-pied
- Programme neuf avec accès quai et plain-pied
- Climatisation réversible et balcon privatif
- Espace en excellent état
- Climatisation centrale
- Hauteur et résistance au sol
L’espace à louer est un programme neuf conçu pour accueillir des activités variées dans un cadre moderne et fonctionnel. Chaque cellule dispose d’un accès par rampe ou porte à quai, avec une porte sectionnelle de 3,5 x 3,5 m et une résistance au sol allant jusqu’à 3 T/m². Les plateaux en R+1 offrent une hauteur maximale de 6,9 m, avec une charge admissible de 2 T/m², permettant une exploitation optimale des volumes. Les prestations incluent une climatisation réversible, un chauffage par aérothermes électriques, ainsi qu’un balcon privatif de 4 m² par lot.
- Dépôt de garantie: 3 mois de taux de location
- Espace en excellent état
- Programme neuf avec accès quai et plain-pied
- Climatisation réversible et balcon privatif
- 1 accès plain-pied
- Climatisation centrale
- Hauteur et résistance au sol
L’espace à louer est un programme neuf conçu pour accueillir des activités variées dans un cadre moderne et fonctionnel. Chaque cellule dispose d’un accès par rampe ou porte à quai, avec une porte sectionnelle de 3,5 x 3,5 m et une résistance au sol allant jusqu’à 3 T/m². Les plateaux en R+1 offrent une hauteur maximale de 6,9 m, avec une charge admissible de 2 T/m², permettant une exploitation optimale des volumes. Les prestations incluent une climatisation réversible, un chauffage par aérothermes électriques, ainsi qu’un balcon privatif de 4 m² par lot.
- Dépôt de garantie: 3 mois de taux de location
- Espace en excellent état
- Programme neuf avec accès quai et plain-pied
- Climatisation réversible et balcon privatif
- 1 accès plain-pied
- Climatisation centrale
- Hauteur et résistance au sol
L’espace à louer est un programme neuf conçu pour accueillir des activités variées dans un cadre moderne et fonctionnel. Chaque cellule dispose d’un accès par rampe ou porte à quai, avec une porte sectionnelle de 3,5 x 3,5 m et une résistance au sol allant jusqu’à 3 T/m². Les plateaux en R+1 offrent une hauteur maximale de 6,9 m, avec une charge admissible de 2 T/m², permettant une exploitation optimale des volumes. Les prestations incluent une climatisation réversible, un chauffage par aérothermes électriques, ainsi qu’un balcon privatif de 4 m² par lot.
- Dépôt de garantie: 3 mois de taux de location
- Espace en excellent état
- Programme neuf avec accès quai et plain-pied
- Climatisation réversible et balcon privatif
- 1 accès plain-pied
- Climatisation centrale
- Hauteur et résistance au sol
L’espace à louer est un programme neuf conçu pour accueillir des activités variées dans un cadre moderne et fonctionnel. Chaque cellule dispose d’un accès par rampe ou porte à quai, avec une porte sectionnelle de 3,5 x 3,5 m et une résistance au sol allant jusqu’à 3 T/m². Les plateaux en R+1 offrent une hauteur maximale de 6,9 m, avec une charge admissible de 2 T/m², permettant une exploitation optimale des volumes. Les prestations incluent une climatisation réversible, un chauffage par aérothermes électriques, ainsi qu’un balcon privatif de 4 m² par lot.
- Dépôt de garantie: 3 mois de taux de location
- Espace en excellent état
- Programme neuf avec accès quai et plain-pied
- Climatisation réversible et balcon privatif
- 1 accès plain-pied
- Climatisation centrale
- Hauteur et résistance au sol
L’espace à louer est un programme neuf conçu pour accueillir des activités variées dans un cadre moderne et fonctionnel. Chaque cellule dispose d’un accès par rampe ou porte à quai, avec une porte sectionnelle de 3,5 x 3,5 m et une résistance au sol allant jusqu’à 3 T/m². Les plateaux en R+1 offrent une hauteur maximale de 6,9 m, avec une charge admissible de 2 T/m², permettant une exploitation optimale des volumes. Les prestations incluent une climatisation réversible, un chauffage par aérothermes électriques, ainsi qu’un balcon privatif de 4 m² par lot.
- Dépôt de garantie: 3 mois de taux de location
- Espace en excellent état
- Programme neuf avec accès quai et plain-pied
- Climatisation réversible et balcon privatif
- 1 accès plain-pied
- Climatisation centrale
- Hauteur et résistance au sol
L’espace à louer est un programme neuf conçu pour accueillir des activités variées dans un cadre moderne et fonctionnel. Chaque cellule dispose d’un accès par rampe ou porte à quai, avec une porte sectionnelle de 3,5 x 3,5 m et une résistance au sol allant jusqu’à 3 T/m². Les plateaux en R+1 offrent une hauteur maximale de 6,9 m, avec une charge admissible de 2 T/m², permettant une exploitation optimale des volumes. Les prestations incluent une climatisation réversible, un chauffage par aérothermes électriques, ainsi qu’un balcon privatif de 4 m² par lot.
- Dépôt de garantie: 3 mois de taux de location
- Espace en excellent état
- Programme neuf avec accès quai et plain-pied
- Climatisation réversible et balcon privatif
- 1 accès plain-pied
- Climatisation centrale
- Hauteur et résistance au sol
L’espace à louer est un programme neuf conçu pour accueillir des activités variées dans un cadre moderne et fonctionnel. Chaque cellule dispose d’un accès par rampe ou porte à quai, avec une porte sectionnelle de 3,5 x 3,5 m et une résistance au sol allant jusqu’à 3 T/m². Les plateaux en R+1 offrent une hauteur maximale de 6,9 m, avec une charge admissible de 2 T/m², permettant une exploitation optimale des volumes. Les prestations incluent une climatisation réversible, un chauffage par aérothermes électriques, ainsi qu’un balcon privatif de 4 m² par lot.
- Dépôt de garantie: 3 mois de taux de location
- Espace en excellent état
- Programme neuf avec accès quai et plain-pied
- Climatisation réversible et balcon privatif
- 1 accès plain-pied
- Climatisation centrale
- Hauteur et résistance au sol
L’espace à louer est un programme neuf conçu pour accueillir des activités variées dans un cadre moderne et fonctionnel. Chaque cellule dispose d’un accès par rampe ou porte à quai, avec une porte sectionnelle de 3,5 x 3,5 m et une résistance au sol allant jusqu’à 3 T/m². Les plateaux en R+1 offrent une hauteur maximale de 6,9 m, avec une charge admissible de 2 T/m², permettant une exploitation optimale des volumes. Les prestations incluent une climatisation réversible, un chauffage par aérothermes électriques, ainsi qu’un balcon privatif de 4 m² par lot.
- Dépôt de garantie: 3 mois de taux de location
- Espace en excellent état
- Programme neuf avec accès quai et plain-pied
- Climatisation réversible et balcon privatif
- 1 accès plain-pied
- Climatisation centrale
- Hauteur et résistance au sol
L’espace à louer est un programme neuf conçu pour accueillir des activités variées dans un cadre moderne et fonctionnel. Chaque cellule dispose d’un accès par rampe ou porte à quai, avec une porte sectionnelle de 3,5 x 3,5 m et une résistance au sol allant jusqu’à 3 T/m². Les plateaux en R+1 offrent une hauteur maximale de 6,9 m, avec une charge admissible de 2 T/m², permettant une exploitation optimale des volumes. Les prestations incluent une climatisation réversible, un chauffage par aérothermes électriques, ainsi qu’un balcon privatif de 4 m² par lot.
- Dépôt de garantie: 3 mois de taux de location
- Espace en excellent état
- Programme neuf avec accès quai et plain-pied
- Climatisation réversible et balcon privatif
- 1 accès plain-pied
- Climatisation centrale
- Hauteur et résistance au sol
L’espace à louer est un programme neuf conçu pour accueillir des activités variées dans un cadre moderne et fonctionnel. Chaque cellule dispose d’un accès par rampe ou porte à quai, avec une porte sectionnelle de 3,5 x 3,5 m et une résistance au sol allant jusqu’à 3 T/m². Les plateaux en R+1 offrent une hauteur maximale de 6,9 m, avec une charge admissible de 2 T/m², permettant une exploitation optimale des volumes. Les prestations incluent une climatisation réversible, un chauffage par aérothermes électriques, ainsi qu’un balcon privatif de 4 m² par lot.
- Dépôt de garantie: 3 mois de taux de location
- Espace en excellent état
- Convient pour 2 à 6 personnes
- Hauteur et résistance au sol
- 1 accès plain-pied
- Climatisation centrale
- Programme neuf avec accès quai et plain-pied
- Climatisation réversible et balcon privatif
L’espace à louer est un programme neuf conçu pour accueillir des activités variées dans un cadre moderne et fonctionnel. Chaque cellule dispose d’un accès par rampe ou porte à quai, avec une porte sectionnelle de 3,5 x 3,5 m et une résistance au sol allant jusqu’à 3 T/m². Les plateaux en R+1 offrent une hauteur maximale de 6,9 m, avec une charge admissible de 2 T/m², permettant une exploitation optimale des volumes. Les prestations incluent une climatisation réversible, un chauffage par aérothermes électriques, ainsi qu’un balcon privatif de 4 m² par lot.
- Dépôt de garantie: 3 mois de taux de location
- Espace en excellent état
- Convient pour 2 à 6 personnes
- Hauteur et résistance au sol
- 1 accès plain-pied
- Climatisation centrale
- Programme neuf avec accès quai et plain-pied
- Climatisation réversible et balcon privatif
L’espace à louer est un programme neuf conçu pour accueillir des activités variées dans un cadre moderne et fonctionnel. Chaque cellule dispose d’un accès par rampe ou porte à quai, avec une porte sectionnelle de 3,5 x 3,5 m et une résistance au sol allant jusqu’à 3 T/m². Les plateaux en R+1 offrent une hauteur maximale de 6,9 m, avec une charge admissible de 2 T/m², permettant une exploitation optimale des volumes. Les prestations incluent une climatisation réversible, un chauffage par aérothermes électriques, ainsi qu’un balcon privatif de 4 m² par lot.
- Dépôt de garantie: 3 mois de taux de location
- Espace en excellent état
- Convient pour 2 à 6 personnes
- Hauteur et résistance au sol
- 1 accès plain-pied
- Climatisation centrale
- Programme neuf avec accès quai et plain-pied
- Climatisation réversible et balcon privatif
L’espace à louer est un programme neuf conçu pour accueillir des activités variées dans un cadre moderne et fonctionnel. Chaque cellule dispose d’un accès par rampe ou porte à quai, avec une porte sectionnelle de 3,5 x 3,5 m et une résistance au sol allant jusqu’à 3 T/m². Les plateaux en R+1 offrent une hauteur maximale de 6,9 m, avec une charge admissible de 2 T/m², permettant une exploitation optimale des volumes. Les prestations incluent une climatisation réversible, un chauffage par aérothermes électriques, ainsi qu’un balcon privatif de 4 m² par lot.
- Dépôt de garantie: 3 mois de taux de location
- Espace en excellent état
- Convient pour 2 à 6 personnes
- Hauteur et résistance au sol
- 1 accès plain-pied
- Climatisation centrale
- Programme neuf avec accès quai et plain-pied
- Climatisation réversible et balcon privatif
L’espace à louer est un programme neuf conçu pour accueillir des activités variées dans un cadre moderne et fonctionnel. Chaque cellule dispose d’un accès par rampe ou porte à quai, avec une porte sectionnelle de 3,5 x 3,5 m et une résistance au sol allant jusqu’à 3 T/m². Les plateaux en R+1 offrent une hauteur maximale de 6,9 m, avec une charge admissible de 2 T/m², permettant une exploitation optimale des volumes. Les prestations incluent une climatisation réversible, un chauffage par aérothermes électriques, ainsi qu’un balcon privatif de 4 m² par lot.
- Dépôt de garantie: 3 mois de taux de location
- Espace en excellent état
- Convient pour 2 à 6 personnes
- Hauteur et résistance au sol
- 1 accès plain-pied
- Climatisation centrale
- Programme neuf avec accès quai et plain-pied
- Climatisation réversible et balcon privatif
L’espace à louer est un programme neuf conçu pour accueillir des activités variées dans un cadre moderne et fonctionnel. Chaque cellule dispose d’un accès par rampe ou porte à quai, avec une porte sectionnelle de 3,5 x 3,5 m et une résistance au sol allant jusqu’à 3 T/m². Les plateaux en R+1 offrent une hauteur maximale de 6,9 m, avec une charge admissible de 2 T/m², permettant une exploitation optimale des volumes. Les prestations incluent une climatisation réversible, un chauffage par aérothermes électriques, ainsi qu’un balcon privatif de 4 m² par lot.
- Dépôt de garantie: 3 mois de taux de location
- Espace en excellent état
- Convient pour 2 à 6 personnes
- Hauteur et résistance au sol
- 1 accès plain-pied
- Climatisation centrale
- Programme neuf avec accès quai et plain-pied
- Climatisation réversible et balcon privatif
L’espace à louer est un programme neuf conçu pour accueillir des activités variées dans un cadre moderne et fonctionnel. Chaque cellule dispose d’un accès par rampe ou porte à quai, avec une porte sectionnelle de 3,5 x 3,5 m et une résistance au sol allant jusqu’à 3 T/m². Les plateaux en R+1 offrent une hauteur maximale de 6,9 m, avec une charge admissible de 2 T/m², permettant une exploitation optimale des volumes. Les prestations incluent une climatisation réversible, un chauffage par aérothermes électriques, ainsi qu’un balcon privatif de 4 m² par lot.
- Dépôt de garantie: 3 mois de taux de location
- Espace en excellent état
- Convient pour 2 à 6 personnes
- Hauteur et résistance au sol
- 1 accès plain-pied
- Climatisation centrale
- Programme neuf avec accès quai et plain-pied
- Climatisation réversible et balcon privatif
L’espace à louer est un programme neuf conçu pour accueillir des activités variées dans un cadre moderne et fonctionnel. Chaque cellule dispose d’un accès par rampe ou porte à quai, avec une porte sectionnelle de 3,5 x 3,5 m et une résistance au sol allant jusqu’à 3 T/m². Les plateaux en R+1 offrent une hauteur maximale de 6,9 m, avec une charge admissible de 2 T/m², permettant une exploitation optimale des volumes. Les prestations incluent une climatisation réversible, un chauffage par aérothermes électriques, ainsi qu’un balcon privatif de 4 m² par lot.
- Dépôt de garantie: 3 mois de taux de location
- Espace en excellent état
- Convient pour 2 à 6 personnes
- Hauteur et résistance au sol
- 1 accès plain-pied
- Climatisation centrale
- Programme neuf avec accès quai et plain-pied
- Climatisation réversible et balcon privatif
L’espace à louer est un programme neuf conçu pour accueillir des activités variées dans un cadre moderne et fonctionnel. Chaque cellule dispose d’un accès par rampe ou porte à quai, avec une porte sectionnelle de 3,5 x 3,5 m et une résistance au sol allant jusqu’à 3 T/m². Les plateaux en R+1 offrent une hauteur maximale de 6,9 m, avec une charge admissible de 2 T/m², permettant une exploitation optimale des volumes. Les prestations incluent une climatisation réversible, un chauffage par aérothermes électriques, ainsi qu’un balcon privatif de 4 m² par lot.
- Dépôt de garantie: 3 mois de taux de location
- Espace en excellent état
- Convient pour 2 à 6 personnes
- Hauteur et résistance au sol
- 1 accès plain-pied
- Climatisation centrale
- Programme neuf avec accès quai et plain-pied
- Climatisation réversible et balcon privatif
L’espace à louer est un programme neuf conçu pour accueillir des activités variées dans un cadre moderne et fonctionnel. Chaque cellule dispose d’un accès par rampe ou porte à quai, avec une porte sectionnelle de 3,5 x 3,5 m et une résistance au sol allant jusqu’à 3 T/m². Les plateaux en R+1 offrent une hauteur maximale de 6,9 m, avec une charge admissible de 2 T/m², permettant une exploitation optimale des volumes. Les prestations incluent une climatisation réversible, un chauffage par aérothermes électriques, ainsi qu’un balcon privatif de 4 m² par lot.
- Dépôt de garantie: 3 mois de taux de location
- Espace en excellent état
- Convient pour 2 à 6 personnes
- Hauteur et résistance au sol
- 1 accès plain-pied
- Climatisation centrale
- Programme neuf avec accès quai et plain-pied
- Climatisation réversible et balcon privatif
| Espace | Taille | Terme | Taux de location | Utilisation de l’espace | État | Disponible |
| RDC | 2 874 pi² | 3/6/9 | 21,73 $ CAD/HT-HC/pi²/an 1,81 $ CAD/HT-HC/pi²/mois 62 464 $ CAD/HT-HC/an 5 205 $ CAD/HT-HC/mois | Industriel | construction complète | Maintenant |
| RDC | 2 874 pi² | 3/6/9 | 21,73 $ CAD/HT-HC/pi²/an 1,81 $ CAD/HT-HC/pi²/mois 62 464 $ CAD/HT-HC/an 5 205 $ CAD/HT-HC/mois | Industriel | construction complète | Maintenant |
| RDC | 2 874 pi² | 3/6/9 | 21,73 $ CAD/HT-HC/pi²/an 1,81 $ CAD/HT-HC/pi²/mois 62 464 $ CAD/HT-HC/an 5 205 $ CAD/HT-HC/mois | Industriel | construction complète | Maintenant |
| RDC | 2 874 pi² | 3/6/9 | 21,73 $ CAD/HT-HC/pi²/an 1,81 $ CAD/HT-HC/pi²/mois 62 464 $ CAD/HT-HC/an 5 205 $ CAD/HT-HC/mois | Industriel | construction complète | Maintenant |
| RDC | 2 874 pi² | 3/6/9 | 21,73 $ CAD/HT-HC/pi²/an 1,81 $ CAD/HT-HC/pi²/mois 62 464 $ CAD/HT-HC/an 5 205 $ CAD/HT-HC/mois | Industriel | construction complète | Maintenant |
| RDC | 2 895 pi² | 3/6/9 | 21,73 $ CAD/HT-HC/pi²/an 1,81 $ CAD/HT-HC/pi²/mois 62 932 $ CAD/HT-HC/an 5 244 $ CAD/HT-HC/mois | Industriel | construction complète | Maintenant |
| RDC | 2 906 pi² | 3/6/9 | 21,73 $ CAD/HT-HC/pi²/an 1,81 $ CAD/HT-HC/pi²/mois 63 166 $ CAD/HT-HC/an 5 264 $ CAD/HT-HC/mois | Industriel | construction complète | Maintenant |
| RDC | 2 906 pi² | 3/6/9 | 21,73 $ CAD/HT-HC/pi²/an 1,81 $ CAD/HT-HC/pi²/mois 63 166 $ CAD/HT-HC/an 5 264 $ CAD/HT-HC/mois | Industriel | construction complète | Maintenant |
| RDC | 2 906 pi² | 3/6/9 | 21,73 $ CAD/HT-HC/pi²/an 1,81 $ CAD/HT-HC/pi²/mois 63 166 $ CAD/HT-HC/an 5 264 $ CAD/HT-HC/mois | Industriel | construction complète | Maintenant |
| RDC | 2 906 pi² | 3/6/9 | 21,73 $ CAD/HT-HC/pi²/an 1,81 $ CAD/HT-HC/pi²/mois 63 166 $ CAD/HT-HC/an 5 264 $ CAD/HT-HC/mois | Industriel | construction complète | Maintenant |
| RDC | 2 906 pi² | 3/6/9 | 21,73 $ CAD/HT-HC/pi²/an 1,81 $ CAD/HT-HC/pi²/mois 63 166 $ CAD/HT-HC/an 5 264 $ CAD/HT-HC/mois | Industriel | construction complète | Maintenant |
| RDC | 2 928 pi² | 3/6/9 | 21,73 $ CAD/HT-HC/pi²/an 1,81 $ CAD/HT-HC/pi²/mois 63 634 $ CAD/HT-HC/an 5 303 $ CAD/HT-HC/mois | Industriel | construction complète | Maintenant |
| RDC | 2 939 pi² | 3/6/9 | 21,73 $ CAD/HT-HC/pi²/an 1,81 $ CAD/HT-HC/pi²/mois 63 868 $ CAD/HT-HC/an 5 322 $ CAD/HT-HC/mois | Industriel | construction complète | Maintenant |
| RDC | 2 939 pi² | 3/6/9 | 21,73 $ CAD/HT-HC/pi²/an 1,81 $ CAD/HT-HC/pi²/mois 63 868 $ CAD/HT-HC/an 5 322 $ CAD/HT-HC/mois | Industriel | construction complète | Maintenant |
| RDC | 2 939 pi² | 3/6/9 | 21,73 $ CAD/HT-HC/pi²/an 1,81 $ CAD/HT-HC/pi²/mois 63 868 $ CAD/HT-HC/an 5 322 $ CAD/HT-HC/mois | Industriel | construction complète | Maintenant |
| RDC | 2 939 pi² | 3/6/9 | 21,73 $ CAD/HT-HC/pi²/an 1,81 $ CAD/HT-HC/pi²/mois 63 868 $ CAD/HT-HC/an 5 322 $ CAD/HT-HC/mois | Industriel | construction complète | Maintenant |
| RDC | 2 971 pi² | 3/6/9 | 21,73 $ CAD/HT-HC/pi²/an 1,81 $ CAD/HT-HC/pi²/mois 64 570 $ CAD/HT-HC/an 5 381 $ CAD/HT-HC/mois | Industriel | construction complète | Maintenant |
| RDC | 2 971 pi² | 3/6/9 | 21,73 $ CAD/HT-HC/pi²/an 1,81 $ CAD/HT-HC/pi²/mois 64 570 $ CAD/HT-HC/an 5 381 $ CAD/HT-HC/mois | Industriel | construction complète | Maintenant |
| RDC | 2 971 pi² | 3/6/9 | 21,73 $ CAD/HT-HC/pi²/an 1,81 $ CAD/HT-HC/pi²/mois 64 570 $ CAD/HT-HC/an 5 381 $ CAD/HT-HC/mois | Industriel | construction complète | Maintenant |
| RDC | 2 971 pi² | 3/6/9 | 21,73 $ CAD/HT-HC/pi²/an 1,81 $ CAD/HT-HC/pi²/mois 64 570 $ CAD/HT-HC/an 5 381 $ CAD/HT-HC/mois | Industriel | construction complète | Maintenant |
| RDC | 2 971 pi² | 3/6/9 | 21,73 $ CAD/HT-HC/pi²/an 1,81 $ CAD/HT-HC/pi²/mois 64 570 $ CAD/HT-HC/an 5 381 $ CAD/HT-HC/mois | Industriel | construction complète | Maintenant |
| RDC | 2 971 pi² | 3/6/9 | 21,73 $ CAD/HT-HC/pi²/an 1,81 $ CAD/HT-HC/pi²/mois 64 570 $ CAD/HT-HC/an 5 381 $ CAD/HT-HC/mois | Industriel | construction complète | Maintenant |
| RDC | 2 971 pi² | 3/6/9 | 21,73 $ CAD/HT-HC/pi²/an 1,81 $ CAD/HT-HC/pi²/mois 64 570 $ CAD/HT-HC/an 5 381 $ CAD/HT-HC/mois | Industriel | construction complète | Maintenant |
| RDC | 2 971 pi² | 3/6/9 | 21,73 $ CAD/HT-HC/pi²/an 1,81 $ CAD/HT-HC/pi²/mois 64 570 $ CAD/HT-HC/an 5 381 $ CAD/HT-HC/mois | Industriel | construction complète | Maintenant |
| RDC | 2 971 pi² | 3/6/9 | 21,73 $ CAD/HT-HC/pi²/an 1,81 $ CAD/HT-HC/pi²/mois 64 570 $ CAD/HT-HC/an 5 381 $ CAD/HT-HC/mois | Industriel | construction complète | Maintenant |
| RDC | 2 971 pi² | 3/6/9 | 21,73 $ CAD/HT-HC/pi²/an 1,81 $ CAD/HT-HC/pi²/mois 64 570 $ CAD/HT-HC/an 5 381 $ CAD/HT-HC/mois | Industriel | construction complète | Maintenant |
| RDC | 3 003 pi² | 3/6/9 | 21,73 $ CAD/HT-HC/pi²/an 1,81 $ CAD/HT-HC/pi²/mois 65 272 $ CAD/HT-HC/an 5 439 $ CAD/HT-HC/mois | Industriel | construction complète | Maintenant |
| RDC | 3 003 pi² | 3/6/9 | 21,73 $ CAD/HT-HC/pi²/an 1,81 $ CAD/HT-HC/pi²/mois 65 272 $ CAD/HT-HC/an 5 439 $ CAD/HT-HC/mois | Industriel | construction complète | Maintenant |
| Mezzanine | 786 pi² | 3/6/9 | 21,73 $ CAD/HT-HC/pi²/an 1,81 $ CAD/HT-HC/pi²/mois 17 078 $ CAD/HT-HC/an 1 423 $ CAD/HT-HC/mois | Industriel | construction complète | Maintenant |
| Mezzanine | 786 pi² | 3/6/9 | 21,73 $ CAD/HT-HC/pi²/an 1,81 $ CAD/HT-HC/pi²/mois 17 078 $ CAD/HT-HC/an 1 423 $ CAD/HT-HC/mois | Industriel | construction complète | Maintenant |
| Mezzanine | 786 pi² | 3/6/9 | 21,73 $ CAD/HT-HC/pi²/an 1,81 $ CAD/HT-HC/pi²/mois 17 078 $ CAD/HT-HC/an 1 423 $ CAD/HT-HC/mois | Industriel | construction complète | Maintenant |
| Mezzanine | 786 pi² | 3/6/9 | 22,48 $ CAD/HT-HC/pi²/an 1,87 $ CAD/HT-HC/pi²/mois 17 667 $ CAD/HT-HC/an 1 472 $ CAD/HT-HC/mois | Industriel | construction complète | Maintenant |
| Mezzanine | 786 pi² | 3/6/9 | 22,48 $ CAD/HT-HC/pi²/an 1,87 $ CAD/HT-HC/pi²/mois 17 667 $ CAD/HT-HC/an 1 472 $ CAD/HT-HC/mois | Industriel | construction complète | Maintenant |
| Mezzanine | 775 pi² | 3/6/9 | 21,73 $ CAD/HT-HC/pi²/an 1,81 $ CAD/HT-HC/pi²/mois 16 844 $ CAD/HT-HC/an 1 404 $ CAD/HT-HC/mois | Industriel | construction complète | Maintenant |
| Mezzanine | 775 pi² | 3/6/9 | 21,73 $ CAD/HT-HC/pi²/an 1,81 $ CAD/HT-HC/pi²/mois 16 844 $ CAD/HT-HC/an 1 404 $ CAD/HT-HC/mois | Industriel | construction complète | Maintenant |
| Mezzanine | 775 pi² | 3/6/9 | 21,73 $ CAD/HT-HC/pi²/an 1,81 $ CAD/HT-HC/pi²/mois 16 844 $ CAD/HT-HC/an 1 404 $ CAD/HT-HC/mois | Industriel | construction complète | Maintenant |
| Mezzanine | 775 pi² | 3/6/9 | 21,73 $ CAD/HT-HC/pi²/an 1,81 $ CAD/HT-HC/pi²/mois 16 844 $ CAD/HT-HC/an 1 404 $ CAD/HT-HC/mois | Flex | construction complète | Maintenant |
| Mezzanine | 775 pi² | 3/6/9 | 21,73 $ CAD/HT-HC/pi²/an 1,81 $ CAD/HT-HC/pi²/mois 16 844 $ CAD/HT-HC/an 1 404 $ CAD/HT-HC/mois | Industriel | construction complète | Maintenant |
| Mezzanine | 775 pi² | 3/6/9 | 21,73 $ CAD/HT-HC/pi²/an 1,81 $ CAD/HT-HC/pi²/mois 16 844 $ CAD/HT-HC/an 1 404 $ CAD/HT-HC/mois | Industriel | construction complète | Maintenant |
| Mezzanine | 775 pi² | 3/6/9 | 21,73 $ CAD/HT-HC/pi²/an 1,81 $ CAD/HT-HC/pi²/mois 16 844 $ CAD/HT-HC/an 1 404 $ CAD/HT-HC/mois | Industriel | construction complète | Maintenant |
| Mezzanine | 775 pi² | 3/6/9 | 21,73 $ CAD/HT-HC/pi²/an 1,81 $ CAD/HT-HC/pi²/mois 16 844 $ CAD/HT-HC/an 1 404 $ CAD/HT-HC/mois | Industriel | construction complète | Maintenant |
| Mezzanine | 775 pi² | 3/6/9 | 21,73 $ CAD/HT-HC/pi²/an 1,81 $ CAD/HT-HC/pi²/mois 16 844 $ CAD/HT-HC/an 1 404 $ CAD/HT-HC/mois | Industriel | construction complète | Maintenant |
| Mezzanine | 775 pi² | 3/6/9 | 21,73 $ CAD/HT-HC/pi²/an 1,81 $ CAD/HT-HC/pi²/mois 16 844 $ CAD/HT-HC/an 1 404 $ CAD/HT-HC/mois | Industriel | construction complète | Maintenant |
| Mezzanine | 775 pi² | 3/6/9 | 21,73 $ CAD/HT-HC/pi²/an 1,81 $ CAD/HT-HC/pi²/mois 16 844 $ CAD/HT-HC/an 1 404 $ CAD/HT-HC/mois | Industriel | construction complète | Maintenant |
| Mezzanine | 775 pi² | 3/6/9 | 21,73 $ CAD/HT-HC/pi²/an 1,81 $ CAD/HT-HC/pi²/mois 16 844 $ CAD/HT-HC/an 1 404 $ CAD/HT-HC/mois | Industriel | construction complète | Maintenant |
| Mezzanine | 775 pi² | 3/6/9 | 21,73 $ CAD/HT-HC/pi²/an 1,81 $ CAD/HT-HC/pi²/mois 16 844 $ CAD/HT-HC/an 1 404 $ CAD/HT-HC/mois | Industriel | construction complète | Maintenant |
| Mezzanine | 775 pi² | 3/6/9 | 22,48 $ CAD/HT-HC/pi²/an 1,87 $ CAD/HT-HC/pi²/mois 17 425 $ CAD/HT-HC/an 1 452 $ CAD/HT-HC/mois | Industriel | construction complète | Maintenant |
| Mezzanine | 775 pi² | 3/6/9 | 22,48 $ CAD/HT-HC/pi²/an 1,87 $ CAD/HT-HC/pi²/mois 17 425 $ CAD/HT-HC/an 1 452 $ CAD/HT-HC/mois | Industriel | construction complète | Maintenant |
| Mezzanine | 775 pi² | 3/6/9 | 22,48 $ CAD/HT-HC/pi²/an 1,87 $ CAD/HT-HC/pi²/mois 17 425 $ CAD/HT-HC/an 1 452 $ CAD/HT-HC/mois | Industriel | construction complète | Maintenant |
| Mezzanine | 775 pi² | 3/6/9 | 22,48 $ CAD/HT-HC/pi²/an 1,87 $ CAD/HT-HC/pi²/mois 17 425 $ CAD/HT-HC/an 1 452 $ CAD/HT-HC/mois | Industriel | construction complète | Maintenant |
| Mezzanine | 775 pi² | 3/6/9 | 22,48 $ CAD/HT-HC/pi²/an 1,87 $ CAD/HT-HC/pi²/mois 17 425 $ CAD/HT-HC/an 1 452 $ CAD/HT-HC/mois | Industriel | construction complète | Maintenant |
| Mezzanine | 775 pi² | 3/6/9 | 22,48 $ CAD/HT-HC/pi²/an 1,87 $ CAD/HT-HC/pi²/mois 17 425 $ CAD/HT-HC/an 1 452 $ CAD/HT-HC/mois | Industriel | construction complète | Maintenant |
| Mezzanine | 775 pi² | 3/6/9 | 22,48 $ CAD/HT-HC/pi²/an 1,87 $ CAD/HT-HC/pi²/mois 17 425 $ CAD/HT-HC/an 1 452 $ CAD/HT-HC/mois | Industriel | construction complète | Maintenant |
| Mezzanine | 775 pi² | 3/6/9 | 22,48 $ CAD/HT-HC/pi²/an 1,87 $ CAD/HT-HC/pi²/mois 17 425 $ CAD/HT-HC/an 1 452 $ CAD/HT-HC/mois | Industriel | construction complète | Maintenant |
| Mezzanine | 775 pi² | 3/6/9 | 22,48 $ CAD/HT-HC/pi²/an 1,87 $ CAD/HT-HC/pi²/mois 17 425 $ CAD/HT-HC/an 1 452 $ CAD/HT-HC/mois | Industriel | construction complète | Maintenant |
| Mezzanine | 775 pi² | 3/6/9 | 22,48 $ CAD/HT-HC/pi²/an 1,87 $ CAD/HT-HC/pi²/mois 17 425 $ CAD/HT-HC/an 1 452 $ CAD/HT-HC/mois | Industriel | construction complète | Maintenant |
RDC
| Taille |
| 2 874 pi² |
| Terme |
| 3/6/9 |
|
Taux de location
|
| 21,73 $ CAD/HT-HC/pi²/an 1,81 $ CAD/HT-HC/pi²/mois 62 464 $ CAD/HT-HC/an 5 205 $ CAD/HT-HC/mois |
| Utilisation de l’espace |
| Industriel |
| État |
| construction complète |
| Disponible |
| Maintenant |
RDC
| Taille |
| 2 874 pi² |
| Terme |
| 3/6/9 |
|
Taux de location
|
| 21,73 $ CAD/HT-HC/pi²/an 1,81 $ CAD/HT-HC/pi²/mois 62 464 $ CAD/HT-HC/an 5 205 $ CAD/HT-HC/mois |
| Utilisation de l’espace |
| Industriel |
| État |
| construction complète |
| Disponible |
| Maintenant |
RDC
| Taille |
| 2 874 pi² |
| Terme |
| 3/6/9 |
|
Taux de location
|
| 21,73 $ CAD/HT-HC/pi²/an 1,81 $ CAD/HT-HC/pi²/mois 62 464 $ CAD/HT-HC/an 5 205 $ CAD/HT-HC/mois |
| Utilisation de l’espace |
| Industriel |
| État |
| construction complète |
| Disponible |
| Maintenant |
RDC
| Taille |
| 2 874 pi² |
| Terme |
| 3/6/9 |
|
Taux de location
|
| 21,73 $ CAD/HT-HC/pi²/an 1,81 $ CAD/HT-HC/pi²/mois 62 464 $ CAD/HT-HC/an 5 205 $ CAD/HT-HC/mois |
| Utilisation de l’espace |
| Industriel |
| État |
| construction complète |
| Disponible |
| Maintenant |
RDC
| Taille |
| 2 874 pi² |
| Terme |
| 3/6/9 |
|
Taux de location
|
| 21,73 $ CAD/HT-HC/pi²/an 1,81 $ CAD/HT-HC/pi²/mois 62 464 $ CAD/HT-HC/an 5 205 $ CAD/HT-HC/mois |
| Utilisation de l’espace |
| Industriel |
| État |
| construction complète |
| Disponible |
| Maintenant |
RDC
| Taille |
| 2 895 pi² |
| Terme |
| 3/6/9 |
|
Taux de location
|
| 21,73 $ CAD/HT-HC/pi²/an 1,81 $ CAD/HT-HC/pi²/mois 62 932 $ CAD/HT-HC/an 5 244 $ CAD/HT-HC/mois |
| Utilisation de l’espace |
| Industriel |
| État |
| construction complète |
| Disponible |
| Maintenant |
RDC
| Taille |
| 2 906 pi² |
| Terme |
| 3/6/9 |
|
Taux de location
|
| 21,73 $ CAD/HT-HC/pi²/an 1,81 $ CAD/HT-HC/pi²/mois 63 166 $ CAD/HT-HC/an 5 264 $ CAD/HT-HC/mois |
| Utilisation de l’espace |
| Industriel |
| État |
| construction complète |
| Disponible |
| Maintenant |
RDC
| Taille |
| 2 906 pi² |
| Terme |
| 3/6/9 |
|
Taux de location
|
| 21,73 $ CAD/HT-HC/pi²/an 1,81 $ CAD/HT-HC/pi²/mois 63 166 $ CAD/HT-HC/an 5 264 $ CAD/HT-HC/mois |
| Utilisation de l’espace |
| Industriel |
| État |
| construction complète |
| Disponible |
| Maintenant |
RDC
| Taille |
| 2 906 pi² |
| Terme |
| 3/6/9 |
|
Taux de location
|
| 21,73 $ CAD/HT-HC/pi²/an 1,81 $ CAD/HT-HC/pi²/mois 63 166 $ CAD/HT-HC/an 5 264 $ CAD/HT-HC/mois |
| Utilisation de l’espace |
| Industriel |
| État |
| construction complète |
| Disponible |
| Maintenant |
RDC
| Taille |
| 2 906 pi² |
| Terme |
| 3/6/9 |
|
Taux de location
|
| 21,73 $ CAD/HT-HC/pi²/an 1,81 $ CAD/HT-HC/pi²/mois 63 166 $ CAD/HT-HC/an 5 264 $ CAD/HT-HC/mois |
| Utilisation de l’espace |
| Industriel |
| État |
| construction complète |
| Disponible |
| Maintenant |
RDC
| Taille |
| 2 906 pi² |
| Terme |
| 3/6/9 |
|
Taux de location
|
| 21,73 $ CAD/HT-HC/pi²/an 1,81 $ CAD/HT-HC/pi²/mois 63 166 $ CAD/HT-HC/an 5 264 $ CAD/HT-HC/mois |
| Utilisation de l’espace |
| Industriel |
| État |
| construction complète |
| Disponible |
| Maintenant |
RDC
| Taille |
| 2 928 pi² |
| Terme |
| 3/6/9 |
|
Taux de location
|
| 21,73 $ CAD/HT-HC/pi²/an 1,81 $ CAD/HT-HC/pi²/mois 63 634 $ CAD/HT-HC/an 5 303 $ CAD/HT-HC/mois |
| Utilisation de l’espace |
| Industriel |
| État |
| construction complète |
| Disponible |
| Maintenant |
RDC
| Taille |
| 2 939 pi² |
| Terme |
| 3/6/9 |
|
Taux de location
|
| 21,73 $ CAD/HT-HC/pi²/an 1,81 $ CAD/HT-HC/pi²/mois 63 868 $ CAD/HT-HC/an 5 322 $ CAD/HT-HC/mois |
| Utilisation de l’espace |
| Industriel |
| État |
| construction complète |
| Disponible |
| Maintenant |
RDC
| Taille |
| 2 939 pi² |
| Terme |
| 3/6/9 |
|
Taux de location
|
| 21,73 $ CAD/HT-HC/pi²/an 1,81 $ CAD/HT-HC/pi²/mois 63 868 $ CAD/HT-HC/an 5 322 $ CAD/HT-HC/mois |
| Utilisation de l’espace |
| Industriel |
| État |
| construction complète |
| Disponible |
| Maintenant |
RDC
| Taille |
| 2 939 pi² |
| Terme |
| 3/6/9 |
|
Taux de location
|
| 21,73 $ CAD/HT-HC/pi²/an 1,81 $ CAD/HT-HC/pi²/mois 63 868 $ CAD/HT-HC/an 5 322 $ CAD/HT-HC/mois |
| Utilisation de l’espace |
| Industriel |
| État |
| construction complète |
| Disponible |
| Maintenant |
RDC
| Taille |
| 2 939 pi² |
| Terme |
| 3/6/9 |
|
Taux de location
|
| 21,73 $ CAD/HT-HC/pi²/an 1,81 $ CAD/HT-HC/pi²/mois 63 868 $ CAD/HT-HC/an 5 322 $ CAD/HT-HC/mois |
| Utilisation de l’espace |
| Industriel |
| État |
| construction complète |
| Disponible |
| Maintenant |
RDC
| Taille |
| 2 971 pi² |
| Terme |
| 3/6/9 |
|
Taux de location
|
| 21,73 $ CAD/HT-HC/pi²/an 1,81 $ CAD/HT-HC/pi²/mois 64 570 $ CAD/HT-HC/an 5 381 $ CAD/HT-HC/mois |
| Utilisation de l’espace |
| Industriel |
| État |
| construction complète |
| Disponible |
| Maintenant |
RDC
| Taille |
| 2 971 pi² |
| Terme |
| 3/6/9 |
|
Taux de location
|
| 21,73 $ CAD/HT-HC/pi²/an 1,81 $ CAD/HT-HC/pi²/mois 64 570 $ CAD/HT-HC/an 5 381 $ CAD/HT-HC/mois |
| Utilisation de l’espace |
| Industriel |
| État |
| construction complète |
| Disponible |
| Maintenant |
RDC
| Taille |
| 2 971 pi² |
| Terme |
| 3/6/9 |
|
Taux de location
|
| 21,73 $ CAD/HT-HC/pi²/an 1,81 $ CAD/HT-HC/pi²/mois 64 570 $ CAD/HT-HC/an 5 381 $ CAD/HT-HC/mois |
| Utilisation de l’espace |
| Industriel |
| État |
| construction complète |
| Disponible |
| Maintenant |
RDC
| Taille |
| 2 971 pi² |
| Terme |
| 3/6/9 |
|
Taux de location
|
| 21,73 $ CAD/HT-HC/pi²/an 1,81 $ CAD/HT-HC/pi²/mois 64 570 $ CAD/HT-HC/an 5 381 $ CAD/HT-HC/mois |
| Utilisation de l’espace |
| Industriel |
| État |
| construction complète |
| Disponible |
| Maintenant |
RDC
| Taille |
| 2 971 pi² |
| Terme |
| 3/6/9 |
|
Taux de location
|
| 21,73 $ CAD/HT-HC/pi²/an 1,81 $ CAD/HT-HC/pi²/mois 64 570 $ CAD/HT-HC/an 5 381 $ CAD/HT-HC/mois |
| Utilisation de l’espace |
| Industriel |
| État |
| construction complète |
| Disponible |
| Maintenant |
RDC
| Taille |
| 2 971 pi² |
| Terme |
| 3/6/9 |
|
Taux de location
|
| 21,73 $ CAD/HT-HC/pi²/an 1,81 $ CAD/HT-HC/pi²/mois 64 570 $ CAD/HT-HC/an 5 381 $ CAD/HT-HC/mois |
| Utilisation de l’espace |
| Industriel |
| État |
| construction complète |
| Disponible |
| Maintenant |
RDC
| Taille |
| 2 971 pi² |
| Terme |
| 3/6/9 |
|
Taux de location
|
| 21,73 $ CAD/HT-HC/pi²/an 1,81 $ CAD/HT-HC/pi²/mois 64 570 $ CAD/HT-HC/an 5 381 $ CAD/HT-HC/mois |
| Utilisation de l’espace |
| Industriel |
| État |
| construction complète |
| Disponible |
| Maintenant |
RDC
| Taille |
| 2 971 pi² |
| Terme |
| 3/6/9 |
|
Taux de location
|
| 21,73 $ CAD/HT-HC/pi²/an 1,81 $ CAD/HT-HC/pi²/mois 64 570 $ CAD/HT-HC/an 5 381 $ CAD/HT-HC/mois |
| Utilisation de l’espace |
| Industriel |
| État |
| construction complète |
| Disponible |
| Maintenant |
RDC
| Taille |
| 2 971 pi² |
| Terme |
| 3/6/9 |
|
Taux de location
|
| 21,73 $ CAD/HT-HC/pi²/an 1,81 $ CAD/HT-HC/pi²/mois 64 570 $ CAD/HT-HC/an 5 381 $ CAD/HT-HC/mois |
| Utilisation de l’espace |
| Industriel |
| État |
| construction complète |
| Disponible |
| Maintenant |
RDC
| Taille |
| 2 971 pi² |
| Terme |
| 3/6/9 |
|
Taux de location
|
| 21,73 $ CAD/HT-HC/pi²/an 1,81 $ CAD/HT-HC/pi²/mois 64 570 $ CAD/HT-HC/an 5 381 $ CAD/HT-HC/mois |
| Utilisation de l’espace |
| Industriel |
| État |
| construction complète |
| Disponible |
| Maintenant |
RDC
| Taille |
| 3 003 pi² |
| Terme |
| 3/6/9 |
|
Taux de location
|
| 21,73 $ CAD/HT-HC/pi²/an 1,81 $ CAD/HT-HC/pi²/mois 65 272 $ CAD/HT-HC/an 5 439 $ CAD/HT-HC/mois |
| Utilisation de l’espace |
| Industriel |
| État |
| construction complète |
| Disponible |
| Maintenant |
RDC
| Taille |
| 3 003 pi² |
| Terme |
| 3/6/9 |
|
Taux de location
|
| 21,73 $ CAD/HT-HC/pi²/an 1,81 $ CAD/HT-HC/pi²/mois 65 272 $ CAD/HT-HC/an 5 439 $ CAD/HT-HC/mois |
| Utilisation de l’espace |
| Industriel |
| État |
| construction complète |
| Disponible |
| Maintenant |
Mezzanine
| Taille |
| 786 pi² |
| Terme |
| 3/6/9 |
|
Taux de location
|
| 21,73 $ CAD/HT-HC/pi²/an 1,81 $ CAD/HT-HC/pi²/mois 17 078 $ CAD/HT-HC/an 1 423 $ CAD/HT-HC/mois |
| Utilisation de l’espace |
| Industriel |
| État |
| construction complète |
| Disponible |
| Maintenant |
Mezzanine
| Taille |
| 786 pi² |
| Terme |
| 3/6/9 |
|
Taux de location
|
| 21,73 $ CAD/HT-HC/pi²/an 1,81 $ CAD/HT-HC/pi²/mois 17 078 $ CAD/HT-HC/an 1 423 $ CAD/HT-HC/mois |
| Utilisation de l’espace |
| Industriel |
| État |
| construction complète |
| Disponible |
| Maintenant |
Mezzanine
| Taille |
| 786 pi² |
| Terme |
| 3/6/9 |
|
Taux de location
|
| 21,73 $ CAD/HT-HC/pi²/an 1,81 $ CAD/HT-HC/pi²/mois 17 078 $ CAD/HT-HC/an 1 423 $ CAD/HT-HC/mois |
| Utilisation de l’espace |
| Industriel |
| État |
| construction complète |
| Disponible |
| Maintenant |
Mezzanine
| Taille |
| 786 pi² |
| Terme |
| 3/6/9 |
|
Taux de location
|
| 22,48 $ CAD/HT-HC/pi²/an 1,87 $ CAD/HT-HC/pi²/mois 17 667 $ CAD/HT-HC/an 1 472 $ CAD/HT-HC/mois |
| Utilisation de l’espace |
| Industriel |
| État |
| construction complète |
| Disponible |
| Maintenant |
Mezzanine
| Taille |
| 786 pi² |
| Terme |
| 3/6/9 |
|
Taux de location
|
| 22,48 $ CAD/HT-HC/pi²/an 1,87 $ CAD/HT-HC/pi²/mois 17 667 $ CAD/HT-HC/an 1 472 $ CAD/HT-HC/mois |
| Utilisation de l’espace |
| Industriel |
| État |
| construction complète |
| Disponible |
| Maintenant |
Mezzanine
| Taille |
| 775 pi² |
| Terme |
| 3/6/9 |
|
Taux de location
|
| 21,73 $ CAD/HT-HC/pi²/an 1,81 $ CAD/HT-HC/pi²/mois 16 844 $ CAD/HT-HC/an 1 404 $ CAD/HT-HC/mois |
| Utilisation de l’espace |
| Industriel |
| État |
| construction complète |
| Disponible |
| Maintenant |
Mezzanine
| Taille |
| 775 pi² |
| Terme |
| 3/6/9 |
|
Taux de location
|
| 21,73 $ CAD/HT-HC/pi²/an 1,81 $ CAD/HT-HC/pi²/mois 16 844 $ CAD/HT-HC/an 1 404 $ CAD/HT-HC/mois |
| Utilisation de l’espace |
| Industriel |
| État |
| construction complète |
| Disponible |
| Maintenant |
Mezzanine
| Taille |
| 775 pi² |
| Terme |
| 3/6/9 |
|
Taux de location
|
| 21,73 $ CAD/HT-HC/pi²/an 1,81 $ CAD/HT-HC/pi²/mois 16 844 $ CAD/HT-HC/an 1 404 $ CAD/HT-HC/mois |
| Utilisation de l’espace |
| Industriel |
| État |
| construction complète |
| Disponible |
| Maintenant |
Mezzanine
| Taille |
| 775 pi² |
| Terme |
| 3/6/9 |
|
Taux de location
|
| 21,73 $ CAD/HT-HC/pi²/an 1,81 $ CAD/HT-HC/pi²/mois 16 844 $ CAD/HT-HC/an 1 404 $ CAD/HT-HC/mois |
| Utilisation de l’espace |
| Flex |
| État |
| construction complète |
| Disponible |
| Maintenant |
Mezzanine
| Taille |
| 775 pi² |
| Terme |
| 3/6/9 |
|
Taux de location
|
| 21,73 $ CAD/HT-HC/pi²/an 1,81 $ CAD/HT-HC/pi²/mois 16 844 $ CAD/HT-HC/an 1 404 $ CAD/HT-HC/mois |
| Utilisation de l’espace |
| Industriel |
| État |
| construction complète |
| Disponible |
| Maintenant |
Mezzanine
| Taille |
| 775 pi² |
| Terme |
| 3/6/9 |
|
Taux de location
|
| 21,73 $ CAD/HT-HC/pi²/an 1,81 $ CAD/HT-HC/pi²/mois 16 844 $ CAD/HT-HC/an 1 404 $ CAD/HT-HC/mois |
| Utilisation de l’espace |
| Industriel |
| État |
| construction complète |
| Disponible |
| Maintenant |
Mezzanine
| Taille |
| 775 pi² |
| Terme |
| 3/6/9 |
|
Taux de location
|
| 21,73 $ CAD/HT-HC/pi²/an 1,81 $ CAD/HT-HC/pi²/mois 16 844 $ CAD/HT-HC/an 1 404 $ CAD/HT-HC/mois |
| Utilisation de l’espace |
| Industriel |
| État |
| construction complète |
| Disponible |
| Maintenant |
Mezzanine
| Taille |
| 775 pi² |
| Terme |
| 3/6/9 |
|
Taux de location
|
| 21,73 $ CAD/HT-HC/pi²/an 1,81 $ CAD/HT-HC/pi²/mois 16 844 $ CAD/HT-HC/an 1 404 $ CAD/HT-HC/mois |
| Utilisation de l’espace |
| Industriel |
| État |
| construction complète |
| Disponible |
| Maintenant |
Mezzanine
| Taille |
| 775 pi² |
| Terme |
| 3/6/9 |
|
Taux de location
|
| 21,73 $ CAD/HT-HC/pi²/an 1,81 $ CAD/HT-HC/pi²/mois 16 844 $ CAD/HT-HC/an 1 404 $ CAD/HT-HC/mois |
| Utilisation de l’espace |
| Industriel |
| État |
| construction complète |
| Disponible |
| Maintenant |
Mezzanine
| Taille |
| 775 pi² |
| Terme |
| 3/6/9 |
|
Taux de location
|
| 21,73 $ CAD/HT-HC/pi²/an 1,81 $ CAD/HT-HC/pi²/mois 16 844 $ CAD/HT-HC/an 1 404 $ CAD/HT-HC/mois |
| Utilisation de l’espace |
| Industriel |
| État |
| construction complète |
| Disponible |
| Maintenant |
Mezzanine
| Taille |
| 775 pi² |
| Terme |
| 3/6/9 |
|
Taux de location
|
| 21,73 $ CAD/HT-HC/pi²/an 1,81 $ CAD/HT-HC/pi²/mois 16 844 $ CAD/HT-HC/an 1 404 $ CAD/HT-HC/mois |
| Utilisation de l’espace |
| Industriel |
| État |
| construction complète |
| Disponible |
| Maintenant |
Mezzanine
| Taille |
| 775 pi² |
| Terme |
| 3/6/9 |
|
Taux de location
|
| 21,73 $ CAD/HT-HC/pi²/an 1,81 $ CAD/HT-HC/pi²/mois 16 844 $ CAD/HT-HC/an 1 404 $ CAD/HT-HC/mois |
| Utilisation de l’espace |
| Industriel |
| État |
| construction complète |
| Disponible |
| Maintenant |
Mezzanine
| Taille |
| 775 pi² |
| Terme |
| 3/6/9 |
|
Taux de location
|
| 21,73 $ CAD/HT-HC/pi²/an 1,81 $ CAD/HT-HC/pi²/mois 16 844 $ CAD/HT-HC/an 1 404 $ CAD/HT-HC/mois |
| Utilisation de l’espace |
| Industriel |
| État |
| construction complète |
| Disponible |
| Maintenant |
Mezzanine
| Taille |
| 775 pi² |
| Terme |
| 3/6/9 |
|
Taux de location
|
| 22,48 $ CAD/HT-HC/pi²/an 1,87 $ CAD/HT-HC/pi²/mois 17 425 $ CAD/HT-HC/an 1 452 $ CAD/HT-HC/mois |
| Utilisation de l’espace |
| Industriel |
| État |
| construction complète |
| Disponible |
| Maintenant |
Mezzanine
| Taille |
| 775 pi² |
| Terme |
| 3/6/9 |
|
Taux de location
|
| 22,48 $ CAD/HT-HC/pi²/an 1,87 $ CAD/HT-HC/pi²/mois 17 425 $ CAD/HT-HC/an 1 452 $ CAD/HT-HC/mois |
| Utilisation de l’espace |
| Industriel |
| État |
| construction complète |
| Disponible |
| Maintenant |
Mezzanine
| Taille |
| 775 pi² |
| Terme |
| 3/6/9 |
|
Taux de location
|
| 22,48 $ CAD/HT-HC/pi²/an 1,87 $ CAD/HT-HC/pi²/mois 17 425 $ CAD/HT-HC/an 1 452 $ CAD/HT-HC/mois |
| Utilisation de l’espace |
| Industriel |
| État |
| construction complète |
| Disponible |
| Maintenant |
Mezzanine
| Taille |
| 775 pi² |
| Terme |
| 3/6/9 |
|
Taux de location
|
| 22,48 $ CAD/HT-HC/pi²/an 1,87 $ CAD/HT-HC/pi²/mois 17 425 $ CAD/HT-HC/an 1 452 $ CAD/HT-HC/mois |
| Utilisation de l’espace |
| Industriel |
| État |
| construction complète |
| Disponible |
| Maintenant |
Mezzanine
| Taille |
| 775 pi² |
| Terme |
| 3/6/9 |
|
Taux de location
|
| 22,48 $ CAD/HT-HC/pi²/an 1,87 $ CAD/HT-HC/pi²/mois 17 425 $ CAD/HT-HC/an 1 452 $ CAD/HT-HC/mois |
| Utilisation de l’espace |
| Industriel |
| État |
| construction complète |
| Disponible |
| Maintenant |
Mezzanine
| Taille |
| 775 pi² |
| Terme |
| 3/6/9 |
|
Taux de location
|
| 22,48 $ CAD/HT-HC/pi²/an 1,87 $ CAD/HT-HC/pi²/mois 17 425 $ CAD/HT-HC/an 1 452 $ CAD/HT-HC/mois |
| Utilisation de l’espace |
| Industriel |
| État |
| construction complète |
| Disponible |
| Maintenant |
Mezzanine
| Taille |
| 775 pi² |
| Terme |
| 3/6/9 |
|
Taux de location
|
| 22,48 $ CAD/HT-HC/pi²/an 1,87 $ CAD/HT-HC/pi²/mois 17 425 $ CAD/HT-HC/an 1 452 $ CAD/HT-HC/mois |
| Utilisation de l’espace |
| Industriel |
| État |
| construction complète |
| Disponible |
| Maintenant |
Mezzanine
| Taille |
| 775 pi² |
| Terme |
| 3/6/9 |
|
Taux de location
|
| 22,48 $ CAD/HT-HC/pi²/an 1,87 $ CAD/HT-HC/pi²/mois 17 425 $ CAD/HT-HC/an 1 452 $ CAD/HT-HC/mois |
| Utilisation de l’espace |
| Industriel |
| État |
| construction complète |
| Disponible |
| Maintenant |
Mezzanine
| Taille |
| 775 pi² |
| Terme |
| 3/6/9 |
|
Taux de location
|
| 22,48 $ CAD/HT-HC/pi²/an 1,87 $ CAD/HT-HC/pi²/mois 17 425 $ CAD/HT-HC/an 1 452 $ CAD/HT-HC/mois |
| Utilisation de l’espace |
| Industriel |
| État |
| construction complète |
| Disponible |
| Maintenant |
Mezzanine
| Taille |
| 775 pi² |
| Terme |
| 3/6/9 |
|
Taux de location
|
| 22,48 $ CAD/HT-HC/pi²/an 1,87 $ CAD/HT-HC/pi²/mois 17 425 $ CAD/HT-HC/an 1 452 $ CAD/HT-HC/mois |
| Utilisation de l’espace |
| Industriel |
| État |
| construction complète |
| Disponible |
| Maintenant |
RDC
| Taille | 2 874 pi² |
| Terme | 3/6/9 |
|
Taux de location
|
21,73 $ CAD/HT-HC/pi²/an |
| Utilisation de l’espace | Industriel |
| État | construction complète |
| Disponible | Maintenant |
L’espace à louer est un programme neuf conçu pour accueillir des activités variées dans un cadre moderne et fonctionnel. Chaque cellule dispose d’un accès par rampe ou porte à quai, avec une porte sectionnelle de 3,5 x 3,5 m et une résistance au sol allant jusqu’à 3 T/m². Les plateaux en R+1 offrent une hauteur maximale de 6,9 m, avec une charge admissible de 2 T/m², permettant une exploitation optimale des volumes. Les prestations incluent une climatisation réversible, un chauffage par aérothermes électriques, ainsi qu’un balcon privatif de 4 m² par lot.
- Dépôt de garantie: 3 mois de taux de location
- 1 accès plain-pied
- Espace en excellent état
- Climatisation centrale
- Programme neuf avec accès quai et plain-pied
- Hauteur et résistance au sol adaptées
- Climatisation réversible et balcon privatif
RDC
| Taille | 2 874 pi² |
| Terme | 3/6/9 |
|
Taux de location
|
21,73 $ CAD/HT-HC/pi²/an |
| Utilisation de l’espace | Industriel |
| État | construction complète |
| Disponible | Maintenant |
L’espace à louer est un programme neuf conçu pour accueillir des activités variées dans un cadre moderne et fonctionnel. Chaque cellule dispose d’un accès par rampe ou porte à quai, avec une porte sectionnelle de 3,5 x 3,5 m et une résistance au sol allant jusqu’à 3 T/m². Les plateaux en R+1 offrent une hauteur maximale de 6,9 m, avec une charge admissible de 2 T/m², permettant une exploitation optimale des volumes. Les prestations incluent une climatisation réversible, un chauffage par aérothermes électriques, ainsi qu’un balcon privatif de 4 m² par lot.
- Dépôt de garantie: 3 mois de taux de location
- 1 accès plain-pied
- Espace en excellent état
- Climatisation centrale
- Programme neuf avec accès quai et plain-pied
- Hauteur et résistance au sol
- Climatisation réversible et balcon privatif
RDC
| Taille | 2 874 pi² |
| Terme | 3/6/9 |
|
Taux de location
|
21,73 $ CAD/HT-HC/pi²/an |
| Utilisation de l’espace | Industriel |
| État | construction complète |
| Disponible | Maintenant |
L’espace à louer est un programme neuf conçu pour accueillir des activités variées dans un cadre moderne et fonctionnel. Chaque cellule dispose d’un accès par rampe ou porte à quai, avec une porte sectionnelle de 3,5 x 3,5 m et une résistance au sol allant jusqu’à 3 T/m². Les plateaux en R+1 offrent une hauteur maximale de 6,9 m, avec une charge admissible de 2 T/m², permettant une exploitation optimale des volumes. Les prestations incluent une climatisation réversible, un chauffage par aérothermes électriques, ainsi qu’un balcon privatif de 4 m² par lot.
- Dépôt de garantie: 3 mois de taux de location
- 1 accès plain-pied
- Espace en excellent état
- Climatisation centrale
- Programme neuf avec accès quai et plain-pied
- Hauteur et résistance au sol
- Climatisation réversible et balcon privatif
RDC
| Taille | 2 874 pi² |
| Terme | 3/6/9 |
|
Taux de location
|
21,73 $ CAD/HT-HC/pi²/an |
| Utilisation de l’espace | Industriel |
| État | construction complète |
| Disponible | Maintenant |
L’espace à louer est un programme neuf conçu pour accueillir des activités variées dans un cadre moderne et fonctionnel. Chaque cellule dispose d’un accès par rampe ou porte à quai, avec une porte sectionnelle de 3,5 x 3,5 m et une résistance au sol allant jusqu’à 3 T/m². Les plateaux en R+1 offrent une hauteur maximale de 6,9 m, avec une charge admissible de 2 T/m², permettant une exploitation optimale des volumes. Les prestations incluent une climatisation réversible, un chauffage par aérothermes électriques, ainsi qu’un balcon privatif de 4 m² par lot.
- Dépôt de garantie: 3 mois de taux de location
- 1 accès plain-pied
- Espace en excellent état
- Climatisation centrale
- Programme neuf avec accès quai et plain-pied
- Hauteur et résistance au sol
- Climatisation réversible et balcon privatif
RDC
| Taille | 2 874 pi² |
| Terme | 3/6/9 |
|
Taux de location
|
21,73 $ CAD/HT-HC/pi²/an |
| Utilisation de l’espace | Industriel |
| État | construction complète |
| Disponible | Maintenant |
L’espace à louer est un programme neuf conçu pour accueillir des activités variées dans un cadre moderne et fonctionnel. Chaque cellule dispose d’un accès par rampe ou porte à quai, avec une porte sectionnelle de 3,5 x 3,5 m et une résistance au sol allant jusqu’à 3 T/m². Les plateaux en R+1 offrent une hauteur maximale de 6,9 m, avec une charge admissible de 2 T/m², permettant une exploitation optimale des volumes. Les prestations incluent une climatisation réversible, un chauffage par aérothermes électriques, ainsi qu’un balcon privatif de 4 m² par lot.
- Dépôt de garantie: 3 mois de taux de location
- 1 accès plain-pied
- Espace en excellent état
- Climatisation centrale
- Programme neuf avec accès quai et plain-pied
- Hauteur et résistance au sol
- Climatisation réversible et balcon privatif
RDC
| Taille | 2 895 pi² |
| Terme | 3/6/9 |
|
Taux de location
|
21,73 $ CAD/HT-HC/pi²/an |
| Utilisation de l’espace | Industriel |
| État | construction complète |
| Disponible | Maintenant |
L’espace à louer est un programme neuf conçu pour accueillir des activités variées dans un cadre moderne et fonctionnel. Chaque cellule dispose d’un accès par rampe ou porte à quai, avec une porte sectionnelle de 3,5 x 3,5 m et une résistance au sol allant jusqu’à 3 T/m². Les plateaux en R+1 offrent une hauteur maximale de 6,9 m, avec une charge admissible de 2 T/m², permettant une exploitation optimale des volumes. Les prestations incluent une climatisation réversible, un chauffage par aérothermes électriques, ainsi qu’un balcon privatif de 4 m² par lot.
- Dépôt de garantie: 3 mois de taux de location
- 1 accès plain-pied
- Espace en excellent état
- Climatisation centrale
- Programme neuf avec accès quai et plain-pied
- Hauteur et résistance au sol
- Climatisation réversible et balcon privatif
RDC
| Taille | 2 906 pi² |
| Terme | 3/6/9 |
|
Taux de location
|
21,73 $ CAD/HT-HC/pi²/an |
| Utilisation de l’espace | Industriel |
| État | construction complète |
| Disponible | Maintenant |
L’espace à louer est un programme neuf conçu pour accueillir des activités variées dans un cadre moderne et fonctionnel. Chaque cellule dispose d’un accès par rampe ou porte à quai, avec une porte sectionnelle de 3,5 x 3,5 m et une résistance au sol allant jusqu’à 3 T/m². Les plateaux en R+1 offrent une hauteur maximale de 6,9 m, avec une charge admissible de 2 T/m², permettant une exploitation optimale des volumes. Les prestations incluent une climatisation réversible, un chauffage par aérothermes électriques, ainsi qu’un balcon privatif de 4 m² par lot.
- Dépôt de garantie: 3 mois de taux de location
- 1 accès plain-pied
- Espace en excellent état
- Climatisation centrale
- Programme neuf avec accès quai et plain-pied
- Hauteur et résistance au sol
- Climatisation réversible et balcon privatif
RDC
| Taille | 2 906 pi² |
| Terme | 3/6/9 |
|
Taux de location
|
21,73 $ CAD/HT-HC/pi²/an |
| Utilisation de l’espace | Industriel |
| État | construction complète |
| Disponible | Maintenant |
L’espace à louer est un programme neuf conçu pour accueillir des activités variées dans un cadre moderne et fonctionnel. Chaque cellule dispose d’un accès par rampe ou porte à quai, avec une porte sectionnelle de 3,5 x 3,5 m et une résistance au sol allant jusqu’à 3 T/m². Les plateaux en R+1 offrent une hauteur maximale de 6,9 m, avec une charge admissible de 2 T/m², permettant une exploitation optimale des volumes. Les prestations incluent une climatisation réversible, un chauffage par aérothermes électriques, ainsi qu’un balcon privatif de 4 m² par lot.
- Dépôt de garantie: 3 mois de taux de location
- 1 accès plain-pied
- Espace en excellent état
- Climatisation centrale
- Programme neuf avec accès quai et plain-pied
- Hauteur et résistance au sol
- Climatisation réversible et balcon privatif
RDC
| Taille | 2 906 pi² |
| Terme | 3/6/9 |
|
Taux de location
|
21,73 $ CAD/HT-HC/pi²/an |
| Utilisation de l’espace | Industriel |
| État | construction complète |
| Disponible | Maintenant |
L’espace à louer est un programme neuf conçu pour accueillir des activités variées dans un cadre moderne et fonctionnel. Chaque cellule dispose d’un accès par rampe ou porte à quai, avec une porte sectionnelle de 3,5 x 3,5 m et une résistance au sol allant jusqu’à 3 T/m². Les plateaux en R+1 offrent une hauteur maximale de 6,9 m, avec une charge admissible de 2 T/m², permettant une exploitation optimale des volumes. Les prestations incluent une climatisation réversible, un chauffage par aérothermes électriques, ainsi qu’un balcon privatif de 4 m² par lot.
- Dépôt de garantie: 3 mois de taux de location
- 1 accès plain-pied
- Espace en excellent état
- Climatisation centrale
- Programme neuf avec accès quai et plain-pied
- Hauteur et résistance au sol
- Climatisation réversible et balcon privatif
RDC
| Taille | 2 906 pi² |
| Terme | 3/6/9 |
|
Taux de location
|
21,73 $ CAD/HT-HC/pi²/an |
| Utilisation de l’espace | Industriel |
| État | construction complète |
| Disponible | Maintenant |
L’espace à louer est un programme neuf conçu pour accueillir des activités variées dans un cadre moderne et fonctionnel. Chaque cellule dispose d’un accès par rampe ou porte à quai, avec une porte sectionnelle de 3,5 x 3,5 m et une résistance au sol allant jusqu’à 3 T/m². Les plateaux en R+1 offrent une hauteur maximale de 6,9 m, avec une charge admissible de 2 T/m², permettant une exploitation optimale des volumes. Les prestations incluent une climatisation réversible, un chauffage par aérothermes électriques, ainsi qu’un balcon privatif de 4 m² par lot.
- Dépôt de garantie: 3 mois de taux de location
- 1 accès plain-pied
- Espace en excellent état
- Climatisation centrale
- Programme neuf avec accès quai et plain-pied
- Hauteur et résistance au sol
- Climatisation réversible et balcon privatif
RDC
| Taille | 2 906 pi² |
| Terme | 3/6/9 |
|
Taux de location
|
21,73 $ CAD/HT-HC/pi²/an |
| Utilisation de l’espace | Industriel |
| État | construction complète |
| Disponible | Maintenant |
L’espace à louer est un programme neuf conçu pour accueillir des activités variées dans un cadre moderne et fonctionnel. Chaque cellule dispose d’un accès par rampe ou porte à quai, avec une porte sectionnelle de 3,5 x 3,5 m et une résistance au sol allant jusqu’à 3 T/m². Les plateaux en R+1 offrent une hauteur maximale de 6,9 m, avec une charge admissible de 2 T/m², permettant une exploitation optimale des volumes. Les prestations incluent une climatisation réversible, un chauffage par aérothermes électriques, ainsi qu’un balcon privatif de 4 m² par lot.
- Dépôt de garantie: 3 mois de taux de location
- 1 accès plain-pied
- Espace en excellent état
- Climatisation centrale
- Programme neuf avec accès quai et plain-pied
- Hauteur et résistance au sol
- Climatisation réversible et balcon privatif
RDC
| Taille | 2 928 pi² |
| Terme | 3/6/9 |
|
Taux de location
|
21,73 $ CAD/HT-HC/pi²/an |
| Utilisation de l’espace | Industriel |
| État | construction complète |
| Disponible | Maintenant |
L’espace à louer est un programme neuf conçu pour accueillir des activités variées dans un cadre moderne et fonctionnel. Chaque cellule dispose d’un accès par rampe ou porte à quai, avec une porte sectionnelle de 3,5 x 3,5 m et une résistance au sol allant jusqu’à 3 T/m². Les plateaux en R+1 offrent une hauteur maximale de 6,9 m, avec une charge admissible de 2 T/m², permettant une exploitation optimale des volumes. Les prestations incluent une climatisation réversible, un chauffage par aérothermes électriques, ainsi qu’un balcon privatif de 4 m² par lot.
- Dépôt de garantie: 3 mois de taux de location
- 1 accès plain-pied
- Espace en excellent état
- Climatisation centrale
- Programme neuf avec accès quai et plain-pied
- Hauteur et résistance au sol
- Climatisation réversible et balcon privatif
RDC
| Taille | 2 939 pi² |
| Terme | 3/6/9 |
|
Taux de location
|
21,73 $ CAD/HT-HC/pi²/an |
| Utilisation de l’espace | Industriel |
| État | construction complète |
| Disponible | Maintenant |
L’espace à louer est un programme neuf conçu pour accueillir des activités variées dans un cadre moderne et fonctionnel. Chaque cellule dispose d’un accès par rampe ou porte à quai, avec une porte sectionnelle de 3,5 x 3,5 m et une résistance au sol allant jusqu’à 3 T/m². Les plateaux en R+1 offrent une hauteur maximale de 6,9 m, avec une charge admissible de 2 T/m², permettant une exploitation optimale des volumes. Les prestations incluent une climatisation réversible, un chauffage par aérothermes électriques, ainsi qu’un balcon privatif de 4 m² par lot.
- Dépôt de garantie: 3 mois de taux de location
- 1 accès plain-pied
- Espace en excellent état
- Climatisation centrale
- Programme neuf avec accès quai et plain-pied
- Hauteur et résistance au sol
- Climatisation réversible et balcon privatif
RDC
| Taille | 2 939 pi² |
| Terme | 3/6/9 |
|
Taux de location
|
21,73 $ CAD/HT-HC/pi²/an |
| Utilisation de l’espace | Industriel |
| État | construction complète |
| Disponible | Maintenant |
L’espace à louer est un programme neuf conçu pour accueillir des activités variées dans un cadre moderne et fonctionnel. Chaque cellule dispose d’un accès par rampe ou porte à quai, avec une porte sectionnelle de 3,5 x 3,5 m et une résistance au sol allant jusqu’à 3 T/m². Les plateaux en R+1 offrent une hauteur maximale de 6,9 m, avec une charge admissible de 2 T/m², permettant une exploitation optimale des volumes. Les prestations incluent une climatisation réversible, un chauffage par aérothermes électriques, ainsi qu’un balcon privatif de 4 m² par lot.
- Dépôt de garantie: 3 mois de taux de location
- 1 accès plain-pied
- Espace en excellent état
- Climatisation centrale
- Programme neuf avec accès quai et plain-pied
- Hauteur et résistance au sol
- Climatisation réversible et balcon privatif
RDC
| Taille | 2 939 pi² |
| Terme | 3/6/9 |
|
Taux de location
|
21,73 $ CAD/HT-HC/pi²/an |
| Utilisation de l’espace | Industriel |
| État | construction complète |
| Disponible | Maintenant |
L’espace à louer est un programme neuf conçu pour accueillir des activités variées dans un cadre moderne et fonctionnel. Chaque cellule dispose d’un accès par rampe ou porte à quai, avec une porte sectionnelle de 3,5 x 3,5 m et une résistance au sol allant jusqu’à 3 T/m². Les plateaux en R+1 offrent une hauteur maximale de 6,9 m, avec une charge admissible de 2 T/m², permettant une exploitation optimale des volumes. Les prestations incluent une climatisation réversible, un chauffage par aérothermes électriques, ainsi qu’un balcon privatif de 4 m² par lot.
- Dépôt de garantie: 3 mois de taux de location
- 1 accès plain-pied
- Espace en excellent état
- Climatisation centrale
- Programme neuf avec accès quai et plain-pied
- Hauteur et résistance au sol
- Climatisation réversible et balcon privatif
RDC
| Taille | 2 939 pi² |
| Terme | 3/6/9 |
|
Taux de location
|
21,73 $ CAD/HT-HC/pi²/an |
| Utilisation de l’espace | Industriel |
| État | construction complète |
| Disponible | Maintenant |
L’espace à louer est un programme neuf conçu pour accueillir des activités variées dans un cadre moderne et fonctionnel. Chaque cellule dispose d’un accès par rampe ou porte à quai, avec une porte sectionnelle de 3,5 x 3,5 m et une résistance au sol allant jusqu’à 3 T/m². Les plateaux en R+1 offrent une hauteur maximale de 6,9 m, avec une charge admissible de 2 T/m², permettant une exploitation optimale des volumes. Les prestations incluent une climatisation réversible, un chauffage par aérothermes électriques, ainsi qu’un balcon privatif de 4 m² par lot.
- Dépôt de garantie: 3 mois de taux de location
- 1 accès plain-pied
- Espace en excellent état
- Climatisation centrale
- Programme neuf avec accès quai et plain-pied
- Hauteur et résistance au sol
- Climatisation réversible et balcon privatif
RDC
| Taille | 2 971 pi² |
| Terme | 3/6/9 |
|
Taux de location
|
21,73 $ CAD/HT-HC/pi²/an |
| Utilisation de l’espace | Industriel |
| État | construction complète |
| Disponible | Maintenant |
L’espace à louer est un programme neuf conçu pour accueillir des activités variées dans un cadre moderne et fonctionnel. Chaque cellule dispose d’un accès par rampe ou porte à quai, avec une porte sectionnelle de 3,5 x 3,5 m et une résistance au sol allant jusqu’à 3 T/m². Les plateaux en R+1 offrent une hauteur maximale de 6,9 m, avec une charge admissible de 2 T/m², permettant une exploitation optimale des volumes. Les prestations incluent une climatisation réversible, un chauffage par aérothermes électriques, ainsi qu’un balcon privatif de 4 m² par lot.
- Dépôt de garantie: 3 mois de taux de location
- 1 accès plain-pied
- Espace en excellent état
- Climatisation centrale
- Programme neuf avec accès quai et plain-pied
- Hauteur et résistance au sol
- Climatisation réversible et balcon privatif
RDC
| Taille | 2 971 pi² |
| Terme | 3/6/9 |
|
Taux de location
|
21,73 $ CAD/HT-HC/pi²/an |
| Utilisation de l’espace | Industriel |
| État | construction complète |
| Disponible | Maintenant |
L’espace à louer est un programme neuf conçu pour accueillir des activités variées dans un cadre moderne et fonctionnel. Chaque cellule dispose d’un accès par rampe ou porte à quai, avec une porte sectionnelle de 3,5 x 3,5 m et une résistance au sol allant jusqu’à 3 T/m². Les plateaux en R+1 offrent une hauteur maximale de 6,9 m, avec une charge admissible de 2 T/m², permettant une exploitation optimale des volumes. Les prestations incluent une climatisation réversible, un chauffage par aérothermes électriques, ainsi qu’un balcon privatif de 4 m² par lot.
- Dépôt de garantie: 3 mois de taux de location
- 1 accès plain-pied
- Espace en excellent état
- Climatisation centrale
- Programme neuf avec accès quai et plain-pied
- Hauteur et résistance au sol
- Climatisation réversible et balcon privatif
RDC
| Taille | 2 971 pi² |
| Terme | 3/6/9 |
|
Taux de location
|
21,73 $ CAD/HT-HC/pi²/an |
| Utilisation de l’espace | Industriel |
| État | construction complète |
| Disponible | Maintenant |
L’espace à louer est un programme neuf conçu pour accueillir des activités variées dans un cadre moderne et fonctionnel. Chaque cellule dispose d’un accès par rampe ou porte à quai, avec une porte sectionnelle de 3,5 x 3,5 m et une résistance au sol allant jusqu’à 3 T/m². Les plateaux en R+1 offrent une hauteur maximale de 6,9 m, avec une charge admissible de 2 T/m², permettant une exploitation optimale des volumes. Les prestations incluent une climatisation réversible, un chauffage par aérothermes électriques, ainsi qu’un balcon privatif de 4 m² par lot.
- Dépôt de garantie: 3 mois de taux de location
- 1 accès plain-pied
- Espace en excellent état
- Climatisation centrale
- Programme neuf avec accès quai et plain-pied
- Hauteur et résistance au sol
- Climatisation réversible et balcon privatif
RDC
| Taille | 2 971 pi² |
| Terme | 3/6/9 |
|
Taux de location
|
21,73 $ CAD/HT-HC/pi²/an |
| Utilisation de l’espace | Industriel |
| État | construction complète |
| Disponible | Maintenant |
L’espace à louer est un programme neuf conçu pour accueillir des activités variées dans un cadre moderne et fonctionnel. Chaque cellule dispose d’un accès par rampe ou porte à quai, avec une porte sectionnelle de 3,5 x 3,5 m et une résistance au sol allant jusqu’à 3 T/m². Les plateaux en R+1 offrent une hauteur maximale de 6,9 m, avec une charge admissible de 2 T/m², permettant une exploitation optimale des volumes. Les prestations incluent une climatisation réversible, un chauffage par aérothermes électriques, ainsi qu’un balcon privatif de 4 m² par lot.
- Dépôt de garantie: 3 mois de taux de location
- 1 accès plain-pied
- Espace en excellent état
- Climatisation centrale
- Programme neuf avec accès quai et plain-pied
- Hauteur et résistance au sol
- Climatisation réversible et balcon privatif
RDC
| Taille | 2 971 pi² |
| Terme | 3/6/9 |
|
Taux de location
|
21,73 $ CAD/HT-HC/pi²/an |
| Utilisation de l’espace | Industriel |
| État | construction complète |
| Disponible | Maintenant |
L’espace à louer est un programme neuf conçu pour accueillir des activités variées dans un cadre moderne et fonctionnel. Chaque cellule dispose d’un accès par rampe ou porte à quai, avec une porte sectionnelle de 3,5 x 3,5 m et une résistance au sol allant jusqu’à 3 T/m². Les plateaux en R+1 offrent une hauteur maximale de 6,9 m, avec une charge admissible de 2 T/m², permettant une exploitation optimale des volumes. Les prestations incluent une climatisation réversible, un chauffage par aérothermes électriques, ainsi qu’un balcon privatif de 4 m² par lot.
- Dépôt de garantie: 3 mois de taux de location
- 1 accès plain-pied
- Espace en excellent état
- Climatisation centrale
- Programme neuf avec accès quai et plain-pied
- Hauteur et résistance au sol
- Climatisation réversible et balcon privatif
RDC
| Taille | 2 971 pi² |
| Terme | 3/6/9 |
|
Taux de location
|
21,73 $ CAD/HT-HC/pi²/an |
| Utilisation de l’espace | Industriel |
| État | construction complète |
| Disponible | Maintenant |
L’espace à louer est un programme neuf conçu pour accueillir des activités variées dans un cadre moderne et fonctionnel. Chaque cellule dispose d’un accès par rampe ou porte à quai, avec une porte sectionnelle de 3,5 x 3,5 m et une résistance au sol allant jusqu’à 3 T/m². Les plateaux en R+1 offrent une hauteur maximale de 6,9 m, avec une charge admissible de 2 T/m², permettant une exploitation optimale des volumes. Les prestations incluent une climatisation réversible, un chauffage par aérothermes électriques, ainsi qu’un balcon privatif de 4 m² par lot.
- Dépôt de garantie: 3 mois de taux de location
- 1 accès plain-pied
- Espace en excellent état
- Climatisation centrale
- Programme neuf avec accès quai et plain-pied
- Hauteur et résistance au sol
- Climatisation réversible et balcon privatif
RDC
| Taille | 2 971 pi² |
| Terme | 3/6/9 |
|
Taux de location
|
21,73 $ CAD/HT-HC/pi²/an |
| Utilisation de l’espace | Industriel |
| État | construction complète |
| Disponible | Maintenant |
L’espace à louer est un programme neuf conçu pour accueillir des activités variées dans un cadre moderne et fonctionnel. Chaque cellule dispose d’un accès par rampe ou porte à quai, avec une porte sectionnelle de 3,5 x 3,5 m et une résistance au sol allant jusqu’à 3 T/m². Les plateaux en R+1 offrent une hauteur maximale de 6,9 m, avec une charge admissible de 2 T/m², permettant une exploitation optimale des volumes. Les prestations incluent une climatisation réversible, un chauffage par aérothermes électriques, ainsi qu’un balcon privatif de 4 m² par lot.
- Dépôt de garantie: 3 mois de taux de location
- 1 accès plain-pied
- Espace en excellent état
- Climatisation centrale
- Programme neuf avec accès quai et plain-pied
- Hauteur et résistance au sol
- Climatisation réversible et balcon privatif
RDC
| Taille | 2 971 pi² |
| Terme | 3/6/9 |
|
Taux de location
|
21,73 $ CAD/HT-HC/pi²/an |
| Utilisation de l’espace | Industriel |
| État | construction complète |
| Disponible | Maintenant |
L’espace à louer est un programme neuf conçu pour accueillir des activités variées dans un cadre moderne et fonctionnel. Chaque cellule dispose d’un accès par rampe ou porte à quai, avec une porte sectionnelle de 3,5 x 3,5 m et une résistance au sol allant jusqu’à 3 T/m². Les plateaux en R+1 offrent une hauteur maximale de 6,9 m, avec une charge admissible de 2 T/m², permettant une exploitation optimale des volumes. Les prestations incluent une climatisation réversible, un chauffage par aérothermes électriques, ainsi qu’un balcon privatif de 4 m² par lot.
- Dépôt de garantie: 3 mois de taux de location
- 1 accès plain-pied
- Espace en excellent état
- Climatisation centrale
- Programme neuf avec accès quai et plain-pied
- Hauteur et résistance au sol
- Climatisation réversible et balcon privatif
RDC
| Taille | 2 971 pi² |
| Terme | 3/6/9 |
|
Taux de location
|
21,73 $ CAD/HT-HC/pi²/an |
| Utilisation de l’espace | Industriel |
| État | construction complète |
| Disponible | Maintenant |
L’espace à louer est un programme neuf conçu pour accueillir des activités variées dans un cadre moderne et fonctionnel. Chaque cellule dispose d’un accès par rampe ou porte à quai, avec une porte sectionnelle de 3,5 x 3,5 m et une résistance au sol allant jusqu’à 3 T/m². Les plateaux en R+1 offrent une hauteur maximale de 6,9 m, avec une charge admissible de 2 T/m², permettant une exploitation optimale des volumes. Les prestations incluent une climatisation réversible, un chauffage par aérothermes électriques, ainsi qu’un balcon privatif de 4 m² par lot.
- Dépôt de garantie: 3 mois de taux de location
- 1 accès plain-pied
- Espace en excellent état
- Climatisation centrale
- Programme neuf avec accès quai et plain-pied
- Hauteur et résistance au sol
- Climatisation réversible et balcon privatif
RDC
| Taille | 2 971 pi² |
| Terme | 3/6/9 |
|
Taux de location
|
21,73 $ CAD/HT-HC/pi²/an |
| Utilisation de l’espace | Industriel |
| État | construction complète |
| Disponible | Maintenant |
L’espace à louer est un programme neuf conçu pour accueillir des activités variées dans un cadre moderne et fonctionnel. Chaque cellule dispose d’un accès par rampe ou porte à quai, avec une porte sectionnelle de 3,5 x 3,5 m et une résistance au sol allant jusqu’à 3 T/m². Les plateaux en R+1 offrent une hauteur maximale de 6,9 m, avec une charge admissible de 2 T/m², permettant une exploitation optimale des volumes. Les prestations incluent une climatisation réversible, un chauffage par aérothermes électriques, ainsi qu’un balcon privatif de 4 m² par lot.
- Dépôt de garantie: 3 mois de taux de location
- 1 accès plain-pied
- Espace en excellent état
- Climatisation centrale
- Programme neuf avec accès quai et plain-pied
- Hauteur et résistance au sol
- Climatisation réversible et balcon privatif
RDC
| Taille | 3 003 pi² |
| Terme | 3/6/9 |
|
Taux de location
|
21,73 $ CAD/HT-HC/pi²/an |
| Utilisation de l’espace | Industriel |
| État | construction complète |
| Disponible | Maintenant |
L’espace à louer est un programme neuf conçu pour accueillir des activités variées dans un cadre moderne et fonctionnel. Chaque cellule dispose d’un accès par rampe ou porte à quai, avec une porte sectionnelle de 3,5 x 3,5 m et une résistance au sol allant jusqu’à 3 T/m². Les plateaux en R+1 offrent une hauteur maximale de 6,9 m, avec une charge admissible de 2 T/m², permettant une exploitation optimale des volumes. Les prestations incluent une climatisation réversible, un chauffage par aérothermes électriques, ainsi qu’un balcon privatif de 4 m² par lot.
- Dépôt de garantie: 3 mois de taux de location
- 1 accès plain-pied
- Espace en excellent état
- Climatisation centrale
- Programme neuf avec accès quai et plain-pied
- Hauteur et résistance au sol
- Climatisation réversible et balcon privatif
RDC
| Taille | 3 003 pi² |
| Terme | 3/6/9 |
|
Taux de location
|
21,73 $ CAD/HT-HC/pi²/an |
| Utilisation de l’espace | Industriel |
| État | construction complète |
| Disponible | Maintenant |
L’espace à louer est un programme neuf conçu pour accueillir des activités variées dans un cadre moderne et fonctionnel. Chaque cellule dispose d’un accès par rampe ou porte à quai, avec une porte sectionnelle de 3,5 x 3,5 m et une résistance au sol allant jusqu’à 3 T/m². Les plateaux en R+1 offrent une hauteur maximale de 6,9 m, avec une charge admissible de 2 T/m², permettant une exploitation optimale des volumes. Les prestations incluent une climatisation réversible, un chauffage par aérothermes électriques, ainsi qu’un balcon privatif de 4 m² par lot.
- Dépôt de garantie: 3 mois de taux de location
- 1 accès plain-pied
- Espace en excellent état
- Climatisation centrale
- Programme neuf avec accès quai et plain-pied
- Hauteur et résistance au sol
- Climatisation réversible et balcon privatif
Mezzanine
| Taille | 786 pi² |
| Terme | 3/6/9 |
|
Taux de location
|
21,73 $ CAD/HT-HC/pi²/an |
| Utilisation de l’espace | Industriel |
| État | construction complète |
| Disponible | Maintenant |
L’espace à louer est un programme neuf conçu pour accueillir des activités variées dans un cadre moderne et fonctionnel. Chaque cellule dispose d’un accès par rampe ou porte à quai, avec une porte sectionnelle de 3,5 x 3,5 m et une résistance au sol allant jusqu’à 3 T/m². Les plateaux en R+1 offrent une hauteur maximale de 6,9 m, avec une charge admissible de 2 T/m², permettant une exploitation optimale des volumes. Les prestations incluent une climatisation réversible, un chauffage par aérothermes électriques, ainsi qu’un balcon privatif de 4 m² par lot.
- Dépôt de garantie: 3 mois de taux de location
- 1 accès plain-pied
- Espace en excellent état
- Climatisation centrale
- Programme neuf avec accès quai et plain-pied
- Hauteur et résistance au sol
- Climatisation réversible et balcon privatif
Mezzanine
| Taille | 786 pi² |
| Terme | 3/6/9 |
|
Taux de location
|
21,73 $ CAD/HT-HC/pi²/an |
| Utilisation de l’espace | Industriel |
| État | construction complète |
| Disponible | Maintenant |
L’espace à louer est un programme neuf conçu pour accueillir des activités variées dans un cadre moderne et fonctionnel. Chaque cellule dispose d’un accès par rampe ou porte à quai, avec une porte sectionnelle de 3,5 x 3,5 m et une résistance au sol allant jusqu’à 3 T/m². Les plateaux en R+1 offrent une hauteur maximale de 6,9 m, avec une charge admissible de 2 T/m², permettant une exploitation optimale des volumes. Les prestations incluent une climatisation réversible, un chauffage par aérothermes électriques, ainsi qu’un balcon privatif de 4 m² par lot.
- Dépôt de garantie: 3 mois de taux de location
- 1 accès plain-pied
- Espace en excellent état
- Climatisation centrale
- Programme neuf avec accès quai et plain-pied
- Hauteur et résistance au sol
- Climatisation réversible et balcon privatif
Mezzanine
| Taille | 786 pi² |
| Terme | 3/6/9 |
|
Taux de location
|
21,73 $ CAD/HT-HC/pi²/an |
| Utilisation de l’espace | Industriel |
| État | construction complète |
| Disponible | Maintenant |
L’espace à louer est un programme neuf conçu pour accueillir des activités variées dans un cadre moderne et fonctionnel. Chaque cellule dispose d’un accès par rampe ou porte à quai, avec une porte sectionnelle de 3,5 x 3,5 m et une résistance au sol allant jusqu’à 3 T/m². Les plateaux en R+1 offrent une hauteur maximale de 6,9 m, avec une charge admissible de 2 T/m², permettant une exploitation optimale des volumes. Les prestations incluent une climatisation réversible, un chauffage par aérothermes électriques, ainsi qu’un balcon privatif de 4 m² par lot.
- Dépôt de garantie: 3 mois de taux de location
- 1 accès plain-pied
- Espace en excellent état
- Climatisation centrale
- Programme neuf avec accès quai et plain-pied
- Hauteur et résistance au sol
- Climatisation réversible et balcon privatif
Mezzanine
| Taille | 786 pi² |
| Terme | 3/6/9 |
|
Taux de location
|
22,48 $ CAD/HT-HC/pi²/an |
| Utilisation de l’espace | Industriel |
| État | construction complète |
| Disponible | Maintenant |
L’espace à louer est un programme neuf conçu pour accueillir des activités variées dans un cadre moderne et fonctionnel. Chaque cellule dispose d’un accès par rampe ou porte à quai, avec une porte sectionnelle de 3,5 x 3,5 m et une résistance au sol allant jusqu’à 3 T/m². Les plateaux en R+1 offrent une hauteur maximale de 6,9 m, avec une charge admissible de 2 T/m², permettant une exploitation optimale des volumes. Les prestations incluent une climatisation réversible, un chauffage par aérothermes électriques, ainsi qu’un balcon privatif de 4 m² par lot.
- Dépôt de garantie: 3 mois de taux de location
- 1 accès plain-pied
- Espace en excellent état
- Climatisation centrale
- Convient pour 2 à 7 personnes
- Programme neuf avec accès quai et plain-pied
- Hauteur et résistance au sol
- Climatisation réversible et balcon privatif
Mezzanine
| Taille | 786 pi² |
| Terme | 3/6/9 |
|
Taux de location
|
22,48 $ CAD/HT-HC/pi²/an |
| Utilisation de l’espace | Industriel |
| État | construction complète |
| Disponible | Maintenant |
L’espace à louer est un programme neuf conçu pour accueillir des activités variées dans un cadre moderne et fonctionnel. Chaque cellule dispose d’un accès par rampe ou porte à quai, avec une porte sectionnelle de 3,5 x 3,5 m et une résistance au sol allant jusqu’à 3 T/m². Les plateaux en R+1 offrent une hauteur maximale de 6,9 m, avec une charge admissible de 2 T/m², permettant une exploitation optimale des volumes. Les prestations incluent une climatisation réversible, un chauffage par aérothermes électriques, ainsi qu’un balcon privatif de 4 m² par lot.
- Dépôt de garantie: 3 mois de taux de location
- 1 accès plain-pied
- Espace en excellent état
- Climatisation centrale
- Convient pour 2 à 7 personnes
- Programme neuf avec accès quai et plain-pied
- Hauteur et résistance au sol
- Climatisation réversible et balcon privatif
Mezzanine
| Taille | 775 pi² |
| Terme | 3/6/9 |
|
Taux de location
|
21,73 $ CAD/HT-HC/pi²/an |
| Utilisation de l’espace | Industriel |
| État | construction complète |
| Disponible | Maintenant |
L’espace à louer est un programme neuf conçu pour accueillir des activités variées dans un cadre moderne et fonctionnel. Chaque cellule dispose d’un accès par rampe ou porte à quai, avec une porte sectionnelle de 3,5 x 3,5 m et une résistance au sol allant jusqu’à 3 T/m². Les plateaux en R+1 offrent une hauteur maximale de 6,9 m, avec une charge admissible de 2 T/m², permettant une exploitation optimale des volumes. Les prestations incluent une climatisation réversible, un chauffage par aérothermes électriques, ainsi qu’un balcon privatif de 4 m² par lot.
- Dépôt de garantie: 3 mois de taux de location
- Espace en excellent état
- Climatisation centrale
- Programme neuf avec accès quai et plain-pied
- Hauteur et résistance au sol
- Climatisation réversible et balcon privatif
Mezzanine
| Taille | 775 pi² |
| Terme | 3/6/9 |
|
Taux de location
|
21,73 $ CAD/HT-HC/pi²/an |
| Utilisation de l’espace | Industriel |
| État | construction complète |
| Disponible | Maintenant |
L’espace à louer est un programme neuf conçu pour accueillir des activités variées dans un cadre moderne et fonctionnel. Chaque cellule dispose d’un accès par rampe ou porte à quai, avec une porte sectionnelle de 3,5 x 3,5 m et une résistance au sol allant jusqu’à 3 T/m². Les plateaux en R+1 offrent une hauteur maximale de 6,9 m, avec une charge admissible de 2 T/m², permettant une exploitation optimale des volumes. Les prestations incluent une climatisation réversible, un chauffage par aérothermes électriques, ainsi qu’un balcon privatif de 4 m² par lot.
- Dépôt de garantie: 3 mois de taux de location
- 1 accès plain-pied
- Espace en excellent état
- Climatisation centrale
- Programme neuf avec accès quai et plain-pied
- Hauteur et résistance au sol
- Climatisation réversible et balcon privatif
Mezzanine
| Taille | 775 pi² |
| Terme | 3/6/9 |
|
Taux de location
|
21,73 $ CAD/HT-HC/pi²/an |
| Utilisation de l’espace | Industriel |
| État | construction complète |
| Disponible | Maintenant |
L’espace à louer est un programme neuf conçu pour accueillir des activités variées dans un cadre moderne et fonctionnel. Chaque cellule dispose d’un accès par rampe ou porte à quai, avec une porte sectionnelle de 3,5 x 3,5 m et une résistance au sol allant jusqu’à 3 T/m². Les plateaux en R+1 offrent une hauteur maximale de 6,9 m, avec une charge admissible de 2 T/m², permettant une exploitation optimale des volumes. Les prestations incluent une climatisation réversible, un chauffage par aérothermes électriques, ainsi qu’un balcon privatif de 4 m² par lot.
- Dépôt de garantie: 3 mois de taux de location
- 1 accès plain-pied
- Espace en excellent état
- Climatisation centrale
- Programme neuf avec accès quai et plain-pied
- Hauteur et résistance au sol
- Climatisation réversible et balcon privatif
Mezzanine
| Taille | 775 pi² |
| Terme | 3/6/9 |
|
Taux de location
|
21,73 $ CAD/HT-HC/pi²/an |
| Utilisation de l’espace | Flex |
| État | construction complète |
| Disponible | Maintenant |
L’espace à louer est un programme neuf conçu pour accueillir des activités variées dans un cadre moderne et fonctionnel. Chaque cellule dispose d’un accès par rampe ou porte à quai, avec une porte sectionnelle de 3,5 x 3,5 m et une résistance au sol allant jusqu’à 3 T/m². Les plateaux en R+1 offrent une hauteur maximale de 6,9 m, avec une charge admissible de 2 T/m², permettant une exploitation optimale des volumes. Les prestations incluent une climatisation réversible, un chauffage par aérothermes électriques, ainsi qu’un balcon privatif de 4 m² par lot.
- Dépôt de garantie: 3 mois de taux de location
- Espace en excellent état
- 1 accès plain-pied
- Climatisation centrale
- Programme neuf avec accès quai et plain-pied
- Hauteur et résistance au sol
- Climatisation réversible et balcon privatif
Mezzanine
| Taille | 775 pi² |
| Terme | 3/6/9 |
|
Taux de location
|
21,73 $ CAD/HT-HC/pi²/an |
| Utilisation de l’espace | Industriel |
| État | construction complète |
| Disponible | Maintenant |
L’espace à louer est un programme neuf conçu pour accueillir des activités variées dans un cadre moderne et fonctionnel. Chaque cellule dispose d’un accès par rampe ou porte à quai, avec une porte sectionnelle de 3,5 x 3,5 m et une résistance au sol allant jusqu’à 3 T/m². Les plateaux en R+1 offrent une hauteur maximale de 6,9 m, avec une charge admissible de 2 T/m², permettant une exploitation optimale des volumes. Les prestations incluent une climatisation réversible, un chauffage par aérothermes électriques, ainsi qu’un balcon privatif de 4 m² par lot.
- Dépôt de garantie: 3 mois de taux de location
- 1 accès plain-pied
- Espace en excellent état
- Climatisation centrale
- Programme neuf avec accès quai et plain-pied
- Hauteur et résistance au sol
- Climatisation réversible et balcon privatif
Mezzanine
| Taille | 775 pi² |
| Terme | 3/6/9 |
|
Taux de location
|
21,73 $ CAD/HT-HC/pi²/an |
| Utilisation de l’espace | Industriel |
| État | construction complète |
| Disponible | Maintenant |
L’espace à louer est un programme neuf conçu pour accueillir des activités variées dans un cadre moderne et fonctionnel. Chaque cellule dispose d’un accès par rampe ou porte à quai, avec une porte sectionnelle de 3,5 x 3,5 m et une résistance au sol allant jusqu’à 3 T/m². Les plateaux en R+1 offrent une hauteur maximale de 6,9 m, avec une charge admissible de 2 T/m², permettant une exploitation optimale des volumes. Les prestations incluent une climatisation réversible, un chauffage par aérothermes électriques, ainsi qu’un balcon privatif de 4 m² par lot.
- Dépôt de garantie: 3 mois de taux de location
- 1 accès plain-pied
- Espace en excellent état
- Climatisation centrale
- Programme neuf avec accès quai et plain-pied
- Hauteur et résistance au sol
- Climatisation réversible et balcon privatif
Mezzanine
| Taille | 775 pi² |
| Terme | 3/6/9 |
|
Taux de location
|
21,73 $ CAD/HT-HC/pi²/an |
| Utilisation de l’espace | Industriel |
| État | construction complète |
| Disponible | Maintenant |
L’espace à louer est un programme neuf conçu pour accueillir des activités variées dans un cadre moderne et fonctionnel. Chaque cellule dispose d’un accès par rampe ou porte à quai, avec une porte sectionnelle de 3,5 x 3,5 m et une résistance au sol allant jusqu’à 3 T/m². Les plateaux en R+1 offrent une hauteur maximale de 6,9 m, avec une charge admissible de 2 T/m², permettant une exploitation optimale des volumes. Les prestations incluent une climatisation réversible, un chauffage par aérothermes électriques, ainsi qu’un balcon privatif de 4 m² par lot.
- Dépôt de garantie: 3 mois de taux de location
- 1 accès plain-pied
- Espace en excellent état
- Climatisation centrale
- Programme neuf avec accès quai et plain-pied
- Hauteur et résistance au sol
- Climatisation réversible et balcon privatif
Mezzanine
| Taille | 775 pi² |
| Terme | 3/6/9 |
|
Taux de location
|
21,73 $ CAD/HT-HC/pi²/an |
| Utilisation de l’espace | Industriel |
| État | construction complète |
| Disponible | Maintenant |
L’espace à louer est un programme neuf conçu pour accueillir des activités variées dans un cadre moderne et fonctionnel. Chaque cellule dispose d’un accès par rampe ou porte à quai, avec une porte sectionnelle de 3,5 x 3,5 m et une résistance au sol allant jusqu’à 3 T/m². Les plateaux en R+1 offrent une hauteur maximale de 6,9 m, avec une charge admissible de 2 T/m², permettant une exploitation optimale des volumes. Les prestations incluent une climatisation réversible, un chauffage par aérothermes électriques, ainsi qu’un balcon privatif de 4 m² par lot.
- Dépôt de garantie: 3 mois de taux de location
- 1 accès plain-pied
- Espace en excellent état
- Climatisation centrale
- Programme neuf avec accès quai et plain-pied
- Hauteur et résistance au sol
- Climatisation réversible et balcon privatif
Mezzanine
| Taille | 775 pi² |
| Terme | 3/6/9 |
|
Taux de location
|
21,73 $ CAD/HT-HC/pi²/an |
| Utilisation de l’espace | Industriel |
| État | construction complète |
| Disponible | Maintenant |
L’espace à louer est un programme neuf conçu pour accueillir des activités variées dans un cadre moderne et fonctionnel. Chaque cellule dispose d’un accès par rampe ou porte à quai, avec une porte sectionnelle de 3,5 x 3,5 m et une résistance au sol allant jusqu’à 3 T/m². Les plateaux en R+1 offrent une hauteur maximale de 6,9 m, avec une charge admissible de 2 T/m², permettant une exploitation optimale des volumes. Les prestations incluent une climatisation réversible, un chauffage par aérothermes électriques, ainsi qu’un balcon privatif de 4 m² par lot.
- Dépôt de garantie: 3 mois de taux de location
- 1 accès plain-pied
- Espace en excellent état
- Climatisation centrale
- Programme neuf avec accès quai et plain-pied
- Hauteur et résistance au sol
- Climatisation réversible et balcon privatif
Mezzanine
| Taille | 775 pi² |
| Terme | 3/6/9 |
|
Taux de location
|
21,73 $ CAD/HT-HC/pi²/an |
| Utilisation de l’espace | Industriel |
| État | construction complète |
| Disponible | Maintenant |
L’espace à louer est un programme neuf conçu pour accueillir des activités variées dans un cadre moderne et fonctionnel. Chaque cellule dispose d’un accès par rampe ou porte à quai, avec une porte sectionnelle de 3,5 x 3,5 m et une résistance au sol allant jusqu’à 3 T/m². Les plateaux en R+1 offrent une hauteur maximale de 6,9 m, avec une charge admissible de 2 T/m², permettant une exploitation optimale des volumes. Les prestations incluent une climatisation réversible, un chauffage par aérothermes électriques, ainsi qu’un balcon privatif de 4 m² par lot.
- Dépôt de garantie: 3 mois de taux de location
- 1 accès plain-pied
- Espace en excellent état
- Climatisation centrale
- Programme neuf avec accès quai et plain-pied
- Hauteur et résistance au sol
- Climatisation réversible et balcon privatif
Mezzanine
| Taille | 775 pi² |
| Terme | 3/6/9 |
|
Taux de location
|
21,73 $ CAD/HT-HC/pi²/an |
| Utilisation de l’espace | Industriel |
| État | construction complète |
| Disponible | Maintenant |
L’espace à louer est un programme neuf conçu pour accueillir des activités variées dans un cadre moderne et fonctionnel. Chaque cellule dispose d’un accès par rampe ou porte à quai, avec une porte sectionnelle de 3,5 x 3,5 m et une résistance au sol allant jusqu’à 3 T/m². Les plateaux en R+1 offrent une hauteur maximale de 6,9 m, avec une charge admissible de 2 T/m², permettant une exploitation optimale des volumes. Les prestations incluent une climatisation réversible, un chauffage par aérothermes électriques, ainsi qu’un balcon privatif de 4 m² par lot.
- Dépôt de garantie: 3 mois de taux de location
- 1 accès plain-pied
- Espace en excellent état
- Climatisation centrale
- Programme neuf avec accès quai et plain-pied
- Hauteur et résistance au sol
- Climatisation réversible et balcon privatif
Mezzanine
| Taille | 775 pi² |
| Terme | 3/6/9 |
|
Taux de location
|
21,73 $ CAD/HT-HC/pi²/an |
| Utilisation de l’espace | Industriel |
| État | construction complète |
| Disponible | Maintenant |
L’espace à louer est un programme neuf conçu pour accueillir des activités variées dans un cadre moderne et fonctionnel. Chaque cellule dispose d’un accès par rampe ou porte à quai, avec une porte sectionnelle de 3,5 x 3,5 m et une résistance au sol allant jusqu’à 3 T/m². Les plateaux en R+1 offrent une hauteur maximale de 6,9 m, avec une charge admissible de 2 T/m², permettant une exploitation optimale des volumes. Les prestations incluent une climatisation réversible, un chauffage par aérothermes électriques, ainsi qu’un balcon privatif de 4 m² par lot.
- Dépôt de garantie: 3 mois de taux de location
- 1 accès plain-pied
- Espace en excellent état
- Climatisation centrale
- Programme neuf avec accès quai et plain-pied
- Hauteur et résistance au sol
- Climatisation réversible et balcon privatif
Mezzanine
| Taille | 775 pi² |
| Terme | 3/6/9 |
|
Taux de location
|
21,73 $ CAD/HT-HC/pi²/an |
| Utilisation de l’espace | Industriel |
| État | construction complète |
| Disponible | Maintenant |
L’espace à louer est un programme neuf conçu pour accueillir des activités variées dans un cadre moderne et fonctionnel. Chaque cellule dispose d’un accès par rampe ou porte à quai, avec une porte sectionnelle de 3,5 x 3,5 m et une résistance au sol allant jusqu’à 3 T/m². Les plateaux en R+1 offrent une hauteur maximale de 6,9 m, avec une charge admissible de 2 T/m², permettant une exploitation optimale des volumes. Les prestations incluent une climatisation réversible, un chauffage par aérothermes électriques, ainsi qu’un balcon privatif de 4 m² par lot.
- Dépôt de garantie: 3 mois de taux de location
- 1 accès plain-pied
- Espace en excellent état
- Climatisation centrale
- Programme neuf avec accès quai et plain-pied
- Hauteur et résistance au sol
- Climatisation réversible et balcon privatif
Mezzanine
| Taille | 775 pi² |
| Terme | 3/6/9 |
|
Taux de location
|
22,48 $ CAD/HT-HC/pi²/an |
| Utilisation de l’espace | Industriel |
| État | construction complète |
| Disponible | Maintenant |
L’espace à louer est un programme neuf conçu pour accueillir des activités variées dans un cadre moderne et fonctionnel. Chaque cellule dispose d’un accès par rampe ou porte à quai, avec une porte sectionnelle de 3,5 x 3,5 m et une résistance au sol allant jusqu’à 3 T/m². Les plateaux en R+1 offrent une hauteur maximale de 6,9 m, avec une charge admissible de 2 T/m², permettant une exploitation optimale des volumes. Les prestations incluent une climatisation réversible, un chauffage par aérothermes électriques, ainsi qu’un balcon privatif de 4 m² par lot.
- Dépôt de garantie: 3 mois de taux de location
- 1 accès plain-pied
- Espace en excellent état
- Climatisation centrale
- Convient pour 2 à 6 personnes
- Programme neuf avec accès quai et plain-pied
- Hauteur et résistance au sol
- Climatisation réversible et balcon privatif
Mezzanine
| Taille | 775 pi² |
| Terme | 3/6/9 |
|
Taux de location
|
22,48 $ CAD/HT-HC/pi²/an |
| Utilisation de l’espace | Industriel |
| État | construction complète |
| Disponible | Maintenant |
L’espace à louer est un programme neuf conçu pour accueillir des activités variées dans un cadre moderne et fonctionnel. Chaque cellule dispose d’un accès par rampe ou porte à quai, avec une porte sectionnelle de 3,5 x 3,5 m et une résistance au sol allant jusqu’à 3 T/m². Les plateaux en R+1 offrent une hauteur maximale de 6,9 m, avec une charge admissible de 2 T/m², permettant une exploitation optimale des volumes. Les prestations incluent une climatisation réversible, un chauffage par aérothermes électriques, ainsi qu’un balcon privatif de 4 m² par lot.
- Dépôt de garantie: 3 mois de taux de location
- 1 accès plain-pied
- Espace en excellent état
- Climatisation centrale
- Convient pour 2 à 6 personnes
- Programme neuf avec accès quai et plain-pied
- Hauteur et résistance au sol
- Climatisation réversible et balcon privatif
Mezzanine
| Taille | 775 pi² |
| Terme | 3/6/9 |
|
Taux de location
|
22,48 $ CAD/HT-HC/pi²/an |
| Utilisation de l’espace | Industriel |
| État | construction complète |
| Disponible | Maintenant |
L’espace à louer est un programme neuf conçu pour accueillir des activités variées dans un cadre moderne et fonctionnel. Chaque cellule dispose d’un accès par rampe ou porte à quai, avec une porte sectionnelle de 3,5 x 3,5 m et une résistance au sol allant jusqu’à 3 T/m². Les plateaux en R+1 offrent une hauteur maximale de 6,9 m, avec une charge admissible de 2 T/m², permettant une exploitation optimale des volumes. Les prestations incluent une climatisation réversible, un chauffage par aérothermes électriques, ainsi qu’un balcon privatif de 4 m² par lot.
- Dépôt de garantie: 3 mois de taux de location
- 1 accès plain-pied
- Espace en excellent état
- Climatisation centrale
- Convient pour 2 à 6 personnes
- Programme neuf avec accès quai et plain-pied
- Hauteur et résistance au sol
- Climatisation réversible et balcon privatif
Mezzanine
| Taille | 775 pi² |
| Terme | 3/6/9 |
|
Taux de location
|
22,48 $ CAD/HT-HC/pi²/an |
| Utilisation de l’espace | Industriel |
| État | construction complète |
| Disponible | Maintenant |
L’espace à louer est un programme neuf conçu pour accueillir des activités variées dans un cadre moderne et fonctionnel. Chaque cellule dispose d’un accès par rampe ou porte à quai, avec une porte sectionnelle de 3,5 x 3,5 m et une résistance au sol allant jusqu’à 3 T/m². Les plateaux en R+1 offrent une hauteur maximale de 6,9 m, avec une charge admissible de 2 T/m², permettant une exploitation optimale des volumes. Les prestations incluent une climatisation réversible, un chauffage par aérothermes électriques, ainsi qu’un balcon privatif de 4 m² par lot.
- Dépôt de garantie: 3 mois de taux de location
- 1 accès plain-pied
- Espace en excellent état
- Climatisation centrale
- Convient pour 2 à 6 personnes
- Programme neuf avec accès quai et plain-pied
- Hauteur et résistance au sol
- Climatisation réversible et balcon privatif
Mezzanine
| Taille | 775 pi² |
| Terme | 3/6/9 |
|
Taux de location
|
22,48 $ CAD/HT-HC/pi²/an |
| Utilisation de l’espace | Industriel |
| État | construction complète |
| Disponible | Maintenant |
L’espace à louer est un programme neuf conçu pour accueillir des activités variées dans un cadre moderne et fonctionnel. Chaque cellule dispose d’un accès par rampe ou porte à quai, avec une porte sectionnelle de 3,5 x 3,5 m et une résistance au sol allant jusqu’à 3 T/m². Les plateaux en R+1 offrent une hauteur maximale de 6,9 m, avec une charge admissible de 2 T/m², permettant une exploitation optimale des volumes. Les prestations incluent une climatisation réversible, un chauffage par aérothermes électriques, ainsi qu’un balcon privatif de 4 m² par lot.
- Dépôt de garantie: 3 mois de taux de location
- 1 accès plain-pied
- Espace en excellent état
- Climatisation centrale
- Convient pour 2 à 6 personnes
- Programme neuf avec accès quai et plain-pied
- Hauteur et résistance au sol
- Climatisation réversible et balcon privatif
Mezzanine
| Taille | 775 pi² |
| Terme | 3/6/9 |
|
Taux de location
|
22,48 $ CAD/HT-HC/pi²/an |
| Utilisation de l’espace | Industriel |
| État | construction complète |
| Disponible | Maintenant |
L’espace à louer est un programme neuf conçu pour accueillir des activités variées dans un cadre moderne et fonctionnel. Chaque cellule dispose d’un accès par rampe ou porte à quai, avec une porte sectionnelle de 3,5 x 3,5 m et une résistance au sol allant jusqu’à 3 T/m². Les plateaux en R+1 offrent une hauteur maximale de 6,9 m, avec une charge admissible de 2 T/m², permettant une exploitation optimale des volumes. Les prestations incluent une climatisation réversible, un chauffage par aérothermes électriques, ainsi qu’un balcon privatif de 4 m² par lot.
- Dépôt de garantie: 3 mois de taux de location
- 1 accès plain-pied
- Espace en excellent état
- Climatisation centrale
- Convient pour 2 à 6 personnes
- Programme neuf avec accès quai et plain-pied
- Hauteur et résistance au sol
- Climatisation réversible et balcon privatif
Mezzanine
| Taille | 775 pi² |
| Terme | 3/6/9 |
|
Taux de location
|
22,48 $ CAD/HT-HC/pi²/an |
| Utilisation de l’espace | Industriel |
| État | construction complète |
| Disponible | Maintenant |
L’espace à louer est un programme neuf conçu pour accueillir des activités variées dans un cadre moderne et fonctionnel. Chaque cellule dispose d’un accès par rampe ou porte à quai, avec une porte sectionnelle de 3,5 x 3,5 m et une résistance au sol allant jusqu’à 3 T/m². Les plateaux en R+1 offrent une hauteur maximale de 6,9 m, avec une charge admissible de 2 T/m², permettant une exploitation optimale des volumes. Les prestations incluent une climatisation réversible, un chauffage par aérothermes électriques, ainsi qu’un balcon privatif de 4 m² par lot.
- Dépôt de garantie: 3 mois de taux de location
- 1 accès plain-pied
- Espace en excellent état
- Climatisation centrale
- Convient pour 2 à 6 personnes
- Programme neuf avec accès quai et plain-pied
- Hauteur et résistance au sol
- Climatisation réversible et balcon privatif
Mezzanine
| Taille | 775 pi² |
| Terme | 3/6/9 |
|
Taux de location
|
22,48 $ CAD/HT-HC/pi²/an |
| Utilisation de l’espace | Industriel |
| État | construction complète |
| Disponible | Maintenant |
L’espace à louer est un programme neuf conçu pour accueillir des activités variées dans un cadre moderne et fonctionnel. Chaque cellule dispose d’un accès par rampe ou porte à quai, avec une porte sectionnelle de 3,5 x 3,5 m et une résistance au sol allant jusqu’à 3 T/m². Les plateaux en R+1 offrent une hauteur maximale de 6,9 m, avec une charge admissible de 2 T/m², permettant une exploitation optimale des volumes. Les prestations incluent une climatisation réversible, un chauffage par aérothermes électriques, ainsi qu’un balcon privatif de 4 m² par lot.
- Dépôt de garantie: 3 mois de taux de location
- 1 accès plain-pied
- Espace en excellent état
- Climatisation centrale
- Convient pour 2 à 6 personnes
- Programme neuf avec accès quai et plain-pied
- Hauteur et résistance au sol
- Climatisation réversible et balcon privatif
Mezzanine
| Taille | 775 pi² |
| Terme | 3/6/9 |
|
Taux de location
|
22,48 $ CAD/HT-HC/pi²/an |
| Utilisation de l’espace | Industriel |
| État | construction complète |
| Disponible | Maintenant |
L’espace à louer est un programme neuf conçu pour accueillir des activités variées dans un cadre moderne et fonctionnel. Chaque cellule dispose d’un accès par rampe ou porte à quai, avec une porte sectionnelle de 3,5 x 3,5 m et une résistance au sol allant jusqu’à 3 T/m². Les plateaux en R+1 offrent une hauteur maximale de 6,9 m, avec une charge admissible de 2 T/m², permettant une exploitation optimale des volumes. Les prestations incluent une climatisation réversible, un chauffage par aérothermes électriques, ainsi qu’un balcon privatif de 4 m² par lot.
- Dépôt de garantie: 3 mois de taux de location
- 1 accès plain-pied
- Espace en excellent état
- Climatisation centrale
- Convient pour 2 à 6 personnes
- Programme neuf avec accès quai et plain-pied
- Hauteur et résistance au sol
- Climatisation réversible et balcon privatif
Mezzanine
| Taille | 775 pi² |
| Terme | 3/6/9 |
|
Taux de location
|
22,48 $ CAD/HT-HC/pi²/an |
| Utilisation de l’espace | Industriel |
| État | construction complète |
| Disponible | Maintenant |
L’espace à louer est un programme neuf conçu pour accueillir des activités variées dans un cadre moderne et fonctionnel. Chaque cellule dispose d’un accès par rampe ou porte à quai, avec une porte sectionnelle de 3,5 x 3,5 m et une résistance au sol allant jusqu’à 3 T/m². Les plateaux en R+1 offrent une hauteur maximale de 6,9 m, avec une charge admissible de 2 T/m², permettant une exploitation optimale des volumes. Les prestations incluent une climatisation réversible, un chauffage par aérothermes électriques, ainsi qu’un balcon privatif de 4 m² par lot.
- Dépôt de garantie: 3 mois de taux de location
- 1 accès plain-pied
- Espace en excellent état
- Climatisation centrale
- Convient pour 2 à 6 personnes
- Programme neuf avec accès quai et plain-pied
- Hauteur et résistance au sol
- Climatisation réversible et balcon privatif
APERÇU DE LA PROPRIÉTÉ
L’immeuble et sa localisation bénéficient d’un emplacement stratégique à seulement 3 km au nord-est du périphérique parisien, dans la Z.I des Vignes à Bobigny. Le site, clos et sécurisé, est desservi par plusieurs lignes de bus (134, 234, 251), le tram T3 (station Libération), le métro ligne 5 (station Pablo Picasso), ainsi que les axes routiers et autoroutiers majeurs (A86, A3, N2, N3). Cette accessibilité exceptionnelle renforce l’attractivité du site pour les entreprises en quête de visibilité et de connectivité dans un environnement urbain dynamique.
- Terrain clôturé
- Mezzanine
- Système de sécurité
- Accessible aux fauteuils roulants
- Espace d'entreposage
FAITS SUR LA PROPRIÉTÉ
Présenté par
"93000 Bobigny"
Hmm, il semble y avoir eu une erreur lors de l’envoi de votre message. Veuillez réessayer.
Merci! Votre message a été envoyé.

