Votre courriel a été envoyé.
91220 Brétigny-sur-Orge 111 988 pi² d'espace disponible • Industriel


Certaines informations ont été traduites automatiquement.
Faits saillants
- Parc logistique gardienné avec accès sécurisé
- Conception moderne avec éclairage LED basse consommation
- Localisation stratégique à proximité des grands axes et de Paris
Caractéristiques
Tous les espaces disponibles(1)
Afficher les taux de location en
- Espace
- Taille
- Terme
-
Taux de location
- Utilisation de l’espace
- Aménagement
- Disponible
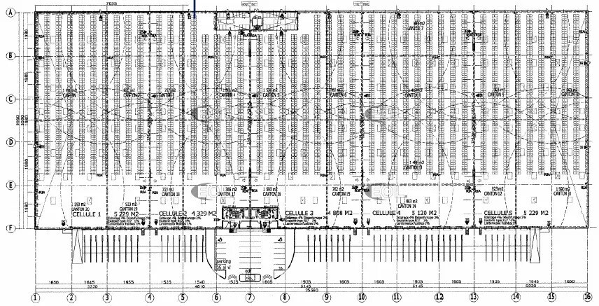
Chaque cellule logistique est conçue pour répondre aux standards les plus exigeants du secteur. L’entrepôt, classé A et entièrement équipé de racks, offre une hauteur sous toiture allant jusqu’à 12,10 m, garantissant une capacité de stockage optimale. Les dix accès à quai, complétés par un accès de plain-pied, facilitent les opérations de chargement et déchargement, tandis que la voierie lourde et les équipements tels que sprinklers et R.I.A. assurent un haut niveau de sécurité. Les locaux sociaux, vestiaires et espaces de repos viennent compléter l’ensemble pour un confort opérationnel.
- Honoraires preneur: 11,00% du taux de location annuel
- Dépôt de garantie: 3 mois de taux de location
- Air central et chauffage
- Entreposage sécurisé
- Détecteur de fumée
- Hauteur sous toiture jusqu’à 12,10 m
- 1 accès plain-pied pour une logistique fluide
- Sécurité: voierie lourde et locaux sociaux
-
Charges locatives: 0,77 $ CAD/pi²/an 0,06 $ CAD/pi²/mois 86 230 $ CAD/an 7 186 $ CAD/mois
-
Taxe foncière: 1,69 $ CAD/pi²/an 0,14 $ CAD/pi²/mois 189 703 $ CAD/an 15 809 $ CAD/mois
- Système de sécurité
- Installations WC abandonnées
- Entrepôt classe A intégralement racké
- 10 quais de chargement
- Sécurité renforcée : sprinklers, R.I.A
| Espace | Taille | Terme | Taux de location | Utilisation de l’espace | Aménagement | Disponible |
| RDC | 111 988 pi² | 3/6/9 | 9,33 $ CAD/HT-HC/pi²/an 0,78 $ CAD/HT-HC/pi²/mois 1 044 706 $ CAD/HT-HC/an 87 059 $ CAD/HT-HC/mois | Industriel | construction complète | Maintenant |
RDC
| Taille |
| 111 988 pi² |
| Terme |
| 3/6/9 |
|
Taux de location
|
| 9,33 $ CAD/HT-HC/pi²/an 0,78 $ CAD/HT-HC/pi²/mois 1 044 706 $ CAD/HT-HC/an 87 059 $ CAD/HT-HC/mois |
| Utilisation de l’espace |
| Industriel |
| Aménagement |
| construction complète |
| Disponible |
| Maintenant |
RDC
| Taille | 111 988 pi² |
| Terme | 3/6/9 |
|
Taux de location
|
9,33 $ CAD/HT-HC/pi²/an |
| Utilisation de l’espace | Industriel |
| Aménagement | construction complète |
| Disponible | Maintenant |
Chaque cellule logistique est conçue pour répondre aux standards les plus exigeants du secteur. L’entrepôt, classé A et entièrement équipé de racks, offre une hauteur sous toiture allant jusqu’à 12,10 m, garantissant une capacité de stockage optimale. Les dix accès à quai, complétés par un accès de plain-pied, facilitent les opérations de chargement et déchargement, tandis que la voierie lourde et les équipements tels que sprinklers et R.I.A. assurent un haut niveau de sécurité. Les locaux sociaux, vestiaires et espaces de repos viennent compléter l’ensemble pour un confort opérationnel.
- Honoraires preneur: 11,00% du taux de location annuel
-
Charges locatives: 0,77 $ CAD/pi²/an 0,06 $ CAD/pi²/mois 86 230 $ CAD/an 7 186 $ CAD/mois
- Dépôt de garantie: 3 mois de taux de location
-
Taxe foncière: 1,69 $ CAD/pi²/an 0,14 $ CAD/pi²/mois 189 703 $ CAD/an 15 809 $ CAD/mois
- Air central et chauffage
- Système de sécurité
- Entreposage sécurisé
- Installations WC abandonnées
- Détecteur de fumée
- Entrepôt classe A intégralement racké
- Hauteur sous toiture jusqu’à 12,10 m
- 10 quais de chargement
- 1 accès plain-pied pour une logistique fluide
- Sécurité renforcée : sprinklers, R.I.A
- Sécurité: voierie lourde et locaux sociaux
Aperçu de la propriété
Implanté au sein d’un parc logistique gardienné, l’immeuble bénéficie d’une situation stratégique à proximité immédiate des grands axes routiers, offrant une connexion rapide vers Paris et les principaux pôles économiques de la région. La conception moderne du bâtiment, associée à des prestations de qualité comme l’éclairage LED basse consommation, reflète une approche durable et performante. La présence d’un service de sécurité sur site renforce la fiabilité et la tranquillité des opérations.
Faits sur l’installation distribution
Présenté par
"91220 Brétigny-sur-Orge"
Hmm, il semble y avoir eu une erreur lors de l’envoi de votre message. Veuillez réessayer.
Merci! Votre message a été envoyé.
