Se Connecter/S’inscrire
Votre courriel a été envoyé.
Zona centre Lot • Résidentiel • 0,1 Acres • 864 708 $ CAD • Calella, Barcelona 08370



Certaines informations ont été traduites automatiquement.
Faits saillants de l'investissement
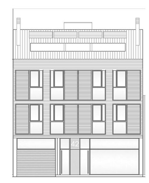
- Proyecto con seis viviendas, local comercial y aparcamiento.
- Fachada amplia y profundidad ideal para distribución eficiente.
- Potencial edificable de más de 1.100?m2 útiles.
- Alta demanda residencial y turística en el centro urbano.
Résumé de l'annonce
Disponible en venta estupenda parcela urbana ubicada en pleno centro de Calella, a escasos pasos de la playa y rodeado de actividad comercial.
Cuenta con una superficie de 392?m2, una fachada de 11,16 metros y una profundidad de 35,06 metros, el terreno ofrece una configuración ideal para maximizar el aprovechamiento edificable.
La parcela permite construir hasta 1.148?m2 útiles distribuidos en planta sótano, planta baja, dos plantas piso y planta bajo cubierta. El proyecto previsto contempla la edificación de seis viviendas, un local comercial en planta baja, siete plazas de aparcamiento y siete trasteros, lo que responde perfectamente a la demanda urbana de vivienda con servicios complementarios.
Este solar representa una inversión con potencial de retorno tanto por venta como por alquiler.
Cuenta con una superficie de 392?m2, una fachada de 11,16 metros y una profundidad de 35,06 metros, el terreno ofrece una configuración ideal para maximizar el aprovechamiento edificable.
La parcela permite construir hasta 1.148?m2 útiles distribuidos en planta sótano, planta baja, dos plantas piso y planta bajo cubierta. El proyecto previsto contempla la edificación de seis viviendas, un local comercial en planta baja, siete plazas de aparcamiento y siete trasteros, lo que responde perfectamente a la demanda urbana de vivienda con servicios complementarios.
Este solar representa una inversión con potencial de retorno tanto por venta como por alquiler.
Faits sur la propriété
| Prix | 864 708 $ CAD | Type de propriété | Terrain |
| Type de vente | Investissement ou propriétaire utilisateur | Sous-type de propriété | Résidentiel |
| Nombre de lots | 1 | Taille totale du lot | 0,10 AC |
| Prix | 864 708 $ CAD |
| Type de vente | Investissement ou propriétaire utilisateur |
| Nombre de lots | 1 |
| Type de propriété | Terrain |
| Sous-type de propriété | Résidentiel |
| Taille totale du lot | 0,10 AC |
1 Lot disponible
Lot
| Prix | 864 708 $ CAD | Taille du lot | 0,10 AC |
| Prix par AC | 8 927 862,22 $ CAD |
| Prix | 864 708 $ CAD |
| Prix par AC | 8 927 862,22 $ CAD |
| Taille du lot | 0,10 AC |
Parcela urbana de forma rectangular que cuenta con 11,16 metros de fachada y una profundidad de 35,06 m2. Un total de 392 m2 sobre terreno llano en bruto.
Description
Disponible à la vente, superbe parcelle urbaine située en plein centre de Calella, à quelques pas de la plage et entourée d'activités commerciales. Avec une superficie de 392 m², une façade de 11,16 mètres et une profondeur de 35,06 mètres, le terrain offre une configuration idéale pour maximiser le potentiel constructible.
1 de 5
Vidéos
Visite extérieure 3D Matterport
Visite 3D Matterport
Photos
Vue depuis la rue
Rue
Carte
Présenté par
Zona centre
Vous êtes déjà membre? Connectez-vous
Hmm, il semble y avoir eu une erreur lors de l’envoi de votre message. Veuillez réessayer.
Merci! Votre message a été envoyé.

