Votre courriel a été envoyé.
Calle Consenso, 16 Unité de condo • Commerce de détail • 2 658 pi² • À vendre 463 577 $ CAD • Villaverde, Madrid 28021



Certaines informations ont été traduites automatiquement.
Faits saillants de l'investissement
- Rentabilité locale
- À proximité de Metro City of Los Angeles
- Bonnes communications par M-40 et A-4
- Grande façade d'angle
1 Unité disponible
| Taille de l’unité | 2 658 pi² | Utilisation du condo | Commerce de détail |
| Prix | 463 577 $ CAD | Type de vente | Investissement |
| Prix par pi² | 174,41 $ CAD |
| Taille de l’unité | 2 658 pi² |
| Prix | 463 577 $ CAD |
| Prix par pi² | 174,41 $ CAD |
| Utilisation du condo | Commerce de détail |
| Type de vente | Investissement |
Notes sur la vente
Local comercial en rentabilidad ubicado en la Ciudad de los Ángeles, junto al Parque del Espinillo y el polideportivo municipal.
El espacio se encuentra diáfano y cuenta con 247 m2 de superficie. Dispone de una gran fachada en esquina y amplios escaparates que le proporcionan mucha luz y visibilidad.
Anteriormente ha sido sucursal bancaria. Dispone de falso techo, iluminación empotrada, climatización, suelos de cerámica y aseos. Grandes posibilidades.
El local actualmente se encuentra alquilado en rentabilidad con una renta aproximada de unos 1.463 €/mes. Fecha de fin de contrato: 13/03/2028.
Foto interior
Foto interior
Foto interior
Foto interior
Foto interior
Foto interior
Foto interior
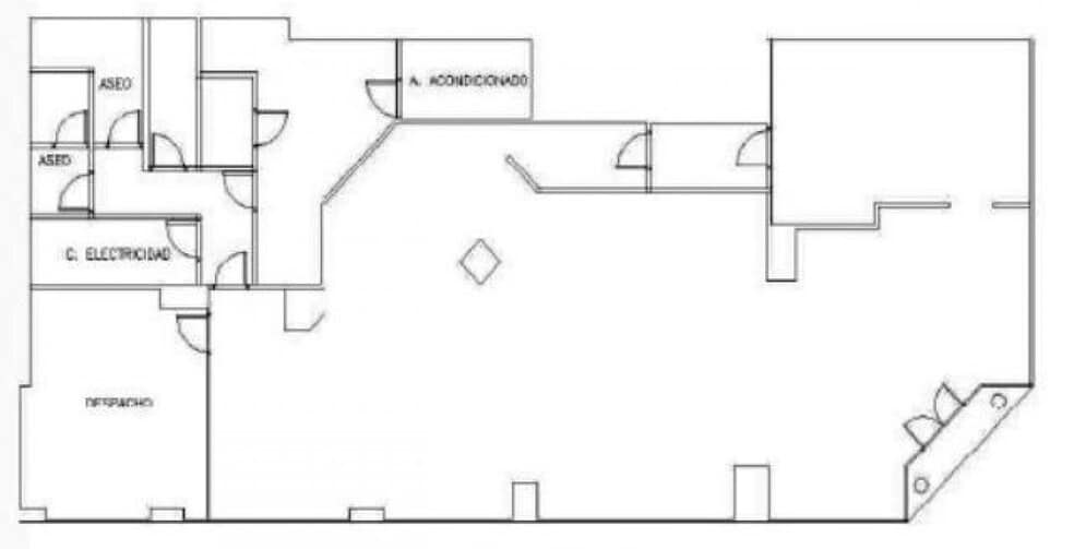
Plano Carmen Riezu
Foto interior
Faits sur la propriété
| Taille totale du bâtiment | 81 095 pi² | Planchers | 5 |
| Type de propriété | Immeuble residentiel (Condo) | Superficie de plancher typique | 16 219 pi² |
| Sous-type de propriété | Appartement | Année de construction | 1994 |
| Classe d’immeuble | C | Taille du lot | 0,79 AC |
| Taille totale du bâtiment | 81 095 pi² |
| Type de propriété | Immeuble residentiel (Condo) |
| Sous-type de propriété | Appartement |
| Classe d’immeuble | C |
| Planchers | 5 |
| Superficie de plancher typique | 16 219 pi² |
| Année de construction | 1994 |
| Taille du lot | 0,79 AC |
Commodités
Commodités du site
- Système de sécurité
- Commerce de détail sur place
- Transport en commun
- Entrée par clef intelligente
Présenté par
Research In Progress
Calle Consenso, 16
Hmm, il semble y avoir eu une erreur lors de l’envoi de votre message. Veuillez réessayer.
Merci! Votre message a été envoyé.

