Se Connecter/S’inscrire
Votre courriel a été envoyé.
Visites 3D Matterport
Faits saillants de l'investissement
- The Staunton Avenue industrial assemblage offers investors and owner/users a unique opportunity in Central Los Angeles.
- Well-appointed for warehousing, apparel, manufacturing, and logistics with a large, fenced yard and office space for operational excellence.
- Strategically located near the 10, 5, 710, and 110 Freeways, allowing for efficient regional and national distribution.
- Area demographics within 10 miles are ideal, with over 1.5 million employees and consumer spending exceeding $36.7 million.
Résumé de l'annonce
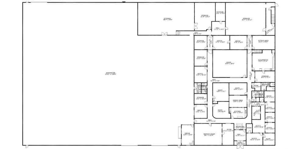
The 57,550-square-foot industrial property located at 4801 & 4815 Staunton Avenue in Los Angeles represents a prime investment or owner/user opportunity within one of Central Los Angeles’s most sought-after industrial markets. This asset offers street-to-street access, a secured yard connecting both freestanding buildings, and versatile functionality suitable for logistics, warehousing, manufacturing, and apparel operations. Positioned on 1.95 acres (84,768 square feet), the property comprises two buildings: one totaling 39,450 square feet with 15,200 square feet of office space and another with 18,100 square feet without office build-out. Both structures are constructed with durable tilt-up concrete and feature clear heights ranging from 20 to 24 feet. The secured yard and dual access points facilitate efficient truck movement, improve circulation, and support optimal operational performance. The property is well-suited for investors and owner/users. Buyers may lease the space at prevailing market rates or customize the facility for their own business requirements. This location provides flexibility and robust potential for a variety of commercial uses.
4801 & 4815 are strategically situated in Central Los Angeles, providing unparalleled access across the city. Investors will appreciate proximity to major landmarks such as Los Angeles International Airport, Downtown Los Angeles, and key interstates, which streamline transportation and distribution. The surrounding area offers convenient amenities for employees, including notable retailers and restaurants like Jersey Mike’s Subs, In-N-Out Burger, Wingstop, and Dollar Tree. Central Los Angeles’ status as a leading industrial hub is reinforced by its centrality within a vast consumer market, supporting valuable last-mile delivery capabilities. Furthermore, the location benefits from a robust legacy of industry and manufacturing, supported by enduring infrastructure that meets the demands of modern business.
Los Angeles serves as an optimal environment for investors. As the nation’s second-largest metropolitan area, Los Angeles features a strong economy that supports continued growth. The market has experienced increased leasing activity within the industrial property sector.
With its strategic location near major transportation routes and limited supply in the surrounding market, this property represents a rare opportunity for investors or industrial users seeking a highly functional, well-located asset in Los Angeles.
Property tours are available by appointment only. Please contact the listing broker to schedule.
4801 & 4815 are strategically situated in Central Los Angeles, providing unparalleled access across the city. Investors will appreciate proximity to major landmarks such as Los Angeles International Airport, Downtown Los Angeles, and key interstates, which streamline transportation and distribution. The surrounding area offers convenient amenities for employees, including notable retailers and restaurants like Jersey Mike’s Subs, In-N-Out Burger, Wingstop, and Dollar Tree. Central Los Angeles’ status as a leading industrial hub is reinforced by its centrality within a vast consumer market, supporting valuable last-mile delivery capabilities. Furthermore, the location benefits from a robust legacy of industry and manufacturing, supported by enduring infrastructure that meets the demands of modern business.
Los Angeles serves as an optimal environment for investors. As the nation’s second-largest metropolitan area, Los Angeles features a strong economy that supports continued growth. The market has experienced increased leasing activity within the industrial property sector.
With its strategic location near major transportation routes and limited supply in the surrounding market, this property represents a rare opportunity for investors or industrial users seeking a highly functional, well-located asset in Los Angeles.
Property tours are available by appointment only. Please contact the listing broker to schedule.
Visites 3D Matterport
1 de 2
Vidéos
Visite extérieure 3D Matterport
Visite 3D Matterport
Photos
Vue depuis la rue
Rue
Carte
Notice d’offre Cliquez ici pour accéder à
Salle de données Cliquez ici pour accéder à
- Offering Memorandum
- Operating and Financials
- Leaseback Draft Lease
- Purchase Agreement
- Terms Sheet
- Third Party Reports
- Building Layouts
- Title and Insurance
Analyse du marché Cliquez ici pour accéder à
Faits sur la propriété
| Condition de vente | Vente à l’encan | Nombre de propriétés | 2 |
| Types de propriétaire | Pleine propriété | Taille totale du bâtiment | 59 617 pi² |
| Type de vente | Investissement | Superficie totale du terrain | 3,55 AC |
| Statut | Actif |
| Condition de vente | Vente à l’encan |
| Types de propriétaire | Pleine propriété |
| Type de vente | Investissement |
| Statut | Actif |
| Nombre de propriétés | 2 |
| Taille totale du bâtiment | 59 617 pi² |
| Superficie totale du terrain | 3,55 AC |
Propriétés
| Nom de la propriété/adresse | Type de propriété | Taille | Année de construction |
|---|---|---|---|
|
Shason, Inc
4801 Staunton Ave, Los Angeles, CA 90058 |
Industriel | 40 502 pi² | 1950 |
| 4815 Staunton Ave, Los Angeles, CA 90058 | Industriel | 19 115 pi² | 1981 |
Conseiller(ère) en vente
Frank Lahijani, Chief Executive Officer
Frank Lahijani est l'un des fondateurs et président du conseil d'administration de Global Commercial Real Estate, Inc., une société privée d'immobilier industriel et commercial offrant des services complets qui exerce ses activités sur le marché du Grand Los Angeles depuis 2003. Frank se concentre sur les types de biens industriels et commerciaux, y compris tous les aspects de la vente et de la location. Sa carrière très fructueuse et respectée dans le domaine de l'immobilier industriel et commercial est le fruit de plus de deux décennies de service fidèle à ses clients, à l'industrie et à la communauté. Il a effectué plus de 1 000 transactions de plus de 20 000 000 pieds carrés, évaluées à plus de 1 milliard de dollars. Il a donc travaillé avec une grande variété d'investisseurs, d'utilisateurs industriels et commerciaux. Ceux-ci comprennent, sans s'y limiter, la couture, le tricot, la mort, la fabrication de meubles, le travail des métaux, le placage, la transformation des aliments, le recyclage, l'entreposage et la distribution, la fabrication, la vente au détail et le bureau. Les transactions elles-mêmes comprennent les ventes, les baux, les sous-baux et les échanges. De plus, les clients sont des propriétaires d'entreprise, des propriétaires d'immeubles absents, des retraités, des promoteurs et des gestionnaires d'actifs. Il a terminé ses études à l'UCLA en 1986, où il a obtenu son diplôme en administration des affaires.
À propos de la technologie des enchères
Les enchères de Ten-X représentent la technologie de transaction numéro 1 pour les transactions immobilières commerciales en ligne. Avec plus de 34 milliards de dollars en transactions totales, ces enchères utilisent une technologie de pointe et des données en temps réel sur les actifs afin de maximiser les chances de trouver l’acheteur idéal. Avec un processus d’enchères très rapide, une due diligence complète et la vérification des acheteurs, les transactions sont conclues deux fois plus vite et avec deux fois plus de fiabilité pour les courtiers, les propriétaires et les investisseurs.
En lire plus
Contact pour la vente à l’encan
Jameson Kuykendall
Contact
Permis de l’encanteur:
Ten-X Jessica Figueroa RE Brkr 01937601. Ten-X Auction Surety Bond 106465786
1 de 27
Vidéos
Visite extérieure 3D Matterport
Visite 3D Matterport
Photos
Vue depuis la rue
Rue
Carte
Frais de transaction 3%
Basés sur le montant de l’enchère gagnante
Frais de transaction minimaux
20 000 $ USD
Frais de transaction maximaux
300 000 $ USD
Exemple de calcul
Montant de la mise gagnante
5 000 000 $ USD
Frais de transaction
150 000 $ USD (3%)
Prix d’achat total
5 150 000 $ USD
Présenté par
Central LA Industrial Portfolio
Vous êtes déjà membre? Connectez-vous
Hmm, il semble y avoir eu une erreur lors de l’envoi de votre message. Veuillez réessayer.
Merci! Votre message a été envoyé.
Présenté par
Central LA Industrial Portfolio
Vous êtes déjà membre? Connectez-vous
Hmm, il semble y avoir eu une erreur lors de l’envoi de votre message. Veuillez réessayer.
Merci! Votre message a été envoyé.



