Se Connecter/S’inscrire
Votre courriel a été envoyé.
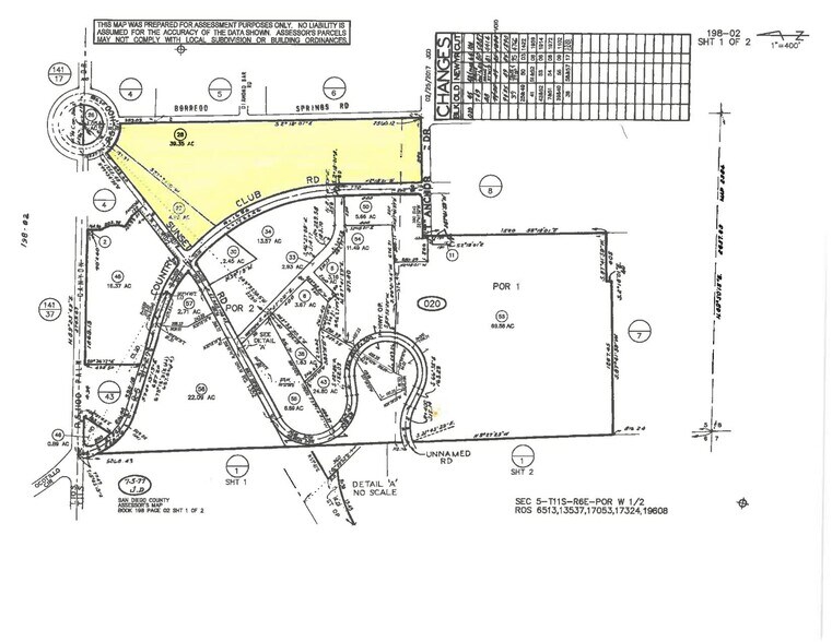
Christmas Circle - Borrego Springs - SWC of Christmas Circle Lot • Terrain commercial • 44,27 Acres • 1 619 583 $ CAD • Borrego Springs, CA 92004



Certaines informations ont été traduites automatiquement.
Résumé de l'annonce
The subject property is located at Southwest Corner of Christmas Circle and Borrego Springs Road in Borrego Springs, CA. The property is in an excellent
location in the heart of town along one of the main roads running through Borrego Springs. The property is just west of Road Runner Golf and Country Club and Springs at Borrego Golf Course, south of Borrego Springs High School, and across the street from Christmas Circle Community Park.
This 44.27-acre property, located along the prominent Palm Canyon Drive in the center of Borrego Springs, offers excellent visibility and accessibility. The
site comes with a conceptual plan for a 200-space RV resort, 25 manufactured vacation units, and two retail pads, making it an ideal location for tourism and
commercial development. With split zoning, the land supports a variety of uses, including residential, commercial, and medical, offering potential for single-family
homes, mobile home parks, restaurants, gas stations, and other businesses. This versatile property provides a unique opportunity for diverse development in a
prime location.
location in the heart of town along one of the main roads running through Borrego Springs. The property is just west of Road Runner Golf and Country Club and Springs at Borrego Golf Course, south of Borrego Springs High School, and across the street from Christmas Circle Community Park.
This 44.27-acre property, located along the prominent Palm Canyon Drive in the center of Borrego Springs, offers excellent visibility and accessibility. The
site comes with a conceptual plan for a 200-space RV resort, 25 manufactured vacation units, and two retail pads, making it an ideal location for tourism and
commercial development. With split zoning, the land supports a variety of uses, including residential, commercial, and medical, offering potential for single-family
homes, mobile home parks, restaurants, gas stations, and other businesses. This versatile property provides a unique opportunity for diverse development in a
prime location.
Faits sur la propriété
| Prix | 1 619 583 $ CAD | Type de propriété | Terrain |
| Type de vente | Investissement | Sous-type de propriété | Terrain commercial |
| Nombre de lots | 1 | Taille totale du lot | 44,27 AC |
| Zonage | C36 / RV - Zonage polyvalent parfait pour le commerce de détail, l'hôtellerie ou le développement à usage mixte. | ||
| Prix | 1 619 583 $ CAD |
| Type de vente | Investissement |
| Nombre de lots | 1 |
| Type de propriété | Terrain |
| Sous-type de propriété | Terrain commercial |
| Taille totale du lot | 44,27 AC |
| Zonage | C36 / RV - Zonage polyvalent parfait pour le commerce de détail, l'hôtellerie ou le développement à usage mixte. |
1 Lot disponible
Lot
| Prix | 1 619 583 $ CAD | Taille du lot | 44,27 AC |
| Prix par AC | 36 584,22 $ CAD |
| Prix | 1 619 583 $ CAD |
| Prix par AC | 36 584,22 $ CAD |
| Taille du lot | 44,27 AC |
Two contiguous parcels zoned General Commercial (C36) and Variable Family Residential (RV)
1 1
Impôts fonciers
| Numéros de lot | Évaluation des bâtiments | 0 $ CAD | |
| Évaluation du terrain | 600 936 $ CAD | Évaluation totale | 600 936 $ CAD |
Impôts fonciers
Numéros de lot
Évaluation du terrain
600 936 $ CAD
Évaluation des bâtiments
0 $ CAD
Évaluation totale
600 936 $ CAD
1 de 12
Vidéos
Visite extérieure 3D Matterport
Visite 3D Matterport
Photos
Vue depuis la rue
Rue
Carte
1 de 1
Présenté par
Christmas Circle - Borrego Springs - SWC of Christmas Circle
Vous êtes déjà membre? Connectez-vous
Hmm, il semble y avoir eu une erreur lors de l’envoi de votre message. Veuillez réessayer.
Merci! Votre message a été envoyé.
Votre message a été envoyé !
Activez votre compte LoopNet dès maintenant pour suivre les propriétés, recevoir des alertes en temps réel, gagner du temps sur vos demandes futures et bien plus encore.
