Votre courriel a été envoyé.
78310 Coignières 18 579 pi² d'espace disponible



Certaines informations ont été traduites automatiquement.
Faits saillants
- Accès direct N10 et autoroutes
- Zone d’activité dynamique
- Bâtiment indépendant
Caractéristiques
Tous les espaces disponibles(3)
Afficher les taux de location en
- Espace
- Taille
- Terme
-
Taux de location
- Utilisation de l’espace
- Aménagement
- Disponible
Cet espace indépendant réunit une large zone d’activités confortable et fonctionnelle ainsi que des bureaux répartis entre le rez-de-chaussée et l’étage. Il bénéficie d’une hauteur généreuse qui facilite les opérations de stockage et permet une grande flexibilité d’exploitation. Deux accès de plain-pied par portes sectionnelles favorisent la circulation des véhicules utilitaires, tandis qu’une mezzanine métallique renforce les possibilités d’organisation interne. Les bureaux, équipés d’un aménagement classique avec moquette, faux plafonds et baie de brassage, assurent un cadre de travail agréable pour les équipes encadrantes et administratives. Le bâtiment dispose de sanitaires à chaque niveau, d’un système de chauffage adapté aux différentes zones, ainsi que d’équipements facilitant l’exploitation comme des skydômes et dispositifs de désenfumage. L’ensemble forme une solution clé en main pour une activité mêlant stockage, production légère et fonctions tertiaires.
- Honoraires preneur: 15,00% du taux de location annuel
-
Taxe foncière: 0,66 $ CAD/pi²/an 0,05 $ CAD/pi²/mois 12 188 $ CAD/an 1 016 $ CAD/mois
- Espace en excellent état
- Système de sécurité
- Plafond suspendu
- Éclairage encastré
- Hauts plafonds
- Détecteur de fumée
- Parking extérieur disponible
- Dépôt de garantie: 3 mois de taux de location
- Comprend 6 738 pi² d’espace de bureau dédié
- Bureaux partitionnés
- Entreposage sécurisé
- Éclairage d’urgence
- Plafonds finis: 21’4”
- Cour
- Portes sectionnelles traversantes
- Bureaux intégrés sur deux niveaux
- Dépôt de garantie: 3 mois de taux de location
- Plafonds finis: 21’4”
-
Taxe foncière: 1,03 $ CAD/pi²/an 0,09 $ CAD/pi²/mois 12 189 $ CAD/an 1 016 $ CAD/mois
- Dépôt de garantie: 3 mois de taux de location
- Plafonds finis: 21’4”
-
Taxe foncière: 1,03 $ CAD/pi²/an 0,09 $ CAD/pi²/mois 6 937 $ CAD/an 578,08 $ CAD/mois
| Espace | Taille | Terme | Taux de location | Utilisation de l’espace | Aménagement | Disponible |
| RDC | 18 579 pi² | 3/6/9 | 13,33 $ CAD/HT-HC/pi²/an 1,11 $ CAD/HT-HC/pi²/mois 247 592 $ CAD/HT-HC/an 20 633 $ CAD/HT-HC/mois | Flex | construction complète | Maintenant |
| RDC | 11 840 pi² | 3/6/9 | 16,29 $ CAD/HT-HC/pi²/an 1,36 $ CAD/HT-HC/pi²/mois 192 857 $ CAD/HT-HC/an 16 071 $ CAD/HT-HC/mois | Flex | - | Maintenant |
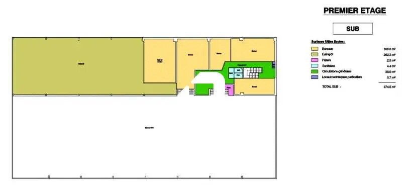
| 1er étage | 6 738 pi² | 3/6/9 | 16,29 $ CAD/HT-HC/pi²/an 1,36 $ CAD/HT-HC/pi²/mois 109 753 $ CAD/HT-HC/an 9 146 $ CAD/HT-HC/mois | Bureau | - | Maintenant |
RDC
| Taille |
| 18 579 pi² |
| Terme |
| 3/6/9 |
|
Taux de location
|
| 13,33 $ CAD/HT-HC/pi²/an 1,11 $ CAD/HT-HC/pi²/mois 247 592 $ CAD/HT-HC/an 20 633 $ CAD/HT-HC/mois |
| Utilisation de l’espace |
| Flex |
| Aménagement |
| construction complète |
| Disponible |
| Maintenant |
RDC
| Taille |
| 11 840 pi² |
| Terme |
| 3/6/9 |
|
Taux de location
|
| 16,29 $ CAD/HT-HC/pi²/an 1,36 $ CAD/HT-HC/pi²/mois 192 857 $ CAD/HT-HC/an 16 071 $ CAD/HT-HC/mois |
| Utilisation de l’espace |
| Flex |
| Aménagement |
| - |
| Disponible |
| Maintenant |
1er étage
| Taille |
| 6 738 pi² |
| Terme |
| 3/6/9 |
|
Taux de location
|
| 16,29 $ CAD/HT-HC/pi²/an 1,36 $ CAD/HT-HC/pi²/mois 109 753 $ CAD/HT-HC/an 9 146 $ CAD/HT-HC/mois |
| Utilisation de l’espace |
| Bureau |
| Aménagement |
| - |
| Disponible |
| Maintenant |
RDC
| Taille | 18 579 pi² |
| Terme | 3/6/9 |
|
Taux de location
|
13,33 $ CAD/HT-HC/pi²/an |
| Utilisation de l’espace | Flex |
| Aménagement | construction complète |
| Disponible | Maintenant |
Cet espace indépendant réunit une large zone d’activités confortable et fonctionnelle ainsi que des bureaux répartis entre le rez-de-chaussée et l’étage. Il bénéficie d’une hauteur généreuse qui facilite les opérations de stockage et permet une grande flexibilité d’exploitation. Deux accès de plain-pied par portes sectionnelles favorisent la circulation des véhicules utilitaires, tandis qu’une mezzanine métallique renforce les possibilités d’organisation interne. Les bureaux, équipés d’un aménagement classique avec moquette, faux plafonds et baie de brassage, assurent un cadre de travail agréable pour les équipes encadrantes et administratives. Le bâtiment dispose de sanitaires à chaque niveau, d’un système de chauffage adapté aux différentes zones, ainsi que d’équipements facilitant l’exploitation comme des skydômes et dispositifs de désenfumage. L’ensemble forme une solution clé en main pour une activité mêlant stockage, production légère et fonctions tertiaires.
- Honoraires preneur: 15,00% du taux de location annuel
- Dépôt de garantie: 3 mois de taux de location
-
Taxe foncière: 0,66 $ CAD/pi²/an 0,05 $ CAD/pi²/mois 12 188 $ CAD/an 1 016 $ CAD/mois
- Comprend 6 738 pi² d’espace de bureau dédié
- Espace en excellent état
- Bureaux partitionnés
- Système de sécurité
- Entreposage sécurisé
- Plafond suspendu
- Éclairage d’urgence
- Éclairage encastré
- Plafonds finis: 21’4”
- Hauts plafonds
- Cour
- Détecteur de fumée
- Portes sectionnelles traversantes
- Parking extérieur disponible
- Bureaux intégrés sur deux niveaux
RDC
| Taille | 11 840 pi² |
| Terme | 3/6/9 |
|
Taux de location
|
16,29 $ CAD/HT-HC/pi²/an |
| Utilisation de l’espace | Flex |
| Aménagement | - |
| Disponible | Maintenant |
- Dépôt de garantie: 3 mois de taux de location
-
Taxe foncière: 1,03 $ CAD/pi²/an 0,09 $ CAD/pi²/mois 12 189 $ CAD/an 1 016 $ CAD/mois
- Plafonds finis: 21’4”
1er étage
| Taille | 6 738 pi² |
| Terme | 3/6/9 |
|
Taux de location
|
16,29 $ CAD/HT-HC/pi²/an |
| Utilisation de l’espace | Bureau |
| Aménagement | - |
| Disponible | Maintenant |
- Dépôt de garantie: 3 mois de taux de location
-
Taxe foncière: 1,03 $ CAD/pi²/an 0,09 $ CAD/pi²/mois 6 937 $ CAD/an 578,08 $ CAD/mois
- Plafonds finis: 21’4”
Aperçu de la propriété
Le bâtiment se situe au cœur de la zone d’activité Pariwest, un secteur dynamique regroupant de nombreuses entreprises industrielles, commerciales et de services. Son implantation offre un environnement professionnel structuré et attractif, à proximité directe de commerces, services et transports du secteur de Coignières et Maurepas. L’accessibilité est facilitée par la Nationale 10 ainsi que les axes A12 et A86, permettant des déplacements fluides vers Paris et l’ensemble de l’Île-de-France. La desserte locale est renforcée par le réseau SQYBUS, qui relie la zone aux gares et pôles urbains environnants. Le site bénéficie d’un accès privatif depuis la rue et d’une bonne capacité de stationnement à l’avant comme à l’arrière du bâtiment, ce qui facilite l’accueil des collaborateurs et des visiteurs comme les opérations logistiques. Sa conception en bâtiment indépendant offre une tranquillité d’exploitation appréciable et une maîtrise totale de la circulation, des flux et de l’organisation interne.
Faits sur l’installation fabrication
Présenté par
"78310 Coignières"
Hmm, il semble y avoir eu une erreur lors de l’envoi de votre message. Veuillez réessayer.
Merci! Votre message a été envoyé.



