Se Connecter/S’inscrire
Votre courriel a été envoyé.
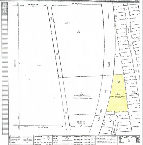
County Route 83
Coram, NY 11727
Terrain À vendre
·
2,70 AC


Certaines informations ont été traduites automatiquement.
RÉSUMÉ DE L'ANNONCE
Excellent emplacement ! ! ! Terrain de 2,7 acres situé sur la route de comté 83 à Coram.
FAITS SUR LA PROPRIÉTÉ
| Type de vente | Investissement ou propriétaire utilisateur | Utilisation proposée | Commercial |
| Nombre de lots | 1 | Taille totale du lot | 2,70 AC |
| Type de propriété | Terrain | Location | Unique |
| Sous-type de propriété | Terrain commercial | ||
| Zonage | R - Résidentiel | ||
| Type de vente | Investissement ou propriétaire utilisateur |
| Nombre de lots | 1 |
| Type de propriété | Terrain |
| Sous-type de propriété | Terrain commercial |
| Utilisation proposée | Commercial |
| Taille totale du lot | 2,70 AC |
| Location | Unique |
| Zonage | R - Résidentiel |
1 LOT DISPONIBLE
Lot
| Prix | 448 152 $ CAD | Taille du lot | 2,70 AC |
| Prix par AC | 165 982,31 $ CAD |
| Prix | 448 152 $ CAD |
| Prix par AC | 165 982,31 $ CAD |
| Taille du lot | 2,70 AC |
Taille du terrain : 2.7 Acres Zonage : R Impôts : 732,83$
DESCRIPTION
Terrain situé sur la route 83 du comté, Coram. Superficie du lot : 2,7 Acres Zonage : R Taxes : 732,83$ Carte fiscale # : 0200-315.00-01.00-004.000 Prix demandé : 325 000$
Impôts fonciers
| Numéro de lot | 0200-315-00-01-00-004-000 | Évaluation des bâtiments | 0 $ CAD |
| Évaluation du terrain | 247 $ CAD | Évaluation totale | 247 $ CAD |
Impôts fonciers
Numéro de lot
0200-315-00-01-00-004-000
Évaluation du terrain
247 $ CAD
Évaluation des bâtiments
0 $ CAD
Évaluation totale
247 $ CAD
1 de 3
VIDÉOS
VISITE EXTÉRIEURE 3D MATTERPORT
VISITE 3D MATTERPORT
PHOTOS
VUE DEPUIS LA RUE
RUE
CARTE
