Se Connecter/S’inscrire
Votre courriel a été envoyé.
DERBY OFFICE/WAREHOUSE + HOME 1 biens • Industriel • À vendre 671 300 $ CAD • Derby, KS



Certaines informations ont été traduites automatiquement.
Résumé de l'annonce
Tenant relocating.
Well-maintained office/warehouse building and home.
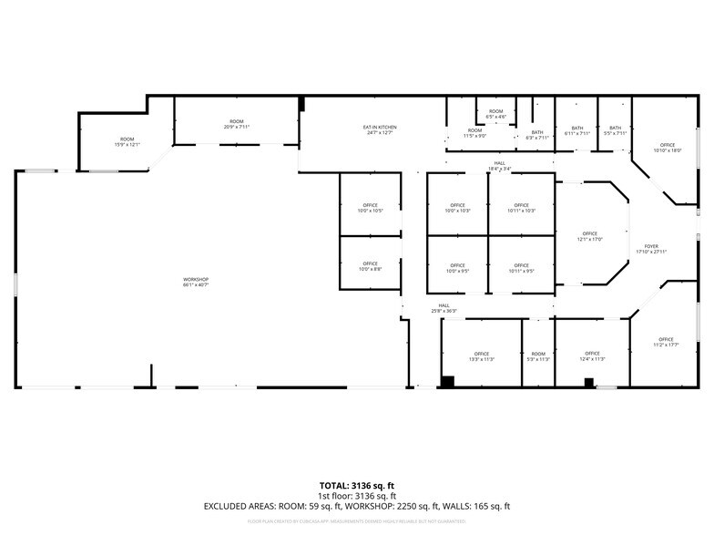
Office area is approximately 3,352 SF.
Five 10’ x 10’ drive-in overhead doors.
Quick access to Hwy. K-15.
Can be purchased separately or together, but home will not be sold separately prior to the commercial building.
Well-maintained office/warehouse building and home.
Office area is approximately 3,352 SF.
Five 10’ x 10’ drive-in overhead doors.
Quick access to Hwy. K-15.
Can be purchased separately or together, but home will not be sold separately prior to the commercial building.
Taxes et dépenses d’exploitation (Réel - 2025) Cliquez ici pour accéder à |
Annuel (CAD) |
|---|---|
| Taxes |
$99,999
|
| Dépenses d’exploitation |
-
|
| Total des dépenses |
$99,999
|
Taxes et dépenses d’exploitation (Réel - 2025) Cliquez ici pour accéder à
| Taxes (CAD) | |
|---|---|
| Annuel | $99,999 |
| Dépenses d’exploitation (CAD) | |
|---|---|
| Annuel | - |
| Total des dépenses (CAD) | |
|---|---|
| Annuel | $99,999 |
Faits sur la propriété
| Prix | 671 300 $ CAD | Nombre de propriétés | 2 |
| Prix/pi² | 124,15 $ CAD / pi² | Individuellement en vente | 0 |
| Type de vente | Investissement | Taille totale du bâtiment | 5 407 pi² |
| Statut | Actif | Superficie totale du terrain | 0,32 AC |
| Prix | 671 300 $ CAD |
| Prix/pi² | 124,15 $ CAD / pi² |
| Type de vente | Investissement |
| Statut | Actif |
| Nombre de propriétés | 2 |
| Individuellement en vente | 0 |
| Taille totale du bâtiment | 5 407 pi² |
| Superficie totale du terrain | 0,32 AC |
Propriétés
| Nom de la propriété/adresse | Type de propriété | Taille | Année de construction | Prix individuel |
|---|---|---|---|---|
| 219 S Water St, Derby, KS 67037 | Industriel | 5 407 pi² | 1976 | - |
1 de 10
Vidéos
Visite extérieure 3D Matterport
Visite 3D Matterport
Photos
Vue depuis la rue
Rue
Carte
Présenté par
DERBY OFFICE/WAREHOUSE + HOME
Vous êtes déjà membre? Connectez-vous
Hmm, il semble y avoir eu une erreur lors de l’envoi de votre message. Veuillez réessayer.
Merci! Votre message a été envoyé.

