Se Connecter/S’inscrire
Votre courriel a été envoyé.
Certaines informations ont été traduites automatiquement.
Résumé de l'annonce
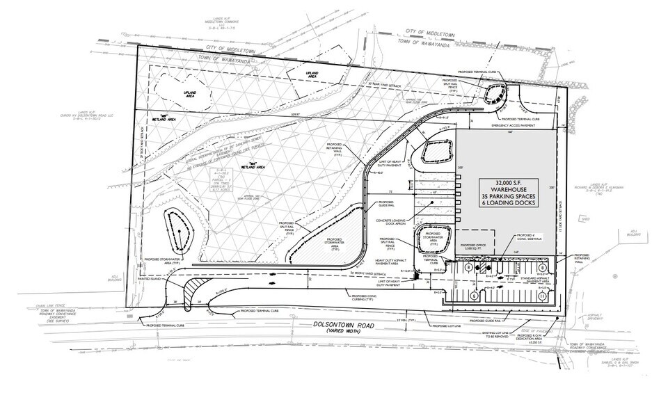
Fully approved site plans for construction of a 32,000 SF Industrial Building.
Faits sur la propriété
| Type de vente | Investissement | Sous-type de propriété | Terrain industriel |
| Nombre de lots | 1 | Utilisation proposée | Industriel |
| Type de propriété | Terrain | Taille totale du lot | 6,26 AC |
| Zonage | MC1 - Commercial | ||
| Type de vente | Investissement |
| Nombre de lots | 1 |
| Type de propriété | Terrain |
| Sous-type de propriété | Terrain industriel |
| Utilisation proposée | Industriel |
| Taille totale du lot | 6,26 AC |
| Zonage | MC1 - Commercial |
1 Lot disponible
Lot
| Taille du lot | 6,26 AC |
| Taille du lot | 6,26 AC |
6.26 AC of land available for sale.
1 1
1 de 3
Vidéos
Visite extérieure 3D Matterport
Visite 3D Matterport
Photos
Vue depuis la rue
Rue
Carte
1 de 1
Présenté par
Dolsontown Rd
Vous êtes déjà membre? Connectez-vous
Hmm, il semble y avoir eu une erreur lors de l’envoi de votre message. Veuillez réessayer.
Merci! Votre message a été envoyé.


