Votre courriel a été envoyé.
East Slaughter Lane Ln - Commercial Lots in Goodnight Ranch Lots • Terrain commercial • 1,8-13,6 Acre • 2 701 430 $-7 717 584 $ CAD par lot • Austin, TX 78747



Certaines informations ont été traduites automatiquement.
Faits saillants de l'investissement
- Situé dans la Communauté planifiée de l'année ABJ 2023
- 37 054 VPJ (DATE DE FIN 2023)
- Tous les services publics disponibles - Ville d'Austin
- Le vendeur livrera le lot plat final avec les services publics broyés sur le site
Résumé de l'annonce
Site #4 - 3 000 000,000,00$
Site #5 - 28,00$ pi² (jusqu'à 70 000 pi2 de GBA)
Site #6 - 20,00$ par pi² (jusqu'à 75 546 pi2 de GBA)
Site #7 - 35 000$ par unité (min 190 unités et max 200 unités)
Site #10 - 30,00$ pi² (jusqu'à 5 000 pi2 de GBA)
Site #11 - 25,00$ pi² (pour un maximum de 12 000 pi2 de GBA)
Faits sur la propriété
5 Lots disponibles
Lot Site #5
| Prix | 7 412 724 $ CAD | Taille du lot | 4,41 AC |
| Prix par AC | 1 680 889,82 $ CAD |
| Prix | 7 412 724 $ CAD |
| Prix par AC | 1 680 889,82 $ CAD |
| Taille du lot | 4,41 AC |
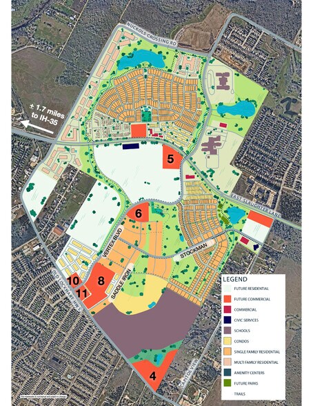
Le site #5 est d'environ 5,7 acres situé à la zone de stockage de Slaughter Ln et Vertex Blvd. Le site #5 a environ 580 pieds de façade sur E Slaughter ln et environ 554 pieds de façade sur le boulevard Vertex. La limite du couvert impérieux pour cette parcelle est de 90 %.
Lot Site #4
| Prix | 4 134 420 $ CAD | Taille du lot | 12,90 AC |
| Prix par AC | 320 497,67 $ CAD |
| Prix | 4 134 420 $ CAD |
| Prix par AC | 320 497,67 $ CAD |
| Taille du lot | 12,90 AC |
Le site #4 est d'environ 12,9 acres situé du côté sud du ranch Goodnight et directement au sud du futur site ISD d'Austin. Le site #4 a environ 914 pieds de façade sur Old Lockhart. La limite du couvert impérieux pour cette parcelle est de 80 %.
Lot Site #10
| Prix | 4 898 593 $ CAD | Taille du lot | 2,72 AC |
| Prix par AC | 1 800 953,32 $ CAD |
| Prix | 4 898 593 $ CAD |
| Prix par AC | 1 800 953,32 $ CAD |
| Taille du lot | 2,72 AC |
Le site #10 est d'environ 1,5 AC situé à l'angle nord-ouest du boulevard Old Lockhart et du prolongement futur du boulevard Vertex, du côté sud du ranch Goodnight. Un C-Store sera autorisé pour le site #10 seulement. Les limites du couvert impérial pour cette parcelle sont de 80 %.
Lot Site #11
| Prix | 2 701 430 $ CAD | Taille du lot | 1,80 AC |
| Prix par AC | 1 500 794,43 $ CAD |
| Prix | 2 701 430 $ CAD |
| Prix par AC | 1 500 794,43 $ CAD |
| Taille du lot | 1,80 AC |
Ce coin commercial de ±1,5 acre offre une occasion exceptionnelle de développement de services de garde à l'entrée sud du ranch Goodnight. Avec façade sur le chemin Old Lockhart et le prolongement prévu du boulevard Vertex.
Lot Site #8
| Prix | 7 717 584 $ CAD | Taille du lot | 13,60 AC |
| Prix par AC | 567 469,40 $ CAD |
| Prix | 7 717 584 $ CAD |
| Prix par AC | 567 469,40 $ CAD |
| Taille du lot | 13,60 AC |
This ±13.6-acre commercial soft corner is an ideal Build-To-Rent Development site located at the south entrance of Goodnight Ranch. With frontage on both Old Lockhart Road and Vertex Blvd. Impervious Cover limitations for this tract is 80%.
Description
Situé à Goodnight Ranch, la communauté planifiée de l'année ABJ 2023 ABJ, où il y a des approbations pour 6 300 unités résidentielles et 700 000 pieds carrés d'espaces commerciaux. South Park Meadows se trouve à environ 2,5 milles à IH-35 et Slaughter Ln et offre des services complets de soutien au commerce de détail. Les promoteurs du Goodnight Ranch ont créé un district de parc, qui comprend un sentier de jogging de 3 milles tout au long du développement et un fonds d'éducation au profit des résidents. Le vendeur livrera un dernier lot plat avec les services publics encrassés sur les sites et les retenus hors site. À l'exception du site #4, aucune partie de la propriété ne se trouve dans la plaine inondable de 100 ans de la FEMA. Un C-Store sera autorisé pour le site #10 UNIQUEMENT.
Impôts fonciers
| Numéros de lot | Évaluation des bâtiments | 0 $ CAD | |
| Évaluation du terrain | 6 901 910 $ CAD | Évaluation totale | 28 995 $ CAD |
Impôts fonciers
Présenté par
East Slaughter Lane Ln - Commercial Lots in Goodnight Ranch
Hmm, il semble y avoir eu une erreur lors de l’envoi de votre message. Veuillez réessayer.
Merci! Votre message a été envoyé.

