Se Connecter/S’inscrire
Votre courriel a été envoyé.
Gartner Road & Splitbeard Road - The Grove Frisco - Prime Commercial Frontage Lot • Terrain commercial • 2,76 Acres • Frisco, TX 75035



Certaines informations ont été traduites automatiquement.
Résumé de l'annonce
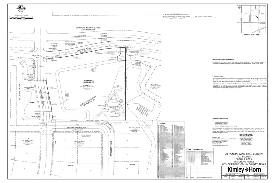
Property Name: The Grove Frisco – Retail Parcel
Lot: Block A, Lot 4
Location: Gartner Road & Splitbeard Road, Frisco, Texas
Gross Acreage: 3.273 acres / 142,550 sq ft
Net Acreage: 2.766 acres
Zoning: Retail / Mixed-Use (per preliminary site plan)
Current Status: Vacant development parcel within master-planned community
Utilities : Onsite
Lot: Block A, Lot 4
Location: Gartner Road & Splitbeard Road, Frisco, Texas
Gross Acreage: 3.273 acres / 142,550 sq ft
Net Acreage: 2.766 acres
Zoning: Retail / Mixed-Use (per preliminary site plan)
Current Status: Vacant development parcel within master-planned community
Utilities : Onsite
Faits sur la propriété
1 Lot disponible
Lot
| Taille du lot | 2,76 AC |
| Taille du lot | 2,76 AC |
Property Name: The Grove Frisco – Retail Parcel Lot: Block A, Lot 4 Location: Gartner Road & Splitbeard Road, Frisco, Texas Zoning: Retail / Mixed-Use (per preliminary site plan) Current Status: Vacant development parcel with master-planned community
Description
Nom de la propriété : The Grove Frisco – Parcelle commerciale Lot : Bloc A, Lot 4 Emplacement : Gartner Road & Splitbeard Road, Frisco, Texas Superficie brute : 3,273 acres / 142,550 pieds carrés Superficie nette : 2,766 acres
1 1
Assez praticable à pied
50/100
Exceptionnellement facile d’accès en voiture
100/100
Plutôt praticable en vélo
50/100
Impôts fonciers
| Numéro de lot | R-11776-00A-0040-1 | Évaluation des bâtiments | 52 264 $ CAD |
| Évaluation du terrain | 2 495 463 $ CAD | Évaluation totale | 2 547 727 $ CAD |
Impôts fonciers
Numéro de lot
R-11776-00A-0040-1
Évaluation du terrain
2 495 463 $ CAD
Évaluation des bâtiments
52 264 $ CAD
Évaluation totale
2 547 727 $ CAD
1 de 4
Vidéos
Visite extérieure 3D Matterport
Visite 3D Matterport
Photos
Vue depuis la rue
Rue
Carte
1 de 1
Présenté par
Gartner Road & Splitbeard Road - The Grove Frisco - Prime Commercial Frontage
Vous êtes déjà membre? Connectez-vous
Hmm, il semble y avoir eu une erreur lors de l’envoi de votre message. Veuillez réessayer.
Merci! Votre message a été envoyé.
