Votre courriel a été envoyé.
Certaines informations ont été traduites automatiquement.
Faits saillants de l'investissement
- Idéalement situé entre les sorties 69 et 71 de l'autoroute Long Island (LIE)
Résumé de l'annonce
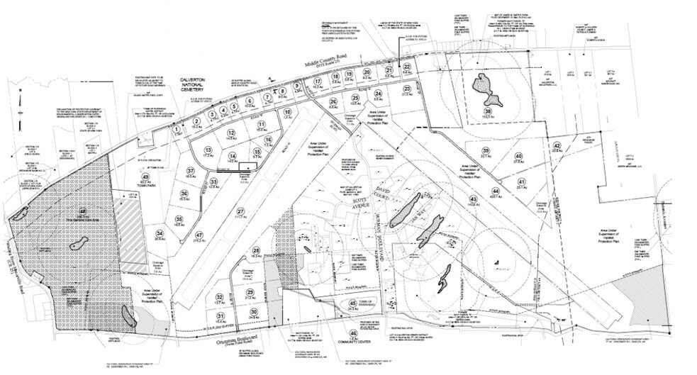
Le parc Enterprise de Calverton fait partie d'un projet de réaménagement d'une propriété de 2 900 acres. La propriété appartient à la Town of Riverhead Community Development Agency et, à la suite du Plan de réutilisation globale, est maintenant prévue pour le développement économique.
Aujourd'hui, la Ville a simplifié le processus d'acquisition et de développement à 90 jours, désireuse d'attirer des entreprises nouvelles et existantes dans la région. De plus, EPCAL offre la capacité unique d'utiliser l'accès ferroviaire par l'entremise du terminal ferroviaire existant et actuellement actif de New York & Atlantic et offre aux occupants de l'EPCAL l'utilisation de la piste de 10 000 pieds.
Faits sur la propriété Sous contrat
| Type de vente | Investissement | Sous-type de propriété | Terrain industriel |
| Condition de vente | Projet de redéveloppement | Utilisation proposée | Industriel |
| Nombre de lots | 1 | Taille totale du lot | 1 643,00 AC |
| Type de propriété | Terrain | Zone de développement économique |
Oui
|
| Zonage | PD - Développement planifié | ||
| Type de vente | Investissement |
| Condition de vente | Projet de redéveloppement |
| Nombre de lots | 1 |
| Type de propriété | Terrain |
| Sous-type de propriété | Terrain industriel |
| Utilisation proposée | Industriel |
| Taille totale du lot | 1 643,00 AC |
| Zone de développement économique |
Oui |
| Zonage | PD - Développement planifié |
1 Lot disponible
Lot EPCAL
| Taille du lot | 1 643,00 AC |
| Taille du lot | 1 643,00 AC |
Cette parcelle de plus de 680 acres est idéalement située entre les sorties 69 et 71 de la Long Island Expressway (LIE) et offre un processus d'approbation simplifié de 90 jours.
Description
Cette parcelle de 680 acres et plus est idéalement située entre les sorties 69 et 71 de l'autoroute Long Island (LIE) et offre un processus d'approbation simplifié de 90 jours, une étude d'impact environnemental et des parcelles de terrain subdivisées et de taille variable de 5 acres ou plus. Le parc Enterprise de Calverton fait partie d'un projet de réaménagement d'une propriété de 2 900 acres. La propriété appartient à la Town of Riverhead Community Development Agency et, à la suite du plan de réutilisation globale, est maintenant prévue pour le développement économique. Aujourd'hui, la Ville a simplifié le processus d'acquisition et de développement à 90 jours, désireux d'attirer des entreprises nouvelles et existantes dans la région. De plus, EPCAL offre la capacité unique d'utiliser l'accès ferroviaire par l'entremise du terminal ferroviaire de New York et de l'Atlantique, actuellement en service, et offre aux occupants de l'EPCAL l'utilisation de la piste de 10 000 pieds.
Impôts fonciers
| Numéros de lot | Évaluation des bâtiments | 7 105 686 $ CAD | |
| Évaluation du terrain | 16 369 197 $ CAD | Évaluation totale | 23 474 883 $ CAD |
Impôts fonciers
Présenté par
Grumman Blvd - EPCAL
Hmm, il semble y avoir eu une erreur lors de l’envoi de votre message. Veuillez réessayer.
Merci! Votre message a été envoyé.




