Se Connecter/S’inscrire
Votre courriel a été envoyé.
Hagy Ln - River View at Middle Paxton Lot • Résidentiel • 60,31 Acres • 4 285 606 $ CAD • Middle Paxton, PA 17018



Certaines informations ont été traduites automatiquement.
Faits saillants de l'investissement
- Cette propriété est située près d'un important trajet de navettage dans le marché du métro de Harrisburg.
Résumé de l'annonce
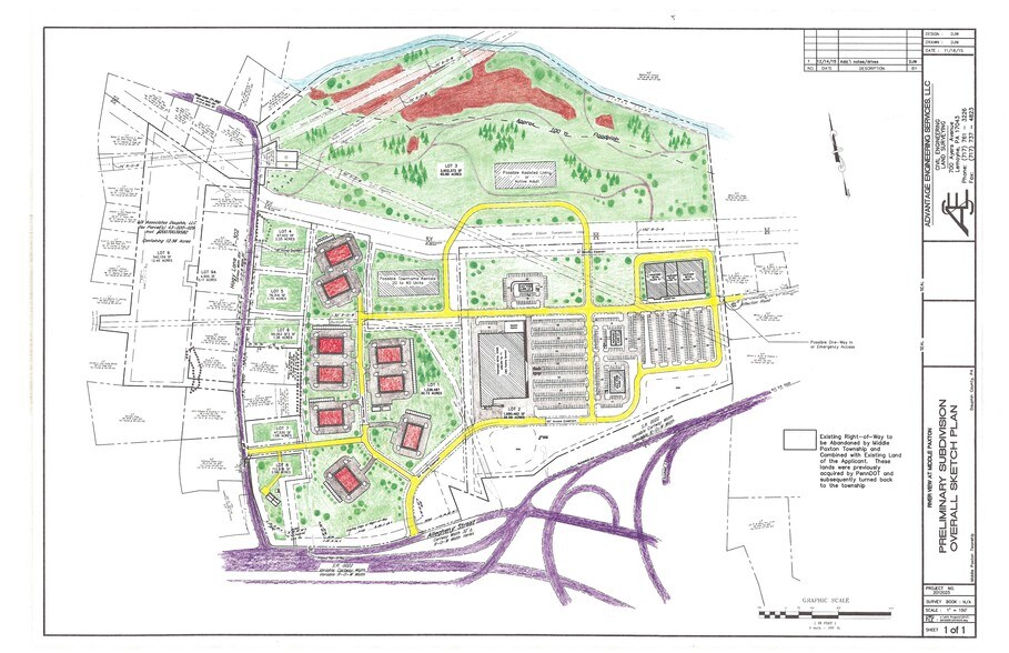
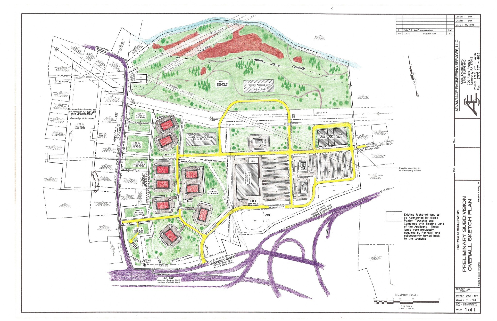
À vendre : 32 acres, résidence multifamiliale (+/-220 unités) 3 150 000$
· Le site est situé à un échangeur existant de la route 322 de PA (une route de banlieue importante à l'intérieur et à la sortie du marché métropolitain de Harrisburg, au nord et à l'ouest)
· Le trafic quotidien moyen annuel (AADT) est de 56 000 sur la route 322 et de 9 700 sur la route 225
· Le site se trouve à 15 milles du dôme du Capitole de Pennsylvanie, dans le quartier central des affaires de Harrisburg.
· À proximité immédiate de Dauphin- Route 22/322 Park & Ride. STATIONNEMENT CAT ET COVOITURAGE
· 32 acres ; subdivision préliminaire et aménagement du territoire approuvés en décembre 2015
· Le site est situé à un échangeur existant de la route 322 de PA (une route de banlieue importante à l'intérieur et à la sortie du marché métropolitain de Harrisburg, au nord et à l'ouest)
· Le trafic quotidien moyen annuel (AADT) est de 56 000 sur la route 322 et de 9 700 sur la route 225
· Le site se trouve à 15 milles du dôme du Capitole de Pennsylvanie, dans le quartier central des affaires de Harrisburg.
· À proximité immédiate de Dauphin- Route 22/322 Park & Ride. STATIONNEMENT CAT ET COVOITURAGE
· 32 acres ; subdivision préliminaire et aménagement du territoire approuvés en décembre 2015
Faits sur la propriété
1 Lot disponible
Lot
| Prix | 4 285 606 $ CAD | Taille du lot | 60,31 AC |
| Prix par AC | 71 059,63 $ CAD |
| Prix | 4 285 606 $ CAD |
| Prix par AC | 71 059,63 $ CAD |
| Taille du lot | 60,31 AC |
Corridor à fort trafic sur l'approche nord du Grand Harrisburg Metro. L'approbation finale de l'aménagement du territoire a été reçue en octobre 2019. L'accès à la capacité d'égout a été confirmé par l'entente de coopération intergouvernementale avec l'arrondissement de Dauphin.
1 1
Plutôt practicable à pied
20/100
Exceptionnellement facile d'accès en voiture
100/100
Assez praticable en vélo
30/100
Impôts fonciers
| Numéros de lot | Évaluation des bâtiments | 0 $ CAD | |
| Évaluation du terrain | 208 566 $ CAD | Évaluation totale | 208 566 $ CAD |
Impôts fonciers
Numéros de lot
Évaluation du terrain
208 566 $ CAD
Évaluation des bâtiments
0 $ CAD
Évaluation totale
208 566 $ CAD
1 de 7
Vidéos
Visite extérieure 3D Matterport
Visite 3D Matterport
Photos
Vue depuis la rue
Rue
Carte
1 de 1
Présenté par
Hagy Ln - River View at Middle Paxton
Vous êtes déjà membre? Connectez-vous
Hmm, il semble y avoir eu une erreur lors de l’envoi de votre message. Veuillez réessayer.
Merci! Votre message a été envoyé.
