Se Connecter/S’inscrire
Votre courriel a été envoyé.
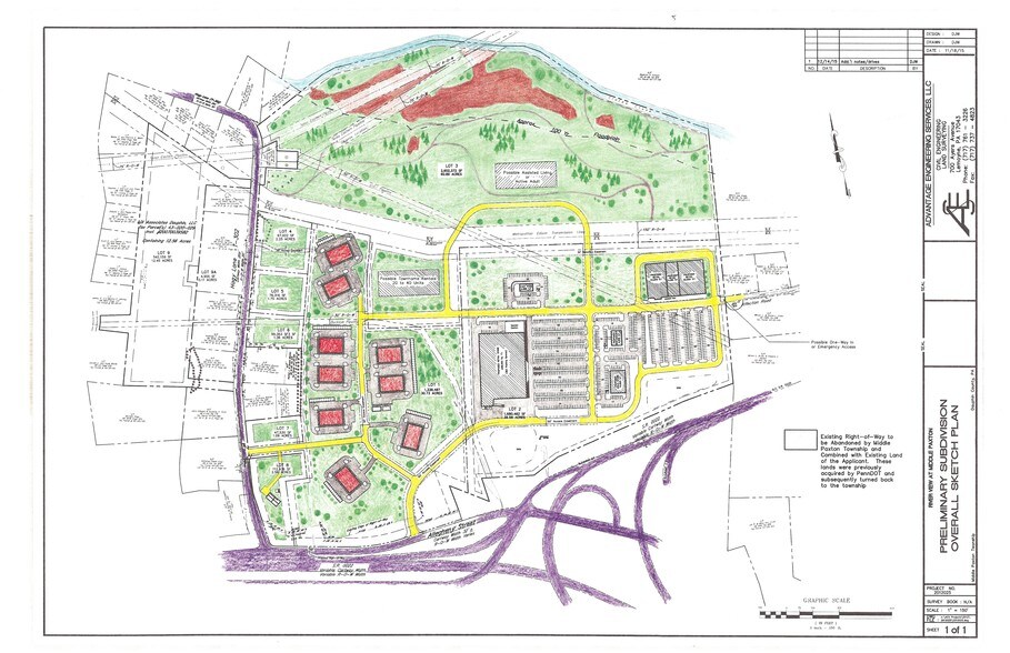
Hagy Ln - River View at Middle Paxton Lot • Terrain commercial • 38 Acres • 6 501 753 $ CAD • Middle Paxton, PA 17018



Certaines informations ont été traduites automatiquement.
Faits saillants de l'investissement
- Cette propriété est située sur une route de navettage importante dans le marché du métro de Harrisburg.
Résumé de l'annonce
À vendre : 40+/- acres 4 500 000$
· Le trafic quotidien moyen annuel (AADT) est de 56 000 sur la route 322 et de 9 700 sur la route 225
- Environ 40+/- acres zonés à des fins commerciales
· La superficie restante est zonée pour une combinaison de logements unifamiliaux et résidentiels à haute densité
· Le site est situé à un échangeur existant de la route 322 de PA (une route de banlieue importante à l'intérieur et à la sortie du marché métropolitain de Harrisburg, au nord et à l'ouest)
· Le site se trouve à 15 milles du dôme du Capitole de Pennsylvanie dans le quartier central des affaires de Harrisburg
· À proximité immédiate de Dauphin- Route 22/322 Park & Ride. Stationnement pour le TAC et le covoiturage
· Le trafic quotidien moyen annuel (AADT) est de 56 000 sur la route 322 et de 9 700 sur la route 225
- Environ 40+/- acres zonés à des fins commerciales
· La superficie restante est zonée pour une combinaison de logements unifamiliaux et résidentiels à haute densité
· Le site est situé à un échangeur existant de la route 322 de PA (une route de banlieue importante à l'intérieur et à la sortie du marché métropolitain de Harrisburg, au nord et à l'ouest)
· Le site se trouve à 15 milles du dôme du Capitole de Pennsylvanie dans le quartier central des affaires de Harrisburg
· À proximité immédiate de Dauphin- Route 22/322 Park & Ride. Stationnement pour le TAC et le covoiturage
Faits sur la propriété
1 Lot disponible
Lot 2
| Prix | 6 501 753 $ CAD | Taille du lot | 38,00 AC |
| Prix par AC | 171 098,75 $ CAD |
| Prix | 6 501 753 $ CAD |
| Prix par AC | 171 098,75 $ CAD |
| Taille du lot | 38,00 AC |
Situé et accessible depuis la rue Allegheny, la route de service, à la sortie de Pa 322, au Pa 225. Ce site est très fréquent sur une importante route de banlieue menant à la grande région de Harrisburg. Situé à +/-6 milles au nord de l'échangeur Interstate 81.
Description
Adjacent parcel is 216 garden apartment units. Construction is underway for these garden apartment units.
1 1
Impôts fonciers
| Numéros de lot | Évaluation des bâtiments | 27 339 $ CAD | |
| Évaluation du terrain | 555 114 $ CAD | Évaluation totale | 582 453 $ CAD |
Impôts fonciers
Numéros de lot
Évaluation du terrain
555 114 $ CAD
Évaluation des bâtiments
27 339 $ CAD
Évaluation totale
582 453 $ CAD
1 de 4
Vidéos
Visite extérieure 3D Matterport
Visite 3D Matterport
Photos
Vue depuis la rue
Rue
Carte
1 de 1
Présenté par
Hagy Ln - River View at Middle Paxton
Vous êtes déjà membre? Connectez-vous
Hmm, il semble y avoir eu une erreur lors de l’envoi de votre message. Veuillez réessayer.
Merci! Votre message a été envoyé.
Votre message a été envoyé !
Activez votre compte LoopNet dès maintenant pour suivre les propriétés, recevoir des alertes en temps réel, gagner du temps sur vos demandes futures et bien plus encore.
