Votre courriel a été envoyé.
The Courtyard Heath Rd 819–1 750 pi² d'espace disponible • Commerce de détail • Petersfield GU31 4DX



Certaines informations ont été traduites automatiquement.
Faits saillants
- Attractive market town
- Situated in a busy area near public transport and carpark
- Strategically located on the A3
Disponibilité des espaces (2)
Afficher les taux de location en
- Espace
- Taille
- Terme
- Taux de location
- Type
| Espace | Taille | Terme | Taux de location | Type de loyer | ||
| RDC, ste Left | 931 pi² | Négociable | 38,49 $ CAD/pi²/an 3,21 $ CAD/pi²/mois 35 837 $ CAD/an 2 986 $ CAD/mois | Réparation complète et assurance | ||
| RDC, ste Right | 819 pi² | Négociable | 43,76 $ CAD/pi²/an 3,65 $ CAD/pi²/mois 35 837 $ CAD/an 2 986 $ CAD/mois | Réparation complète et assurance |
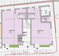
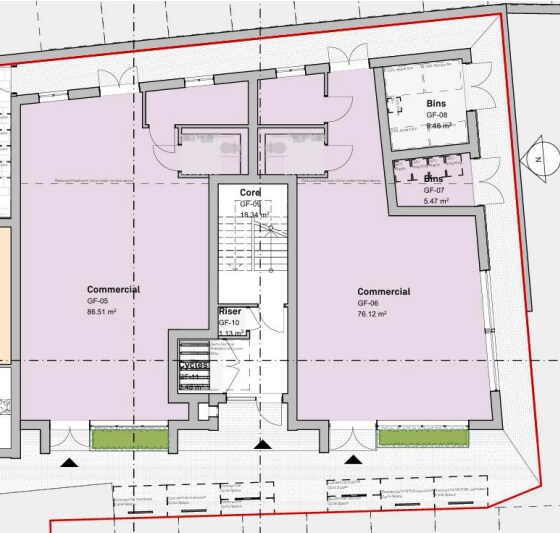
RDC, ste Left
Upon compleon, the development will comprise two newly constructed ground floor commercial retail units finished to a shell condion with services capped. Praccal compleon is ancipated in Spring 2027. The property is available to let by way of a new full repairing and insuring lease for a term to be agreed at a commencing rent of £19,500 per unit, per annum exclusive.
- Classe d’utilisation : E
- Espace embout très recherché
- Peut être associé à un ou plusieurs espaces supplémentaires pour obtenir jusqu’à 1 750 pi² d’espace adjacent.
- Salle de bains privée
- Open plan accommodaon
- To be finished to shell with services capped
- Brand new unit
RDC, ste Right
Upon compleon, the development will comprise two newly constructed ground floor commercial retail units finished to a shell condion with services capped. Praccal compleon is ancipated in Spring 2027. The property is available to let by way of a new full repairing and insuring lease for a term to be agreed at a commencing rent of £19,500 per unit, per annum exclusive.
- Classe d’utilisation : E
- Espace embout très recherché
- Peut être associé à un ou plusieurs espaces supplémentaires pour obtenir jusqu’à 1 750 pi² d’espace adjacent.
- Salle de bains privée
- Open plan accommodaon
- To be finished to shell with services capped
- Brand new unit
Types de services
Le type de service et le montant du loyer que le locataire (preneur) est tenu de payer au propriétaire (bailleur) sur la durée du bail sont négociés avant la signature du bail par les deux parties. Le type de service varie selon les services fournis. Contactez le courtier inscripteur pour tout connaître sur les frais connexes et additionnels associés à chaque type de service.
1. Réparations et assurances complètes: Toutes les obligations de réparer et d’assurer la propriété (ou de sa part de la propriété) à l’interne comme à l’externe.
2. Réparations internes seulement: Le locataire est responsable des réparations internes seulement. Le propriétaire est responsable des réparations structurelles et externes.
3. Réparations et assurances internes: Le locataire est responsable des réparations internes et des assurances pour les parties internes de la propriété seulement. Le propriétaire est responsable des réparations structurelles et externes.
4. Négociable ou à déterminer: Cette option est utilisée lorsque le contact de location ne fournit pas le type de service.
Faits sur la propriété
| Superficie totale disponible | 1 750 pi² | Superficie commerciale brute | 1 750 pi² |
| Type de propriété | Commerce de détail | Année de construction | 2027 |
| Sous-type de propriété | Commerce pied immeuble | État de la construction | Proposé |
| Superficie totale disponible | 1 750 pi² |
| Type de propriété | Commerce de détail |
| Sous-type de propriété | Commerce pied immeuble |
| Superficie commerciale brute | 1 750 pi² |
| Année de construction | 2027 |
| État de la construction | Proposé |
À propos de la propriété
This schemes comprises 4 townhouses, 4 apartments and 2 commercial/retail units. Petersfield is an attractive market town strategically located on the A3 London to Portsmouth trunk road approximately 18 miles to the north of Portsmouth and 25 miles to the south of Guildford. Road communications are excellent and in addition Petersfield benefits from a fast frequent train service to London Waterloo and to Portsmouth and the South Coast. The property is situated on The Courtyard, opposite the open air swimming pool and Petersfield festival theatre, a short walk into the town centre. The town offers a wide range of retail and food & beverage including Waitrose, Gails Bakery, Mint Velvet, Crew Clothing, Cafe Nero and Annie Jones.
- Ligne d'autobus
- Système de sécurité
Principaux détaillants à proximité
Présenté par
The Courtyard | Heath Rd
Hmm, il semble y avoir eu une erreur lors de l’envoi de votre message. Veuillez réessayer.
Merci! Votre message a été envoyé.


