Votre courriel a été envoyé.
38540 Heyrieux 5 974–31 947 pi² d'espace disponible • Flex



Certaines informations ont été traduites automatiquement.
Faits saillants
- BREEAM Very Good
- Façade bardage double peau
Caractéristiques
Tous les espaces disponibles(4)
Afficher les taux de location en
- Espace
- Taille
- Terme
-
Taux de location
- Utilisation de l’espace
- Aménagement
- Disponible
CGI REAL ESTATE LYON vous présente, au sein d'un nouveau parc d'activités certifié BREEAM Very Good, deux bâtiments modernes divisés en 4 lots chacun, disponibles à la location à partir de 440 m² environ. Ce parc, conçu avec des prestations de haut standing et une attention particulière à la qualité environnementale, bénéficie d'un emplacement stratégique le long de la RD518, axe majeur reliant Saint-Priest à Saint-Quentin-Fallavier. Parfaitement sécurisé, il offre de nombreux stationnements pour les collaborateurs et visiteurs. Certains lots seront également dotés de quais de chargement, optimisant ainsi la logistique et la fonctionnalité des locaux. - Type de bail : Commercial - Durée : 3/6/9/12 ans - Fiscalité : TVA - Indice : ILAT - Dépôt de garantie : 3 mois HT/HC - Loyers et charges : Trimestriels et d'avance - Accès PL - Aérothermes - Alarme incendie - Bureaux aménagés non cloisonnés - Climatisation réversible - Digicode - Façade bardage double peau - Fibre optique - Label environnemental : BREEAM Very Good - Menuiserie Alu - Nbre Parkings extérieurs : 127 - Portes sectionnelles : 1 parlot - Quai : PL - Site clos et sécurisé - Structure métallique - Tarif Jaune - Portillon - Espaces verts, - Mats d'éclairage, - Panneaux photovoltaïques en toiture, - Abris vélo. - Hauteur sous poutre : 7.5 m - Charge de la dalle : activité 3T/m², bureau 500kg/m², mezzanine 350kg/m² - Exutoires de fumée en toiture - Murs séparatifs en maçonnerie - RIA et détection incendie pour les lots 1 et 5
- Honoraires preneur: 15,00% du taux de location annuel
- Dépôt de garantie: 3 mois de taux de location
- 1 accès plain-pied
- Entreposage sécurisé
- Hauteur sous poutre : 7.5 m
- Charge de la dalle : activité 3T/m²
-
Charges locatives: 2,05 $ CAD/pi²/an 0,17 $ CAD/pi²/mois 28 207 $ CAD/an 2 351 $ CAD/mois
- Espace en excellent état
- Climatisation centrale
- Nombreux stationnements
- Climatisation réversible
CGI REAL ESTATE LYON vous présente, au sein d'un nouveau parc d'activités certifié BREEAM Very Good, deux bâtiments modernes divisés en 4 lots chacun, disponibles à la location à partir de 440 m² environ. Ce parc, conçu avec des prestations de haut standing et une attention particulière à la qualité environnementale, bénéficie d'un emplacement stratégique le long de la RD518, axe majeur reliant Saint-Priest à Saint-Quentin-Fallavier. Parfaitement sécurisé, il offre de nombreux stationnements pour les collaborateurs et visiteurs. Certains lots seront également dotés de quais de chargement, optimisant ainsi la logistique et la fonctionnalité des locaux. - Type de bail : Commercial - Durée : 3/6/9/12 ans - Fiscalité : TVA - Indice : ILAT - Dépôt de garantie : 3 mois HT/HC - Loyers et charges : Trimestriels et d'avance - Accès PL - Aérothermes - Alarme incendie - Bureaux aménagés non cloisonnés - Climatisation réversible - Digicode - Façade bardage double peau - Fibre optique - Label environnemental : BREEAM Very Good - Menuiserie Alu - Nbre Parkings extérieurs : 127 - Portes sectionnelles : 1 parlot - Quai : PL - Site clos et sécurisé - Structure métallique - Tarif Jaune - Portillon - Espaces verts, - Mats d'éclairage, - Panneaux photovoltaïques en toiture, - Abris vélo. - Hauteur sous poutre : 7.5 m - Charge de la dalle : activité 3T/m², bureau 500kg/m², mezzanine 350kg/m² - Exutoires de fumée en toiture - Murs séparatifs en maçonnerie - RIA et détection incendie pour les lots 1 et 5
- Honoraires preneur: 15,00% du taux de location annuel
- Dépôt de garantie: 3 mois de taux de location
- 1 accès plain-pied
- Entreposage sécurisé
- Hauteur sous poutre : 7.5 m
- Charge de la dalle : activité 3T/m²
-
Charges locatives: 2,05 $ CAD/pi²/an 0,17 $ CAD/pi²/mois 12 250 $ CAD/an 1 021 $ CAD/mois
- Espace en excellent état
- Climatisation centrale
- Nombreux stationnements
- Climatisation réversible
CGI REAL ESTATE LYON vous présente, au sein d'un nouveau parc d'activités certifié BREEAM Very Good, deux bâtiments modernes divisés en 4 lots chacun, disponibles à la location à partir de 440 m² environ. Ce parc, conçu avec des prestations de haut standing et une attention particulière à la qualité environnementale, bénéficie d'un emplacement stratégique le long de la RD518, axe majeur reliant Saint-Priest à Saint-Quentin-Fallavier. Parfaitement sécurisé, il offre de nombreux stationnements pour les collaborateurs et visiteurs. Certains lots seront également dotés de quais de chargement, optimisant ainsi la logistique et la fonctionnalité des locaux. - Type de bail : Commercial - Durée : 3/6/9/12 ans - Fiscalité : TVA - Indice : ILAT - Dépôt de garantie : 3 mois HT/HC - Loyers et charges : Trimestriels et d'avance - Accès PL - Aérothermes - Alarme incendie - Bureaux aménagés non cloisonnés - Climatisation réversible - Digicode - Façade bardage double peau - Fibre optique - Label environnemental : BREEAM Very Good - Menuiserie Alu - Nbre Parkings extérieurs : 127 - Portes sectionnelles : 1 parlot - Quai : PL - Site clos et sécurisé - Structure métallique - Tarif Jaune - Portillon - Espaces verts, - Mats d'éclairage, - Panneaux photovoltaïques en toiture, - Abris vélo. - Hauteur sous poutre : 7.5 m - Charge de la dalle : activité 3T/m², bureau 500kg/m², mezzanine 350kg/m² - Exutoires de fumée en toiture - Murs séparatifs en maçonnerie - RIA et détection incendie pour les lots 1 et 5
- Honoraires preneur: 15,00% du taux de location annuel
- Dépôt de garantie: 3 mois de taux de location
- 1 accès plain-pied
- Entreposage sécurisé
- Hauteur sous poutre : 7.5 m
- Charge de la dalle : activité 3T/m²
-
Charges locatives: 2,05 $ CAD/pi²/an 0,17 $ CAD/pi²/mois 12 382 $ CAD/an 1 032 $ CAD/mois
- Espace en excellent état
- Climatisation centrale
- Nombreux stationnements
- Climatisation réversible
CGI REAL ESTATE LYON vous présente, au sein d'un nouveau parc d'activités certifié BREEAM Very Good, deux bâtiments modernes divisés en 4 lots chacun, disponibles à la location à partir de 440 m² environ. Ce parc, conçu avec des prestations de haut standing et une attention particulière à la qualité environnementale, bénéficie d'un emplacement stratégique le long de la RD518, axe majeur reliant Saint-Priest à Saint-Quentin-Fallavier. Parfaitement sécurisé, il offre de nombreux stationnements pour les collaborateurs et visiteurs. Certains lots seront également dotés de quais de chargement, optimisant ainsi la logistique et la fonctionnalité des locaux. - Type de bail : Commercial - Durée : 3/6/9/12 ans - Fiscalité : TVA - Indice : ILAT - Dépôt de garantie : 3 mois HT/HC - Loyers et charges : Trimestriels et d'avance - Accès PL - Aérothermes - Alarme incendie - Bureaux aménagés non cloisonnés - Climatisation réversible - Digicode - Façade bardage double peau - Fibre optique - Label environnemental : BREEAM Very Good - Menuiserie Alu - Nbre Parkings extérieurs : 127 - Portes sectionnelles : 1 parlot - Quai : PL - Site clos et sécurisé - Structure métallique - Tarif Jaune - Portillon - Espaces verts, - Mats d'éclairage, - Panneaux photovoltaïques en toiture, - Abris vélo. - Hauteur sous poutre : 7.5 m - Charge de la dalle : activité 3T/m², bureau 500kg/m², mezzanine 350kg/m² - Exutoires de fumée en toiture - Murs séparatifs en maçonnerie - RIA et détection incendie pour les lots 1 et 5
- Honoraires preneur: 15,00% du taux de location annuel
- Dépôt de garantie: 3 mois de taux de location
- 1 accès plain-pied
- Entreposage sécurisé
- Hauteur sous poutre : 7.5 m
- Charge de la dalle : activité 3T/m²
-
Charges locatives: 2,05 $ CAD/pi²/an 0,17 $ CAD/pi²/mois 12 669 $ CAD/an 1 056 $ CAD/mois
- Espace en excellent état
- Climatisation centrale
- Nombreux stationnements
- Climatisation réversible
| Espace | Taille | Terme | Taux de location | Utilisation de l’espace | Aménagement | Disponible |
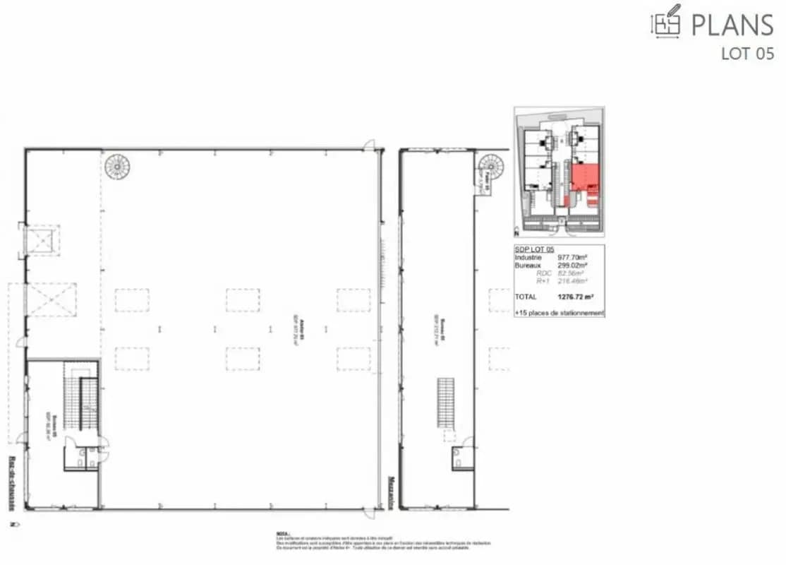
| RDC - Bâtiment B - Lot 05 | 13 756 pi² | 3/6/9 | 13,84 $ CAD/HT-HC/pi²/an 1,15 $ CAD/HT-HC/pi²/mois 190 432 $ CAD/HT-HC/an 15 869 $ CAD/HT-HC/mois | Flex | construction complète | Maintenant |
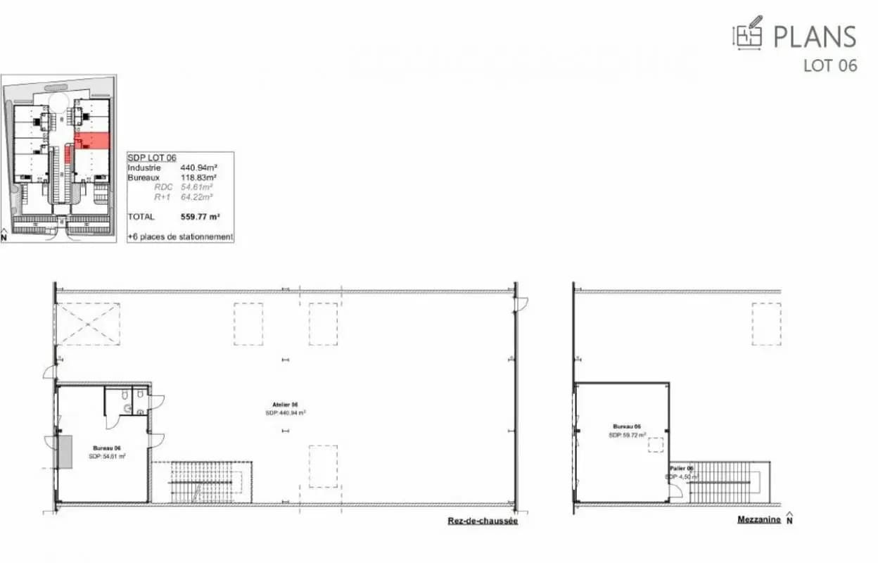
| RDC - Bâtiment B - Lot 06 | 5 974 pi² | 3/6/9 | 13,84 $ CAD/HT-HC/pi²/an 1,15 $ CAD/HT-HC/pi²/mois 82 700 $ CAD/HT-HC/an 6 892 $ CAD/HT-HC/mois | Flex | construction complète | Maintenant |
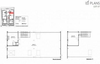
| RDC - Bâtiment B - Lot 07 | 6 039 pi² | 3/6/9 | 13,84 $ CAD/HT-HC/pi²/an 1,15 $ CAD/HT-HC/pi²/mois 83 594 $ CAD/HT-HC/an 6 966 $ CAD/HT-HC/mois | Flex | construction complète | Maintenant |
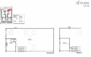
| RDC - Bâtiment B - Lot 08 | 6 178 pi² | 3/6/9 | 13,84 $ CAD/HT-HC/pi²/an 1,15 $ CAD/HT-HC/pi²/mois 85 531 $ CAD/HT-HC/an 7 128 $ CAD/HT-HC/mois | Flex | construction complète | Maintenant |
RDC - Bâtiment B - Lot 05
| Taille |
| 13 756 pi² |
| Terme |
| 3/6/9 |
|
Taux de location
|
| 13,84 $ CAD/HT-HC/pi²/an 1,15 $ CAD/HT-HC/pi²/mois 190 432 $ CAD/HT-HC/an 15 869 $ CAD/HT-HC/mois |
| Utilisation de l’espace |
| Flex |
| Aménagement |
| construction complète |
| Disponible |
| Maintenant |
RDC - Bâtiment B - Lot 06
| Taille |
| 5 974 pi² |
| Terme |
| 3/6/9 |
|
Taux de location
|
| 13,84 $ CAD/HT-HC/pi²/an 1,15 $ CAD/HT-HC/pi²/mois 82 700 $ CAD/HT-HC/an 6 892 $ CAD/HT-HC/mois |
| Utilisation de l’espace |
| Flex |
| Aménagement |
| construction complète |
| Disponible |
| Maintenant |
RDC - Bâtiment B - Lot 07
| Taille |
| 6 039 pi² |
| Terme |
| 3/6/9 |
|
Taux de location
|
| 13,84 $ CAD/HT-HC/pi²/an 1,15 $ CAD/HT-HC/pi²/mois 83 594 $ CAD/HT-HC/an 6 966 $ CAD/HT-HC/mois |
| Utilisation de l’espace |
| Flex |
| Aménagement |
| construction complète |
| Disponible |
| Maintenant |
RDC - Bâtiment B - Lot 08
| Taille |
| 6 178 pi² |
| Terme |
| 3/6/9 |
|
Taux de location
|
| 13,84 $ CAD/HT-HC/pi²/an 1,15 $ CAD/HT-HC/pi²/mois 85 531 $ CAD/HT-HC/an 7 128 $ CAD/HT-HC/mois |
| Utilisation de l’espace |
| Flex |
| Aménagement |
| construction complète |
| Disponible |
| Maintenant |
RDC - Bâtiment B - Lot 05
| Taille | 13 756 pi² |
| Terme | 3/6/9 |
|
Taux de location
|
13,84 $ CAD/HT-HC/pi²/an |
| Utilisation de l’espace | Flex |
| Aménagement | construction complète |
| Disponible | Maintenant |
CGI REAL ESTATE LYON vous présente, au sein d'un nouveau parc d'activités certifié BREEAM Very Good, deux bâtiments modernes divisés en 4 lots chacun, disponibles à la location à partir de 440 m² environ. Ce parc, conçu avec des prestations de haut standing et une attention particulière à la qualité environnementale, bénéficie d'un emplacement stratégique le long de la RD518, axe majeur reliant Saint-Priest à Saint-Quentin-Fallavier. Parfaitement sécurisé, il offre de nombreux stationnements pour les collaborateurs et visiteurs. Certains lots seront également dotés de quais de chargement, optimisant ainsi la logistique et la fonctionnalité des locaux. - Type de bail : Commercial - Durée : 3/6/9/12 ans - Fiscalité : TVA - Indice : ILAT - Dépôt de garantie : 3 mois HT/HC - Loyers et charges : Trimestriels et d'avance - Accès PL - Aérothermes - Alarme incendie - Bureaux aménagés non cloisonnés - Climatisation réversible - Digicode - Façade bardage double peau - Fibre optique - Label environnemental : BREEAM Very Good - Menuiserie Alu - Nbre Parkings extérieurs : 127 - Portes sectionnelles : 1 parlot - Quai : PL - Site clos et sécurisé - Structure métallique - Tarif Jaune - Portillon - Espaces verts, - Mats d'éclairage, - Panneaux photovoltaïques en toiture, - Abris vélo. - Hauteur sous poutre : 7.5 m - Charge de la dalle : activité 3T/m², bureau 500kg/m², mezzanine 350kg/m² - Exutoires de fumée en toiture - Murs séparatifs en maçonnerie - RIA et détection incendie pour les lots 1 et 5
- Honoraires preneur: 15,00% du taux de location annuel
-
Charges locatives: 2,05 $ CAD/pi²/an 0,17 $ CAD/pi²/mois 28 207 $ CAD/an 2 351 $ CAD/mois
- Dépôt de garantie: 3 mois de taux de location
- Espace en excellent état
- 1 accès plain-pied
- Climatisation centrale
- Entreposage sécurisé
- Nombreux stationnements
- Hauteur sous poutre : 7.5 m
- Climatisation réversible
- Charge de la dalle : activité 3T/m²
RDC - Bâtiment B - Lot 06
| Taille | 5 974 pi² |
| Terme | 3/6/9 |
|
Taux de location
|
13,84 $ CAD/HT-HC/pi²/an |
| Utilisation de l’espace | Flex |
| Aménagement | construction complète |
| Disponible | Maintenant |
CGI REAL ESTATE LYON vous présente, au sein d'un nouveau parc d'activités certifié BREEAM Very Good, deux bâtiments modernes divisés en 4 lots chacun, disponibles à la location à partir de 440 m² environ. Ce parc, conçu avec des prestations de haut standing et une attention particulière à la qualité environnementale, bénéficie d'un emplacement stratégique le long de la RD518, axe majeur reliant Saint-Priest à Saint-Quentin-Fallavier. Parfaitement sécurisé, il offre de nombreux stationnements pour les collaborateurs et visiteurs. Certains lots seront également dotés de quais de chargement, optimisant ainsi la logistique et la fonctionnalité des locaux. - Type de bail : Commercial - Durée : 3/6/9/12 ans - Fiscalité : TVA - Indice : ILAT - Dépôt de garantie : 3 mois HT/HC - Loyers et charges : Trimestriels et d'avance - Accès PL - Aérothermes - Alarme incendie - Bureaux aménagés non cloisonnés - Climatisation réversible - Digicode - Façade bardage double peau - Fibre optique - Label environnemental : BREEAM Very Good - Menuiserie Alu - Nbre Parkings extérieurs : 127 - Portes sectionnelles : 1 parlot - Quai : PL - Site clos et sécurisé - Structure métallique - Tarif Jaune - Portillon - Espaces verts, - Mats d'éclairage, - Panneaux photovoltaïques en toiture, - Abris vélo. - Hauteur sous poutre : 7.5 m - Charge de la dalle : activité 3T/m², bureau 500kg/m², mezzanine 350kg/m² - Exutoires de fumée en toiture - Murs séparatifs en maçonnerie - RIA et détection incendie pour les lots 1 et 5
- Honoraires preneur: 15,00% du taux de location annuel
-
Charges locatives: 2,05 $ CAD/pi²/an 0,17 $ CAD/pi²/mois 12 250 $ CAD/an 1 021 $ CAD/mois
- Dépôt de garantie: 3 mois de taux de location
- Espace en excellent état
- 1 accès plain-pied
- Climatisation centrale
- Entreposage sécurisé
- Nombreux stationnements
- Hauteur sous poutre : 7.5 m
- Climatisation réversible
- Charge de la dalle : activité 3T/m²
RDC - Bâtiment B - Lot 07
| Taille | 6 039 pi² |
| Terme | 3/6/9 |
|
Taux de location
|
13,84 $ CAD/HT-HC/pi²/an |
| Utilisation de l’espace | Flex |
| Aménagement | construction complète |
| Disponible | Maintenant |
CGI REAL ESTATE LYON vous présente, au sein d'un nouveau parc d'activités certifié BREEAM Very Good, deux bâtiments modernes divisés en 4 lots chacun, disponibles à la location à partir de 440 m² environ. Ce parc, conçu avec des prestations de haut standing et une attention particulière à la qualité environnementale, bénéficie d'un emplacement stratégique le long de la RD518, axe majeur reliant Saint-Priest à Saint-Quentin-Fallavier. Parfaitement sécurisé, il offre de nombreux stationnements pour les collaborateurs et visiteurs. Certains lots seront également dotés de quais de chargement, optimisant ainsi la logistique et la fonctionnalité des locaux. - Type de bail : Commercial - Durée : 3/6/9/12 ans - Fiscalité : TVA - Indice : ILAT - Dépôt de garantie : 3 mois HT/HC - Loyers et charges : Trimestriels et d'avance - Accès PL - Aérothermes - Alarme incendie - Bureaux aménagés non cloisonnés - Climatisation réversible - Digicode - Façade bardage double peau - Fibre optique - Label environnemental : BREEAM Very Good - Menuiserie Alu - Nbre Parkings extérieurs : 127 - Portes sectionnelles : 1 parlot - Quai : PL - Site clos et sécurisé - Structure métallique - Tarif Jaune - Portillon - Espaces verts, - Mats d'éclairage, - Panneaux photovoltaïques en toiture, - Abris vélo. - Hauteur sous poutre : 7.5 m - Charge de la dalle : activité 3T/m², bureau 500kg/m², mezzanine 350kg/m² - Exutoires de fumée en toiture - Murs séparatifs en maçonnerie - RIA et détection incendie pour les lots 1 et 5
- Honoraires preneur: 15,00% du taux de location annuel
-
Charges locatives: 2,05 $ CAD/pi²/an 0,17 $ CAD/pi²/mois 12 382 $ CAD/an 1 032 $ CAD/mois
- Dépôt de garantie: 3 mois de taux de location
- Espace en excellent état
- 1 accès plain-pied
- Climatisation centrale
- Entreposage sécurisé
- Nombreux stationnements
- Hauteur sous poutre : 7.5 m
- Climatisation réversible
- Charge de la dalle : activité 3T/m²
RDC - Bâtiment B - Lot 08
| Taille | 6 178 pi² |
| Terme | 3/6/9 |
|
Taux de location
|
13,84 $ CAD/HT-HC/pi²/an |
| Utilisation de l’espace | Flex |
| Aménagement | construction complète |
| Disponible | Maintenant |
CGI REAL ESTATE LYON vous présente, au sein d'un nouveau parc d'activités certifié BREEAM Very Good, deux bâtiments modernes divisés en 4 lots chacun, disponibles à la location à partir de 440 m² environ. Ce parc, conçu avec des prestations de haut standing et une attention particulière à la qualité environnementale, bénéficie d'un emplacement stratégique le long de la RD518, axe majeur reliant Saint-Priest à Saint-Quentin-Fallavier. Parfaitement sécurisé, il offre de nombreux stationnements pour les collaborateurs et visiteurs. Certains lots seront également dotés de quais de chargement, optimisant ainsi la logistique et la fonctionnalité des locaux. - Type de bail : Commercial - Durée : 3/6/9/12 ans - Fiscalité : TVA - Indice : ILAT - Dépôt de garantie : 3 mois HT/HC - Loyers et charges : Trimestriels et d'avance - Accès PL - Aérothermes - Alarme incendie - Bureaux aménagés non cloisonnés - Climatisation réversible - Digicode - Façade bardage double peau - Fibre optique - Label environnemental : BREEAM Very Good - Menuiserie Alu - Nbre Parkings extérieurs : 127 - Portes sectionnelles : 1 parlot - Quai : PL - Site clos et sécurisé - Structure métallique - Tarif Jaune - Portillon - Espaces verts, - Mats d'éclairage, - Panneaux photovoltaïques en toiture, - Abris vélo. - Hauteur sous poutre : 7.5 m - Charge de la dalle : activité 3T/m², bureau 500kg/m², mezzanine 350kg/m² - Exutoires de fumée en toiture - Murs séparatifs en maçonnerie - RIA et détection incendie pour les lots 1 et 5
- Honoraires preneur: 15,00% du taux de location annuel
-
Charges locatives: 2,05 $ CAD/pi²/an 0,17 $ CAD/pi²/mois 12 669 $ CAD/an 1 056 $ CAD/mois
- Dépôt de garantie: 3 mois de taux de location
- Espace en excellent état
- 1 accès plain-pied
- Climatisation centrale
- Entreposage sécurisé
- Nombreux stationnements
- Hauteur sous poutre : 7.5 m
- Climatisation réversible
- Charge de la dalle : activité 3T/m²
Aperçu de la propriété
CGI REAL ESTATE LYON vous présente, au sein d'un nouveau parc d'activités certifié BREEAM Very Good, deux bâtiments modernes divisés en 4 lots chacun, disponibles à la location à partir de 440 m² environ. Ce parc, conçu avec des prestations de haut standing et une attention particulière à la qualité environnementale, bénéficie d'un emplacement stratégique le long de la RD518, axe majeur reliant Saint-Priest à Saint-Quentin-Fallavier. Parfaitement sécurisé, il offre de nombreux stationnements pour les collaborateurs et visiteurs. Certains lots seront également dotés de quais de chargement, optimisant ainsi la logistique et la fonctionnalité des locaux. - Type de bail : Commercial - Durée : 3/6/9/12 ans - Fiscalité : TVA - Indice : ILAT - Dépôt de garantie : 3 mois HT/HC - Loyers et charges : Trimestriels et d'avance - Accès PL - Aérothermes - Alarme incendie - Bureaux aménagés non cloisonnés - Climatisation réversible - Digicode - Façade bardage double peau - Fibre optique - Label environnemental : BREEAM Very Good - Menuiserie Alu - Nbre Parkings extérieurs : 127 - Portes sectionnelles : 1 parlot - Quai : PL - Site clos et sécurisé - Structure métallique - Tarif Jaune - Portillon - Espaces verts, - Mats d'éclairage, - Panneaux photovoltaïques en toiture, - Abris vélo. - Hauteur sous poutre : 7.5 m - Charge de la dalle : activité 3T/m², bureau 500kg/m², mezzanine 350kg/m² - Exutoires de fumée en toiture - Murs séparatifs en maçonnerie - RIA et détection incendie pour les lots 1 et 5
Faits sur la propriété
Présenté par
"38540 Heyrieux"
Hmm, il semble y avoir eu une erreur lors de l’envoi de votre message. Veuillez réessayer.
Merci! Votre message a été envoyé.









