Votre courriel a été envoyé.
Highlands Ln - Office Development Lot • Terrain commercial • 0,89 Acres • 2 790 850 $ CAD • Rotherfield Greys RG9 4PR



Certaines informations ont été traduites automatiquement.
Faits saillants de l'investissement
- Freehold development site within Crest Nicholson’s masterplan
- 37 dedicated parking spaces in a landscaped rural setting
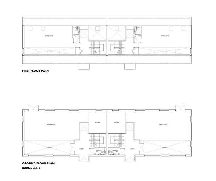
- Outline planning for six self-contained commercial buildings
Résumé de l'annonce
Faits sur la propriété
1 Lot disponible
Lot
| Prix | 2 790 850 $ CAD | Taille du lot | 0,89 AC |
| Prix par AC | 3 135 785,98 $ CAD |
| Prix | 2 790 850 $ CAD |
| Prix par AC | 3 135 785,98 $ CAD |
| Taille du lot | 0,89 AC |
Extending to 0.905 acres, the lot comprises a proposed scheme for a small business park with 6 commercial office spaces and 37 car parking spaces.
Description
Located approximately 1.5 miles from Henley-on-Thames town centre, Highlands Park forms part of the Crest Nicholson master-planned residential scheme, benefiting from high-quality surroundings and strong environmental appeal. Henley-on-Thames is one of the region’s most established Thames Valley towns, famed for its leisure and cultural events and supported by strong retail and commercial activity. Excellent road access to both the M40 and M4 corridors, along with proximity to Reading’s mainline rail links, enhances connectivity to London, Heathrow Airport, and wider economic hubs. The 0.905-acre site benefits from rural character while maintaining accessibility to urban amenities, offering a unique blend of tranquillity and practical commercial viability. With an estimated GDV of approximately £5.9 million when fully let, the development presents compelling potential for long-term value creation.
Présenté par
Highlands Ln - Office Development
Hmm, il semble y avoir eu une erreur lors de l’envoi de votre message. Veuillez réessayer.
Merci! Votre message a été envoyé.
