Se Connecter/S’inscrire
Votre courriel a été envoyé.
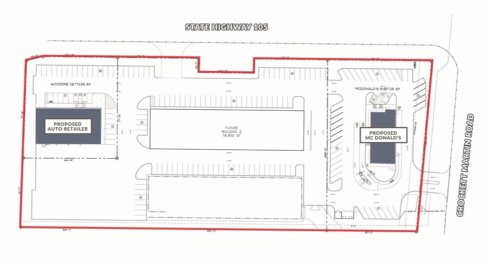
Highway 105 & Crockett Martin Rd
Conroe, TX 77306
±4.94 Acres | Conroe, TX · Terrain À vendre
·
4,94 AC


Certaines informations ont été traduites automatiquement.
Faits saillants de l'investissement
- Hard corner location at a signalized intersection
- Utilities available with off-site detention provided
- Exceptional demographic growth and income levels in trade area
- Direct access to Highway 105 and Crockett Martin Road
- Pre-leasing opportunities for multi-tenant retail
Résumé de l'annonce
This tract is strategically located in Montgomery County, one of the fastest-growing regions in Texas, with projected population growth exceeding 70% within five miles by 2025. Surrounded by strong residential expansion and high traffic counts of approximately 18,481 vehicles per day on Highway 105, the site is ideal for retail, service, or mixed-use development. Its proximity to The Woodlands and major thoroughfares ensures strong connectivity and long-term value potential. Investors will benefit from robust demographics, including an average household income of over $103,000 within seven miles.
Faits sur la propriété
| Type de vente | Investissement | Utilisation proposée | Commercial |
| Nombre de lots | 1 | Taille totale du lot | 4,94 AC |
| Type de propriété | Terrain | Zone de développement économique |
Oui
|
| Sous-type de propriété | Terrain commercial |
| Type de vente | Investissement |
| Nombre de lots | 1 |
| Type de propriété | Terrain |
| Sous-type de propriété | Terrain commercial |
| Utilisation proposée | Commercial |
| Taille totale du lot | 4,94 AC |
| Zone de développement économique |
Oui |
1 Lot disponible
Lot
| Taille du lot | 4,94 AC |
| Taille du lot | 4,94 AC |
Commercial development site at Highway 105 and Crockett Martin Road in Conroe, TX, offering prime visibility at a signalized corner with utilities ready and off-site detention included.
Impôts fonciers
| Numéros de lot | Évaluation des bâtiments | 0 $ CAD | |
| Évaluation du terrain | 1 048 104 $ CAD | Évaluation totale | 1 048 104 $ CAD |
Impôts fonciers
Numéros de lot
Évaluation du terrain
1 048 104 $ CAD
Évaluation des bâtiments
0 $ CAD
Évaluation totale
1 048 104 $ CAD
1 de 3
Vidéos
Visite extérieure 3D Matterport
Visite 3D Matterport
Photos
Vue depuis la rue
Rue
Carte
