Votre courriel a été envoyé.
Certaines informations ont été traduites automatiquement.
Faits saillants
- Brand-new development of high-quality hybrid workshop and office units
- Dedicated workshop/storage area with roller shutter access
- Located at Hutton Bank, Ripon
Tous les espaces disponibles(2)
Afficher les taux de location en
- Espace
- Taille
- Terme
- Taux de location
- Utilisation de l’espace
- Aménagement
- Disponible
Les 2 espaces de cet immeuble doivent être loués ensemble, pour une superficie totale de 1 300 pi² (Zone contiguë):
The property is available to lease on new terms to be negotiated.
- Classe d’utilisation : B2
- Entreposage sécurisé
- Cour
- Available on a new lease
- Natural light provision with versatile layout
- Espace en excellent état
- Stores automatiques
- Détecteur de fumée
- Office space on upper floor
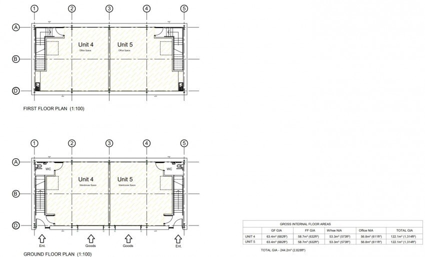
- Comprend 650 pi² d’espace de bureau dédié
Les 2 espaces de cet immeuble doivent être loués ensemble, pour une superficie totale de 1 300 pi² (Zone contiguë):
The property is available to lease on new terms to be negotiated.
- Classe d’utilisation : B2
- Entreposage sécurisé
- Cour
- Available on a new lease
- Natural light provision with versatile layout
- Espace en excellent état
- Stores automatiques
- Détecteur de fumée
- Office space on upper floor
- Comprend 650 pi² d’espace de bureau dédié
| Espace | Taille | Terme | Taux de location | Utilisation de l’espace | Aménagement | Disponible |
| RDC - 4, 1er étage - 4 | 1 300 pi² | Négociable | 28,46 $ CAD/pi²/an 2,37 $ CAD/pi²/mois 37 001 $ CAD/an 3 083 $ CAD/mois | Industriel | construction complète | 2026-05-24 |
| RDC - 5, 1er étage - 5 | 1 300 pi² | Négociable | 28,46 $ CAD/pi²/an 2,37 $ CAD/pi²/mois 37 001 $ CAD/an 3 083 $ CAD/mois | Industriel | construction complète | 2026-05-24 |
RDC - 4, 1er étage - 4
Les 2 espaces de cet immeuble doivent être loués ensemble, pour une superficie totale de 1 300 pi² (Zone contiguë):
| Taille |
|
RDC - 4 - 650 pi²
1er étage - 4 - 650 pi²
|
| Terme |
| Négociable |
| Taux de location |
| 28,46 $ CAD/pi²/an 2,37 $ CAD/pi²/mois 37 001 $ CAD/an 3 083 $ CAD/mois |
| Utilisation de l’espace |
| Industriel |
| Aménagement |
| construction complète |
| Disponible |
| 2026-05-24 |
RDC - 5, 1er étage - 5
Les 2 espaces de cet immeuble doivent être loués ensemble, pour une superficie totale de 1 300 pi² (Zone contiguë):
| Taille |
|
RDC - 5 - 650 pi²
1er étage - 5 - 650 pi²
|
| Terme |
| Négociable |
| Taux de location |
| 28,46 $ CAD/pi²/an 2,37 $ CAD/pi²/mois 37 001 $ CAD/an 3 083 $ CAD/mois |
| Utilisation de l’espace |
| Industriel |
| Aménagement |
| construction complète |
| Disponible |
| 2026-05-24 |
RDC - 4, 1er étage - 4
| Taille |
RDC - 4 - 650 pi²
1er étage - 4 - 650 pi²
|
| Terme | Négociable |
| Taux de location | 28,46 $ CAD/pi²/an |
| Utilisation de l’espace | Industriel |
| Aménagement | construction complète |
| Disponible | 2026-05-24 |
The property is available to lease on new terms to be negotiated.
- Classe d’utilisation : B2
- Espace en excellent état
- Entreposage sécurisé
- Stores automatiques
- Cour
- Détecteur de fumée
- Available on a new lease
- Office space on upper floor
- Natural light provision with versatile layout
- Comprend 650 pi² d’espace de bureau dédié
RDC - 5, 1er étage - 5
| Taille |
RDC - 5 - 650 pi²
1er étage - 5 - 650 pi²
|
| Terme | Négociable |
| Taux de location | 28,46 $ CAD/pi²/an |
| Utilisation de l’espace | Industriel |
| Aménagement | construction complète |
| Disponible | 2026-05-24 |
The property is available to lease on new terms to be negotiated.
- Classe d’utilisation : B2
- Espace en excellent état
- Entreposage sécurisé
- Stores automatiques
- Cour
- Détecteur de fumée
- Available on a new lease
- Office space on upper floor
- Natural light provision with versatile layout
- Comprend 650 pi² d’espace de bureau dédié
Aperçu de la propriété
A brand-new development of high-quality hybrid workshop and office units ideally located at Hutton Bank, Ripon, available from Spring 2026. This modern scheme comprises five purpose-built two-storey units, each thoughtfully designed to provide flexible space for a variety of business uses. Each unit features: Ground Floor: Dedicated workshop/storage area with roller shutter access. First Floor: Well-appointed office accommodation with natural light and versatile layout
Faits sur l’installation entrepôt
Présenté par
Hutton Bank
Hmm, il semble y avoir eu une erreur lors de l’envoi de votre message. Veuillez réessayer.
Merci! Votre message a été envoyé.



